賃貸マンション
プレサンス天王寺ヴィヴァンの賃貸物件情報(1K/3階)
| 家賃 | 管理費等 | 敷金 | 礼金 | 間取り | 専有面積 |
|---|---|---|---|---|---|
| 6.58万円 | 6,420円 | なし | 6.58万円 | 1K | 20.72m2 |
入居決定でお祝い金最大100,000円
- 保証金
- -
- 償却・敷引
- -
- 築年数
- 新築
- 所在階
- 3階
- 向き
- 東
Point
まずはお問い合わせ!
不動産会社は街のプロ、あなたに合った物件がきっと見つかります。
提供:いい部屋ネット天王寺店(株)アイホーム(SUUMO経由)

詳細情報 プレサンス天王寺ヴィヴァン
物件紹介
プレサンス天王寺ヴィヴァンはJR大阪環状線寺田町駅から徒歩2分にあり、駅近で通勤通学に便利なマンションです。
このお部屋は2階以上に位置しているので、通行人や周囲の住人からの視線が気になりにくく、防犯面でも安心。建物のエントランスはオートロックがついており、インターホンにはTVモニタもついているため、相手の顔を確認してから来客対応することができます。
浴室乾燥機付きで、雨の日でもお洗濯は問題ありません。
通信設備面では、インターネットが無料で使えるので、月々の出費を抑えられるのも魅力です。また、BSアンテナもありますので、おうち時間も充実するでしょう(別途工事、BSの契約料等が必要な場合あり)。
建物にはエレベーターがついているので、重い荷物があっても安心。共用部には宅配ボックスが設定されているので、不在の時にも荷物を受け取ることができます。
このお部屋は2階以上に位置しているので、通行人や周囲の住人からの視線が気になりにくく、防犯面でも安心。建物のエントランスはオートロックがついており、インターホンにはTVモニタもついているため、相手の顔を確認してから来客対応することができます。
浴室乾燥機付きで、雨の日でもお洗濯は問題ありません。
通信設備面では、インターネットが無料で使えるので、月々の出費を抑えられるのも魅力です。また、BSアンテナもありますので、おうち時間も充実するでしょう(別途工事、BSの契約料等が必要な場合あり)。
建物にはエレベーターがついているので、重い荷物があっても安心。共用部には宅配ボックスが設定されているので、不在の時にも荷物を受け取ることができます。
お金・契約の情報
※「-」と表示されているものは、実際は料金が発生するものもございます。詳細はお問い合わせください。
| 家賃 | 6.58万円 | 管理費・共益費 | 6,420円 |
|---|---|---|---|
| 敷金 | なし | 礼金 | 6.58万円 |
| 入居決定でお祝い金最大100,000円 | |||
| 保証金 | - | 償却・敷引 | - |
| 住宅保険料 | - | 更新料 | - |
| 保証会社利用 | 必須 | 保証会社名 | - |
| 保証会社費用 | - | 保証会社備考 | 保証会社利用必 利用必須ギャランティ 初回50% 月1.5%・セーフティー 初回50% 年10,000円 |
| 契約形態 | - | 契約期間 | - |
| 入居・引渡期間 | - | 現況 | - |
| 契約備考 | 1K 単身者可 普通借家1年 エアコン、シャワー付洗面台、TVインターホン、浴室乾燥機、オートロック、シューズボックス、温水洗浄便座、エレベーター、洗面所独立、洗面化粧台、2口コンロ、宅配ボックス、敷金不要、防犯カメラ、照明付、ネット使用料不要、築2年以内、未入居、3駅以上利用可、3沿線以上利用可、駅徒歩5分以内、BS 入居日:'26年3月中旬 | ||
部屋の情報
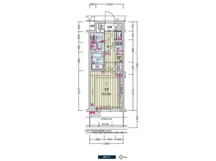
| 間取り | 1K | 専有面積 | 20.72m2 |
|---|---|---|---|
| 所在階 / 向き | 3階 / 東 | バルコニー面積 | - |
| 水道 / ガス | - | ||
| 設備 | 2階以上、オートロック、テレビドアホン、宅配ボックス、浴室乾燥機、インターネット対応、エアコン、エレベーター、温水洗浄便座、洗髪洗面化粧台、2口コンロ、BSアンテナ、インターネット使用料無料 | ||
| 当社物件ID | 159747844 | ||
建物の情報
| 建物名 | プレサンス天王寺ヴィヴァン | ||
|---|---|---|---|
| 所在地 | 大阪府大阪市阿倍野区天王寺町北 | ||
| 交通 | JR大阪環状線 寺田町駅 徒歩2分 地下鉄御堂筋線 天王寺駅 徒歩10分 近鉄南大阪線 河堀口駅 徒歩10分 | ||
| 階数 | 10階建 | 総戸数 | 106戸 |
| 築年月 | 2026年03月 / 新築 | エレベーター | あり |
| 駐車場 | なし | バイク置き場 | - |
| 駐輪場 | - | 管理人/管理会社 | - |
| 周辺環境 | その他 mandai(万代) 天王寺店(スーパー)まで437m その他 万代天王寺店(スーパー)まで533m その他 ザ・ダイソー DAISO コーナン天王寺店(スーパー)まで549m その他 セブンイレブン 寺田町駅南口店(コンビニ)まで273m その他 セブンイレブン 阿倍野高松店(コンビニ)まで321m | ||
| 建物種別 | マンション | 建物構造 | RC(鉄筋コンクリート) |
この部屋の取扱い不動産会社
| 会社名 | いい部屋ネット天王寺店(株)アイホーム(SUUMO経由) | ||
|---|---|---|---|
| 所在地 | 大阪府大阪市阿倍野区旭町1-1-8 加賀タワービル2階 | 交通 | - |
| 営業時間 | 9時30分~19時30分 | 定休日 | - |
| 免許番号 | 大阪府知事54134 | 取引態様 | 仲介 |
| 不動産会社管理番号 | 100476428659 | 当社管理番号 | 89 |
| 取扱い物件情報 | 物件詳細へ | ||
※各種情報と現状に差異がある場合は、現状優先となります。問い合わせをすることで、より詳しい条件、情報を確認する事ができます。
提供:いい部屋ネット天王寺店(株)アイホーム(SUUMO経由)
この物件が気になったら掲載期限まであと10日
プレサンス天王寺ヴィヴァンの空き部屋一覧
全部で87の空き部屋があります。
プレサンス天王寺ヴィヴァンに条件(家賃・エリア)が近い物件一覧
| 写真 | 家賃 管理費等 | 敷金 礼金 | 間取り 専有面積 | 築年数 | 最寄り駅 所在地 | キープ | 詳細 |
|---|---|---|---|---|---|---|---|
アパート レオパレスKアンドS(1K/2階) | |||||||
| 5.9万円 5,000円 | なし 5.9万円 | 1K 19.87m2 | 築19年 | 阪急電鉄京都線 摂津市駅 徒歩13分 東海道本線 千里丘駅 徒歩14分 東海道本線 岸辺駅 徒歩16分 大阪府摂津市千里丘4丁目9-12 | 詳細を見る | ||
アパート CASA DEL CANARIO諏訪ノ森(1K/2階) | |||||||
![]() | 5万円 3,000円 | なし なし | 1K 19.98m2 | 築11年 | 南海電鉄南海本線 諏訪ノ森駅 徒歩3分 南海電鉄南海本線 浜寺公園駅 徒歩15分 南海電鉄南海本線 石津川駅 徒歩15分 大阪府堺市西区浜寺諏訪森町西2丁 | 詳細を見る | |
アパート ルミエール船尾(1K/1階) | |||||||
![]() | 4.2万円 3,000円 | なし 4.2万円 | 1K 23.59m2 | 築25年 | 阪堺電気軌道阪堺線 船尾駅(大阪) 徒歩11分 南海電鉄南海本線 諏訪ノ森駅 徒歩15分 阪和線 津久野駅 徒歩20分 大阪府堺市西区浜寺船尾町西3丁 | 詳細を見る | |
アパート フジパレス大和田Ⅴ番館(1LDK/1階) | |||||||
![]() | 6.45万円 5,000円 | なし 10万円 | 1LDK 33.18m2 | 築1年 | 京阪電気鉄道京阪線 大和田駅(大阪) 徒歩6分 京阪電気鉄道京阪線 古川橋駅 徒歩11分 京阪電気鉄道京阪線 萱島駅 徒歩18分 大阪府門真市常盤町 | 詳細を見る | |
マンション エルプレイス江坂II(1K/2階) | |||||||
| 9.5万円 なし | 19万円 19万円 | 1K 25.26m2 | 築3年 | 大阪市御堂筋線 江坂駅 徒歩7分 阪急電鉄千里線 豊津駅(大阪) 徒歩12分 阪急電鉄千里線 関大前駅 徒歩18分 大阪府吹田市垂水町3丁目22-16 | 詳細を見る | ||
マンション LUXE布施南(1K/4階) | |||||||
![]() | 5.9万円 7,000円 | なし なし | 1K 22.32m2 | 築3年 | 大阪市千日前線 北巽駅 徒歩12分 おおさか東線 JR長瀬駅 徒歩14分 近鉄大阪線 布施駅 徒歩14分 大阪府東大阪市岸田堂南町 | 詳細を見る | |
マンション つばさハイツ(1K/4階) | |||||||
| 3.9万円 4,000円 | なし 3.9万円 | 1K 18.22m2 | 築33年 | 大阪モノレール本線 南摂津駅 徒歩20分 大阪モノレール本線 摂津駅 徒歩35分 大阪モノレール本線 大日駅 徒歩41分 大阪府摂津市鳥飼西3丁目5-13 | 詳細を見る | ||
マンション プレサンスNEO大和田STATIONベゼル(1K/11階) | |||||||
![]() | 7.119万円 6,810円 | なし 10万円 | 1K 25.8m2 | 築1年 | 京阪電気鉄道京阪線 大和田駅(大阪) 徒歩1分 京阪電気鉄道京阪線 萱島駅 徒歩10分 京阪電気鉄道京阪線 古川橋駅 徒歩15分 大阪府門真市野里町 | 詳細を見る | |






