賃貸マンション
ザ・パークハビオ江古田の賃貸物件情報(2LDK/4階)
| 家賃 | 管理費等 | 敷金 | 礼金 | 間取り | 専有面積 |
|---|---|---|---|---|---|
| 21.7万円 | 2.5万円 | 21.7万円 | なし | 2LDK | 50.74m2 |
入居決定でお祝い金最大100,000円
Point
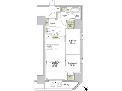
収納はシューズボックス・クロゼットなどが備え付けられているので、衣類や日用品の収納に重宝します。
提供:三菱地所ハウスネット(株)首都圏リーシング部(SUUMO経由)

詳細情報 ザ・パークハビオ江古田
物件紹介
ザ・パークハビオ江古田は西武池袋・豊島線江古田駅から徒歩2分にあり、駅近で通勤通学に便利なマンションです。
このお部屋は2階以上に位置しているので、通行人や周囲の住人からの視線が気になりにくく、防犯面でも安心。建物のエントランスはオートロックがついており、インターホンにはTVモニタもついているため、相手の顔を確認してから来客対応することができます。
こちらは楽器相談が可能な物件。楽器演奏をお考えの方はぜひ相談してみてください。人気の南向き・フローリングのお部屋。角部屋でもあるため、周囲の居住者の生活音も気になりにくい場所です。室内にはウォークインクローゼットがありますので、たくさんの荷物も効率的に収納ができます。キッチンはシステムキッチン仕様になっていますので、お料理好きの方にもぴったり。バス・トイレは別なので、のんびりお風呂タイムも楽しめるでしょう。また、雨の日でも浴室乾燥機を使えば、お洗濯も問題ありません。
通信設備面では、インターネットが無料で使えるので、月々の出費を抑えられるのも魅力です。また、BSアンテナ・CSアンテナがありCATVにも対応しているので、おうち時間も充実するでしょう(別途工事、BS・CS・CATVの契約料等が必要な場合あり)。
建物にはエレベーターがついているので、重い荷物があっても安心。共用部には宅配ボックスが設定されているので、不在の時にも荷物を受け取ることができます。また、ペット飼育の相談ができますので、あなたの大切な家族の一員も快適に暮らせるか、ぜひ確認してみてください。
コンビニまで徒歩7分の場所にあり、日用品や食料品のお買い物にも便利です。
このお部屋は2階以上に位置しているので、通行人や周囲の住人からの視線が気になりにくく、防犯面でも安心。建物のエントランスはオートロックがついており、インターホンにはTVモニタもついているため、相手の顔を確認してから来客対応することができます。
こちらは楽器相談が可能な物件。楽器演奏をお考えの方はぜひ相談してみてください。人気の南向き・フローリングのお部屋。角部屋でもあるため、周囲の居住者の生活音も気になりにくい場所です。室内にはウォークインクローゼットがありますので、たくさんの荷物も効率的に収納ができます。キッチンはシステムキッチン仕様になっていますので、お料理好きの方にもぴったり。バス・トイレは別なので、のんびりお風呂タイムも楽しめるでしょう。また、雨の日でも浴室乾燥機を使えば、お洗濯も問題ありません。
通信設備面では、インターネットが無料で使えるので、月々の出費を抑えられるのも魅力です。また、BSアンテナ・CSアンテナがありCATVにも対応しているので、おうち時間も充実するでしょう(別途工事、BS・CS・CATVの契約料等が必要な場合あり)。
建物にはエレベーターがついているので、重い荷物があっても安心。共用部には宅配ボックスが設定されているので、不在の時にも荷物を受け取ることができます。また、ペット飼育の相談ができますので、あなたの大切な家族の一員も快適に暮らせるか、ぜひ確認してみてください。
コンビニまで徒歩7分の場所にあり、日用品や食料品のお買い物にも便利です。
お金・契約の情報
※「-」と表示されているものは、実際は料金が発生するものもございます。詳細はお問い合わせください。
| 家賃 | 21.7万円 | 管理費・共益費 | 2.5万円 |
|---|---|---|---|
| 敷金 | 21.7万円 | 礼金 | なし |
| 入居決定でお祝い金最大100,000円 | |||
| 保証金 | - | 償却・敷引 | - |
| 住宅保険料 | 1円 | 更新料 | - |
| 保証会社利用 | 必須 | 保証会社名 | - |
| 保証会社費用 | - | 保証会社備考 | 賃料等合計額の50% 2年目以降:1年毎1万円(個人) |
| 契約形態 | - | 契約期間 | 2年 |
| 入居・引渡期間 | 2026年02月上旬 | 現況 | 未完成 |
| 入居可能条件 | 事務所可、2人入居可、楽器可、ペット可 | ||
| 契約備考 | ペット飼育時条件変更有 その他設備/条件:室内洗濯機置き場、ごみ出し24時間OK、独立洗面台、防犯カメラ、ルームシェア不可、クローゼット、シューズボックス | ||
部屋の情報
| 間取り | 2LDK | 専有面積 | 50.74m2 |
|---|---|---|---|
| 所在階 / 向き | 4階 / 南西 | バルコニー面積 | - |
| 水道 / ガス | 水道【公営】、ガス【都市】 | ||
| 設備 | バス・トイレ別、オートロック、テレビドアホン、宅配ボックス、浴室乾燥機、ウォークインクローゼット、追い焚き、システムキッチン、カウンターキッチン、エアコン、エレベーター、温水洗浄便座、バルコニー、フローリング、洗髪洗面化粧台、コンロ:ガス、CSアンテナ、BSアンテナ、シャワー、給湯 | ||
| 当社物件ID | 160107592 | ||
建物の情報
| 建物名 | ザ・パークハビオ江古田 | ||
|---|---|---|---|
| 所在地 | 東京都練馬区旭丘1丁目 | ||
| 交通 | 西武池袋・豊島線 江古田駅 徒歩2分 東京都大江戸線 新江古田駅 徒歩7分 | ||
| 階数 | 14階建 | 総戸数 | - |
| 築年月 | 2026年01月 / 新築 | エレベーター | あり |
| 駐車場 | 空有 3.52万円/月 | バイク置き場 | あり |
| 駐輪場 | あり | 管理人/管理会社 | - |
| 周辺環境 | コンビニ 徒歩7分(530m) 販売店 徒歩14分(1053m) その他 ドラッグストア その他 公園 その他 銀行 その他 * | ||
| 建物種別 | マンション | 建物構造 | RC(鉄筋コンクリート) |
この部屋の取扱い不動産会社
| 会社名 | ハウスコム東東京株式会社 池袋西口店 | ||
|---|---|---|---|
| 所在地 | 東京都豊島区19-6松長ビル2階 | 交通 | - |
| 営業時間 | 10:00~18:00 | 定休日 | - |
| 免許番号 | 東京都知事(1)第108283号 | 取引態様 | 仲介 |
| 不動産会社管理番号 | HC2-5304294-407-0113 | 当社管理番号 | 468 |
| 所属団体 | 、 | ||
| 取扱い物件情報 | 物件詳細へ | ||
※各種情報と現状に差異がある場合は、現状優先となります。問い合わせをすることで、より詳しい条件、情報を確認する事ができます。
提供:ハウスコム東東京株式会社 池袋西口店
この物件が気になったら掲載期限まであと4日
ザ・パークハビオ江古田の空き部屋一覧
全部で22の空き部屋があります。
ザ・パークハビオ江古田に条件(家賃・エリア)が近い物件一覧
| 写真 | 家賃 管理費等 | 敷金 礼金 | 間取り 専有面積 | 築年数 | 最寄り駅 所在地 | キープ | 詳細 |
|---|---|---|---|---|---|---|---|
マンション 御殿山パークシティ(1LDK/2階) | |||||||
![]() | 17.2万円 4,000円 | 17.2万円 17.2万円 | 1LDK 47.67m2 | 築18年 | JR総武線 三鷹駅 徒歩10分 JR中央線 吉祥寺駅 徒歩15分 東京都武蔵野市御殿山 | 詳細を見る | |
マンション ヘーベルメゾンときわ台(1LDK/1階) | |||||||
![]() | 16.1万円 8,000円 | 16.1万円 16.1万円 | 1LDK 50.46m2 | 築4年 | 東武東上線 ときわ台駅(東京) 徒歩3分 東武東上線 中板橋駅 徒歩13分 都営三田線 板橋本町駅 徒歩24分 東京都板橋区南常盤台 | 詳細を見る | |
マンション ニズニータワーハウス(2LDK/4階) | |||||||
![]() | 17万円 8,000円 | 34万円 なし | 2LDK 66.96m2 | 築28年 | 西武新宿線 上井草駅 徒歩8分 西武新宿線 井荻駅 徒歩10分 西武新宿線 上石神井駅 徒歩21分 東京都練馬区下石神井 | 詳細を見る | |
マンション ブレッシア石神井公園(1LDK/3階) | |||||||
![]() | 14.1万円 7,000円 | 14.1万円 14.1万円 | 1LDK 40.56m2 | 築1年 | 西武池袋・豊島線 大泉学園駅 徒歩15分 西武池袋・豊島線 石神井公園駅 徒歩16分 東京都練馬区石神井町8丁目 | 詳細を見る | |
マンション コンフォリア高島平-I(3LDK/2階) | |||||||
![]() | 19.5万円 1.5万円 | 19.5万円 なし | 3LDK 75.6m2 | 築31年 | 都営三田線 高島平駅 徒歩10分 都営三田線 新高島平駅 徒歩19分 都営三田線 西台駅 徒歩22分 東京都板橋区新河岸 | 詳細を見る | |
マンション 岩崎エステートビル(1LDK/4階) | |||||||
![]() | 14万円 1.5万円 | 14万円 14万円 | 1LDK 65.69m2 | 築41年 | 中央本線 三鷹駅 徒歩5分 東京都武蔵野市中町1丁目 | 詳細を見る | |
マンション ザ・パークハビオ巣鴨(ワンルーム/6階) | |||||||
![]() | 13.1万円 1.5万円 | 13.1万円 なし | ワンルーム 25.48m2 | 築8年 | 都営三田線 巣鴨駅 徒歩6分 JR山手線 巣鴨駅 徒歩8分 JR山手線 大塚駅(東京) 徒歩13分 東京都豊島区巣鴨 | 詳細を見る | |








