賃貸アパート
コアン・クレールBの賃貸物件情報(2DK/2階)
| 家賃 | 管理費等 | 敷金 | 礼金 | 間取り | 専有面積 |
|---|---|---|---|---|---|
| 5.5万円 | 3,300円 | なし | なし | 2DK | 54.66m2 |
入居決定でお祝い金最大100,000円
Point
お部屋探しは青の看板が目印のアパマンショプで!
提供:株式会社 京都ライフ 山科店(賃貸スモッカ経由)

詳細情報 コアン・クレールB
物件紹介
コアン・クレールBは京阪石山坂本線滋賀里駅から徒歩5分にあり、駅近で通勤通学に便利なアパートです。
このお部屋は2階以上に位置しているので、通行人や周囲の住人からの視線が気になりにくく、防犯面でも安心。インターホンにはTVモニタもついているため、相手の顔を確認してから来客対応することができます。
人気の南向き・フローリングのお部屋。角部屋でもあるため、周囲の居住者の生活音も気になりにくい場所です。室内にはウォークインクローゼットがありますので、たくさんの荷物も効率的に収納ができます。バス・トイレ別の仕様で、のんびりお風呂タイムも楽しめます。
通信設備面ではBSアンテナがありますので、おうち時間も充実するでしょう(別途工事、契約料が必要な場合あり)。
このお部屋は2階以上に位置しているので、通行人や周囲の住人からの視線が気になりにくく、防犯面でも安心。インターホンにはTVモニタもついているため、相手の顔を確認してから来客対応することができます。
人気の南向き・フローリングのお部屋。角部屋でもあるため、周囲の居住者の生活音も気になりにくい場所です。室内にはウォークインクローゼットがありますので、たくさんの荷物も効率的に収納ができます。バス・トイレ別の仕様で、のんびりお風呂タイムも楽しめます。
通信設備面ではBSアンテナがありますので、おうち時間も充実するでしょう(別途工事、契約料が必要な場合あり)。
お金・契約の情報
※「-」と表示されているものは、実際は料金が発生するものもございます。詳細はお問い合わせください。
| 家賃 | 5.5万円 | 管理費・共益費 | 3,300円 |
|---|---|---|---|
| 敷金 | なし | 礼金 | なし |
| 入居決定でお祝い金最大100,000円 | |||
| 保証金 | - | 償却・敷引 | - |
| 住宅保険料 | - | 更新料 | - |
| 保証会社利用 | 必須 | 保証会社名 | ハウスリーブ株式会社 |
| 保証会社費用 | - | 保証会社備考 | 契約時保証委託料:2.2万/月額保証委託料:賃料総額の2.2%又は5.5% ※ペット可は2.5万/2.5% |
| 契約形態 | - | 契約期間 | 2年 |
| 入居・引渡期間 | 2026年03月上旬 | 現況 | - |
| 契約備考 | 更新事務手数料 22,000円、月額賃料等収納手数料170円がかかります。契約時にクリーニング費60,000円、鍵セット費3,300円(税込)が必要となります。貸主インボイス登録あり 24時間サポート(課税対象) 330円/クリーニング費 60000円 | ||
部屋の情報
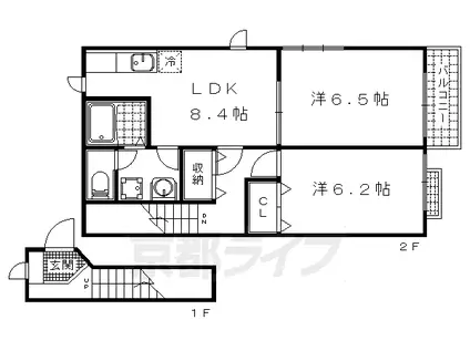
| 間取り | 2DK | 専有面積 | 54.66m2 |
|---|---|---|---|
| 所在階 / 向き | 2階 / 東 | バルコニー面積 | - |
| 水道 / ガス | ガス【都市】 | ||
| 設備 | バス・トイレ別、テレビドアホン、追い焚き、温水洗浄便座、バルコニー、BSアンテナ、シャワー、洗濯機:室内 | ||
| 当社物件ID | 412612 | ||
建物の情報
| 建物名 | コアン・クレールB | ||
|---|---|---|---|
| 所在地 | 滋賀県大津市滋賀里4丁目 | ||
| 交通 | 湖西線 唐崎駅 徒歩10分 | ||
| 階数 | 2階建 | 総戸数 | 4戸 |
| 築年月 | 2002年11月 / 築24年 | エレベーター | - |
| 駐車場 | 空有 5,500円/月 | バイク置き場 | - |
| 駐輪場 | あり | 管理人/管理会社 | - |
| 周辺環境 | その他 ファミリーマート 徒歩7分(500m) その他 滋賀銀行 唐崎支店 徒歩4分(280m) その他 湖西線唐崎駅 徒歩10分(750m) その他 フレンドマート 徒歩7分(500m) | ||
| 建物種別 | アパート | 建物構造 | 鉄骨造 |
この部屋の取扱い不動産会社
| 会社名 | アパマンショップ大津店 | ||
|---|---|---|---|
| 所在地 | 滋賀県大津市御幸町 1−2 1F | 交通 | 東海道本線大津から徒歩2分 |
| 営業時間 | 10:00〜18:00 | 定休日 | 水曜日 |
| 免許番号 | 滋賀県知事(8)2169 | 取引態様 | 仲介 |
| 不動産会社管理番号 | 78252041 | 当社管理番号 | 4 |
| 所属団体 | (公社)全日本不動産協会滋賀県本部 | ||
| 公正取引協議会 | (公社) 近畿地区不動産公正取引協議会加盟 | ||
| 取扱い物件情報 | 物件詳細へ | ||
※各種情報と現状に差異がある場合は、現状優先となります。問い合わせをすることで、より詳しい条件、情報を確認する事ができます。
提供:アパマンショップ大津店
この物件が気になったら掲載期限まであと13日
コアン・クレールBに条件(家賃・エリア)が近い物件一覧
| 写真 | 家賃 管理費等 | 敷金 礼金 | 間取り 専有面積 | 築年数 | 最寄り駅 所在地 | キープ | 詳細 |
|---|---|---|---|---|---|---|---|
マンション ガーデンスクエア瀬田(2LDK/5階) | |||||||
![]() | 6.2万円 6,000円 | なし 6.2万円 | 2LDK 48.33m2 | 築36年 | 東海道本線 瀬田駅(滋賀) 徒歩8分 滋賀県大津市一里山3丁目 | 詳細を見る | |
アパート D-ROOM平井A棟(1LDK/3階) | |||||||
![]() | 8.6万円 9,000円 | なし 15万円 | 1LDK 43.61m2 | 築1年 | JR東海道本線 草津駅(滋賀) 徒歩26分 JR東海道本線 栗東駅 徒歩28分 JR東海道本線 守山駅(滋賀) 徒歩59分 滋賀県草津市平井町 | 詳細を見る | |
アパート ヴェルコートA棟B棟(2LDK/1階) | |||||||
![]() | 7.3万円 5,500円 | なし 7.3万円 | 2LDK 59.24m2 | 築16年 | 湖西線 比叡山坂本駅 徒歩7分 京阪電気鉄道石坂線 坂本比叡山口駅 徒歩14分 滋賀県大津市坂本7丁目 | 詳細を見る | |
一戸建て 東海道本線 膳所駅 徒歩6分 築59年(2DK) | |||||||
![]() | 5.1万円 なし | 5.1万円 5.1万円 | 2DK 34.04m2 | 築59年 | 東海道本線 膳所駅 徒歩6分 京阪電気鉄道石坂線 京阪膳所駅 徒歩6分 東海道本線 大津駅 徒歩23分 滋賀県大津市湖城が丘 | 詳細を見る | |
アパート 夢咲きの里GH G(ワンルーム/1階) | |||||||
![]() | 5.1万円 5,000円 | なし 7万円 | ワンルーム 33.53m2 | 築18年 | JR草津線 寺庄駅 徒歩11分 JR草津線 甲南駅 徒歩22分 JR草津線 貴生川駅 徒歩59分 滋賀県甲賀市甲南町寺庄 | 詳細を見る | |
マンション CASA瀬田の唐橋(ワンルーム/2階) | |||||||
![]() | 7万円 6,000円 | なし なし | ワンルーム 30.83m2 | 築1年 | 京阪電気鉄道石坂線 唐橋前駅 徒歩9分 東海道本線 石山駅 徒歩19分 東海道本線 瀬田駅(滋賀) 徒歩36分 滋賀県大津市瀬田2丁目 | 詳細を見る | |
マンション RADIER MARU.T(1DK/2階) | |||||||
![]() | 5.8万円 7,000円 | なし 5.8万円 | 1DK 29.84m2 | 築15年 | 東海道本線 瀬田駅(滋賀) 徒歩12分 東海道本線 石山駅 徒歩37分 滋賀県大津市一里山4丁目 | 詳細を見る | |
マンション シェモア稲葉台(1LDK/3階) | |||||||
![]() | 5.6万円 4,000円 | なし なし | 1LDK 48m2 | 築31年 | 京阪電気鉄道京津線 追分駅(滋賀) 徒歩7分 京阪電気鉄道京津線 四宮駅 徒歩15分 滋賀県大津市稲葉台 | 詳細を見る | |








