賃貸マンション
ブラン靭公園の賃貸物件情報(1LDK/10階)
| 家賃 | 管理費等 | 敷金 | 礼金 | 間取り | 専有面積 |
|---|---|---|---|---|---|
| 10.2万円 | 8,000円 | なし | 15万円 | 1LDK | 38m2 |
入居決定でお祝い金最大100,000円
- 保証金
- -
- 償却・敷引
- -
- 築年数
- 築13年
- 所在階
- 10階
- 向き
- -
Point
次の『お問い合せ』の画面でお電話番号のご入力をください。 〔対象物件の仲介手数料割引〕〔内覧予約の優遇〕などの特典がございます。【弊社では初期費用を分割後払いでご利用可能です】
提供:住まいるーむ 本町店(株)フロムディ(SUUMO経由)

詳細情報 ブラン靭公園
物件紹介
ブラン靭公園は地下鉄千日前線阿波座駅から徒歩5分にあり、駅近で通勤通学に便利なマンションです。
このお部屋は2階以上に位置しているので、通行人や周囲の住人からの視線が気になりにくく、防犯面でも安心。建物のエントランスはオートロックがついており、インターホンにはTVモニタもついているため、相手の顔を確認してから来客対応することができます。
人気の角部屋で周囲の居住者の生活音も気になりにくく、また、フローリングのお部屋なのでお掃除もラクラク。キッチンはシステムキッチン仕様になっていますので、お料理好きの方にもぴったり。また、バス・トイレは別で、のんびりお風呂タイムも楽しめるでしょう。
通信設備面では、インターネット接続が可能です(別途工事、契約料が必要な場合あり)。
建物にはエレベーターがついているので、重い荷物があっても安心。共用部には宅配ボックスが設定されているので、不在の時にも荷物を受け取ることができます。
このお部屋は2階以上に位置しているので、通行人や周囲の住人からの視線が気になりにくく、防犯面でも安心。建物のエントランスはオートロックがついており、インターホンにはTVモニタもついているため、相手の顔を確認してから来客対応することができます。
人気の角部屋で周囲の居住者の生活音も気になりにくく、また、フローリングのお部屋なのでお掃除もラクラク。キッチンはシステムキッチン仕様になっていますので、お料理好きの方にもぴったり。また、バス・トイレは別で、のんびりお風呂タイムも楽しめるでしょう。
通信設備面では、インターネット接続が可能です(別途工事、契約料が必要な場合あり)。
建物にはエレベーターがついているので、重い荷物があっても安心。共用部には宅配ボックスが設定されているので、不在の時にも荷物を受け取ることができます。
お金・契約の情報
※「-」と表示されているものは、実際は料金が発生するものもございます。詳細はお問い合わせください。
| 家賃 | 10.2万円 | 管理費・共益費 | 8,000円 |
|---|---|---|---|
| 敷金 | なし | 礼金 | 15万円 |
| 入居決定でお祝い金最大100,000円 | |||
| 保証金 | - | 償却・敷引 | - |
| 住宅保険料 | - | 更新料 | - |
| 保証会社利用 | 必須 | 保証会社名 | - |
| 保証会社費用 | - | 保証会社備考 | 保証会社利用必 都度、お問い合わせくださいませ。 |
| 契約形態 | - | 契約期間 | - |
| 入居・引渡期間 | 即時 | 現況 | - |
| 契約備考 | 巡回管理/何社も不動産屋さんに足を運ぶことなくすべて一括でご案内可能です。弊社は地域密着型なので情報量と物件知識で内見から入居までのサポートお任せください!引っ越しでのお悩みは何でもお気軽にご相談ください♪周辺エリアを熟知したスタッフが問題解決まで徹底サポートいたします!オンライン内見でのお部屋探しに対応しているので、ご自宅から物件内覧・契約手続きが可能です! 1LDK 普通借家2年 損保【要】 バストイレ別、バルコニー、エアコン、ガスコンロ対応、クロゼット、フローリング、シャワー付洗面台、TVインターホン、オートロック、室内洗濯置、陽当り良好、シューズボックス、システムキッチン、角住戸、温水洗浄便座、脱衣所、エレベーター、洗面所独立、洗面化粧台、2口コンロ、駐輪場、宅配ボックス、光ファイバー、即入居可、最上階、防犯カメラ、保証人不要、2沿線利用可、ディンプルキー、ネット専用回線、眺望良好、24時間換気システム、2駅利用可、3駅以上利用可、駅徒歩5分以内、駅徒歩10分以内、高層階、24時間ゴミ出し可、敷地内ごみ置き場、防犯モデルマンション、セキュリティ会社加入済、都市ガス、洗面所にドア、シューズWIC、IT重説対応物件、通風良好 | ||
部屋の情報
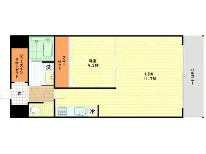
| 間取り | 1LDK | 専有面積 | 38m2 |
|---|---|---|---|
| 所在階 / 向き | 10階 / - | バルコニー面積 | - |
| 水道 / ガス | - | ||
| 設備 | バス・トイレ別、2階以上、オートロック、テレビドアホン、宅配ボックス、インターネット対応、システムキッチン、エアコン、エレベーター、温水洗浄便座、角部屋、バルコニー、フローリング、洗髪洗面化粧台、2口コンロ、コンロ:ガス、洗濯機:室内 | ||
| 当社物件ID | 7850796 | ||
建物の情報
| 建物名 | ブラン靭公園 | ||
|---|---|---|---|
| 所在地 | 大阪府大阪市西区靱本町 | ||
| 交通 | 地下鉄千日前線 阿波座駅 徒歩5分 地下鉄長堀鶴見緑地線 西長堀駅 徒歩11分 地下鉄長堀鶴見緑地線 西大橋駅 徒歩12分 | ||
| 階数 | 10階建 | 総戸数 | - |
| 築年月 | 2013年02月 / 築13年 | エレベーター | あり |
| 駐車場 | 近隣 200m20000円 | バイク置き場 | - |
| 駐輪場 | あり | 管理人/管理会社 | - |
| 周辺環境 | その他 ライフ Miniel西本町店(スーパー)まで291m その他 ローソン 西本町三丁目店(コンビニ)まで304m その他 ライフ 阿波座駅前店(スーパー)まで299m その他 セブンイレブン 大阪靱本町2丁目店(コンビニ)まで306m その他 ファミリーマート 西本町なにわ筋店(コンビニ)まで490m その他 西警察署 立売堀交番(警察署・交番)まで657m | ||
| 建物種別 | マンション | 建物構造 | RC(鉄筋コンクリート) |
この部屋の取扱い不動産会社
| 会社名 | 住まいるーむ 本町店(株)フロムディ(SUUMO経由) | ||
|---|---|---|---|
| 所在地 | 大阪府大阪市西区西本町1-12-1 | 交通 | - |
| 営業時間 | 10:00~20:00 | 定休日 | 年末年始 |
| 免許番号 | 大阪府知事63117 | 取引態様 | 仲介 |
| 不動産会社管理番号 | 100478663472 | 当社管理番号 | 89 |
| 所属団体 | (一社)大阪府宅地建物取引業協会会員 | ||
| 公正取引協議会 | (公社)近畿地区不動産公正取引協議会加盟 | ||
| 取扱い物件情報 | 物件詳細へ | ||
※各種情報と現状に差異がある場合は、現状優先となります。問い合わせをすることで、より詳しい条件、情報を確認する事ができます。
提供:住まいるーむ 本町店(株)フロムディ(SUUMO経由)
この物件が気になったら掲載期限まであと10日
ブラン靭公園に条件(家賃・エリア)が近い物件一覧
| 写真 | 家賃 管理費等 | 敷金 礼金 | 間取り 専有面積 | 築年数 | 最寄り駅 所在地 | キープ | 詳細 |
|---|---|---|---|---|---|---|---|
マンション サル ドゥ セジュール(1DK/2階) | |||||||
![]() | 6.3万円 5,200円 | なし 6.3万円 | 1DK 36.65m2 | 築15年 | 近鉄難波・奈良線 若江岩田駅 徒歩10分 近鉄けいはんな線 荒本駅 徒歩14分 近鉄難波・奈良線 河内花園駅 徒歩19分 大阪府東大阪市菱屋東 | 詳細を見る | |
アパート メゾンCOCO垂水(1DK/2階) | |||||||
| 8.3万円 5,000円 | なし 16.6万円 | 1DK 30.03m2 | 新築 | 阪急電鉄千里線 豊津駅(大阪) 徒歩7分 阪急電鉄千里線 関大前駅 徒歩10分 大阪市御堂筋線 江坂駅 徒歩18分 大阪府吹田市垂水町1丁目17-3 | 詳細を見る | ||
アパート カーサバウム(1K/1階) | |||||||
![]() | 6.2万円 なし | 2万円 13万円 | 1K 23.75m2 | 築25年 | 阪和線 鳳駅 徒歩8分 阪和線 津久野駅 徒歩16分 南海電鉄南海本線 浜寺公園駅 徒歩20分 大阪府堺市西区鳳北町2丁 | 詳細を見る | |
一戸建て 京阪電気鉄道京阪線 萱島駅 徒歩14分 築10年(4LDK) | |||||||
![]() | 13.5万円 9,000円 | なし 40.5万円 | 4LDK 83.83m2 | 築10年 | 京阪電気鉄道京阪線 萱島駅 徒歩14分 大阪府門真市宮前町 | 詳細を見る | |
アパート 南海電鉄泉北線 深井駅 徒歩10分 築1年(1LDK/2階) | |||||||
![]() | 7.3万円 4,300円 | なし 15万円 | 1LDK 40.11m2 | 築1年 | 南海電鉄泉北線 深井駅 徒歩10分 阪和線 上野芝駅 徒歩39分 阪和線 津久野駅 徒歩49分 大阪府堺市中区土師町4丁 | 詳細を見る | |
アパート 南海電鉄泉北線 深井駅 徒歩8分 築22年(2LDK/2階) | |||||||
![]() | 8.2万円 5,000円 | なし 16.4万円 | 2LDK 60.98m2 | 築22年 | 南海電鉄泉北線 深井駅 徒歩8分 阪和線 上野芝駅 徒歩32分 阪和線 津久野駅 徒歩37分 大阪府堺市中区深井水池町 | 詳細を見る | |
アパート メゾン フルール(1LDK/2階) | |||||||
![]() | 6.3万円 2,900円 | なし 6.3万円 | 1LDK 42.47m2 | 築12年 | 近鉄南大阪線 布忍駅 徒歩7分 近鉄南大阪線 高見ノ里駅 徒歩10分 近鉄南大阪線 河内天美駅 徒歩15分 大阪府松原市南新町1丁目 | 詳細を見る | |
マンション クレストコート江坂垂水町(1DK/5階) | |||||||
| 9.3万円 8,000円 | なし なし | 1DK 25.32m2 | 築1年 | 北大阪急行南北線 江坂駅 徒歩10分 阪急電鉄千里線 豊津駅(大阪) 徒歩10分 阪急電鉄千里線 吹田駅(阪急) 徒歩20分 大阪府吹田市垂水町3丁目16以下 | 詳細を見る | ||







