賃貸アパート
ルミエール下條の賃貸物件情報(1K/1階)
| 家賃 | 管理費等 | 敷金 | 礼金 | 間取り | 専有面積 |
|---|---|---|---|---|---|
| 4.5万円 | 2,000円 | なし | なし | 1K | 26.86m2 |
入居決定でお祝い金最大100,000円
- 保証金
- -
- 償却・敷引
- -
- 築年数
- 築23年
- 所在階
- 1階
- 向き
- 南西
Point
お風呂・トイレ・洗面台全て独立しておりまして、脱衣所もございます!この立地で、賃料・共益費込でまさかの5万円になります!!
提供:ピタットハウス三宮店(株)ライブデザイン(SUUMO経由)

詳細情報 ルミエール下條
物件紹介
ルミエール下條は山陽電鉄本線西代駅から徒歩7分にあり、駅近で通勤通学に便利なアパートです。
このお部屋のインターホンにはTVモニタがついているため、相手の顔を確認してから来客対応することができます。
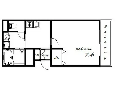
人気の南向き・フローリングのお部屋。角部屋でもあるため、周囲の居住者の生活音も気になりにくい場所です。キッチンはシステムキッチン仕様になっていますので、お料理好きの方にもぴったり。バス・トイレは別なので、のんびりお風呂タイムも楽しめるでしょう。また、雨の日でも浴室乾燥機を使えば、お洗濯も問題ありません。
通信設備面では、インターネット接続が可能です。また、BSアンテナ・CSアンテナがありCATVにも対応しているので、おうち時間も充実するでしょう(別途工事、契約料が必要な場合あり)。
このお部屋のインターホンにはTVモニタがついているため、相手の顔を確認してから来客対応することができます。
人気の南向き・フローリングのお部屋。角部屋でもあるため、周囲の居住者の生活音も気になりにくい場所です。キッチンはシステムキッチン仕様になっていますので、お料理好きの方にもぴったり。バス・トイレは別なので、のんびりお風呂タイムも楽しめるでしょう。また、雨の日でも浴室乾燥機を使えば、お洗濯も問題ありません。
通信設備面では、インターネット接続が可能です。また、BSアンテナ・CSアンテナがありCATVにも対応しているので、おうち時間も充実するでしょう(別途工事、契約料が必要な場合あり)。
お金・契約の情報
※「-」と表示されているものは、実際は料金が発生するものもございます。詳細はお問い合わせください。
| 家賃 | 4.5万円 | 管理費・共益費 | 2,000円 |
|---|---|---|---|
| 敷金 | なし | 礼金 | なし |
| 入居決定でお祝い金最大100,000円 | |||
| 保証金 | - | 償却・敷引 | - |
| 住宅保険料 | - | 更新料 | - |
| 保証会社利用 | 必須 | 保証会社名 | - |
| 保証会社費用 | - | 保証会社備考 | 保証会社利用必 総賃料の50% |
| 契約形態 | - | 契約期間 | - |
| 入居・引渡期間 | 即時 | 現況 | - |
| 契約備考 | 1K 単身者可 普通借家2年 バストイレ別、バルコニー、エアコン、クロゼット、フローリング、浴室乾燥機、室内洗濯置、陽当り良好、シューズボックス、システムキッチン、角住戸、脱衣所、洗面所独立、洗面化粧台、2口コンロ、駐輪場、CATV、即入居可、閑静な住宅地、BS・CS、バイク置場、全居室フローリング、眺望良好、ダブルロックキー、雨戸、高台に立地、3駅以上利用可、3沿線以上利用可、駅徒歩10分以内、南西向き、プロパンガス、洗面所にドア、敷金・礼金不要、IT重説対応物件、LGBTフレンドリー、初期費用カード決済可、通風良好 | ||
部屋の情報
| 間取り | 1K | 専有面積 | 26.86m2 |
|---|---|---|---|
| 所在階 / 向き | 1階 / 南西 | バルコニー面積 | - |
| 水道 / ガス | - | ||
| 設備 | バス・トイレ別、浴室乾燥機、システムキッチン、エアコン、南向き、角部屋、バルコニー、フローリング、洗髪洗面化粧台、2口コンロ、CATV、CSアンテナ、BSアンテナ、洗濯機:室内 | ||
| 当社物件ID | 24262617 | ||
建物の情報
| 建物名 | ルミエール下條 | ||
|---|---|---|---|
| 所在地 | 兵庫県神戸市長田区大谷町 | ||
| 交通 | 山陽電鉄本線 西代駅 徒歩7分 JR山陽本線 新長田駅 徒歩13分 地下鉄西神・山手線 新長田駅 徒歩13分 | ||
| 階数 | 2階建 | 総戸数 | - |
| 築年月 | 2003年10月 / 築23年 | エレベーター | - |
| 駐車場 | 近隣 100m18000円 | バイク置き場 | あり |
| 駐輪場 | あり | 管理人/管理会社 | - |
| 周辺環境 | その他 神戸常盤大学図書館(図書館)まで304m その他 神戸常盤短期大学附属(その他)まで421m その他 サーバ長田戸崎通店(ドラッグストア)まで557m その他 いたやどクリニック(病院)まで516m その他 ライフ 西代店(スーパー)まで636m その他 ガスト長田御屋敷通店(その他)まで604m | ||
| 建物種別 | アパート | 建物構造 | 鉄骨造 |
この部屋の取扱い不動産会社
| 会社名 | ピタットハウス姫路駅南口店(株)ライブデザイン(SUUMO経由) | ||
|---|---|---|---|
| 所在地 | 兵庫県姫路市南駅前町 100 ホテル日航姫路1階 | 交通 | - |
| 営業時間 | 09:00~19:00 | 定休日 | 年中無休 |
| 免許番号 | 国土交通大臣10464 | 取引態様 | 仲介 |
| 不動産会社管理番号 | 100460488574 | 当社管理番号 | 89 |
| 所属団体 | (公社)全日本不動産協会兵庫県本部会員 | ||
| 公正取引協議会 | (公社)近畿地区不動産公正取引協議会加盟 | ||
| 取扱い物件情報 | 物件詳細へ | ||
※各種情報と現状に差異がある場合は、現状優先となります。問い合わせをすることで、より詳しい条件、情報を確認する事ができます。
提供:ピタットハウス姫路駅南口店(株)ライブデザイン(SUUMO経由)
この物件が気になったら掲載期限まであと10日
ルミエール下條に条件(家賃・エリア)が近い物件一覧
| 写真 | 家賃 管理費等 | 敷金 礼金 | 間取り 専有面積 | 築年数 | 最寄り駅 所在地 | キープ | 詳細 |
|---|---|---|---|---|---|---|---|
アパート ワンルームみやび(ワンルーム/1階) | |||||||
![]() | 4.3万円 3,000円 | なし 4.3万円 | ワンルーム 22.8m2 | 築10年 | 神戸電鉄粟生線 広野ゴルフ場前駅 徒歩10分 神戸電鉄粟生線 緑が丘駅(兵庫) 徒歩15分 兵庫県三木市緑が丘町西2丁目 | 詳細を見る | |
マンション エビスマンション(2DK/2階) | |||||||
![]() | 5.8万円 なし | 5.8万円 5.8万円 | 2DK 43.99m2 | 築50年 | 神戸電鉄粟生線 恵比須駅 徒歩5分 神戸電鉄粟生線 三木上の丸駅 徒歩8分 神戸電鉄粟生線 三木駅(神戸電鉄) 徒歩16分 兵庫県三木市大塚2 | 詳細を見る | |
アパート アステール(ワンルーム/1階) | |||||||
![]() | 5.2万円 3,500円 | 5.2万円 5.2万円 | ワンルーム 30.2m2 | 築9年 | 神戸電鉄粟生線 大村駅(兵庫) 徒歩9分 神戸電鉄粟生線 三木駅(神戸電鉄) 徒歩25分 神戸電鉄粟生線 樫山駅 徒歩30分 兵庫県三木市大村 | 詳細を見る | |
マンション ビレッジハウス朝日ヶ丘(2K/4階) | |||||||
![]() | 3.62万円 なし | なし なし | 2K 28.98m2 | 築61年 | 神戸電鉄粟生線 三木駅(神戸電鉄) 徒歩31分 神戸電鉄粟生線 三木上の丸駅 徒歩41分 兵庫県三木市別所町朝日ケ丘 | 詳細を見る | |
アパート メゾン エトワール(1K/2階) | |||||||
![]() | 5.3万円 4,500円 | 5.3万円 3万円 | 1K 27.62m2 | 築3年 | 兵庫県加古郡稲美町国安 | 詳細を見る | |
アパート 山陽本線 西明石駅 徒歩5分 築5年(ワンルーム/1階) | |||||||
![]() | 5.5万円 3,000円 | なし なし | ワンルーム 18.5m2 | 築5年 | 山陽本線 西明石駅 徒歩5分 兵庫県明石市西明石西町2丁目 | 詳細を見る | |
アパート FLAT本町C棟(1K/2階) | |||||||
![]() | 4.5万円 4,000円 | なし 5万円 | 1K 20m2 | 築17年 | 神戸電鉄粟生線 緑が丘駅(兵庫) 徒歩1分 神戸電鉄粟生線 広野ゴルフ場前駅 徒歩10分 神戸電鉄粟生線 押部谷駅 徒歩25分 兵庫県三木市緑が丘町本町 | 詳細を見る | |
マンション ビレッジハウス志染(3DK/3階) | |||||||
![]() | 6.18万円 なし | なし なし | 3DK 56.5m2 | 築46年 | 神戸電鉄粟生線 志染駅 徒歩19分 神戸電鉄粟生線 恵比須駅 徒歩29分 神戸電鉄粟生線 広野ゴルフ場前駅 徒歩29分 兵庫県三木市志染町西自由が丘 | 詳細を見る | |







