賃貸マンション
ベルヴェディア自由が丘の賃貸物件情報(4SLDK/5階)
| 家賃 | 管理費等 | 敷金 | 礼金 | 間取り | 専有面積 |
|---|---|---|---|---|---|
| 125万円 | なし | 250万円 | 125万円 | 4SLDK | 238.29m2 |
入居決定でお祝い金最大100,000円
- 保証金
- -
- 償却・敷引
- -
- 築年数
- 築40年
- 所在階
- 5階
- 向き
- -
Point
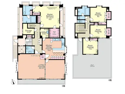
2025年10月全リフォーム済。自由が丘駅から平坦な道のり。オートロックで外観はクラッシクなレンガ貼りです。5-6階メゾネット。最上階。各部屋ゆったりとした造りです。
提供:(株)パウンドヒル(SUUMO経由)

詳細情報 ベルヴェディア自由が丘
物件紹介
ベルヴェディア自由が丘は東急大井町線九品仏駅から徒歩6分にあり、駅近で通勤通学に便利なマンションです。
このお部屋は2階以上に位置しているので通行人や周囲の住人からの視線が気になりにくく、建物のエントランスはオートロックがついているので防犯性が高くなっています。
人気の南向き・フローリングのお部屋。角部屋でもあるため、周囲の居住者の生活音も気になりにくい場所です。室内にはウォークインクローゼットがありますので、たくさんの荷物も効率的に収納ができます。キッチンはシステムキッチン仕様になっていますので、お料理好きの方にもぴったり。バス・トイレは別なので、のんびりお風呂タイムも楽しめるでしょう。また、雨の日でも浴室乾燥機を使えば、お洗濯も問題ありません。
建物にはエレベーターがついているので、重い荷物があっても安心。
このお部屋は2階以上に位置しているので通行人や周囲の住人からの視線が気になりにくく、建物のエントランスはオートロックがついているので防犯性が高くなっています。
人気の南向き・フローリングのお部屋。角部屋でもあるため、周囲の居住者の生活音も気になりにくい場所です。室内にはウォークインクローゼットがありますので、たくさんの荷物も効率的に収納ができます。キッチンはシステムキッチン仕様になっていますので、お料理好きの方にもぴったり。バス・トイレは別なので、のんびりお風呂タイムも楽しめるでしょう。また、雨の日でも浴室乾燥機を使えば、お洗濯も問題ありません。
建物にはエレベーターがついているので、重い荷物があっても安心。
お金・契約の情報
※「-」と表示されているものは、実際は料金が発生するものもございます。詳細はお問い合わせください。
| 家賃 | 125万円 | 管理費・共益費 | なし |
|---|---|---|---|
| 敷金 | 250万円 | 礼金 | 125万円 |
| 入居決定でお祝い金最大100,000円 | |||
| 保証金 | - | 償却・敷引 | - |
| 住宅保険料 | - | 更新料 | - |
| 契約形態 | - | 契約期間 | - |
| 入居・引渡期間 | 即時 | 現況 | - |
| 契約備考 | 巡回管理/リフォーム:2025年10月全リフォーム 4SLDK 普通借家2年 損保【3万円2年】 バストイレ別、バルコニー、エアコン、クロゼット、フローリング、浴室乾燥機、オートロック、室内洗濯置、陽当り良好、シューズボックス、システムキッチン、南向き、角住戸、温水洗浄便座、エレベーター、洗面所独立、駐輪場、即入居可、最上階、3口以上コンロ、照明付、出窓、全居室洋室、ウォークインクロゼット、メゾネット、駅まで平坦、キッチンに窓、内装リフォーム済、敷金2ヶ月、眺望良好、エアコン全室、浴室に窓、ルーフバルコニー、1フロア1住戸、オーブンレンジ、トイレ2ヶ所、平坦地、南面リビング、一部フローリング、四方角部屋、浴室2ヶ所、3駅以上利用可、3沿線以上利用可、駅徒歩10分以内、上階無し、敷地内ごみ置き場、専有面積30坪以上、ライトコート、LDK25畳以上、全居室6畳以上、都市ガス、洗面所に窓、洗面所にドア、南面バルコニー、じゅうたん張、室内物干機、リノベーション、礼金1ヶ月、全室照明付、通風良好 | ||
部屋の情報
| 間取り | 4SLDK | 専有面積 | 238.29m2 |
|---|---|---|---|
| 所在階 / 向き | 5階 / - | バルコニー面積 | 79m2 |
| 水道 / ガス | - | ||
| 設備 | バス・トイレ別、2階以上、オートロック、浴室乾燥機、ウォークインクローゼット、システムキッチン、エアコン、エレベーター、温水洗浄便座、南向き、角部屋、バルコニー、フローリング、洗髪洗面化粧台、2口コンロ、洗濯機:室内 | ||
| 当社物件ID | 160264513 | ||
建物の情報
| 建物名 | ベルヴェディア自由が丘 | ||
|---|---|---|---|
| 所在地 | 東京都世田谷区奥沢 | ||
| 交通 | 東急大井町線 九品仏駅 徒歩6分 東急東横線 自由が丘駅(東京) 徒歩7分 東急目黒線 奥沢駅 徒歩11分 | ||
| 階数 | 6階建 | 総戸数 | - |
| 築年月 | 1987年04月 / 築40年 | エレベーター | あり |
| 駐車場 | なし | バイク置き場 | - |
| 駐輪場 | あり | 管理人/管理会社 | - |
| 周辺環境 | その他 JIYUGAOKA de aone(ショッピングセンター)まで416m その他 ココカラファイン自由が丘店(ドラッグストア)まで425m その他 ローソン・スリーエフ自由が丘店(コンビニ)まで63m その他 三井住友銀行自由が丘支店(銀行)まで494m その他 三菱UFJ銀行自由が丘駅前支店(銀行)まで529m その他 成城石井自由が丘店(スーパー)まで412m | ||
| 建物種別 | マンション | 建物構造 | RC(鉄筋コンクリート) |
この部屋の取扱い不動産会社
| 会社名 | (株)パウンドヒル(SUUMO経由) | ||
|---|---|---|---|
| 所在地 | 東京都世田谷区奥沢7-4-4 2階 | 交通 | - |
| 営業時間 | 9:30~18:00 | 定休日 | 日・祝祭日 |
| 免許番号 | 東京都知事47803 | 取引態様 | 仲介 |
| 不動産会社管理番号 | 100480177788 | 当社管理番号 | 89 |
| 取扱い物件情報 | 物件詳細へ | ||
※各種情報と現状に差異がある場合は、現状優先となります。問い合わせをすることで、より詳しい条件、情報を確認する事ができます。
提供:(株)パウンドヒル(SUUMO経由)
この物件が気になったら掲載期限まであと5日
ベルヴェディア自由が丘に条件(家賃・エリア)が近い物件一覧
| 写真 | 家賃 管理費等 | 敷金 礼金 | 間取り 専有面積 | 築年数 | 最寄り駅 所在地 | キープ | 詳細 |
|---|---|---|---|---|---|---|---|
マンション THE CONOE 代官山(1LDK/9階) | |||||||
![]() | 95万円 なし | 190万円 95万円 | 1LDK 85.82m2 | 築11年 | 東急東横線 代官山駅 徒歩1分 東京メトロ日比谷線 中目黒駅 徒歩8分 東京メトロ日比谷線 恵比寿駅 徒歩11分 東京都渋谷区恵比寿西 | 詳細を見る | |
マンション グランドメゾン西原三丁目(2SLDK/2階) | |||||||
![]() | 84.8万円 なし | 84.8万円 84.8万円 | 2SLDK 105.9m2 | 築8年 | 小田急線 代々木上原駅 徒歩4分 東京メトロ千代田線 代々木上原駅 徒歩4分 京王新線 幡ケ谷駅 徒歩11分 東京都渋谷区西原 | 詳細を見る | |
マンション 広尾ガーデンフォレスト G棟(2LDK/2階) | |||||||
![]() | 85万円 なし | 170万円 85万円 | 2LDK 93.28m2 | 築13年 | 東京メトロ日比谷線 広尾駅 徒歩10分 東京メトロ銀座線 表参道駅 徒歩22分 JR山手線 恵比寿駅 徒歩22分 東京都渋谷区広尾 | 詳細を見る | |
マンション SAIL(1LDK/1階) | |||||||
![]() | 85万円 なし | 85万円 なし | 1LDK 148.03m2 | 築1年 | 東急東横線 学芸大学駅 徒歩12分 東京都世田谷区野沢 | 詳細を見る | |
マンション パークフラッツ渋谷神山町(2LDK/9階) | |||||||
![]() | 97万円 3万円 | 97万円 97万円 | 2LDK 95.44m2 | 築8年 | 東京メトロ千代田線 代々木公園駅 徒歩7分 小田急線 代々木八幡駅 徒歩10分 京王井の頭線 神泉駅 徒歩14分 東京都渋谷区神山町 | 詳細を見る | |
マンション THE COURT 神宮外苑(2LDK/5階) | |||||||
![]() | 75万円 なし | 75万円 75万円 | 2LDK 68.38m2 | 築7年 | 東京メトロ銀座線 外苑前駅 徒歩8分 都営大江戸線 国立競技場駅 徒歩10分 東京メトロ副都心線 北参道駅 徒歩12分 東京都渋谷区神宮前 | 詳細を見る | |
マンション THE CONOE代官山 ザ・コノエ代官山(1LDK/11階) | |||||||
![]() | 85万円 なし | 85万円 85万円 | 1LDK 85.1m2 | 築11年 | 東急東横線 代官山駅 徒歩1分 東京メトロ日比谷線 中目黒駅 徒歩7分 JR山手線 恵比寿駅 徒歩11分 東京都渋谷区恵比寿西 | 詳細を見る | |
マンション 目黒三田トリニティハウス山崎(4SLDK/1階) | |||||||
![]() | 180万円 なし | 360万円 180万円 | 4SLDK 275.54m2 | 築39年 | 東京メトロ日比谷線 恵比寿駅 徒歩13分 JR山手線 恵比寿駅 徒歩14分 JR山手線 目黒駅 徒歩14分 東京都目黒区三田 | 詳細を見る | |









