賃貸マンション
ヴェルト杉並サウスヒルの賃貸物件情報(1K/1階)
| 家賃 | 管理費等 | 敷金 | 礼金 | 間取り | 専有面積 |
|---|---|---|---|---|---|
| 8.4万円 | 1万円 | なし | 8.4万円 | 1K | 20.57m2 |
入居決定でお祝い金最大100,000円
- 保証金
- -
- 償却・敷引
- -
- 築年数
- 築23年
- 所在階
- 1階
- 向き
- 南西
Point
未公開写真や類似物件をホームページへ公開中♪弊社では内見動画など多く保管しております。現時点で候補にあがっている物件情報教えて頂ければ弊社が掲載していない物件もお調べさせて頂きます♪
提供:(株)TOB(SUUMO経由)

詳細情報 ヴェルト杉並サウスヒル
物件紹介
ヴェルト杉並サウスヒルは東京メトロ丸ノ内線方南町駅から徒歩7分にあり、駅近で通勤通学に便利なマンションです。
建物のエントランスはオートロックがついており、インターホンにはTVモニタもついているため、相手の顔を確認してから来客対応することができます。
人気の南向き・フローリングのお部屋。角部屋でもあるため、周囲の居住者の生活音も気になりにくい場所です。キッチンはシステムキッチン仕様になっていますので、お料理好きの方にもぴったり。また、バス・トイレは別で、のんびりお風呂タイムも楽しめるでしょう。
通信設備面では、インターネット接続が可能です。また、BSアンテナ・CSアンテナがありCATVにも対応しているので、おうち時間も充実するでしょう(別途工事、契約料が必要な場合あり)。
建物にはエレベーターがついているので、重い荷物があっても安心。共用部には宅配ボックスが設定されているので、不在の時にも荷物を受け取ることができます。また、ペット飼育の相談ができますので、あなたの大切な家族の一員も快適に暮らせるか、ぜひ確認してみてください。
建物のエントランスはオートロックがついており、インターホンにはTVモニタもついているため、相手の顔を確認してから来客対応することができます。
人気の南向き・フローリングのお部屋。角部屋でもあるため、周囲の居住者の生活音も気になりにくい場所です。キッチンはシステムキッチン仕様になっていますので、お料理好きの方にもぴったり。また、バス・トイレは別で、のんびりお風呂タイムも楽しめるでしょう。
通信設備面では、インターネット接続が可能です。また、BSアンテナ・CSアンテナがありCATVにも対応しているので、おうち時間も充実するでしょう(別途工事、契約料が必要な場合あり)。
建物にはエレベーターがついているので、重い荷物があっても安心。共用部には宅配ボックスが設定されているので、不在の時にも荷物を受け取ることができます。また、ペット飼育の相談ができますので、あなたの大切な家族の一員も快適に暮らせるか、ぜひ確認してみてください。
お金・契約の情報
※「-」と表示されているものは、実際は料金が発生するものもございます。詳細はお問い合わせください。
| 家賃 | 8.4万円 | 管理費・共益費 | 1万円 |
|---|---|---|---|
| 敷金 | なし | 礼金 | 8.4万円 |
| 入居決定でお祝い金最大100,000円 | |||
| 保証金 | - | 償却・敷引 | - |
| 住宅保険料 | - | 更新料 | - |
| 保証会社利用 | 必須 | 保証会社名 | - |
| 保証会社費用 | - | 保証会社備考 | 保証会社利用必 初回保証料 月額総賃料80% 月保証料総賃料1% |
| 契約形態 | - | 契約期間 | - |
| 入居・引渡期間 | - | 現況 | - |
| 入居可能条件 | ペット相談 | ||
| 契約備考 | オンライン対応希望!現地待ち合わせ希望!費用を抑えて手続きをしたい!どんな事でもお問い合わせください♪♪お申込からご入居までの間も電気・ガス・インターネット開通・引越し業者の手配等多くの煩わしい手続きが必要です。お引越し準備の負担を軽減する為これらの手続きもサポート致しますのでご安心下さい。※ペット飼育時、礼金1か月追加 合計6.05万円(内訳:契約事務手数料0.55万円室内消毒1.65万円鍵交換代3.85万円) 更新料 新賃料1.50ヶ月分 にじいろサポート(火災保険含む) 月額2200円 1K ペット相談 普通借家2年 損保【要】 バストイレ別、バルコニー、エアコン、ガスコンロ対応、クロゼット、フローリング、TVインターホン、オートロック、室内洗濯置、シューズボックス、システムキッチン、角住戸、エレベーター、洗面化粧台、駐輪場、宅配ボックス、CATV、光ファイバー、外壁タイル張り、敷金不要、防犯カメラ、独立型キッチン、ペット相談、照明付、分譲賃貸、バイク置場、全居室フローリング、玄関ホール、2沿線利用可、ディンプルキー、CS、ネット専用回線、24時間換気システム、耐火構造、3駅以上利用可、駅徒歩10分以内、24時間ゴミ出し可、敷地内ごみ置き場、南西向き、都市ガス、南面バルコニー、BS、年内入居可、年度内入居可、IT重説対応物件、初期費用カード決済可、通風良好 入居日:'26年3月下旬 | ||
部屋の情報
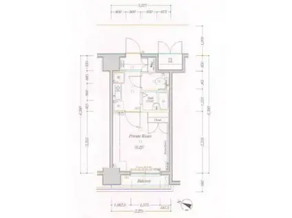
| 間取り | 1K | 専有面積 | 20.57m2 |
|---|---|---|---|
| 所在階 / 向き | 1階 / 南西 | バルコニー面積 | - |
| 水道 / ガス | - | ||
| 設備 | バス・トイレ別、オートロック、テレビドアホン、宅配ボックス、インターネット対応、システムキッチン、エアコン、エレベーター、南向き、角部屋、バルコニー、フローリング、コンロ:ガス、CATV、CSアンテナ、BSアンテナ、洗濯機:室内 | ||
| 当社物件ID | 11837948 | ||
建物の情報
| 建物名 | ヴェルト杉並サウスヒル | ||
|---|---|---|---|
| 所在地 | 東京都杉並区方南 | ||
| 交通 | 東京メトロ丸ノ内線 方南町駅 徒歩7分 京王線 代田橋駅 徒歩12分 京王線 笹塚駅 徒歩15分 | ||
| 階数 | 地下1地上9階建 | 総戸数 | - |
| 築年月 | 2003年12月 / 築23年 | エレベーター | あり |
| 駐車場 | なし | バイク置き場 | あり |
| 駐輪場 | あり | 管理人/管理会社 | - |
| 周辺環境 | その他 東放学園専門学校(その他)まで1075m その他 私立明治大学和泉キャンパス(大学・短大)まで1577m その他 高千穂大学(大学・短大)まで2321m その他 サミットストア 和泉店(スーパー)まで684m その他 フレンテ明大前(ショッピングセンター)まで1841m その他 セブンイレブン 和泉店(コンビニ)まで127m | ||
| 建物種別 | マンション | 建物構造 | RC(鉄筋コンクリート) |
この部屋の取扱い不動産会社
| 会社名 | (株)TOB(SUUMO経由) | ||
|---|---|---|---|
| 所在地 | 東京都世田谷区南烏山6-28-9 ピット千歳烏山201 | 交通 | - |
| 営業時間 | 9:00~18:00 | 定休日 | 営業時間外の対応も可。 |
| 免許番号 | 東京都知事106855 | 取引態様 | 仲介 |
| 不動産会社管理番号 | 100485226549 | 当社管理番号 | 89 |
| 所属団体 | (公社)全日本不動産協会東京都本部会員 | ||
| 公正取引協議会 | (公社)首都圏不動産公正取引協議会加盟 | ||
| 取扱い物件情報 | 物件詳細へ | ||
※各種情報と現状に差異がある場合は、現状優先となります。問い合わせをすることで、より詳しい条件、情報を確認する事ができます。
提供:(株)TOB(SUUMO経由)
この物件が気になったら掲載期限まであと10日
ヴェルト杉並サウスヒルに条件(家賃・エリア)が近い物件一覧
| 写真 | 家賃 管理費等 | 敷金 礼金 | 間取り 専有面積 | 築年数 | 最寄り駅 所在地 | キープ | 詳細 |
|---|---|---|---|---|---|---|---|
マンション CIELLE自由が丘(1K/3階) | |||||||
![]() | 12.2万円 6,000円 | 12.2万円 12.2万円 | 1K 28.15m2 | 築9年 | 東急東横線 田園調布駅 徒歩7分 東急東横線 自由が丘駅(東京) 徒歩12分 東急大井町線 九品仏駅 徒歩12分 東京都世田谷区玉川田園調布 | 詳細を見る | |
アパート 下北沢シャモットII(ワンルーム/1階) | |||||||
![]() | 6万円 なし | 6万円 6万円 | ワンルーム 16m2 | 築50年 | 小田急線 下北沢駅 徒歩3分 京王井の頭線 新代田駅 徒歩3分 小田急線 世田谷代田駅 徒歩8分 東京都世田谷区代田 | 詳細を見る | |
マンション BRANCHE 中野富士見町(ワンルーム/3階) | |||||||
![]() | 9万円 5,000円 | 9万円 9万円 | ワンルーム 23.7m2 | 築15年 | 東京メトロ丸ノ内線 中野富士見町駅 徒歩11分 東京メトロ丸ノ内線 中野新橋駅 徒歩11分 京王新線 幡ケ谷駅 徒歩18分 東京都中野区弥生町 | 詳細を見る | |
マンション ハイシティ自由が丘(ワンルーム/2階) | |||||||
![]() | 6.5万円 1.2万円 | なし なし | ワンルーム 15m2 | 築43年 | 東急目黒線 奥沢駅 徒歩2分 東急東横線 自由が丘駅(東京) 徒歩6分 東京都世田谷区奥沢2丁目 | 詳細を見る | |
マンション メゾンりあ(ワンルーム/1階) | |||||||
![]() | 10.8万円 1万円 | なし 21.6万円 | ワンルーム 29.71m2 | 築3年 | 京王線 下高井戸駅 徒歩7分 東急世田谷線 下高井戸駅 徒歩7分 京王線 桜上水駅 徒歩9分 東京都世田谷区赤堤 | 詳細を見る | |
アパート リベルテ(1LDK/2階) | |||||||
![]() | 9.5万円 7,000円 | なし 19万円 | 1LDK 42.25m2 | 築19年 | 西武池袋線 保谷駅 徒歩12分 西武新宿線 東伏見駅 徒歩20分 西武池袋線 大泉学園駅 徒歩30分 東京都練馬区南大泉 | 詳細を見る | |
マンション CORNUSハイツ コーナスハイツ(ワンルーム/2階) | |||||||
![]() | 6.5万円 3,000円 | 6.5万円 6.5万円 | ワンルーム 20.16m2 | 築26年 | 中央本線 三鷹駅 徒歩16分 東京都三鷹市下連雀6丁目 | 詳細を見る | |








