賃貸マンション
デュオステージ相模大塚の賃貸物件情報(1LDK/9階)
| 家賃 | 管理費等 | 敷金 | 礼金 | 間取り | 専有面積 |
|---|---|---|---|---|---|
| 9.5万円 | 1万円 | 9.5万円 | 9.5万円 | 1LDK | 30.18m2 |
入居決定でお祝い金最大100,000円
- 保証金
- -
- 償却・敷引
- -
- 築年数
- 築2年
- 所在階
- 9階
- 向き
- 西
Point
◆初期費用・最安値宣言◆お部屋探しは【いえらび】にお任せ下さい◆ネットで掲載している賃貸物件全てご紹介可能です(他社様掲載物件含む)◆家賃交渉、審査等なんでもご相談ください◆クレジット決済可能◆
提供:さくらde賃貸-new life- (株)さくらスタイル(SUUMO経由)

詳細情報 デュオステージ相模大塚
物件紹介
デュオステージ相模大塚は相鉄本線相模大塚駅から徒歩2分にあり、駅近で通勤通学に便利なマンションです。
このお部屋は2階以上に位置しているので、通行人や周囲の住人からの視線が気になりにくく、防犯面でも安心。建物のエントランスはオートロックがついており、インターホンにはTVモニタもついているため、相手の顔を確認してから来客対応することができます。
フローリングのお部屋なのでお掃除もラクラク。キッチンはシステムキッチン仕様になっていますので、お料理好きの方にもぴったり。バス・トイレは別なので、のんびりお風呂タイムも楽しめるでしょう。また、雨の日でも浴室乾燥機を使えば、お洗濯も問題ありません。
通信設備面では、インターネットが無料で使えるので、月々の出費を抑えられるのも魅力です。また、BSアンテナ・CSアンテナがありCATVにも対応しているので、おうち時間も充実するでしょう(別途工事、BS・CS・CATVの契約料等が必要な場合あり)。
建物にはエレベーターがついているので、重い荷物があっても安心。共用部には宅配ボックスが設定されているので、不在の時にも荷物を受け取ることができます。また、ペット飼育の相談ができますので、あなたの大切な家族の一員も快適に暮らせるか、ぜひ確認してみてください。
このお部屋は2階以上に位置しているので、通行人や周囲の住人からの視線が気になりにくく、防犯面でも安心。建物のエントランスはオートロックがついており、インターホンにはTVモニタもついているため、相手の顔を確認してから来客対応することができます。
フローリングのお部屋なのでお掃除もラクラク。キッチンはシステムキッチン仕様になっていますので、お料理好きの方にもぴったり。バス・トイレは別なので、のんびりお風呂タイムも楽しめるでしょう。また、雨の日でも浴室乾燥機を使えば、お洗濯も問題ありません。
通信設備面では、インターネットが無料で使えるので、月々の出費を抑えられるのも魅力です。また、BSアンテナ・CSアンテナがありCATVにも対応しているので、おうち時間も充実するでしょう(別途工事、BS・CS・CATVの契約料等が必要な場合あり)。
建物にはエレベーターがついているので、重い荷物があっても安心。共用部には宅配ボックスが設定されているので、不在の時にも荷物を受け取ることができます。また、ペット飼育の相談ができますので、あなたの大切な家族の一員も快適に暮らせるか、ぜひ確認してみてください。
お金・契約の情報
※「-」と表示されているものは、実際は料金が発生するものもございます。詳細はお問い合わせください。
| 家賃 | 9.5万円 | 管理費・共益費 | 1万円 |
|---|---|---|---|
| 敷金 | 9.5万円 | 礼金 | 9.5万円 |
| 入居決定でお祝い金最大100,000円 | |||
| 保証金 | - | 償却・敷引 | - |
| 住宅保険料 | - | 更新料 | - |
| 保証会社利用 | 必須 | 保証会社名 | - |
| 保証会社費用 | - | 保証会社備考 | 保証会社利用必 初回保証料:賃料等総額の40% 継続保証料:1年ごと10000円 |
| 契約形態 | - | 契約期間 | - |
| 入居・引渡期間 | - | 現況 | - |
| 入居可能条件 | ペット相談 | ||
| 契約備考 | 鍵交換費用:33000円24時間サポート:1100円 更新料 新賃料1.00ヶ月分 1LDK 二人入居可/子供可/ペット相談/ルームシェア相談 普通借家2年 損保【2万円2年】 バストイレ別、バルコニー、エアコン、クロゼット、フローリング、シャワー付洗面台、TVインターホン、浴室乾燥機、オートロック、室内洗濯置、陽当り良好、システムキッチン、追焚機能浴室、温水洗浄便座、脱衣所、エレベーター、洗面所独立、洗面化粧台、2口コンロ、駐輪場、宅配ボックス、CATV、光ファイバー、外壁タイル張り、BS・CS、防犯カメラ、ペット相談、IHクッキングヒーター、照明付、分譲賃貸、オートバス、全居室洋室、保証人不要、24時間緊急通報システム、カードキー、全居室フローリング、ディンプルキー、CS、ネット使用料不要、ダブルロックキー、24時間換気システム、平坦地、ルームシェア相談、駅徒歩5分以内、24時間ゴミ出し可、敷地内ごみ置き場、セキュリティ会社加入済、都市ガス、洗面所にドア、シューズWIC、BS、IT重説対応物件、初期費用カード決済可、通風良好 入居日:'26年3月中旬 | ||
部屋の情報
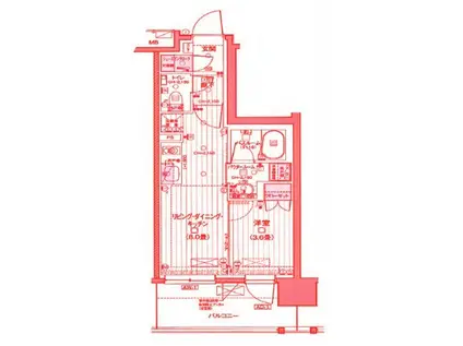
| 間取り | 1LDK | 専有面積 | 30.18m2 |
|---|---|---|---|
| 所在階 / 向き | 9階 / 西 | バルコニー面積 | - |
| 水道 / ガス | - | ||
| 設備 | バス・トイレ別、2階以上、オートロック、テレビドアホン、宅配ボックス、浴室乾燥機、追い焚き、インターネット対応、システムキッチン、エアコン、エレベーター、温水洗浄便座、バルコニー、フローリング、洗髪洗面化粧台、2口コンロ、コンロ:IH、CATV、CSアンテナ、BSアンテナ、インターネット使用料無料、洗濯機:室内 | ||
| 当社物件ID | 150504230 | ||
建物の情報
| 建物名 | デュオステージ相模大塚 | ||
|---|---|---|---|
| 所在地 | 神奈川県大和市桜森 | ||
| 交通 | 相鉄本線 相模大塚駅 徒歩2分 相鉄本線 さがみ野駅 徒歩13分 小田急江ノ島線 大和駅(神奈川) 徒歩28分 | ||
| 階数 | 13階建 | 総戸数 | - |
| 築年月 | 2024年02月 / 築2年 | エレベーター | あり |
| 駐車場 | 近隣 150m10000円 | バイク置き場 | - |
| 駐輪場 | あり | 管理人/管理会社 | - |
| 周辺環境 | その他 スリーエフ相模大塚駅前店(コンビニ)まで46m その他 相模大塚駅(その他)まで110m その他 相模大塚駅前郵便局(郵便局)まで310m その他 セブン-イレブン 大和桜森1丁目店(コンビニ)まで417m その他 ファッションセンターしまむら相模大塚店(ショッピングセンター)まで483m その他 ドラッグストア マツモトキヨシ 大和市桜森店(ドラッグストア)まで430m | ||
| 建物種別 | マンション | 建物構造 | RC(鉄筋コンクリート) |
この部屋の取扱い不動産会社
| 会社名 | (株)ドリームアークいえらび相模大野店(SUUMO経由) | ||
|---|---|---|---|
| 所在地 | 神奈川県相模原市南区相模大野3-16-1 相模大野REGALOビルM202 | 交通 | - |
| 営業時間 | 10時~19時 | 定休日 | 毎週水曜 1~3月は定休無し |
| 免許番号 | 国土交通大臣9444 | 取引態様 | 仲介 |
| 不動産会社管理番号 | 100481859069 | 当社管理番号 | 89 |
| 所属団体 | (公社)神奈川県宅地建物取引業協会会員 | ||
| 公正取引協議会 | (公社)首都圏不動産公正取引協議会加盟 | ||
| 取扱い物件情報 | 物件詳細へ | ||
※各種情報と現状に差異がある場合は、現状優先となります。問い合わせをすることで、より詳しい条件、情報を確認する事ができます。
提供:(株)ドリームアークいえらび相模大野店(SUUMO経由)
この物件が気になったら掲載期限まであと10日
デュオステージ相模大塚に条件(家賃・エリア)が近い物件一覧
| 写真 | 家賃 管理費等 | 敷金 礼金 | 間取り 専有面積 | 築年数 | 最寄り駅 所在地 | キープ | 詳細 |
|---|---|---|---|---|---|---|---|
アパート カーサベルデ星川(1K/2階) | |||||||
![]() | 6.3万円 3,000円 | なし 6.3万円 | 1K 23.84m2 | 築23年 | 相模鉄道本線 星川駅(神奈川) 徒歩6分 神奈川県横浜市保土ケ谷区星川1丁目 | 詳細を見る | |
マンション サンクタス洋光台ヒルズ(2LDK/6階) | |||||||
![]() | 14万円 なし | 14万円 14万円 | 2LDK 65.02m2 | 築15年 | JR京浜東北線 洋光台駅 徒歩12分 京急本線 杉田駅(神奈川) 徒歩29分 神奈川県横浜市磯子区田中 | 詳細を見る | |
アパート オークヒルズ(1K/1階) | |||||||
![]() | 7万円 4,000円 | なし なし | 1K 28.98m2 | 築10年 | JR横浜線 大口駅 徒歩21分 京急本線 生麦駅 徒歩22分 京急本線 京急新子安駅 徒歩28分 神奈川県横浜市鶴見区東寺尾 | 詳細を見る | |
アパート シャンティ六浦(1K/2階) | |||||||
![]() | 6万円 2,000円 | なし なし | 1K 24.01m2 | 築6年 | 京急逗子線 六浦駅 徒歩6分 京急本線 金沢八景駅 徒歩27分 京急本線 追浜駅 徒歩29分 神奈川県横浜市金沢区六浦南 | 詳細を見る | |
マンション リブリ・グレイスレジデンス(1K/1階) | |||||||
![]() | 8.4万円 4,000円 | なし 16.8万円 | 1K 27.32m2 | 築9年 | 鶴見線 鶴見小野駅 徒歩2分 神奈川県横浜市鶴見区下野谷町3丁目 | 詳細を見る | |
アパート レオパレスキアラ(1K/2階) | |||||||
![]() | 5.7万円 5,000円 | なし 5.7万円 | 1K 19.87m2 | 築22年 | 湘南モノレール 片瀬山駅 徒歩5分 神奈川県藤沢市片瀬目白山 | 詳細を見る | |






