賃貸マンション
メインステージ八広Ⅱの賃貸物件情報(1LDK/9階)
| 家賃 | 管理費等 | 敷金 | 礼金 | 間取り | 専有面積 |
|---|---|---|---|---|---|
| 16.5万円 | 2万円 | なし | なし | 1LDK | 44.08m2 |
入居決定でお祝い金最大100,000円
Point
お問合せ完了後に簡単WEB予約ページをお送りします!
提供:アパマンショップ浅草駅前店

詳細情報 メインステージ八広Ⅱ
物件紹介
メインステージ八広Ⅱは京成電鉄押上線八広駅から徒歩13分にあるマンションです。
このお部屋は2階以上に位置しているので、通行人や周囲の住人からの視線が気になりにくく、防犯面でも安心。建物のエントランスはオートロックがついており、インターホンにはTVモニタもついているため、相手の顔を確認してから来客対応することができます。
フローリングのお部屋なのでお掃除もラクラク。キッチンはシステムキッチン仕様になっていますので、お料理好きの方にもぴったり。バス・トイレは別なので、のんびりお風呂タイムも楽しめるでしょう。また、雨の日でも浴室乾燥機を使えば、お洗濯も問題ありません。
通信設備面では、インターネットが無料で使えるので、月々の出費を抑えられるのも魅力です(別途工事等が必要な場合あり)。
建物にはエレベーターがついているので、重い荷物があっても安心。共用部には宅配ボックスが設定されているので、不在の時にも荷物を受け取ることができます。また、ペット飼育の相談ができますので、あなたの大切な家族の一員も快適に暮らせるか、ぜひ確認してみてください。
このお部屋は2階以上に位置しているので、通行人や周囲の住人からの視線が気になりにくく、防犯面でも安心。建物のエントランスはオートロックがついており、インターホンにはTVモニタもついているため、相手の顔を確認してから来客対応することができます。
フローリングのお部屋なのでお掃除もラクラク。キッチンはシステムキッチン仕様になっていますので、お料理好きの方にもぴったり。バス・トイレは別なので、のんびりお風呂タイムも楽しめるでしょう。また、雨の日でも浴室乾燥機を使えば、お洗濯も問題ありません。
通信設備面では、インターネットが無料で使えるので、月々の出費を抑えられるのも魅力です(別途工事等が必要な場合あり)。
建物にはエレベーターがついているので、重い荷物があっても安心。共用部には宅配ボックスが設定されているので、不在の時にも荷物を受け取ることができます。また、ペット飼育の相談ができますので、あなたの大切な家族の一員も快適に暮らせるか、ぜひ確認してみてください。
お金・契約の情報
※「-」と表示されているものは、実際は料金が発生するものもございます。詳細はお問い合わせください。
| 家賃 | 16.5万円 | 管理費・共益費 | 2万円 |
|---|---|---|---|
| 敷金 | なし | 礼金 | なし |
| 入居決定でお祝い金最大100,000円 | |||
| 保証金 | - | 償却・敷引 | - |
| 住宅保険料 | 2万円(2年) | 更新料 | - |
| 保証会社利用 | 必須 | 保証会社名 | エポス |
| 保証会社費用 | - | 保証会社備考 | 賃料と管理費の50%〜 |
| 契約形態 | - | 契約期間 | 2年 |
| 入居・引渡期間 | 相談 | 現況 | - |
| 入居可能条件 | ペット可 | ||
| 契約備考 | ①短期解約違約金有(1年未満=1ヶ月、半年未満=2ヶ月)②エアコンクリーニング費用(1台あたり16,500円税込み・退去時請求)/ペット可(敷1) 鍵交換費用 29700円/AMLクラブサポート費 16500円、[退去時費用:ルームクリーニング費 55,000円 ※故意・過失等別途実費] | ||
部屋の情報
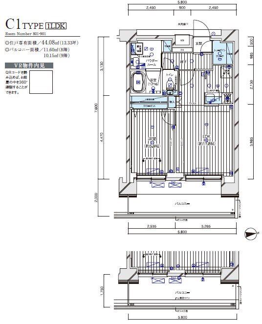
| 間取り | 1LDK | 専有面積 | 44.08m2 |
|---|---|---|---|
| 間取り詳細 | 洋室(5.9帖)、LDK(11.8帖) | ||
| 所在階 / 向き | 9階 / 東 | バルコニー面積 | - |
| 水道 / ガス | ガス【都市】 | ||
| 設備 | バス・トイレ別、オートロック、宅配ボックス、浴室乾燥機、インターネット対応、システムキッチン、エレベーター、バルコニー、フローリング、コンロ:ガス、インターネット使用料無料、シャワー、給湯、洗濯機:室内、タイル張り | ||
| 当社物件ID | 160001484 | ||
建物の情報
| 建物名 | メインステージ八広Ⅱ | ||
|---|---|---|---|
| 所在地 | 東京都墨田区八広3丁目 | ||
| 交通 | 京成電鉄押上線 八広駅 徒歩13分 | ||
| 階数 | 9階建 | 総戸数 | 37戸 |
| 築年月 | 2025年11月 / 築1年 | エレベーター | あり |
| 駐車場 | - | バイク置き場 | - |
| 駐輪場 | - | 管理人/管理会社 | - |
| 周辺環境 | その他 くすりの福太郎押上店 徒歩22分(1717m) その他 セブン−イレブン墨田押上1丁目店 徒歩23分(1776m) その他 ファミリーマート東武鉄道本社店 徒歩24分(1915m) その他 セブン−イレブン墨田押上2丁目店 徒歩26分(2006m) その他 東武ストア業平店 徒歩24分(1883m) その他 ライフセントラルスクエア押上駅前店 徒歩27分(2086m) その他 ビッグ・エー墨田業平店 徒歩26分(2006m) その他 ローソン メトロス押上店 徒歩27分(2109m) | ||
| 建物種別 | マンション | 建物構造 | RC(鉄筋コンクリート) |
この部屋の取扱い不動産会社
| 会社名 | アパマンショップ大森店 | ||
|---|---|---|---|
| 所在地 | 東京都大田区大森北1丁目 3-12プラザ荻野2階 | 交通 | 京浜東北・根岸線大森から徒歩1分 |
| 営業時間 | 10:00〜18:30 | 定休日 | - |
| 免許番号 | 東京都知事(5)83411 | 取引態様 | 仲介 |
| 不動産会社管理番号 | 111448504 | 当社管理番号 | 4 |
| 所属団体 | (公社)全日本不動産協会東京都本部 | ||
| 公正取引協議会 | (公社) 首都圏不動産公正取引協議会加盟 | ||
| 取扱い物件情報 | 物件詳細へ | ||
※各種情報と現状に差異がある場合は、現状優先となります。問い合わせをすることで、より詳しい条件、情報を確認する事ができます。
提供:アパマンショップ大森店
この物件が気になったら掲載期限まであと12日
メインステージ八広Ⅱに条件(家賃・エリア)が近い物件一覧
| 写真 | 家賃 管理費等 | 敷金 礼金 | 間取り 専有面積 | 築年数 | 最寄り駅 所在地 | キープ | 詳細 |
|---|---|---|---|---|---|---|---|
マンション エスティメゾン豊洲レジデンスC棟(1LDK/4階) | |||||||
![]() | 17万円 1万円 | 17万円 17万円 | 1LDK 38.62m2 | 築19年 | 東京メトロ有楽町線 豊洲駅 徒歩5分 東京メトロ有楽町線 月島駅 徒歩19分 新交通ゆりかもめ 新豊洲駅 徒歩20分 東京都江東区豊洲 | 詳細を見る | |
マンション アーバネックス錦糸公園II(2LDK/10階) | |||||||
![]() | 22.8万円 2万円 | 22.8万円 なし | 2LDK 40.01m2 | 築2年 | JR総武線 錦糸町駅 徒歩4分 東京メトロ半蔵門線 錦糸町駅 徒歩4分 都営浅草線 押上駅 徒歩16分 東京都墨田区錦糸 | 詳細を見る | |
マンション ヴェルステージ秋葉原イーストヴェルステージアキハバライース(1LDK/11階) | |||||||
![]() | 17万円 1.5万円 | 17万円 17万円 | 1LDK 51m2 | 築19年 | 総武・中央緩行線 浅草橋駅 徒歩7分 東京都台東区鳥越2丁目 | 詳細を見る | |
マンション ミリア・レジデンス両国II(1LDK/2階) | |||||||
![]() | 16万円 2万円 | なし なし | 1LDK 30.01m2 | 築4年 | JR総武線 両国駅 徒歩5分 都営大江戸線 両国駅 徒歩7分 都営大江戸線 森下駅(東京) 徒歩10分 東京都墨田区両国 | 詳細を見る | |
マンション グランカーサ住吉(1K/5階) | |||||||
![]() | 13.8万円 1万円 | なし なし | 1K 25.6m2 | 築6年 | 都営新宿線 住吉駅(東京) 徒歩5分 東京メトロ半蔵門線 住吉駅(東京) 徒歩5分 JR総武線 錦糸町駅 徒歩11分 東京都江東区毛利 | 詳細を見る | |
マンション クレヴィスタ亀戸IV(1K/10階) | |||||||
![]() | 13.5万円 1.1万円 | なし 13.5万円 | 1K 25.56m2 | 築7年 | 総武・中央緩行線 亀戸駅 徒歩4分 東武鉄道亀戸線 亀戸駅 徒歩4分 総武本線 錦糸町駅 徒歩12分 東京都江東区亀戸2丁目 | 詳細を見る | |
マンション ザ・グローヴ浅草(1LDK/10階) | |||||||
![]() | 24.3万円 1万円 | 24.3万円 24.3万円 | 1LDK 50.02m2 | 築5年 | 東京地下鉄銀座線 浅草駅(東武・都営・メトロ) 徒歩2分 東京都台東区浅草1丁目 | 詳細を見る | |
マンション BELLE VUE 浅草橋(1K/6階) | |||||||
![]() | 11.8万円 1万円 | 11.8万円 なし | 1K 25.44m2 | 築12年 | 東京都浅草線 浅草橋駅 徒歩1分 総武・中央緩行線 浅草橋駅 徒歩2分 総武・中央緩行線 両国駅 徒歩16分 東京都台東区浅草橋1丁目 | 詳細を見る | |








