賃貸マンション
アスヴェル京都西大路サウスの賃貸物件情報(1DK/2階)
| 家賃 | 管理費等 | 敷金 | 礼金 | 間取り | 専有面積 |
|---|---|---|---|---|---|
| 7.07万円 | 8,000円 | なし | なし | 1DK | 25.81m2 |
入居決定でお祝い金最大100,000円
Point
セキュリティ面は、オートロック・TVインターホンなど充実しているので、防犯対策もばっちりです。
提供:ハウスコム株式会社 桂店

詳細情報 アスヴェル京都西大路サウス
物件紹介
アスヴェル京都西大路サウスは東海道本線西大路駅から徒歩15分にあるマンションです。
このお部屋は2階以上に位置しているので、通行人や周囲の住人からの視線が気になりにくく、防犯面でも安心。建物のエントランスはオートロックがついており、インターホンにはTVモニタもついているため、相手の顔を確認してから来客対応することができます。
キッチンはシステムキッチン仕様になっていますので、お料理好きの方にもぴったり。バス・トイレは別なので、のんびりお風呂タイムも楽しめるでしょう。また、雨の日でも浴室乾燥機を使えば、お洗濯も問題ありません。
通信設備面では、インターネットが無料で使えるので、月々の出費を抑えられるのも魅力です。また、BSアンテナ・CSアンテナもありますので、おうち時間も充実するでしょう(別途工事、BS・CSの契約料等が必要な場合あり)。
建物にはエレベーターがついているので、重い荷物があっても安心。共用部には宅配ボックスが設定されているので、不在の時にも荷物を受け取ることができます。また、ペット飼育の相談ができますので、あなたの大切な家族の一員も快適に暮らせるか、ぜひ確認してみてください。
このお部屋は2階以上に位置しているので、通行人や周囲の住人からの視線が気になりにくく、防犯面でも安心。建物のエントランスはオートロックがついており、インターホンにはTVモニタもついているため、相手の顔を確認してから来客対応することができます。
キッチンはシステムキッチン仕様になっていますので、お料理好きの方にもぴったり。バス・トイレは別なので、のんびりお風呂タイムも楽しめるでしょう。また、雨の日でも浴室乾燥機を使えば、お洗濯も問題ありません。
通信設備面では、インターネットが無料で使えるので、月々の出費を抑えられるのも魅力です。また、BSアンテナ・CSアンテナもありますので、おうち時間も充実するでしょう(別途工事、BS・CSの契約料等が必要な場合あり)。
建物にはエレベーターがついているので、重い荷物があっても安心。共用部には宅配ボックスが設定されているので、不在の時にも荷物を受け取ることができます。また、ペット飼育の相談ができますので、あなたの大切な家族の一員も快適に暮らせるか、ぜひ確認してみてください。
お金・契約の情報
※「-」と表示されているものは、実際は料金が発生するものもございます。詳細はお問い合わせください。
| 家賃 | 7.07万円 | 管理費・共益費 | 8,000円 |
|---|---|---|---|
| 敷金 | なし | 礼金 | なし |
| 入居決定でお祝い金最大100,000円 | |||
| 保証金 | - | 償却・敷引 | - |
| 住宅保険料 | 1円 | 更新料 | - |
| その他費用 | 退去時エアコンクリーニング代:1.65万円 | ||
| 保証会社利用 | 必須 | 保証会社名 | エポスカード |
| 保証会社費用 | - | 保証会社備考 | 必須 エポス保証(初回保証料50%、保証料900円/月 エポス否認の場合は別途あり) |
| 契約形態 | - | 契約期間 | 2年 |
| 入居・引渡期間 | 2026年03月 | 現況 | 未完成 |
| 入居可能条件 | 事務所不可、楽器不可、ペット相談 | ||
| 契約備考 | 2026年3月26日完成予定の新築物件です 駐輪場:有料 ペット飼育時敷金積み増し料金(償却)有り 駐輪代300円・バイク小型1000円・バイク大型3000円 室内清掃費用:49500 その他設備/条件:室内洗濯機置き場、独立洗面台、防犯カメラ、クローゼット、シューズボックス、分譲賃貸 | ||
部屋の情報
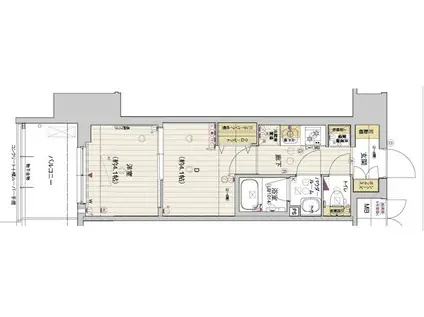
| 間取り | 1DK | 専有面積 | 25.81m2 |
|---|---|---|---|
| 間取り詳細 | 洋室(4.1帖)、DK(4.1帖) | ||
| 所在階 / 向き | 2階 / 東 | バルコニー面積 | - |
| 水道 / ガス | 水道【公営】、ガス【都市】 | ||
| 設備 | バス・トイレ別、オートロック、テレビドアホン、宅配ボックス、浴室乾燥機、インターネット対応、システムキッチン、エアコン、エレベーター、温水洗浄便座、バルコニー、2口コンロ、コンロ:ガス、CSアンテナ、BSアンテナ、インターネット使用料無料 | ||
| 当社物件ID | 160353154 | ||
建物の情報
| 建物名 | アスヴェル京都西大路サウス | ||
|---|---|---|---|
| 所在地 | 京都府京都市南区吉祥院高畑町 | ||
| 交通 | 東海道本線 西大路駅 徒歩15分 近鉄京都線 十条駅(近鉄) 徒歩22分 | ||
| 階数 | 7階建 | 総戸数 | 49戸 |
| 築年月 | 2026年03月 / 新築 | エレベーター | あり |
| 駐車場 | - | バイク置き場 | - |
| 駐輪場 | あり | 管理人/管理会社 | - |
| 周辺環境 | その他 ドラッグストア その他 公園 その他 銀行 その他 * | ||
| 建物種別 | マンション | 建物構造 | RC(鉄筋コンクリート) |
この部屋の取扱い不動産会社
| 会社名 | ハウスコム株式会社 桂店 | ||
|---|---|---|---|
| 所在地 | 京都府京都市西京区31-29サンセット藤1階 | 交通 | - |
| 営業時間 | 10:00~18:00 | 定休日 | - |
| 免許番号 | 国土交通大臣(6)第6094号 | 取引態様 | 仲介 |
| 不動産会社管理番号 | HC2-5368406-206-0083 | 当社管理番号 | 468 |
| 所属団体 | 一般社団法人全国住宅産業協会/公益社団法人首都圏不動産公正取引協議会/公益財団法人日本賃貸住宅管理協会、 | ||
| 取扱い物件情報 | 物件詳細へ | ||
※各種情報と現状に差異がある場合は、現状優先となります。問い合わせをすることで、より詳しい条件、情報を確認する事ができます。
提供:ハウスコム株式会社 桂店
この物件が気になったら掲載期限まであと4日
アスヴェル京都西大路サウスの空き部屋一覧
全部で49の空き部屋があります。
アスヴェル京都西大路サウスに条件(家賃・エリア)が近い物件一覧
| 写真 | 家賃 管理費等 | 敷金 礼金 | 間取り 専有面積 | 築年数 | 最寄り駅 所在地 | キープ | 詳細 |
|---|---|---|---|---|---|---|---|
マンション 樹庭夢・幹(1K/5階) | |||||||
![]() | 5万円 6,000円 | なし なし | 1K 18.16m2 | 築39年 | 近鉄京都線 東寺駅 徒歩5分 東海道本線 京都駅 徒歩10分 京都府京都市南区西九条針小路町 | 詳細を見る | |
アパート 京阪電気鉄道京阪線 橋本駅(京都) 徒歩13分 築29年(2LDK/2階) | |||||||
![]() | 6.6万円 3,300円 | なし なし | 2LDK 65.57m2 | 築29年 | 京阪電気鉄道京阪線 橋本駅(京都) 徒歩13分 京阪電気鉄道京阪線 樟葉駅 徒歩28分 京都府八幡市西山足立 | 詳細を見る | |
アパート 東海道本線 西大路駅 徒歩12分 新築(1LDK/3階) | |||||||
![]() | 7.75万円 4,000円 | なし 7.75万円 | 1LDK 30.01m2 | 新築 | 東海道本線 西大路駅 徒歩12分 近鉄京都線 東寺駅 徒歩22分 京都府京都市南区吉祥院西定成町 | 詳細を見る | |
アパート 近鉄京都線 伊勢田駅 徒歩7分 新築(1K/1階) | |||||||
![]() | 5.6万円 4,000円 | なし 5.6万円 | 1K 27.75m2 | 新築 | 近鉄京都線 伊勢田駅 徒歩7分 近鉄京都線 大久保駅(京都) 徒歩18分 京都府宇治市伊勢田町南山 | 詳細を見る | |
アパート 阪急電鉄京都線 西向日駅 徒歩7分 築41年(2DK/2階) | |||||||
![]() | 5.5万円 5,000円 | なし なし | 2DK 40.76m2 | 築41年 | 阪急電鉄京都線 西向日駅 徒歩7分 東海道本線 長岡京駅 徒歩20分 京都府向日市上植野町地後 | 詳細を見る | |
マンション 東海道本線 西大路駅 徒歩10分 築1年(1K/9階) | |||||||
![]() | 8.65万円 1.1万円 | なし 8.65万円 | 1K 21.87m2 | 築1年 | 東海道本線 西大路駅 徒歩10分 阪急電鉄京都線 西京極駅 徒歩20分 京都府京都市南区吉祥院西ノ庄西浦町 | 詳細を見る | |
マンション 京都市烏丸線 十条駅(京都市営) 徒歩4分 築1年(1K/4階) | |||||||
![]() | 6.3万円 6,330円 | なし なし | 1K 21.83m2 | 築1年 | 京都市烏丸線 十条駅(京都市営) 徒歩4分 東海道本線 京都駅 徒歩14分 京都府京都市南区東九条柳下町 | 詳細を見る | |








