賃貸マンション
ブルックサイドレジデンス木場の賃貸物件情報(2K/8階)
| 家賃 | 管理費等 | 敷金 | 礼金 | 間取り | 専有面積 |
|---|---|---|---|---|---|
| 15.5万円 | 2万円 | 15.5万円 | なし | 2K | 29.87m2 |
入居決定でお祝い金最大100,000円
Point
まずはお問い合わせ!
不動産会社は街のプロ、あなたに合った物件がきっと見つかります。
提供:アパマンショップ蒲田店

詳細情報 ブルックサイドレジデンス木場
物件紹介
ブルックサイドレジデンス木場は東京地下鉄東西線木場駅から徒歩9分にあり、駅近で通勤通学に便利なマンションです。
このお部屋は2階以上に位置しているので通行人や周囲の住人からの視線が気になりにくく、建物のエントランスはオートロックがついているので防犯性が高くなっています。
人気の南向きのお部屋。また、フローリングなのでお掃除もラクラク。キッチンはシステムキッチン仕様になっていますので、お料理好きの方にもぴったり。バス・トイレは別なので、のんびりお風呂タイムも楽しめるでしょう。また、雨の日でも浴室乾燥機を使えば、お洗濯も問題ありません。
通信設備面ではCATVに対応しているので、おうち時間も充実するでしょう(別途工事、契約料が必要な場合あり)。
建物にはエレベーターがついているので、重い荷物があっても安心。共用部には宅配ボックスが設定されているので、不在の時にも荷物を受け取ることができます。また、ペット飼育の相談ができますので、あなたの大切な家族の一員も快適に暮らせるか、ぜひ確認してみてください。
このお部屋は2階以上に位置しているので通行人や周囲の住人からの視線が気になりにくく、建物のエントランスはオートロックがついているので防犯性が高くなっています。
人気の南向きのお部屋。また、フローリングなのでお掃除もラクラク。キッチンはシステムキッチン仕様になっていますので、お料理好きの方にもぴったり。バス・トイレは別なので、のんびりお風呂タイムも楽しめるでしょう。また、雨の日でも浴室乾燥機を使えば、お洗濯も問題ありません。
通信設備面ではCATVに対応しているので、おうち時間も充実するでしょう(別途工事、契約料が必要な場合あり)。
建物にはエレベーターがついているので、重い荷物があっても安心。共用部には宅配ボックスが設定されているので、不在の時にも荷物を受け取ることができます。また、ペット飼育の相談ができますので、あなたの大切な家族の一員も快適に暮らせるか、ぜひ確認してみてください。
お金・契約の情報
※「-」と表示されているものは、実際は料金が発生するものもございます。詳細はお問い合わせください。
| 家賃 | 15.5万円 | 管理費・共益費 | 2万円 |
|---|---|---|---|
| 敷金 | 15.5万円 | 礼金 | なし |
| 入居決定でお祝い金最大100,000円 | |||
| 保証金 | - | 償却・敷引 | - |
| 住宅保険料 | - | 更新料 | - |
| 保証会社利用 | 利用可 | 保証会社名 | レジデントアシスタント |
| 保証会社費用 | - | 保証会社備考 | 初回:月額賃料(共益費・駐車場料金含む)の50%、年間:9,600円 |
| 契約形態 | - | 契約期間 | 2年 |
| 入居・引渡期間 | 2026年03月中旬 | 現況 | - |
| 入居可能条件 | ペット可 | ||
| 契約備考 | 口座振替事務手数料 110円、[退去時費用:室内清掃費 44,000円 ※故意・過失等別途実費] | ||
部屋の情報
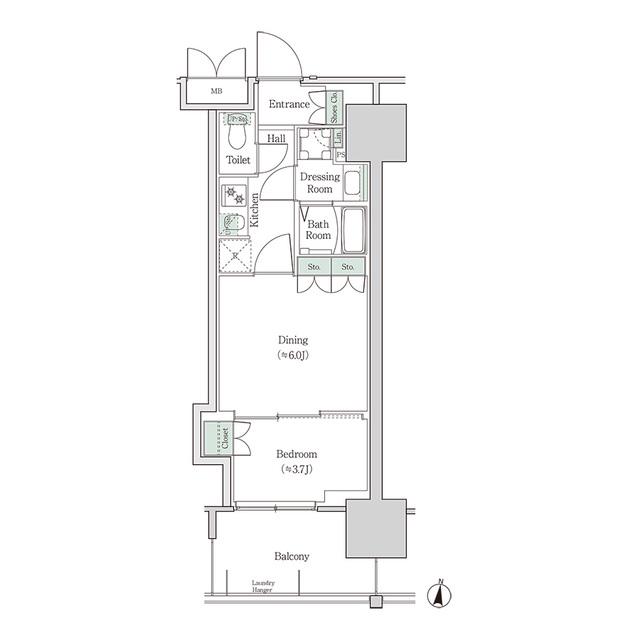
| 間取り | 2K | 専有面積 | 29.87m2 |
|---|---|---|---|
| 所在階 / 向き | 8階 / 南 | バルコニー面積 | 6m2 |
| 水道 / ガス | - | ||
| 設備 | バス・トイレ別、オートロック、宅配ボックス、浴室乾燥機、追い焚き、システムキッチン、エレベーター、バルコニー、フローリング、CATV、洗濯機:室内 | ||
| 当社物件ID | 160301146 | ||
建物の情報
| 建物名 | ブルックサイドレジデンス木場 | ||
|---|---|---|---|
| 所在地 | 東京都江東区塩浜2丁目 | ||
| 交通 | 東京地下鉄東西線 木場駅 徒歩9分 | ||
| 階数 | 18階建 | 総戸数 | - |
| 築年月 | 2026年03月 / 新築 | エレベーター | あり |
| 駐車場 | - | バイク置き場 | あり |
| 駐輪場 | - | 管理人/管理会社 | - |
| 建物種別 | マンション | 建物構造 | RC(鉄筋コンクリート) |
この部屋の取扱い不動産会社
| 会社名 | アパマンショップ亀戸店 | ||
|---|---|---|---|
| 所在地 | 東京都江東区亀戸5丁目 2-1カメヤビル401 | 交通 | 総武・中央緩行線亀戸から徒歩1分 |
| 営業時間 | 10:00〜19:00(毎週水曜日は定休となります。) | 定休日 | 水曜日 |
| 免許番号 | 国土交通大臣(5)6971 | 取引態様 | 仲介 |
| 不動産会社管理番号 | 111998811 | 当社管理番号 | 4 |
| 所属団体 | (公社)東京都宅地建物取引業協会 | ||
| 公正取引協議会 | (公社) 首都圏不動産公正取引協議会加盟 | ||
| 取扱い物件情報 | 物件詳細へ | ||
※各種情報と現状に差異がある場合は、現状優先となります。問い合わせをすることで、より詳しい条件、情報を確認する事ができます。
提供:アパマンショップ亀戸店
この物件が気になったら掲載期限まであと12日
ブルックサイドレジデンス木場の空き部屋一覧
全部で161の空き部屋があります。
ブルックサイドレジデンス木場に条件(家賃・エリア)が近い物件一覧
| 写真 | 家賃 管理費等 | 敷金 礼金 | 間取り 専有面積 | 築年数 | 最寄り駅 所在地 | キープ | 詳細 |
|---|---|---|---|---|---|---|---|
マンション クレヴィスタ亀戸V(1K/6階) | |||||||
![]() | 12.8万円 1.1万円 | なし 12.8万円 | 1K 25.41m2 | 築6年 | 東武鉄道亀戸線 亀戸水神駅 徒歩2分 総武・中央緩行線 亀戸駅 徒歩9分 東武鉄道亀戸線 東あずま駅 徒歩12分 東京都江東区亀戸8丁目 | 詳細を見る | |
アパート SEED SAVE PETIRASU Ⅲ(1LDK/1階) | |||||||
![]() | 10.4万円 1万円 | 20.8万円 10.4万円 | 1LDK 32.95m2 | 築1年 | 東京モノレール羽田 昭和島駅 徒歩12分 京浜急行電鉄本線 大森町駅 徒歩18分 東京都大田区大森東5丁目 | 詳細を見る | |
マンション プラウドフラット亀戸ステーションプレイス(1LDK/14階) | |||||||
![]() | 24.5万円 1.5万円 | 24.5万円 なし | 1LDK 44.02m2 | 築3年 | 東武亀戸線 亀戸駅 徒歩4分 東武亀戸線 亀戸水神駅 徒歩9分 都営新宿線 西大島駅 徒歩14分 東京都江東区亀戸 | 詳細を見る | |
マンション アーバネックス菊川II(1DK/3階) | |||||||
![]() | 13万円 1万円 | 13万円 なし | 1DK 25.26m2 | 築5年 | 都営新宿線 菊川駅(東京) 徒歩5分 東京メトロ半蔵門線 住吉駅(東京) 徒歩10分 都営新宿線 住吉駅(東京) 徒歩10分 東京都墨田区菊川 | 詳細を見る | |
一戸建て 東京地下鉄有楽町線 豊洲駅 徒歩12分 築51年(3DK) | |||||||
![]() | 13.8万円 なし | 13.8万円 13.8万円 | 3DK 64.71m2 | 築51年 | 東京地下鉄有楽町線 豊洲駅 徒歩12分 京葉線 潮見駅 徒歩20分 東京地下鉄東西線 木場駅 徒歩24分 東京都江東区枝川1丁目 | 詳細を見る | |
マンション メゾンドボナール(1DK/4階) | |||||||
![]() | 12万円 3,000円 | 12万円 なし | 1DK 32.48m2 | 築29年 | 京浜東北・根岸線 蒲田駅 徒歩10分 京浜急行電鉄本線 京急蒲田駅 徒歩10分 東京都大田区蒲田3丁目 | 詳細を見る | |
マンション アルファコート東六郷(1K/2階) | |||||||
![]() | 10.8万円 8,000円 | 10.8万円 なし | 1K 26.11m2 | 築4年 | 京急本線 雑色駅 徒歩8分 京急空港線 糀谷駅 徒歩16分 京急本線 京急蒲田駅 徒歩19分 東京都大田区東六郷 | 詳細を見る | |
マンション リビオメゾン東日本橋(1LDK/3階) | |||||||
![]() | 16.2万円 1.2万円 | 16.2万円 なし | 1LDK 34.17m2 | 築5年 | 東京都浅草線 東日本橋駅 徒歩3分 総武本線 馬喰町駅 徒歩4分 総武・中央緩行線 浅草橋駅 徒歩8分 東京都中央区東日本橋2丁目 | 詳細を見る | |









