賃貸マンション
ブルックサイドレジデンス木場の賃貸物件情報(1DK/8階)
| 家賃 | 管理費等 | 敷金 | 礼金 | 間取り | 専有面積 |
|---|---|---|---|---|---|
| 15.2万円 | 2万円 | 15.2万円 | なし | 1DK | 27.94m2 |
入居決定でお祝い金最大100,000円
Point
まずはお問い合わせ!
不動産会社は街のプロ、あなたに合った物件がきっと見つかります。
提供:アパマンショップ森下店

詳細情報 ブルックサイドレジデンス木場
物件紹介
ブルックサイドレジデンス木場は東京地下鉄東西線木場駅から徒歩9分にあり、駅近で通勤通学に便利なマンションです。
このお部屋は2階以上に位置しているので通行人や周囲の住人からの視線が気になりにくく、建物のエントランスはオートロックがついているので防犯性が高くなっています。
人気の南向きのお部屋。また、フローリングなのでお掃除もラクラク。キッチンはシステムキッチン仕様になっていますので、お料理好きの方にもぴったり。バス・トイレは別なので、のんびりお風呂タイムも楽しめるでしょう。また、雨の日でも浴室乾燥機を使えば、お洗濯も問題ありません。
通信設備面ではCATVに対応しているので、おうち時間も充実するでしょう(別途工事、契約料が必要な場合あり)。
建物にはエレベーターがついているので、重い荷物があっても安心。共用部には宅配ボックスが設定されているので、不在の時にも荷物を受け取ることができます。また、ペット飼育の相談ができますので、あなたの大切な家族の一員も快適に暮らせるか、ぜひ確認してみてください。
このお部屋は2階以上に位置しているので通行人や周囲の住人からの視線が気になりにくく、建物のエントランスはオートロックがついているので防犯性が高くなっています。
人気の南向きのお部屋。また、フローリングなのでお掃除もラクラク。キッチンはシステムキッチン仕様になっていますので、お料理好きの方にもぴったり。バス・トイレは別なので、のんびりお風呂タイムも楽しめるでしょう。また、雨の日でも浴室乾燥機を使えば、お洗濯も問題ありません。
通信設備面ではCATVに対応しているので、おうち時間も充実するでしょう(別途工事、契約料が必要な場合あり)。
建物にはエレベーターがついているので、重い荷物があっても安心。共用部には宅配ボックスが設定されているので、不在の時にも荷物を受け取ることができます。また、ペット飼育の相談ができますので、あなたの大切な家族の一員も快適に暮らせるか、ぜひ確認してみてください。
お金・契約の情報
※「-」と表示されているものは、実際は料金が発生するものもございます。詳細はお問い合わせください。
| 家賃 | 15.2万円 | 管理費・共益費 | 2万円 |
|---|---|---|---|
| 敷金 | 15.2万円 | 礼金 | なし |
| 入居決定でお祝い金最大100,000円 | |||
| 保証金 | - | 償却・敷引 | - |
| 住宅保険料 | - | 更新料 | - |
| 保証会社利用 | 利用可 | 保証会社名 | レジデントアシスタント |
| 保証会社費用 | - | 保証会社備考 | 初回:月額賃料(共益費・駐車場料金含む)の50%、年間:9,600円 |
| 契約形態 | - | 契約期間 | 2年 |
| 入居・引渡期間 | 2026年03月中旬 | 現況 | - |
| 入居可能条件 | ペット可 | ||
| 契約備考 | 口座振替事務手数料 110円、[退去時費用:室内清掃費 44,000円 ※故意・過失等別途実費] | ||
部屋の情報
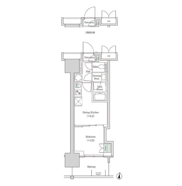
| 間取り | 1DK | 専有面積 | 27.94m2 |
|---|---|---|---|
| 所在階 / 向き | 8階 / 南 | バルコニー面積 | 5m2 |
| 水道 / ガス | - | ||
| 設備 | バス・トイレ別、オートロック、宅配ボックス、浴室乾燥機、追い焚き、システムキッチン、エレベーター、バルコニー、フローリング、CATV、洗濯機:室内 | ||
| 当社物件ID | 160301126 | ||
建物の情報
| 建物名 | ブルックサイドレジデンス木場 | ||
|---|---|---|---|
| 所在地 | 東京都江東区塩浜2丁目 | ||
| 交通 | 東京地下鉄東西線 木場駅 徒歩9分 | ||
| 階数 | 18階建 | 総戸数 | - |
| 築年月 | 2026年03月 / 新築 | エレベーター | あり |
| 駐車場 | - | バイク置き場 | あり |
| 駐輪場 | - | 管理人/管理会社 | - |
| 建物種別 | マンション | 建物構造 | RC(鉄筋コンクリート) |
この部屋の取扱い不動産会社
| 会社名 | アパマンショップ品川駅前店 | ||
|---|---|---|---|
| 所在地 | 東京都港区港南2丁目 2-15レゴリス品川駅前ビルディング4階 | 交通 | 常磐線品川から徒歩2分 |
| 営業時間 | 10:00〜19:00(オンライン接客対応店舗) | 定休日 | 水曜日 |
| 免許番号 | 国土交通大臣(5)6971 | 取引態様 | 仲介 |
| 不動産会社管理番号 | 111998808 | 当社管理番号 | 4 |
| 所属団体 | (公社)東京都宅地建物取引協会 | ||
| 公正取引協議会 | (公社) 首都圏不動産公正取引協議会加盟 | ||
| 取扱い物件情報 | 物件詳細へ | ||
※各種情報と現状に差異がある場合は、現状優先となります。問い合わせをすることで、より詳しい条件、情報を確認する事ができます。
提供:アパマンショップ品川駅前店
この物件が気になったら掲載期限まであと13日
ブルックサイドレジデンス木場の空き部屋一覧
全部で161の空き部屋があります。
ブルックサイドレジデンス木場に条件(家賃・エリア)が近い物件一覧
| 写真 | 家賃 管理費等 | 敷金 礼金 | 間取り 専有面積 | 築年数 | 最寄り駅 所在地 | キープ | 詳細 |
|---|---|---|---|---|---|---|---|
マンション オーキッドレジデンス戸越公園(2LDK/7階) | |||||||
![]() | 24万円 1.5万円 | 24万円 なし | 2LDK 42.43m2 | 築5年 | 東急大井町線 戸越公園駅 徒歩6分 都営浅草線 中延駅 徒歩7分 湘南新宿ライン宇須 西大井駅 徒歩9分 東京都品川区豊町 | 詳細を見る | |
アパート SEED SAVE PETIRASU Ⅲ(1LDK/2階) | |||||||
![]() | 11.5万円 1万円 | 23万円 11.5万円 | 1LDK 30.55m2 | 築1年 | 東京モノレール羽田 昭和島駅 徒歩12分 京浜急行電鉄本線 大森町駅 徒歩18分 東京都大田区大森東5丁目 | 詳細を見る | |
マンション プライムガーデン大森(1DK/12階) | |||||||
![]() | 14.3万円 1万円 | 14.3万円 なし | 1DK 25.3m2 | 築1年 | JR京浜東北線 大森駅(東京) 徒歩5分 京急本線 大森海岸駅 徒歩12分 京急本線 平和島駅 徒歩18分 東京都大田区大森北 | 詳細を見る | |
マンション GRAN PASEO大森Ⅲ(2LDK/2階) | |||||||
![]() | 23.7万円 1.5万円 | なし なし | 2LDK 46.21m2 | 築2年 | 京浜急行電鉄本線 大森海岸駅 徒歩6分 東京都品川区南大井3丁目 | 詳細を見る | |
マンション スカイコートリュクス品川大崎(1LDK/2階) | |||||||
![]() | 16.42万円 8,800円 | 16.42万円 16.42万円 | 1LDK 30.7m2 | 築1年 | 東急大井町線 下神明駅 徒歩9分 JR山手線 大崎駅 徒歩9分 東急大井町線 大井町駅 徒歩19分 東京都品川区西品川 | 詳細を見る | |
マンション TSK蒲田フラワーマンション(1LDK/8階) | |||||||
![]() | 11.2万円 8,000円 | 11.2万円 11.2万円 | 1LDK 41m2 | 築47年 | 京浜東北・根岸線 蒲田駅 徒歩12分 京浜急行電鉄本線 梅屋敷駅(東京) 徒歩12分 東京都大田区蒲田1丁目 | 詳細を見る | |







