賃貸マンション
ブルックサイドレジデンス木場の賃貸物件情報(1LDK/2階)
| 家賃 | 管理費等 | 敷金 | 礼金 | 間取り | 専有面積 |
|---|---|---|---|---|---|
| 15万円 | 2万円 | 15万円 | なし | 1LDK | 30.94m2 |
入居決定でお祝い金最大100,000円
Point
まずはお問い合わせ!
不動産会社は街のプロ、あなたに合った物件がきっと見つかります。
提供:ハウスコム東東京株式会社 押上店

詳細情報 ブルックサイドレジデンス木場
物件紹介
ブルックサイドレジデンス木場は東京地下鉄東西線木場駅から徒歩9分にあり、駅近で通勤通学に便利なマンションです。
このお部屋は2階以上に位置しているので、通行人や周囲の住人からの視線が気になりにくく、防犯面でも安心。建物のエントランスはオートロックがついており、インターホンにはTVモニタもついているため、相手の顔を確認してから来客対応することができます。
人気の南向き・フローリングのお部屋。角部屋でもあるため、周囲の居住者の生活音も気になりにくい場所です。キッチンはシステムキッチン仕様になっていますので、お料理好きの方にもぴったり。バス・トイレは別なので、のんびりお風呂タイムも楽しめるでしょう。また、雨の日でも浴室乾燥機を使えば、お洗濯も問題ありません。
通信設備面では、インターネット接続が可能です。また、BSアンテナ・CSアンテナもありますので、おうち時間も充実するでしょう(別途工事、契約料が必要な場合あり)。
建物にはエレベーターがついているので、重い荷物があっても安心。共用部には宅配ボックスが設定されているので、不在の時にも荷物を受け取ることができます。また、ペット飼育の相談ができますので、あなたの大切な家族の一員も快適に暮らせるか、ぜひ確認してみてください。
このお部屋は2階以上に位置しているので、通行人や周囲の住人からの視線が気になりにくく、防犯面でも安心。建物のエントランスはオートロックがついており、インターホンにはTVモニタもついているため、相手の顔を確認してから来客対応することができます。
人気の南向き・フローリングのお部屋。角部屋でもあるため、周囲の居住者の生活音も気になりにくい場所です。キッチンはシステムキッチン仕様になっていますので、お料理好きの方にもぴったり。バス・トイレは別なので、のんびりお風呂タイムも楽しめるでしょう。また、雨の日でも浴室乾燥機を使えば、お洗濯も問題ありません。
通信設備面では、インターネット接続が可能です。また、BSアンテナ・CSアンテナもありますので、おうち時間も充実するでしょう(別途工事、契約料が必要な場合あり)。
建物にはエレベーターがついているので、重い荷物があっても安心。共用部には宅配ボックスが設定されているので、不在の時にも荷物を受け取ることができます。また、ペット飼育の相談ができますので、あなたの大切な家族の一員も快適に暮らせるか、ぜひ確認してみてください。
お金・契約の情報
※「-」と表示されているものは、実際は料金が発生するものもございます。詳細はお問い合わせください。
| 家賃 | 15万円 | 管理費・共益費 | 2万円 |
|---|---|---|---|
| 敷金 | 15万円 | 礼金 | なし |
| 入居決定でお祝い金最大100,000円 | |||
| 保証金 | - | 償却・敷引 | - |
| 住宅保険料 | 1円 | 更新料 | - |
| その他費用 | 室内清掃費:4.84万円 | ||
| 保証会社利用 | 必須 | 保証会社名 | - |
| 保証会社費用 | - | 保証会社備考 | 保証会社名:株式会社CASA/初回保証委託料(最低20000円):月額賃料等の50%、2年目以降:10000円/年、決済手数料300円(税込)/月 |
| 契約形態 | - | 契約期間 | 2年 |
| 入居・引渡期間 | 2026年03月中旬 | 現況 | 未完成 |
| 入居可能条件 | 事務所不可、ペット相談 | ||
| 契約備考 | 月額(口座振替事務手数料 110円) その他設備/条件:室内洗濯機置き場、独立洗面台 | ||
部屋の情報
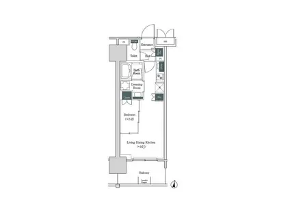
| 間取り | 1LDK | 専有面積 | 30.94m2 |
|---|---|---|---|
| 所在階 / 向き | 2階 / 南 | バルコニー面積 | 7m2 |
| 水道 / ガス | - | ||
| 設備 | バス・トイレ別、オートロック、宅配ボックス、浴室乾燥機、追い焚き、システムキッチン、エアコン、エレベーター、バルコニー、フローリング | ||
| 当社物件ID | 160281707 | ||
建物の情報
| 建物名 | ブルックサイドレジデンス木場 | ||
|---|---|---|---|
| 所在地 | 東京都江東区塩浜2丁目 | ||
| 交通 | 東京地下鉄東西線 木場駅 徒歩9分 | ||
| 階数 | 18階建 | 総戸数 | - |
| 築年月 | 2026年03月 / 新築 | エレベーター | あり |
| 駐車場 | なし | バイク置き場 | あり |
| 駐輪場 | - | 管理人/管理会社 | - |
| 周辺環境 | その他 ドラッグストア その他 公園 その他 銀行 その他 * | ||
| 建物種別 | マンション | 建物構造 | RC(鉄筋コンクリート) |
この部屋の取扱い不動産会社
| 会社名 | ハウスコム東東京株式会社 押上店 | ||
|---|---|---|---|
| 所在地 | 東京都墨田区16-2三橋ビル1階 | 交通 | - |
| 営業時間 | 10:00~18:00 | 定休日 | 水曜定休 |
| 免許番号 | 東京都知事(1)第108283号 | 取引態様 | 仲介 |
| 不動産会社管理番号 | HC5-5347382-201-0072 | 当社管理番号 | 468 |
| 所属団体 | 、 | ||
| 取扱い物件情報 | 物件詳細へ | ||
※各種情報と現状に差異がある場合は、現状優先となります。問い合わせをすることで、より詳しい条件、情報を確認する事ができます。
提供:ハウスコム東東京株式会社 押上店
この物件が気になったら掲載期限まであと4日
ブルックサイドレジデンス木場の空き部屋一覧
全部で28の空き部屋があります。
ブルックサイドレジデンス木場に条件(家賃・エリア)が近い物件一覧
| 写真 | 家賃 管理費等 | 敷金 礼金 | 間取り 専有面積 | 築年数 | 最寄り駅 所在地 | キープ | 詳細 |
|---|---|---|---|---|---|---|---|
マンション ジェノヴィア蒲田3スカイガーデン(1K/3階) | |||||||
![]() | 11.5万円 1.5万円 | なし なし | 1K 25.41m2 | 築5年 | 京浜急行電鉄本線 京急蒲田駅 徒歩6分 京浜急行電鉄空港線 糀谷駅 徒歩10分 京浜東北・根岸線 蒲田駅 徒歩15分 東京都大田区南蒲田2丁目 | 詳細を見る | |
アパート セレスティア下丸子(2LDK/3階) | |||||||
![]() | 19万円 6,000円 | なし 38万円 | 2LDK 48.93m2 | 新築 | 東急多摩川線 武蔵新田駅 徒歩7分 東京都大田区下丸子2丁目 | 詳細を見る | |
マンション クレストコート池上(2LDK/10階) | |||||||
![]() | 22.6万円 1.8万円 | 22.6万円 なし | 2LDK 45.88m2 | 築1年 | 東急池上線 池上駅 徒歩4分 東急池上線 蓮沼駅 徒歩13分 東急多摩川線 矢口渡駅 徒歩21分 東京都大田区池上 | 詳細を見る | |
マンション スタイリオ池上WELL(1LDK/2階) | |||||||
![]() | 19.3万円 1.5万円 | 19.3万円 なし | 1LDK 42.63m2 | 築3年 | 東急池上線 池上駅 徒歩7分 東京都大田区池上7丁目 | 詳細を見る | |
マンション REALIZE蒲田Ⅱ(1K/3階) | |||||||
![]() | 10.4万円 8,000円 | なし 10.4万円 | 1K 25.74m2 | 築6年 | 京浜急行電鉄本線 京急蒲田駅 徒歩9分 京浜急行電鉄本線 梅屋敷駅(東京) 徒歩10分 京浜急行電鉄空港線 糀谷駅 徒歩13分 東京都大田区東蒲田2丁目 | 詳細を見る | |
マンション グランドコンシェルジュ大森本町2アジールコート(1K/2階) | |||||||
![]() | 12.8万円 5,000円 | 12.8万円 12.8万円 | 1K 29.38m2 | 築7年 | 京浜急行電鉄本線 平和島駅 徒歩7分 東京都大田区大森本町2丁目 | 詳細を見る | |







