賃貸マンション
ブルックサイドレジデンス木場の賃貸物件情報(2K/4階)
| 家賃 | 管理費等 | 敷金 | 礼金 | 間取り | 専有面積 |
|---|---|---|---|---|---|
| 13.7万円 | 2万円 | 13.7万円 | なし | 2K | 25.9m2 |
入居決定でお祝い金最大100,000円
- 保証金
- -
- 償却・敷引
- -
- 築年数
- 築1年
- 所在階
- 4階
- 向き
- 南
Point
先行申込受付中!お部屋探しはタウンハウジングへ!
提供:トラスト・レジデンス浅草橋店(株)瑞鳳(SUUMO経由)

詳細情報 ブルックサイドレジデンス木場
物件紹介
ブルックサイドレジデンス木場は東京メトロ東西線木場駅から徒歩9分にあり、駅近で通勤通学に便利なマンションです。
このお部屋は2階以上に位置しているので、通行人や周囲の住人からの視線が気になりにくく、防犯面でも安心。建物のエントランスはオートロックがついており、インターホンにはTVモニタもついているため、相手の顔を確認してから来客対応することができます。
人気の南向きのお部屋。また、フローリングなのでお掃除もラクラク。キッチンはシステムキッチン仕様になっていますので、お料理好きの方にもぴったり。バス・トイレは別なので、のんびりお風呂タイムも楽しめるでしょう。また、雨の日でも浴室乾燥機を使えば、お洗濯も問題ありません。
通信設備面では、インターネットが無料で使えるので、月々の出費を抑えられるのも魅力です。また、CATVにも対応しているので、おうち時間も充実するでしょう(別途工事、CATVの契約料等が必要な場合あり)。
建物にはエレベーターがついているので、重い荷物があっても安心。共用部には宅配ボックスが設定されているので、不在の時にも荷物を受け取ることができます。また、ペット飼育の相談ができますので、あなたの大切な家族の一員も快適に暮らせるか、ぜひ確認してみてください。
コンビニまで徒歩2分の場所にあり、日用品や食料品のお買い物にも便利です。
このお部屋は2階以上に位置しているので、通行人や周囲の住人からの視線が気になりにくく、防犯面でも安心。建物のエントランスはオートロックがついており、インターホンにはTVモニタもついているため、相手の顔を確認してから来客対応することができます。
人気の南向きのお部屋。また、フローリングなのでお掃除もラクラク。キッチンはシステムキッチン仕様になっていますので、お料理好きの方にもぴったり。バス・トイレは別なので、のんびりお風呂タイムも楽しめるでしょう。また、雨の日でも浴室乾燥機を使えば、お洗濯も問題ありません。
通信設備面では、インターネットが無料で使えるので、月々の出費を抑えられるのも魅力です。また、CATVにも対応しているので、おうち時間も充実するでしょう(別途工事、CATVの契約料等が必要な場合あり)。
建物にはエレベーターがついているので、重い荷物があっても安心。共用部には宅配ボックスが設定されているので、不在の時にも荷物を受け取ることができます。また、ペット飼育の相談ができますので、あなたの大切な家族の一員も快適に暮らせるか、ぜひ確認してみてください。
コンビニまで徒歩2分の場所にあり、日用品や食料品のお買い物にも便利です。
お金・契約の情報
※「-」と表示されているものは、実際は料金が発生するものもございます。詳細はお問い合わせください。
| 家賃 | 13.7万円 | 管理費・共益費 | 2万円 |
|---|---|---|---|
| 敷金 | 13.7万円 | 礼金 | なし |
| 入居決定でお祝い金最大100,000円 | |||
| 保証金 | - | 償却・敷引 | - |
| 住宅保険料 | - | 更新料 | - |
| 保証会社利用 | 必須 | 保証会社名 | - |
| 保証会社費用 | - | 保証会社備考 | 保証会社利用必 初回保証料(最低二万円):月額賃料等の50%、2年目以降:一万円/年、決済手数料三百円(税込)/月 |
| 契約形態 | - | 契約期間 | - |
| 入居・引渡期間 | 即時 | 現況 | - |
| 入居可能条件 | ペット相談 | ||
| 契約備考 | 東京メトロ東西線門前仲町駅徒歩24分/常駐管理/★東京都を中心に関東人気エリアの賃貸マンション・アパート情報が豊富★お部屋探しは首都圏に強いタウンハウジングにお任せ下さい。※解約時違約金有 合計4.4万円(内訳:室内清掃費用:44000円) 更新料新賃料(ヶ月):1.00ヶ月、口座振替事務手数料:110円/月 2K 単身者可/ペット相談 普通借家2年 損保【2万円2年】 バストイレ別、バルコニー、エアコン、ガスコンロ対応、クロゼット、フローリング、シャワー付洗面台、TVインターホン、浴室乾燥機、オートロック、室内洗濯置、シューズボックス、システムキッチン、南向き、追焚機能浴室、温水洗浄便座、脱衣所、エレベーター、洗面所独立、洗面化粧台、2口コンロ、宅配ボックス、CATV、即入居可、礼金不要、防犯カメラ、独立型キッチン、ペット相談、照明付、オートバス、全居室洋室、保証人不要、単身者相談、敷金1ヶ月、全居室フローリング、2沿線利用可、駅まで平坦、保証金不要、築2年以内、24時間換気システム、平坦地、築3年以内、2駅利用可、3駅以上利用可、3沿線以上利用可、駅徒歩10分以内、敷地内ごみ置き場、築5年以内、洗面所にドア、玄関収納、IT重説対応物件 | ||
部屋の情報
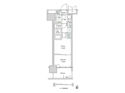
| 間取り | 2K | 専有面積 | 25.9m2 |
|---|---|---|---|
| 所在階 / 向き | 4階 / 南 | バルコニー面積 | - |
| 水道 / ガス | - | ||
| 設備 | バス・トイレ別、2階以上、オートロック、テレビドアホン、宅配ボックス、浴室乾燥機、追い焚き、システムキッチン、エアコン、エレベーター、温水洗浄便座、南向き、バルコニー、フローリング、洗髪洗面化粧台、2口コンロ、コンロ:ガス、CATV、洗濯機:室内 | ||
| 当社物件ID | 160484244 | ||
建物の情報
| 建物名 | ブルックサイドレジデンス木場 | ||
|---|---|---|---|
| 所在地 | 東京都江東区塩浜 | ||
| 交通 | 東京メトロ東西線 木場駅 徒歩9分 東京メトロ東西線 東陽町駅 徒歩20分 東京メトロ有楽町線 豊洲駅 徒歩23分 | ||
| 階数 | 18階建 | 総戸数 | - |
| 築年月 | 2026年03月 / 築1年 | エレベーター | あり |
| 駐車場 | 空有 35200円 | バイク置き場 | - |
| 駐輪場 | - | 管理人/管理会社 | - |
| 周辺環境 | その他 くすりの福太郎(ドラッグストア)まで1060m その他 どらっぐぱぱす塩浜店(ドラッグストア)まで1030m その他 まいばすけっと東陽1丁目店(スーパー)まで760m その他 イトーヨーカドー木場店(スーパー)まで710m その他 セブンイレブン江東塩浜店(コンビニ)まで260m その他 ファミリーマート木場六丁目店(コンビニ)まで920m | ||
| 建物種別 | マンション | 建物構造 | RC(鉄筋コンクリート) |
この部屋の取扱い不動産会社
| 会社名 | (株)タウンハウジング東京 恵比寿店(SUUMO経由) | ||
|---|---|---|---|
| 所在地 | 東京都渋谷区恵比寿1-7-12 恵比寿フロントビル3階 | 交通 | - |
| 営業時間 | AM10:00~PM7:00 | 定休日 | 水曜日 |
| 免許番号 | 国土交通大臣9926 | 取引態様 | 仲介 |
| 不動産会社管理番号 | 100494801544 | 当社管理番号 | 89 |
| 所属団体 | (公社)東京都宅地建物取引業協会会員 | ||
| 公正取引協議会 | (公社)首都圏不動産公正取引協議会加盟 | ||
| 取扱い物件情報 | 物件詳細へ | ||
※各種情報と現状に差異がある場合は、現状優先となります。問い合わせをすることで、より詳しい条件、情報を確認する事ができます。
提供:(株)タウンハウジング東京 恵比寿店(SUUMO経由)
この物件が気になったら掲載期限まであと10日
ブルックサイドレジデンス木場の空き部屋一覧
全部で139の空き部屋があります。
ブルックサイドレジデンス木場に条件(家賃・エリア)が近い物件一覧
| 写真 | 家賃 管理費等 | 敷金 礼金 | 間取り 専有面積 | 築年数 | 最寄り駅 所在地 | キープ | 詳細 |
|---|---|---|---|---|---|---|---|
アパート サン ヴィータ(1K/1階) | |||||||
![]() | 8.6万円 5,000円 | 8.6万円 8.6万円 | 1K 20.02m2 | 築6年 | 京急本線 京急蒲田駅 徒歩6分 京急本線 梅屋敷駅(東京) 徒歩10分 JR京浜東北線 蒲田駅 徒歩10分 東京都大田区蒲田 | 詳細を見る | |
マンション プレール日本橋壱番館(1K/7階) | |||||||
![]() | 11.6万円 1.1万円 | なし 11.6万円 | 1K 19.57m2 | 築25年 | 東京地下鉄半蔵門線 水天宮前駅 徒歩3分 東京地下鉄日比谷線 人形町駅 徒歩6分 東京都新宿線 浜町駅 徒歩9分 東京都中央区日本橋蛎殻町2丁目 | 詳細を見る | |
マンション ARKMARK水天宮前I(1DK/3階) | |||||||
![]() | 13.2万円 1.5万円 | なし なし | 1DK 25.35m2 | 築6年 | 東京メトロ半蔵門線 水天宮前駅 徒歩9分 東京メトロ東西線 門前仲町駅 徒歩9分 東京メトロ日比谷線 茅場町駅 徒歩13分 東京都江東区佐賀 | 詳細を見る | |
マンション グランド・ガーラ東大島(2K/8階) | |||||||
![]() | 9.5万円 9,000円 | 9.5万円 19万円 | 2K 25.51m2 | 築6年 | 東京都新宿線 東大島駅 徒歩14分 東京都新宿線 大島駅(東京) 徒歩23分 東京都新宿線 船堀駅 徒歩32分 東京都江東区東砂3丁目 | 詳細を見る | |
マンション クレヴィスタ亀戸IV(1K/10階) | |||||||
![]() | 13.8万円 1.1万円 | なし 13.8万円 | 1K 25.56m2 | 築7年 | 総武・中央緩行線 亀戸駅 徒歩4分 東武鉄道亀戸線 亀戸駅 徒歩4分 総武本線 錦糸町駅 徒歩12分 東京都江東区亀戸2丁目 | 詳細を見る | |
マンション BLANCHE(1LDK/1階) | |||||||
![]() | 12.4万円 3,000円 | 12.4万円 なし | 1LDK 34.23m2 | 築10年 | 東急池上線 久が原駅 徒歩2分 東急池上線 御嶽山駅 徒歩8分 東京都大田区東嶺町 | 詳細を見る | |
アパート ウイステリア(1K/2階) | |||||||
![]() | 8.9万円 2,000円 | 8.9万円 17.8万円 | 1K 24.22m2 | 築21年 | 京浜急行電鉄本線 大森町駅 徒歩10分 京浜急行電鉄本線 梅屋敷駅(東京) 徒歩15分 東京都大田区大森東4丁目 | 詳細を見る | |







