賃貸マンション
ブルックサイドレジデンス木場の賃貸物件情報(2K/4階)
| 家賃 | 管理費等 | 敷金 | 礼金 | 間取り | 専有面積 |
|---|---|---|---|---|---|
| 13.8万円 | 2万円 | 13.8万円 | なし | 2K | 27.8m2 |
入居決定でお祝い金最大100,000円
Point
お部屋探しは、アパマンショップ大井町駅前店にお任せください!
提供:アパマンショップ品川駅前店

詳細情報 ブルックサイドレジデンス木場
物件紹介
ブルックサイドレジデンス木場は東京地下鉄東西線木場駅から徒歩9分にあり、駅近で通勤通学に便利なマンションです。
このお部屋は2階以上に位置しているので通行人や周囲の住人からの視線が気になりにくく、建物のエントランスはオートロックがついているので防犯性が高くなっています。
フローリングのお部屋なのでお掃除もラクラク。室内には人気のウォークインクローゼットがありますので、たくさんの荷物も効率的に収納ができます。キッチンはシステムキッチン仕様になっていますので、お料理好きの方にもぴったり。バス・トイレは別なので、のんびりお風呂タイムも楽しめるでしょう。また、雨の日でも浴室乾燥機を使えば、お洗濯も問題ありません。
通信設備面ではCATVに対応しているので、おうち時間も充実するでしょう(別途工事、契約料が必要な場合あり)。
建物にはエレベーターがついているので、重い荷物があっても安心。共用部には宅配ボックスが設定されているので、不在の時にも荷物を受け取ることができます。また、ペット飼育の相談ができますので、あなたの大切な家族の一員も快適に暮らせるか、ぜひ確認してみてください。
このお部屋は2階以上に位置しているので通行人や周囲の住人からの視線が気になりにくく、建物のエントランスはオートロックがついているので防犯性が高くなっています。
フローリングのお部屋なのでお掃除もラクラク。室内には人気のウォークインクローゼットがありますので、たくさんの荷物も効率的に収納ができます。キッチンはシステムキッチン仕様になっていますので、お料理好きの方にもぴったり。バス・トイレは別なので、のんびりお風呂タイムも楽しめるでしょう。また、雨の日でも浴室乾燥機を使えば、お洗濯も問題ありません。
通信設備面ではCATVに対応しているので、おうち時間も充実するでしょう(別途工事、契約料が必要な場合あり)。
建物にはエレベーターがついているので、重い荷物があっても安心。共用部には宅配ボックスが設定されているので、不在の時にも荷物を受け取ることができます。また、ペット飼育の相談ができますので、あなたの大切な家族の一員も快適に暮らせるか、ぜひ確認してみてください。
お金・契約の情報
※「-」と表示されているものは、実際は料金が発生するものもございます。詳細はお問い合わせください。
| 家賃 | 13.8万円 | 管理費・共益費 | 2万円 |
|---|---|---|---|
| 敷金 | 13.8万円 | 礼金 | なし |
| 入居決定でお祝い金最大100,000円 | |||
| 保証金 | - | 償却・敷引 | - |
| 住宅保険料 | - | 更新料 | - |
| 保証会社利用 | 利用可 | 保証会社名 | レジデントアシスタント |
| 保証会社費用 | - | 保証会社備考 | 初回:月額賃料(共益費・駐車場料金含む)の50%、年間:9,600円 |
| 契約形態 | - | 契約期間 | 2年 |
| 入居・引渡期間 | 2026年03月下旬 | 現況 | - |
| 入居可能条件 | ペット可 | ||
| 契約備考 | 口座振替事務手数料 110円、[退去時費用:室内清掃費 44,000円 ※故意・過失等別途実費] | ||
部屋の情報
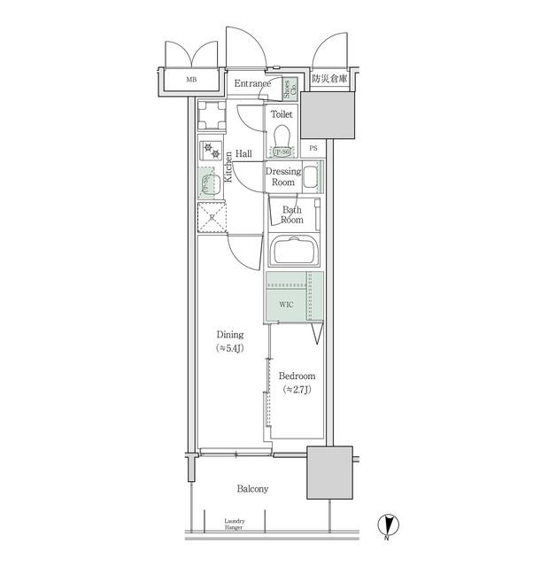
| 間取り | 2K | 専有面積 | 27.8m2 |
|---|---|---|---|
| 所在階 / 向き | 4階 / 北 | バルコニー面積 | 5m2 |
| 水道 / ガス | - | ||
| 設備 | バス・トイレ別、オートロック、宅配ボックス、浴室乾燥機、ウォークインクローゼット、追い焚き、システムキッチン、エレベーター、バルコニー、フローリング、CATV、洗濯機:室内 | ||
| 当社物件ID | 160484229 | ||
建物の情報
| 建物名 | ブルックサイドレジデンス木場 | ||
|---|---|---|---|
| 所在地 | 東京都江東区塩浜2丁目 | ||
| 交通 | 東京地下鉄東西線 木場駅 徒歩9分 | ||
| 階数 | 18階建 | 総戸数 | - |
| 築年月 | 2026年03月 / 築1年 | エレベーター | あり |
| 駐車場 | - | バイク置き場 | あり |
| 駐輪場 | - | 管理人/管理会社 | - |
| 建物種別 | マンション | 建物構造 | RC(鉄筋コンクリート) |
この部屋の取扱い不動産会社
| 会社名 | アパマンショップ大井町駅前店 | ||
|---|---|---|---|
| 所在地 | 東京都品川区東大井5丁目 17-4高山ビル2F | 交通 | 京浜東北・根岸線大井町から徒歩1分 |
| 営業時間 | 10:00〜18:30 | 定休日 | - |
| 免許番号 | 東京都知事(5)83411 | 取引態様 | 仲介 |
| 不動産会社管理番号 | 112098576 | 当社管理番号 | 4 |
| 所属団体 | (公社)全日本不動産協会東京都本部 | ||
| 公正取引協議会 | (公社) 首都圏不動産公正取引協議会加盟 | ||
| 取扱い物件情報 | 物件詳細へ | ||
※各種情報と現状に差異がある場合は、現状優先となります。問い合わせをすることで、より詳しい条件、情報を確認する事ができます。
提供:アパマンショップ大井町駅前店
この物件が気になったら掲載期限まであと10日
ブルックサイドレジデンス木場の空き部屋一覧
全部で194の空き部屋があります。
ブルックサイドレジデンス木場に条件(家賃・エリア)が近い物件一覧
| 写真 | 家賃 管理費等 | 敷金 礼金 | 間取り 専有面積 | 築年数 | 最寄り駅 所在地 | キープ | 詳細 |
|---|---|---|---|---|---|---|---|
マンション クレストコート本所吾妻橋ノース 本所吾妻橋ノース(1DK/8階) | |||||||
![]() | 15.7万円 1.2万円 | 15.7万円 なし | 1DK 25.42m2 | 築1年 | 東京都浅草線 本所吾妻橋駅 徒歩2分 東京地下鉄銀座線 浅草駅(東武・都営・メトロ) 徒歩9分 東武伊勢崎・大師線 とうきょうスカイツリー駅 徒歩10分 東京都墨田区吾妻橋2丁目 | 詳細を見る | |
マンション WHARF森下(1K/4階) | |||||||
![]() | 14.8万円 1万円 | 14.8万円 なし | 1K 26.84m2 | 築12年 | 東京都大江戸線 森下駅(東京) 徒歩3分 東京都墨田区菊川1丁目 | 詳細を見る | |
マンション ドゥーエ亀戸II(1DK/10階) | |||||||
![]() | 14.6万円 1万円 | 14.6万円 14.6万円 | 1DK 29.75m2 | 築2年 | 東武亀戸線 亀戸水神駅 徒歩5分 JR総武線 亀戸駅 徒歩7分 都営新宿線 大島駅(東京) 徒歩13分 東京都江東区亀戸 | 詳細を見る | |
マンション ドルチェ月島・弐番館(1K/10階) | |||||||
![]() | 12.8万円 1.1万円 | なし 12.8万円 | 1K 22.7m2 | 築23年 | 都営大江戸線 勝どき駅 徒歩4分 東京メトロ有楽町線 月島駅 徒歩6分 東京メトロ日比谷線 築地駅 徒歩20分 東京都中央区月島 | 詳細を見る | |
マンション メゾン大沢(1DK/5階) | |||||||
![]() | 8.5万円 なし | 8.5万円 8.5万円 | 1DK 28m2 | 築47年 | 東京地下鉄東西線 門前仲町駅 徒歩11分 東京地下鉄東西線 木場駅 徒歩11分 東京地下鉄半蔵門線 清澄白河駅 徒歩14分 東京都江東区冬木 | 詳細を見る | |
マンション NINE-HARVEST(1K/5階) | |||||||
![]() | 11.5万円 9,000円 | 11.5万円 11.5万円 | 1K 26.56m2 | 築4年 | 都営大江戸線 蔵前駅 徒歩7分 JR総武線 両国駅 徒歩10分 東京都墨田区横網 | 詳細を見る | |
マンション レピュア東大島駅前レジデンス(2LDK/5階) | |||||||
![]() | 22.1万円 1.5万円 | なし なし | 2LDK 43.94m2 | 築2年 | 都営新宿線 東大島駅 徒歩6分 都営新宿線 大島駅(東京) 徒歩14分 東武亀戸線 亀戸水神駅 徒歩25分 東京都江東区大島 | 詳細を見る | |


/105x80-f1-q70-wp1)




