賃貸マンション
ザ・パークハビオ北千住の賃貸物件情報(1LDK/6階)
| 家賃 | 管理費等 | 敷金 | 礼金 | 間取り | 専有面積 |
|---|---|---|---|---|---|
| 21万円 | 2万円 | 21万円 | 21万円 | 1LDK | 40.79m2 |
入居決定でお祝い金最大100,000円
- 保証金
- -
- 償却・敷引
- -
- 築年数
- 築1年
- 所在階
- 6階
- 向き
- 東
Point
まずはお問い合わせ!
不動産会社は街のプロ、あなたに合った物件がきっと見つかります。
提供:(株)リブリッチ錦糸町駅前店(SUUMO経由)

詳細情報 ザ・パークハビオ北千住
物件紹介
ザ・パークハビオ北千住はJR常磐線北千住駅から徒歩5分にあり、駅近で通勤通学に便利なマンションです。
このお部屋は2階以上に位置しているので、通行人や周囲の住人からの視線が気になりにくく、防犯面でも安心。建物のエントランスはオートロックがついており、インターホンにはTVモニタもついているため、相手の顔を確認してから来客対応することができます。
フローリングのお部屋なのでお掃除もラクラク。キッチンはシステムキッチン仕様になっていますので、お料理好きの方にもぴったり。バス・トイレは別なので、のんびりお風呂タイムも楽しめるでしょう。また、雨の日でも浴室乾燥機を使えば、お洗濯も問題ありません。
通信設備面では、インターネットが無料で使えるので、月々の出費を抑えられるのも魅力です(別途工事等が必要な場合あり)。
建物にはエレベーターがついているので、重い荷物があっても安心。共用部には宅配ボックスが設定されているので、不在の時にも荷物を受け取ることができます。また、ペット飼育の相談ができますので、あなたの大切な家族の一員も快適に暮らせるか、ぜひ確認してみてください。
このお部屋は2階以上に位置しているので、通行人や周囲の住人からの視線が気になりにくく、防犯面でも安心。建物のエントランスはオートロックがついており、インターホンにはTVモニタもついているため、相手の顔を確認してから来客対応することができます。
フローリングのお部屋なのでお掃除もラクラク。キッチンはシステムキッチン仕様になっていますので、お料理好きの方にもぴったり。バス・トイレは別なので、のんびりお風呂タイムも楽しめるでしょう。また、雨の日でも浴室乾燥機を使えば、お洗濯も問題ありません。
通信設備面では、インターネットが無料で使えるので、月々の出費を抑えられるのも魅力です(別途工事等が必要な場合あり)。
建物にはエレベーターがついているので、重い荷物があっても安心。共用部には宅配ボックスが設定されているので、不在の時にも荷物を受け取ることができます。また、ペット飼育の相談ができますので、あなたの大切な家族の一員も快適に暮らせるか、ぜひ確認してみてください。
お金・契約の情報
※「-」と表示されているものは、実際は料金が発生するものもございます。詳細はお問い合わせください。
| 家賃 | 21万円 | 管理費・共益費 | 2万円 |
|---|---|---|---|
| 敷金 | 21万円 | 礼金 | 21万円 |
| 入居決定でお祝い金最大100,000円 | |||
| 保証金 | - | 償却・敷引 | - |
| 住宅保険料 | - | 更新料 | - |
| 保証会社利用 | 必須 | 保証会社名 | - |
| 保証会社費用 | - | 保証会社備考 | 保証会社利用必 詳細はご確認ください |
| 契約形態 | - | 契約期間 | - |
| 入居・引渡期間 | 即時 | 現況 | - |
| 入居可能条件 | ペット相談 | ||
| 契約備考 | 「錦糸町de部屋探し」株式会社リブリッチ錦糸町店は錦糸町駅から徒歩1分の楽天地ビル1Fにあります。楽天地ビルはPARCOや西友が入る大型の店舗です。カップルやファミリー、女性向けのお部屋を中心に多数の情報を取り揃えてお待ちしております。法人様や学生向けのお部屋も充実しておりますのでお気軽にご相談ください。各種クレジットカード利用可、契約金を分割に出来ます。 1LDK 二人入居可/ペット相談 普通借家2年 損保【要】 バストイレ別、バルコニー、エアコン、ガスコンロ対応、クロゼット、フローリング、TVインターホン、浴室乾燥機、オートロック、室内洗濯置、陽当り良好、シューズボックス、システムキッチン、温水洗浄便座、脱衣所、エレベーター、洗面所独立、駐輪場、宅配ボックス、即入居可、3口以上コンロ、防犯カメラ、ペット相談、全居室洋室、保証人不要、敷金1ヶ月、全居室フローリング、2沿線利用可、エアコン2台、ネット使用料不要、ダブルロックキー、24時間換気システム、エアコン3台、2駅利用可、3駅以上利用可、3沿線以上利用可、駅徒歩5分以内、駅徒歩10分以内、24時間ゴミ出し可、LDK12畳以上、都市ガス、洗面所にドア、礼金1ヶ月、初期費用カード決済可 | ||
部屋の情報
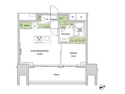
| 間取り | 1LDK | 専有面積 | 40.79m2 |
|---|---|---|---|
| 所在階 / 向き | 6階 / 東 | バルコニー面積 | - |
| 水道 / ガス | - | ||
| 設備 | バス・トイレ別、2階以上、オートロック、テレビドアホン、宅配ボックス、浴室乾燥機、インターネット対応、システムキッチン、エアコン、エレベーター、温水洗浄便座、バルコニー、フローリング、洗髪洗面化粧台、2口コンロ、コンロ:ガス、インターネット使用料無料、洗濯機:室内 | ||
| 当社物件ID | 159529244 | ||
建物の情報
| 建物名 | ザ・パークハビオ北千住 | ||
|---|---|---|---|
| 所在地 | 東京都足立区千住 | ||
| 交通 | JR常磐線 北千住駅 徒歩5分 京成本線 千住大橋駅 徒歩17分 東武伊勢崎線 牛田駅(東京) 徒歩18分 | ||
| 階数 | 14階建 | 総戸数 | - |
| 築年月 | 2025年07月 / 築1年 | エレベーター | あり |
| 駐車場 | なし | バイク置き場 | - |
| 駐輪場 | あり | 管理人/管理会社 | - |
| 周辺環境 | その他 弥生小学校(小学校)まで2336m その他 梅島小学校(小学校)まで2927m その他 足立区立第四中学校(中学校)まで2564m その他 足立高等学校(高校・高専)まで2427m その他 やよい軒 三ノ輪店(飲食店)まで2695m その他 浅草むぎとろ 本店(飲食店)まで5494m | ||
| 建物種別 | マンション | 建物構造 | RC(鉄筋コンクリート) |
この部屋の取扱い不動産会社
| 会社名 | いい部屋ネット目黒駅前店(株)リブリッチ(SUUMO経由) | ||
|---|---|---|---|
| 所在地 | 東京都品川区上大崎2-12-1 野田ビル3階 | 交通 | - |
| 営業時間 | 10:00~18:00 | 定休日 | 水曜日 |
| 免許番号 | 国土交通大臣10580 | 取引態様 | 仲介 |
| 不動産会社管理番号 | 100491694073 | 当社管理番号 | 89 |
| 取扱い物件情報 | 物件詳細へ | ||
※各種情報と現状に差異がある場合は、現状優先となります。問い合わせをすることで、より詳しい条件、情報を確認する事ができます。
提供:いい部屋ネット目黒駅前店(株)リブリッチ(SUUMO経由)
この物件が気になったら掲載期限まであと12日
ザ・パークハビオ北千住の空き部屋一覧
全部で35の空き部屋があります。
ザ・パークハビオ北千住に条件(家賃・エリア)が近い物件一覧
| 写真 | 家賃 管理費等 | 敷金 礼金 | 間取り 専有面積 | 築年数 | 最寄り駅 所在地 | キープ | 詳細 |
|---|---|---|---|---|---|---|---|
マンション ラグゼナ平井ノース(2LDK/3階) | |||||||
![]() | 22.3万円 1万円 | なし なし | 2LDK 53.64m2 | 築1年 | 東武亀戸線 東あずま駅 徒歩10分 JR総武線 平井駅(東京) 徒歩12分 京成押上線 京成曳舟駅 徒歩27分 東京都墨田区立花 | 詳細を見る | |
マンション エーデルワイス本所(1LDK/6階) | |||||||
![]() | 14万円 8,000円 | 14万円 14万円 | 1LDK 40.95m2 | 築23年 | 東京都浅草線 蔵前駅 徒歩12分 東京都大江戸線 両国駅 徒歩13分 東京都墨田区本所2丁目 | 詳細を見る | |
マンション SAION町屋(2LDK/14階) | |||||||
![]() | 21.8万円 2万円 | 21.8万円 なし | 2LDK 50.23m2 | 築4年 | 東京地下鉄千代田線 町屋駅 徒歩3分 東京都荒川区荒川6丁目 | 詳細を見る | |
マンション アーバネックス錦糸公園II(2LDK/10階) | |||||||
![]() | 22.8万円 2万円 | 22.8万円 なし | 2LDK 40.01m2 | 築2年 | JR総武線 錦糸町駅 徒歩4分 東京メトロ半蔵門線 錦糸町駅 徒歩4分 都営浅草線 押上駅 徒歩16分 東京都墨田区錦糸 | 詳細を見る | |
マンション WHARF森下(1K/4階) | |||||||
![]() | 14.8万円 1万円 | 14.8万円 なし | 1K 26.84m2 | 築12年 | 東京都大江戸線 森下駅(東京) 徒歩3分 東京都墨田区菊川1丁目 | 詳細を見る | |
マンション ミリア・レジデンス両国II(1LDK/2階) | |||||||
![]() | 16万円 2万円 | なし なし | 1LDK 30.01m2 | 築4年 | JR総武線 両国駅 徒歩5分 都営大江戸線 両国駅 徒歩7分 都営大江戸線 森下駅(東京) 徒歩10分 東京都墨田区両国 | 詳細を見る | |
マンション クレストコート本所吾妻橋ノース 本所吾妻橋ノース(1DK/8階) | |||||||
![]() | 15.7万円 1.2万円 | 15.7万円 なし | 1DK 25.42m2 | 築1年 | 東京都浅草線 本所吾妻橋駅 徒歩2分 東京地下鉄銀座線 浅草駅(東武・都営・メトロ) 徒歩9分 東武伊勢崎・大師線 とうきょうスカイツリー駅 徒歩10分 東京都墨田区吾妻橋2丁目 | 詳細を見る | |
マンション アルファコート曳舟2(1SLDK/5階) | |||||||
![]() | 17.1万円 1.5万円 | なし なし | 1SLDK 41.02m2 | 築1年 | 東武伊勢崎・大師線 曳舟駅 徒歩10分 京成電鉄押上線 京成曳舟駅 徒歩15分 東京地下鉄半蔵門線 押上駅 徒歩16分 東京都墨田区向島5丁目 | 詳細を見る | |





/105x80-f1-q70-wp1)


