賃貸マンション
レジデンシャル池袋本町の賃貸物件情報(2LDK/5階)
| 家賃 | 管理費等 | 敷金 | 礼金 | 間取り | 専有面積 |
|---|---|---|---|---|---|
| 20.4万円 | 1万円 | 20.4万円 | 20.4万円 | 2LDK | 54.48m2 |
入居決定でお祝い金最大100,000円
- 保証金
- -
- 償却・敷引
- -
- 築年数
- 築3年
- 所在階
- 5階
- 向き
- 北
Point
遠方からのお引越しや、法人契約・オンライン相談・内見も柔軟に承ります!申込ご契約まで、公式LINE&オンラインですべて完結!初期費用はカード決済・分割支払いにも対応!お気軽にお問合せください!
提供:(株)ラリーホームズ(SUUMO経由)

詳細情報 レジデンシャル池袋本町
物件紹介
レジデンシャル池袋本町は東武東上線下板橋駅から徒歩5分にあり、駅近で通勤通学に便利なマンションです。
このお部屋は2階以上に位置しているので、通行人や周囲の住人からの視線が気になりにくく、防犯面でも安心。建物のエントランスはオートロックがついており、インターホンにはTVモニタもついているため、相手の顔を確認してから来客対応することができます。
人気の角部屋で周囲の居住者の生活音も気になりにくく、また、フローリングのお部屋なのでお掃除もラクラク。室内にはウォークインクローゼットがありますので、たくさんの荷物も効率的に収納ができます。キッチンはシステムキッチン仕様になっていますので、お料理好きの方にもぴったり。バス・トイレは別なので、のんびりお風呂タイムも楽しめるでしょう。また、雨の日でも浴室乾燥機を使えば、お洗濯も問題ありません。
通信設備面では、インターネットが無料で使えるので、月々の出費を抑えられるのも魅力です。また、BSアンテナ・CSアンテナがありCATVにも対応しているので、おうち時間も充実するでしょう(別途工事、BS・CS・CATVの契約料等が必要な場合あり)。
床暖房があり、冬も足元から暖かく快適に過ごすことができます。建物にはエレベーターがついているので、重い荷物があっても安心。共用部には宅配ボックスが設定されているので、不在の時にも荷物を受け取ることができます。
このお部屋は2階以上に位置しているので、通行人や周囲の住人からの視線が気になりにくく、防犯面でも安心。建物のエントランスはオートロックがついており、インターホンにはTVモニタもついているため、相手の顔を確認してから来客対応することができます。
人気の角部屋で周囲の居住者の生活音も気になりにくく、また、フローリングのお部屋なのでお掃除もラクラク。室内にはウォークインクローゼットがありますので、たくさんの荷物も効率的に収納ができます。キッチンはシステムキッチン仕様になっていますので、お料理好きの方にもぴったり。バス・トイレは別なので、のんびりお風呂タイムも楽しめるでしょう。また、雨の日でも浴室乾燥機を使えば、お洗濯も問題ありません。
通信設備面では、インターネットが無料で使えるので、月々の出費を抑えられるのも魅力です。また、BSアンテナ・CSアンテナがありCATVにも対応しているので、おうち時間も充実するでしょう(別途工事、BS・CS・CATVの契約料等が必要な場合あり)。
床暖房があり、冬も足元から暖かく快適に過ごすことができます。建物にはエレベーターがついているので、重い荷物があっても安心。共用部には宅配ボックスが設定されているので、不在の時にも荷物を受け取ることができます。
お金・契約の情報
※「-」と表示されているものは、実際は料金が発生するものもございます。詳細はお問い合わせください。
| 家賃 | 20.4万円 | 管理費・共益費 | 1万円 |
|---|---|---|---|
| 敷金 | 20.4万円 | 礼金 | 20.4万円 |
| 入居決定でお祝い金最大100,000円 | |||
| 保証金 | - | 償却・敷引 | - |
| 住宅保険料 | - | 更新料 | - |
| 保証会社利用 | 必須 | 保証会社名 | - |
| 保証会社費用 | - | 保証会社備考 | 保証会社利用必 初回保証委託料(最低15,000円):月額賃料等の50%、 2年目以降:10,000円/年 |
| 契約形態 | - | 契約期間 | - |
| 入居・引渡期間 | 即時 | 現況 | - |
| 契約備考 | 遠方からのお引越しや、法人契約・オンライン相談・内見も柔軟に承ります!申込ご契約まで、公式LINE&オンラインですべて完結!初期費用はカード決済・分割支払いにも対応!お気軽にお問合せください! 合計3.3万円(内訳:鍵交換代3.3万円) 更新料 新賃料1.00ヶ月分 室内清掃費用 101877円 口座振替事務手数料 月額110円 2LDK 普通借家2年 損保【要】 バストイレ別、バルコニー、エアコン、クロゼット、フローリング、浴室乾燥機、オートロック、室内洗濯置、システムキッチン、追焚機能浴室、エレベーター、洗面所独立、洗面化粧台、宅配ボックス、CATV、即入居可、対面式キッチン、IHクッキングヒーター、分譲賃貸、ウォークインクロゼット、敷金1ヶ月、2沿線利用可、CS、床暖房、保証金不要、フロントサービス、築3年以内、3駅以上利用可、駅徒歩5分以内、都市ガス、BS、年内入居可、礼金1ヶ月、保証会社利用可 | ||
部屋の情報
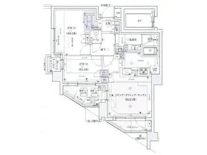
| 間取り | 2LDK | 専有面積 | 54.48m2 |
|---|---|---|---|
| 所在階 / 向き | 5階 / 北 | バルコニー面積 | 9m2 |
| 水道 / ガス | - | ||
| 設備 | バス・トイレ別、2階以上、オートロック、宅配ボックス、浴室乾燥機、ウォークインクローゼット、追い焚き、システムキッチン、エアコン、エレベーター、バルコニー、フローリング、洗髪洗面化粧台、床暖房、コンロ:IH、CATV、CSアンテナ、BSアンテナ、洗濯機:室内 | ||
| 当社物件ID | 126480879 | ||
建物の情報
| 建物名 | レジデンシャル池袋本町 | ||
|---|---|---|---|
| 所在地 | 東京都豊島区池袋本町 | ||
| 交通 | 東武東上線 下板橋駅 徒歩5分 東武東上線 北池袋駅 徒歩9分 JR埼京線 板橋駅 徒歩12分 | ||
| 階数 | 7階建 | 総戸数 | - |
| 築年月 | 2023年02月 / 築3年 | エレベーター | あり |
| 駐車場 | なし | バイク置き場 | - |
| 駐輪場 | - | 管理人/管理会社 | - |
| 周辺環境 | その他 スーパー(スーパー)まで1034m その他 コンビニ(コンビニ)まで1063m その他 板橋区役所前駅(その他)まで1037m その他 スーパー(スーパー)まで985m その他 コンビニ(スーパー)まで1160m その他 新板橋駅(その他)まで1167m | ||
| 建物種別 | マンション | 建物構造 | RC(鉄筋コンクリート) |
この部屋の取扱い不動産会社
| 会社名 | 合同会社GIMPER(SUUMO経由) | ||
|---|---|---|---|
| 所在地 | 東京都新宿区百人町2-6-2 | 交通 | - |
| 営業時間 | 10:00~19:30 | 定休日 | 毎週水曜日 |
| 免許番号 | 東京都知事103874 | 取引態様 | 仲介 |
| 不動産会社管理番号 | 100479882976 | 当社管理番号 | 89 |
| 所属団体 | (公社)東京都宅地建物取引業協会会員 | ||
| 公正取引協議会 | (公社)首都圏不動産公正取引協議会加盟 | ||
| 取扱い物件情報 | 物件詳細へ | ||
※各種情報と現状に差異がある場合は、現状優先となります。問い合わせをすることで、より詳しい条件、情報を確認する事ができます。
提供:合同会社GIMPER(SUUMO経由)
この物件が気になったら掲載期限まであと10日
レジデンシャル池袋本町に条件(家賃・エリア)が近い物件一覧
| 写真 | 家賃 管理費等 | 敷金 礼金 | 間取り 専有面積 | 築年数 | 最寄り駅 所在地 | キープ | 詳細 |
|---|---|---|---|---|---|---|---|
マンション ラフィーネ音羽(1LDK/3階) | |||||||
![]() | 18.9万円 1万円 | なし なし | 1LDK 40.45m2 | 築7年 | 東京地下鉄有楽町線 江戸川橋駅 徒歩4分 東京地下鉄有楽町線 護国寺駅 徒歩6分 東京地下鉄丸ノ内線 茗荷谷駅 徒歩13分 東京都文京区音羽1丁目 | 詳細を見る | |
マンション パレステージ文京江戸川橋(1DK/1階) | |||||||
![]() | 14.8万円 1.5万円 | なし 14.8万円 | 1DK 37.87m2 | 築9年 | 東京地下鉄有楽町線 江戸川橋駅 徒歩7分 東京地下鉄東西線 神楽坂駅 徒歩11分 東京地下鉄南北線 飯田橋駅 徒歩14分 東京都文京区水道2丁目 | 詳細を見る | |
マンション ジオエント本郷三丁目(1SLDK/12階) | |||||||
![]() | 26.5万円 1.5万円 | 26.5万円 なし | 1SLDK 40.06m2 | 築2年 | 東京地下鉄丸ノ内線 本郷三丁目駅 徒歩4分 東京都三田線 水道橋駅 徒歩8分 東京地下鉄丸ノ内線 御茶ノ水駅 徒歩9分 東京都文京区本郷3丁目 | 詳細を見る | |
マンション プライマル小石川(ワンルーム/3階) | |||||||
![]() | 13.3万円 7,000円 | 13.3万円 なし | ワンルーム 31.5m2 | 築20年 | 東京都大江戸線 飯田橋駅 徒歩9分 総武・中央緩行線 飯田橋駅 徒歩9分 東京地下鉄丸ノ内線 後楽園駅 徒歩11分 東京都文京区水道1丁目 | 詳細を見る | |
マンション レジディア文京本駒込(1K/5階) | |||||||
![]() | 13.6万円 1.5万円 | なし なし | 1K 29.16m2 | 築18年 | 東京地下鉄南北線 本駒込駅 徒歩5分 山手線 駒込駅 徒歩10分 東京都三田線 白山駅(東京) 徒歩11分 東京都文京区本駒込3丁目 | 詳細を見る | |
マンション VIDA文京関口(1DK/4階) | |||||||
![]() | 13.1万円 1.1万円 | 13.1万円 なし | 1DK 34.61m2 | 築19年 | 東京地下鉄有楽町線 江戸川橋駅 徒歩7分 東京地下鉄東西線 早稲田駅(メトロ) 徒歩11分 東京地下鉄有楽町線 護国寺駅 徒歩13分 東京都文京区関口2丁目 | 詳細を見る | |
マンション アーバンコア本郷(1K/2階) | |||||||
![]() | 15.4万円 1万円 | 15.4万円 なし | 1K 25.39m2 | 築6年 | 東京地下鉄丸ノ内線 本郷三丁目駅 徒歩4分 総武・中央緩行線 水道橋駅 徒歩9分 東京地下鉄丸ノ内線 御茶ノ水駅 徒歩10分 東京都文京区本郷2丁目 | 詳細を見る | |
マンション R-STYLE文京小石川(ワンルーム/7階) | |||||||
![]() | 22.2万円 1.9万円 | なし なし | ワンルーム 42.54m2 | 築13年 | 東京地下鉄有楽町線 江戸川橋駅 徒歩9分 東京都文京区水道2丁目 | 詳細を見る | |








