賃貸マンション
ALIVIS SHIMO-SHINJO SOL TERRACの賃貸物件情報(1LDK/4階)
| 家賃 | 管理費等 | 敷金 | 礼金 | 間取り | 専有面積 |
|---|---|---|---|---|---|
| 9.4万円 | 1.5万円 | なし | なし | 1LDK | 30.6m2 |
入居決定でお祝い金最大100,000円
- 保証金
- -
- 償却・敷引
- -
- 築年数
- 新築(築1年)
- 所在階
- 4階
- 向き
- 北
Point
まずはお問い合わせ!
不動産会社は街のプロ、あなたに合った物件がきっと見つかります。
提供:大阪ハウスコム株式会社 桃山台店

詳細情報 ALIVIS SHIMO-SHINJO SOL TERRAC
物件紹介
ALIVIS SHIMO-SHINJO SOL TERRACは阪急電鉄千里線下新庄駅から徒歩4分にあり、駅近で通勤通学に便利なマンションです。
このお部屋は2階以上に位置しているので、通行人や周囲の住人からの視線が気になりにくく、防犯面でも安心。建物のエントランスはオートロックがついており、インターホンにはTVモニタもついているため、相手の顔を確認してから来客対応することができます。
フローリングのお部屋なのでお掃除もラクラク。キッチンはシステムキッチン仕様になっていますので、お料理好きの方にもぴったり。バス・トイレは別なので、のんびりお風呂タイムも楽しめるでしょう。また、雨の日でも浴室乾燥機を使えば、お洗濯も問題ありません。
通信設備面では、インターネットが無料で使えるので、月々の出費を抑えられるのも魅力です。また、BSアンテナ・CSアンテナがありCATVにも対応しているので、おうち時間も充実するでしょう(別途工事、BS・CS・CATVの契約料等が必要な場合あり)。
建物にはエレベーターがついているので、重い荷物があっても安心。共用部には宅配ボックスが設定されているので、不在の時にも荷物を受け取ることができます。また、ペット飼育の相談ができますので、あなたの大切な家族の一員も快適に暮らせるか、ぜひ確認してみてください。
このお部屋は2階以上に位置しているので、通行人や周囲の住人からの視線が気になりにくく、防犯面でも安心。建物のエントランスはオートロックがついており、インターホンにはTVモニタもついているため、相手の顔を確認してから来客対応することができます。
フローリングのお部屋なのでお掃除もラクラク。キッチンはシステムキッチン仕様になっていますので、お料理好きの方にもぴったり。バス・トイレは別なので、のんびりお風呂タイムも楽しめるでしょう。また、雨の日でも浴室乾燥機を使えば、お洗濯も問題ありません。
通信設備面では、インターネットが無料で使えるので、月々の出費を抑えられるのも魅力です。また、BSアンテナ・CSアンテナがありCATVにも対応しているので、おうち時間も充実するでしょう(別途工事、BS・CS・CATVの契約料等が必要な場合あり)。
建物にはエレベーターがついているので、重い荷物があっても安心。共用部には宅配ボックスが設定されているので、不在の時にも荷物を受け取ることができます。また、ペット飼育の相談ができますので、あなたの大切な家族の一員も快適に暮らせるか、ぜひ確認してみてください。
お金・契約の情報
※「-」と表示されているものは、実際は料金が発生するものもございます。詳細はお問い合わせください。
| 家賃 | 9.4万円 | 管理費・共益費 | 1.5万円 |
|---|---|---|---|
| 敷金 | なし | 礼金 | なし |
| 入居決定でお祝い金最大100,000円 | |||
| 保証金 | - | 償却・敷引 | - |
| 住宅保険料 | 1円 | 更新料 | - |
| 保証会社利用 | 必須 | 保証会社名 | - |
| 保証会社費用 | - | 保証会社備考 | 【K−B1(更ベーシック1)】初回保証料30%、月次保証料330円、更新料1万円/年 |
| 契約形態 | - | 契約期間 | 2年 |
| 入居・引渡期間 | 2026年03月 | 現況 | - |
| 入居可能条件 | ペット可 | ||
| 契約備考 | その他設備/条件:室内洗濯機置き場、ごみ出し24時間OK、独立洗面台、防犯カメラ、クローゼット、シューズボックス | ||
部屋の情報
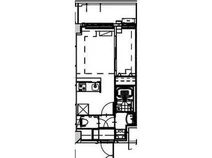
| 間取り | 1LDK | 専有面積 | 30.6m2 |
|---|---|---|---|
| 間取り詳細 | LDK(9.4帖)、洋室(2.9帖) | ||
| 所在階 / 向き | 4階 / 北 | バルコニー面積 | - |
| 水道 / ガス | ガス【都市】 | ||
| 設備 | バス・トイレ別、テレビドアホン、宅配ボックス、浴室乾燥機、インターネット対応、システムキッチン、カウンターキッチン、エアコン、エレベーター、温水洗浄便座、洗髪洗面化粧台、2口コンロ、コンロ:ガス、CSアンテナ、BSアンテナ、インターネット使用料無料、シャワー、給湯 | ||
| 当社物件ID | 160389232 | ||
建物の情報
| 建物名 | ALIVIS SHIMO-SHINJO SOL TERRAC | ||
|---|---|---|---|
| 所在地 | 大阪府吹田市西御旅町 | ||
| 交通 | 阪急電鉄千里線 下新庄駅 徒歩4分 おおさか東線 JR淡路駅 徒歩12分 | ||
| 階数 | 6階建 | 総戸数 | 100戸 |
| 築年月 | 2026年02月 / 新築(築1年) | エレベーター | あり |
| 駐車場 | なし | バイク置き場 | - |
| 駐輪場 | - | 管理人/管理会社 | - |
| 周辺環境 | その他 ドラッグストア その他 公園 その他 銀行 その他 * | ||
| 建物種別 | マンション | 建物構造 | RC(鉄筋コンクリート) |
この部屋の取扱い不動産会社
| 会社名 | 大阪ハウスコム株式会社 千里中央店 | ||
|---|---|---|---|
| 所在地 | 大阪府豊中市3-104せんちゅうパル南西側1階 | 交通 | - |
| 営業時間 | 10:00~18:00 | 定休日 | 水曜定休 |
| 免許番号 | 国土交通大臣(3)第8685号 | 取引態様 | 仲介 |
| 不動産会社管理番号 | HC4-5378683-416-0236 | 当社管理番号 | 468 |
| 所属団体 | 、 | ||
| 取扱い物件情報 | 物件詳細へ | ||
※各種情報と現状に差異がある場合は、現状優先となります。問い合わせをすることで、より詳しい条件、情報を確認する事ができます。
提供:大阪ハウスコム株式会社 千里中央店
この物件が気になったら掲載期限まであと4日
ALIVIS SHIMO-SHINJO SOL TERRACの空き部屋一覧
全部で70の空き部屋があります。
ALIVIS SHIMO-SHINJO SOL TERRACに条件(家賃・エリア)が近い物件一覧
| 写真 | 家賃 管理費等 | 敷金 礼金 | 間取り 専有面積 | 築年数 | 最寄り駅 所在地 | キープ | 詳細 |
|---|---|---|---|---|---|---|---|
マンション アーバンビレッジ香花園(3LDK/3階) | |||||||
| 8.5万円 5,000円 | 8.5万円 8.5万円 | 3LDK 65.66m2 | 築28年 | 東海道本線 JR総持寺駅 徒歩26分 阪急電鉄京都線 総持寺駅 徒歩34分 東海道本線 茨木駅 徒歩39分 大阪府茨木市耳原1丁目6-18 | 詳細を見る | ||
マンション D.CLAREST本庄東FJRE(1DK/5階) | |||||||
| 10万円 8,000円 | なし なし | 1DK 25.7m2 | 築1年 | 阪急電鉄千里線 天神橋筋六丁目駅 徒歩9分 大阪市谷町線 中崎町駅 徒歩13分 大阪市御堂筋線 中津駅(大阪メトロ) 徒歩14分 大阪府大阪市北区本庄東3丁目37-10 | 詳細を見る | ||
マンション セレニテ梅田北PREMIUM(ワンルーム/7階) | |||||||
| 11.8万円 1万円 | なし 11.8万円 | ワンルーム 37.88m2 | 築11年 | 大阪市御堂筋線 中津駅(大阪メトロ) 徒歩5分 大阪市谷町線 中崎町駅 徒歩9分 阪急電鉄宝塚線 大阪梅田駅(阪急) 徒歩11分 大阪府大阪市北区豊崎2丁目9-13 | 詳細を見る | ||
マンション LA GRACE SENBAYASHI(1LDK/4階) | |||||||
![]() | 13.1万円 1万円 | なし 13.1万円 | 1LDK 41.03m2 | 築1年 | 京阪電気鉄道京阪線 森小路駅 徒歩5分 京阪電気鉄道京阪線 千林駅 徒歩7分 大阪府大阪市旭区千林1丁目 | 詳細を見る | |
アパート あんしん西宿08-6002(ワンルーム/1階) | |||||||
| 6.3万円 9,000円 | なし 12.6万円 | ワンルーム 26.67m2 | 築1年 | 北大阪急行南北線 箕面萱野駅 徒歩9分 北大阪急行南北線 箕面船場阪大前駅 徒歩13分 阪急電鉄千里線 北千里駅 徒歩31分 大阪府箕面市西宿3丁目1-23 | 詳細を見る | ||
マンション ハピネスガーデン新大阪(1LDK/7階) | |||||||
| 12.8万円 8,000円 | なし 12.8万円 | 1LDK 39.72m2 | 築1年 | 阪急電鉄京都線 崇禅寺駅 徒歩10分 大阪市御堂筋線 新大阪駅 徒歩11分 阪急電鉄千里線 柴島駅 徒歩15分 大阪府大阪市東淀川区東中島4丁目1-32 | 詳細を見る | ||
アパート フェリスカーサ・ミオトーヤ(1K/2階) | |||||||
| 6.5万円 4,000円 | なし 6.9万円 | 1K 22.13m2 | 築1年 | 阪急電鉄千里線 淡路駅 徒歩5分 阪急電鉄千里線 下新庄駅 徒歩11分 阪急電鉄京都線 崇禅寺駅 徒歩18分 大阪府大阪市東淀川区菅原5丁目2-2 | 詳細を見る | ||
マンション ルーエ江坂(1K/3階) | |||||||
| 8.6万円 6,000円 | 9.2万円 18.4万円 | 1K 32.5m2 | 築16年 | 北大阪急行南北線 江坂駅 徒歩5分 阪急電鉄千里線 豊津駅(大阪) 徒歩17分 おおさか東線 南吹田駅 徒歩25分 大阪府吹田市江坂町1丁目21-34 | 詳細を見る | ||
吹田市の町名から探す
吹田市の部屋を間取りから探す
吹田市の駅から探す
吹田市と隣接している市区町村から探す
- 吹田市(6,388)
- 大阪市都島区(1,980)
- 大阪市福島区(2,520)
- 大阪市此花区(396)
- 大阪市西区(5,047)
- 大阪市港区(1,387)
- 大阪市大正区(947)
- 大阪市天王寺区(1,467)
- 大阪市浪速区(4,048)
- 大阪市西淀川区(2,192)
- 大阪市東淀川区(4,949)
- 大阪市東成区(2,807)
- 大阪市生野区(1,809)
- 大阪市旭区(2,389)
- 大阪市城東区(2,357)
- 大阪市阿倍野区(1,538)
- 大阪市住吉区(2,098)
- 大阪市東住吉区(2,081)
- 大阪市西成区(740)
- 大阪市淀川区(5,611)
- 大阪市鶴見区(1,119)
- 大阪市住之江区(987)
- 大阪市平野区(1,883)
- 大阪市北区(5,780)
- 大阪市中央区(5,827)
- 豊中市(5,235)
- 茨木市(3,106)
- 箕面市(1,721)
- 摂津市(1,090)


