賃貸マンション
パークタワー勝どきミッドの賃貸物件情報(1LDK/11階)
| 家賃 | 管理費等 | 敷金 | 礼金 | 間取り | 専有面積 |
|---|---|---|---|---|---|
| 29.2万円 | なし | 29.2万円 | 58.4万円 | 1LDK | 44.31m2 |
入居決定でお祝い金最大100,000円
- 保証金
- -
- 償却・敷引
- -
- 築年数
- 築3年
- 所在階
- 11階
- 向き
- 北東
Point
まずはお問い合わせ!
不動産会社は街のプロ、あなたに合った物件がきっと見つかります。
提供:みんなのへや人形町駅前店(株)Lotus Link(SUUMO経由)

詳細情報 パークタワー勝どきミッド
物件紹介
パークタワー勝どきミッドは都営大江戸線勝どき駅から徒歩1分にあり、駅近で通勤通学に便利なマンションです。
このお部屋は2階以上に位置しているので、通行人や周囲の住人からの視線が気になりにくく、防犯面でも安心。建物のエントランスはオートロックがついており、インターホンにはTVモニタもついているため、相手の顔を確認してから来客対応することができます。
こちらは楽器相談が可能な物件。楽器演奏をお考えの方はぜひ相談してみてください。フローリングのお部屋なのでお掃除もラクラク。室内には人気のウォークインクローゼットがありますので、たくさんの荷物も効率的に収納ができます。キッチンはシステムキッチン仕様になっていますので、お料理好きの方にもぴったり。バス・トイレは別なので、のんびりお風呂タイムも楽しめるでしょう。また、雨の日でも浴室乾燥機を使えば、お洗濯も問題ありません。
通信設備面では、インターネット接続が可能です。また、BSアンテナ・CSアンテナがありCATVにも対応しているので、おうち時間も充実するでしょう(別途工事、契約料が必要な場合あり)。
床暖房があり、冬も足元から暖かく快適に過ごすことができます。建物にはエレベーターがついているので、重い荷物があっても安心。共用部には宅配ボックスが設定されているので、不在の時にも荷物を受け取ることができます。また、ペット飼育の相談ができますので、あなたの大切な家族の一員も快適に暮らせるか、ぜひ確認してみてください。
このお部屋は2階以上に位置しているので、通行人や周囲の住人からの視線が気になりにくく、防犯面でも安心。建物のエントランスはオートロックがついており、インターホンにはTVモニタもついているため、相手の顔を確認してから来客対応することができます。
こちらは楽器相談が可能な物件。楽器演奏をお考えの方はぜひ相談してみてください。フローリングのお部屋なのでお掃除もラクラク。室内には人気のウォークインクローゼットがありますので、たくさんの荷物も効率的に収納ができます。キッチンはシステムキッチン仕様になっていますので、お料理好きの方にもぴったり。バス・トイレは別なので、のんびりお風呂タイムも楽しめるでしょう。また、雨の日でも浴室乾燥機を使えば、お洗濯も問題ありません。
通信設備面では、インターネット接続が可能です。また、BSアンテナ・CSアンテナがありCATVにも対応しているので、おうち時間も充実するでしょう(別途工事、契約料が必要な場合あり)。
床暖房があり、冬も足元から暖かく快適に過ごすことができます。建物にはエレベーターがついているので、重い荷物があっても安心。共用部には宅配ボックスが設定されているので、不在の時にも荷物を受け取ることができます。また、ペット飼育の相談ができますので、あなたの大切な家族の一員も快適に暮らせるか、ぜひ確認してみてください。
お金・契約の情報
※「-」と表示されているものは、実際は料金が発生するものもございます。詳細はお問い合わせください。
| 家賃 | 29.2万円 | 管理費・共益費 | なし |
|---|---|---|---|
| 敷金 | 29.2万円 | 礼金 | 58.4万円 |
| 入居決定でお祝い金最大100,000円 | |||
| 保証金 | - | 償却・敷引 | - |
| 住宅保険料 | - | 更新料 | - |
| 保証会社利用 | 必須 | 保証会社名 | - |
| 保証会社費用 | - | 保証会社備考 | 保証会社利用必 [保証会社]加入要[保証会社名]レジデントアシスタンス株式会社[保証会社利用料]初回保証委託料(最低20 000円):月額賃料等の50%、 2年目以降:9 600円¥¥/年 |
| 契約形態 | 定期借家 | 契約期間 | 2年 |
| 入居・引渡期間 | - | 現況 | - |
| 入居可能条件 | 楽器相談、ペット相談 | ||
| 契約備考 | 常駐管理/※1年未満解約時違約金有★同タイプ・別階の内観写真を掲載している場合があります。図面と現況が異なる場合は現況を優先いたします。 合計3.3万円(内訳:鍵交換代3.3万円) 室内清掃費用 82859円 口座振替事務手数料() 月額110円 1LDK 二人入居可/子供可/ペット相談/楽器相談 定期借家2年 損保【2万円2年】 バストイレ別、バルコニー、エアコン、ガスコンロ対応、フローリング、TVインターホン、浴室乾燥機、オートロック、室内洗濯置、シューズボックス、システムキッチン、追焚機能浴室、温水洗浄便座、エレベーター、洗面所独立、駐輪場、宅配ボックス、CATV、BS・CS、3口以上コンロ、防犯カメラ、ペット相談、分譲賃貸、ウォークインクロゼット、保証人不要、24時間緊急通報システム、カードキー、全居室フローリング、2沿線利用可、ディンプルキー、CS、床暖房、エアコン全室、ダブルロックキー、楽器相談、築3年以内、免震構造、エレベーター2基、耐火構造、耐震構造、2駅利用可、3駅以上利用可、大型タウン内、駅徒歩5分以内、駅徒歩10分以内、制震構造、タワー型マンション、高層階、ゲストルーム、敷地内遊び場、シアタールーム、24時間ゴミ出し可、AED付、敷地内ごみ置き場、セキュリティ会社加入済、都市ガス、シューズWIC、BS、IT重説対応物件、初期費用カード決済可 敷金積み増し【ペット飼育の場合敷金2ヶ月(総額)】 入居日:'26年4月下旬 | ||
部屋の情報
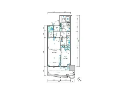
| 間取り | 1LDK | 専有面積 | 44.31m2 |
|---|---|---|---|
| 所在階 / 向き | 11階 / 北東 | バルコニー面積 | - |
| 水道 / ガス | - | ||
| 設備 | バス・トイレ別、2階以上、オートロック、テレビドアホン、宅配ボックス、浴室乾燥機、ウォークインクローゼット、追い焚き、システムキッチン、エアコン、エレベーター、温水洗浄便座、バルコニー、フローリング、洗髪洗面化粧台、タワーマンション、床暖房、2口コンロ、コンロ:ガス、CATV、CSアンテナ、BSアンテナ、洗濯機:室内 | ||
| 当社物件ID | 141301943 | ||
建物の情報
| 建物名 | パークタワー勝どきミッド | ||
|---|---|---|---|
| 所在地 | 東京都中央区勝どき | ||
| 交通 | 都営大江戸線 勝どき駅 徒歩1分 東京メトロ有楽町線 月島駅 徒歩13分 東京メトロ日比谷線 築地駅 徒歩20分 | ||
| 階数 | 地下2地上45階建 | 総戸数 | - |
| 築年月 | 2023年08月 / 築3年 | エレベーター | あり |
| 駐車場 | なし | バイク置き場 | - |
| 駐輪場 | あり | 管理人/管理会社 | - |
| 周辺環境 | その他 サイゼリヤ 勝どきビュータワー店(飲食店)まで442m その他 ドトールコーヒーショップ 勝どき店(飲食店)まで459m その他 月島第二児童公園(公園)まで374m その他 マルエツ 晴海三丁目店(スーパー)まで774m その他 ローソン パークタワー勝どきミッド店(コンビニ)まで138m その他 ローソン 勝どき二丁目店(コンビニ)まで236m | ||
| 建物種別 | マンション | 建物構造 | RC(鉄筋コンクリート) |
この部屋の取扱い不動産会社
| 会社名 | (株)Lim estate(SUUMO経由) | ||
|---|---|---|---|
| 所在地 | 東京都中央区銀座1-5-1 HOLONーGINZAII601 | 交通 | - |
| 営業時間 | 9:00-19:00 | 定休日 | 無休 |
| 免許番号 | 東京都知事109763 | 取引態様 | 仲介 |
| 不動産会社管理番号 | 100481305041 | 当社管理番号 | 89 |
| 所属団体 | (公社)東京都宅地建物取引業協会会員 | ||
| 公正取引協議会 | (公社)首都圏不動産公正取引協議会加盟 | ||
| 取扱い物件情報 | 物件詳細へ | ||
※各種情報と現状に差異がある場合は、現状優先となります。問い合わせをすることで、より詳しい条件、情報を確認する事ができます。
提供:(株)Lim estate(SUUMO経由)
この物件が気になったら掲載期限まであと10日
パークタワー勝どきミッドに条件(家賃・エリア)が近い物件一覧
| 写真 | 家賃 管理費等 | 敷金 礼金 | 間取り 専有面積 | 築年数 | 最寄り駅 所在地 | キープ | 詳細 |
|---|---|---|---|---|---|---|---|
マンション マイナビSTAY浅草蔵前(1LDK/4階) | |||||||
![]() | 23.6万円 1.1万円 | なし 47.2万円 | 1LDK 40.49m2 | 築6年 | 東京都浅草線 蔵前駅 徒歩5分 東京都大江戸線 新御徒町駅 徒歩8分 総武・中央緩行線 浅草橋駅 徒歩11分 東京都台東区三筋1丁目 | 詳細を見る | |
マンション レジデンスシャルマン月島(2DK/8階) | |||||||
![]() | 23.2万円 1.4万円 | 23.2万円 23.2万円 | 2DK 57.98m2 | 築23年 | 都営大江戸線 勝どき駅 徒歩7分 東京メトロ有楽町線 月島駅 徒歩9分 東京メトロ日比谷線 築地駅 徒歩18分 東京都中央区月島 | 詳細を見る | |
マンション リバーサイドタウン木場南スカイハイツ(3LDK/10階) | |||||||
![]() | 20万円 1.5万円 | 10万円 30万円 | 3LDK 69.08m2 | 築43年 | 東京メトロ有楽町線 豊洲駅 徒歩14分 JR京葉線 潮見駅 徒歩22分 東京メトロ東西線 木場駅 徒歩24分 東京都江東区枝川 | 詳細を見る | |
マンション マイナビSTAY日本橋パークサイド(1LDK/3階) | |||||||
![]() | 27.3万円 1.1万円 | なし 54.6万円 | 1LDK 45.56m2 | 築6年 | 東京都新宿線 浜町駅 徒歩3分 東京地下鉄半蔵門線 水天宮前駅 徒歩7分 東京地下鉄日比谷線 人形町駅 徒歩8分 東京都中央区日本橋浜町2丁目 | 詳細を見る | |
マンション クレストコート本所吾妻橋(2LDK/7階) | |||||||
![]() | 24万円 2万円 | 24万円 なし | 2LDK 48.47m2 | 築4年 | 都営浅草線 本所吾妻橋駅 徒歩3分 東武伊勢崎線 とうきょうスカイツリー駅 徒歩5分 東京メトロ半蔵門線 押上駅 徒歩8分 東京都墨田区吾妻橋 | 詳細を見る | |
マンション ラグゼナ平井ノース(1LDK/3階) | |||||||
![]() | 20万円 1万円 | なし なし | 1LDK 48.24m2 | 築1年 | 東武鉄道亀戸線 東あずま駅 徒歩11分 東武鉄道亀戸線 小村井駅 徒歩14分 東京都墨田区立花6丁目 | 詳細を見る | |
マンション ジェノヴィア錦糸町スカイガーデン(1LDK/9階) | |||||||
![]() | 18.9万円 1.1万円 | なし 18.9万円 | 1LDK 40.71m2 | 築7年 | JR総武線 錦糸町駅 徒歩9分 東京メトロ半蔵門線 錦糸町駅 徒歩9分 都営新宿線 菊川駅(東京) 徒歩11分 東京都墨田区緑 | 詳細を見る | |
マンション ミェーレ日本橋(1LDK/2階) | |||||||
![]() | 19.6万円 1.1万円 | なし 19.6万円 | 1LDK 40.04m2 | 築12年 | 東京地下鉄日比谷線 小伝馬町駅 徒歩2分 総武本線 馬喰町駅 徒歩4分 東京都新宿線 馬喰横山駅 徒歩4分 東京都中央区日本橋大伝馬町 | 詳細を見る | |








