賃貸マンション
プレジオ西新井の賃貸物件情報(1LDK/2階)
| 家賃 | 管理費等 | 敷金 | 礼金 | 間取り | 専有面積 |
|---|---|---|---|---|---|
| 15万円 | 1.5万円 | なし | なし | 1LDK | 41.04m2 |
入居決定でお祝い金最大100,000円
- 保証金
- -
- 償却・敷引
- -
- 築年数
- 新築(築1年)
- 所在階
- 2階
- 向き
- -
Point
収納はクロゼット・シューズボックスなど豊富なので、広々と空間を利用することも可能です。
提供:ピタットハウス竹の塚店インターナショナル岩田企画(株)(SUUMO経由)

詳細情報 プレジオ西新井
物件紹介
プレジオ西新井は日暮里・舎人ライナー西新井大師西駅から徒歩1分にあり、駅近で通勤通学に便利なマンションです。
このお部屋は2階以上に位置しているので、通行人や周囲の住人からの視線が気になりにくく、防犯面でも安心。建物のエントランスはオートロックがついており、インターホンにはTVモニタもついているため、相手の顔を確認してから来客対応することができます。
人気の南向き・フローリングのお部屋。角部屋でもあるため、周囲の居住者の生活音も気になりにくい場所です。キッチンはシステムキッチン仕様になっていますので、お料理好きの方にもぴったり。バス・トイレは別なので、のんびりお風呂タイムも楽しめるでしょう。また、雨の日でも浴室乾燥機を使えば、お洗濯も問題ありません。
通信設備面では、インターネットが無料で使えるので、月々の出費を抑えられるのも魅力です。また、BSアンテナ・CSアンテナもありますので、おうち時間も充実するでしょう(別途工事、BS・CSの契約料等が必要な場合あり)。
建物にはエレベーターがついているので、重い荷物があっても安心。共用部には宅配ボックスが設定されているので、不在の時にも荷物を受け取ることができます。また、ペット飼育の相談ができますので、あなたの大切な家族の一員も快適に暮らせるか、ぜひ確認してみてください。
コンビニまで徒歩16分の場所にあり、日用品や食料品のお買い物にも便利です。
このお部屋は2階以上に位置しているので、通行人や周囲の住人からの視線が気になりにくく、防犯面でも安心。建物のエントランスはオートロックがついており、インターホンにはTVモニタもついているため、相手の顔を確認してから来客対応することができます。
人気の南向き・フローリングのお部屋。角部屋でもあるため、周囲の居住者の生活音も気になりにくい場所です。キッチンはシステムキッチン仕様になっていますので、お料理好きの方にもぴったり。バス・トイレは別なので、のんびりお風呂タイムも楽しめるでしょう。また、雨の日でも浴室乾燥機を使えば、お洗濯も問題ありません。
通信設備面では、インターネットが無料で使えるので、月々の出費を抑えられるのも魅力です。また、BSアンテナ・CSアンテナもありますので、おうち時間も充実するでしょう(別途工事、BS・CSの契約料等が必要な場合あり)。
建物にはエレベーターがついているので、重い荷物があっても安心。共用部には宅配ボックスが設定されているので、不在の時にも荷物を受け取ることができます。また、ペット飼育の相談ができますので、あなたの大切な家族の一員も快適に暮らせるか、ぜひ確認してみてください。
コンビニまで徒歩16分の場所にあり、日用品や食料品のお買い物にも便利です。
お金・契約の情報
※「-」と表示されているものは、実際は料金が発生するものもございます。詳細はお問い合わせください。
| 家賃 | 15万円 | 管理費・共益費 | 1.5万円 |
|---|---|---|---|
| 敷金 | なし | 礼金 | なし |
| 入居決定でお祝い金最大100,000円 | |||
| 保証金 | - | 償却・敷引 | - |
| 住宅保険料 | 1円 | 更新料 | - |
| その他費用 | リロレント24時間サービス:2万円 | ||
| 保証会社利用 | 必須 | 保証会社名 | エポスカード |
| 保証会社費用 | - | 保証会社備考 | 初回保証料:総賃料の20% 更新料:総賃料の1%/月 |
| 契約形態 | - | 契約期間 | 2年 |
| 入居・引渡期間 | 即時 | 現況 | - |
| 入居可能条件 | ペット相談 | ||
| 契約備考 | ・ペット飼育:可(小型犬or猫1匹迄) 共益費3000円増敷金1ヶ月 ・ハウスクリーニング費:66000円(税込) その他設備/条件:室内洗濯機置き場、独立洗面台、浴室TV、防犯カメラ、クローゼット、シューズボックス、照明器具付き | ||
部屋の情報
| 間取り | 1LDK | 専有面積 | 41.04m2 |
|---|---|---|---|
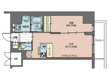
| 間取り詳細 | 洋室(6帖)、LDK(10.9帖) | ||
| 所在階 / 向き | 2階 / - | バルコニー面積 | - |
| 水道 / ガス | ガス【都市】 | ||
| 設備 | バス・トイレ別、オートロック、テレビドアホン、宅配ボックス、浴室乾燥機、追い焚き、システムキッチン、エアコン、エレベーター、温水洗浄便座、バルコニー、フローリング、洗髪洗面化粧台、2口コンロ、CSアンテナ、BSアンテナ、シャワー、給湯、タイル張り | ||
| 当社物件ID | 158990082 | ||
建物の情報
| 建物名 | プレジオ西新井 | ||
|---|---|---|---|
| 所在地 | 東京都足立区西新井7丁目 | ||
| 交通 | 日暮里舎人ライナー 西新井大師西駅 徒歩3分 東武伊勢崎・大師線 大師前駅 徒歩18分 | ||
| 階数 | 15階建 | 総戸数 | 84戸 |
| 築年月 | 2025年11月 / 新築(築1年) | エレベーター | あり |
| 駐車場 | 空有 1.87万円/月 | バイク置き場 | あり |
| 駐輪場 | あり | 管理人/管理会社 | - |
| 周辺環境 | コンビニ 徒歩16分(1263m) 販売店 徒歩15分(1194m) その他 ドラッグストア その他 公園 その他 銀行 その他 * | ||
| 建物種別 | マンション | 建物構造 | RC(鉄筋コンクリート) |
この部屋の取扱い不動産会社
| 会社名 | ハウスコム東東京株式会社 押上店 | ||
|---|---|---|---|
| 所在地 | 東京都墨田区16-2三橋ビル1階 | 交通 | - |
| 営業時間 | 10:00~18:00 | 定休日 | 水曜定休 |
| 免許番号 | 東京都知事(1)第108283号 | 取引態様 | 仲介 |
| 不動産会社管理番号 | HC2-5006786-204-0072 | 当社管理番号 | 468 |
| 所属団体 | 、 | ||
| 取扱い物件情報 | 物件詳細へ | ||
※各種情報と現状に差異がある場合は、現状優先となります。問い合わせをすることで、より詳しい条件、情報を確認する事ができます。
提供:ハウスコム東東京株式会社 押上店
この物件が気になったら掲載期限まであと5日
プレジオ西新井の空き部屋一覧
全部で59の空き部屋があります。
プレジオ西新井に条件(家賃・エリア)が近い物件一覧
| 写真 | 家賃 管理費等 | 敷金 礼金 | 間取り 専有面積 | 築年数 | 最寄り駅 所在地 | キープ | 詳細 |
|---|---|---|---|---|---|---|---|
マンション SAION町屋(2LDK/14階) | |||||||
![]() | 21.8万円 2万円 | 21.8万円 なし | 2LDK 50.23m2 | 築4年 | 東京地下鉄千代田線 町屋駅 徒歩3分 東京都荒川区荒川6丁目 | 詳細を見る | |
マンション イクシオ熊野前駅(1DK/1階) | |||||||
![]() | 11.4万円 5,000円 | なし 11.4万円 | 1DK 30.25m2 | 築1年 | 東京都荒川線 東尾久三丁目駅 徒歩4分 日暮里舎人ライナー 熊野前駅 徒歩5分 東京地下鉄千代田線 町屋駅 徒歩13分 東京都荒川区町屋 六丁目 | 詳細を見る | |
マンション ラグゼナ平井ノース(2LDK/3階) | |||||||
![]() | 22.3万円 1万円 | なし なし | 2LDK 53.64m2 | 築1年 | 東武亀戸線 東あずま駅 徒歩10分 JR総武線 平井駅(東京) 徒歩12分 京成押上線 京成曳舟駅 徒歩27分 東京都墨田区立花 | 詳細を見る | |
マンション モンシェール錦糸町(1K/2階) | |||||||
![]() | 9.4万円 7,000円 | 9.4万円 9.4万円 | 1K 20.6m2 | 築24年 | 東京地下鉄半蔵門線 錦糸町駅 徒歩6分 総武本線 錦糸町駅 徒歩8分 東武伊勢崎・大師線 押上駅 徒歩15分 東京都墨田区太平4丁目 | 詳細を見る | |
マンション ドゥーエ両国(1LDK/9階) | |||||||
![]() | 15.7万円 1.2万円 | 15.7万円 15.7万円 | 1LDK 39.53m2 | 築18年 | 東京都大江戸線 両国駅 徒歩4分 総武・中央緩行線 両国駅 徒歩10分 東京都墨田区横網2丁目 | 詳細を見る | |
マンション クレストコート本所吾妻橋ノース 本所吾妻橋ノース(1DK/8階) | |||||||
![]() | 15.7万円 1.2万円 | 15.7万円 なし | 1DK 25.42m2 | 築1年 | 東京都浅草線 本所吾妻橋駅 徒歩2分 東京地下鉄銀座線 浅草駅(東武・都営・メトロ) 徒歩9分 東武伊勢崎・大師線 とうきょうスカイツリー駅 徒歩10分 東京都墨田区吾妻橋2丁目 | 詳細を見る | |
マンション デュフレ南千住(1K/13階) | |||||||
![]() | 10.05万円 8,000円 | なし 10.05万円 | 1K 25.05m2 | 築7年 | 京成電鉄本線 千住大橋駅 徒歩5分 東京地下鉄日比谷線 南千住駅 徒歩10分 東京都荒川線 三ノ輪橋駅 徒歩10分 東京都荒川区南千住6丁目 | 詳細を見る | |
マンション アルファコート曳舟2(1SLDK/5階) | |||||||
![]() | 17.1万円 1.5万円 | なし なし | 1SLDK 41.02m2 | 築1年 | 東武伊勢崎・大師線 曳舟駅 徒歩10分 京成電鉄押上線 京成曳舟駅 徒歩15分 東京地下鉄半蔵門線 押上駅 徒歩16分 東京都墨田区向島5丁目 | 詳細を見る | |








