賃貸マンション
コンフォリア新大阪宮原Qの賃貸物件情報(1LDK/2階)
| 家賃 | 管理費等 | 敷金 | 礼金 | 間取り | 専有面積 |
|---|---|---|---|---|---|
| 12.2万円 | 1.2万円 | なし | 12.2万円 | 1LDK | 34.96m2 |
入居決定でお祝い金最大100,000円
- 保証金
- -
- 償却・敷引
- -
- 築年数
- 新築(築1年)
- 所在階
- 2階
- 向き
- 南
Point
うだるような暑さもエアコン完備物件なら安心です。防犯性に優れたディンプルキーを使ってみませんか。
提供:アパマンショップ針中野店

詳細情報 コンフォリア新大阪宮原Q
物件紹介
コンフォリア新大阪宮原Qは大阪メトロ御堂筋線東三国駅から徒歩5分にあり、駅近で通勤通学に便利なマンションです。
このお部屋は2階以上に位置しているので、通行人や周囲の住人からの視線が気になりにくく、防犯面でも安心。建物のエントランスはオートロックがついており、インターホンにはTVモニタもついているため、相手の顔を確認してから来客対応することができます。
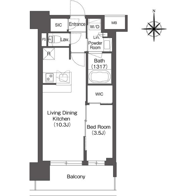
おしゃれなデザイナーズ物件!人気の南向き・フローリングのお部屋。室内にはウォークインクローゼットがありますので、たくさんの荷物も効率的に収納ができます。キッチンはシステムキッチン仕様になっていますので、お料理好きの方にもぴったり。バス・トイレは別なので、のんびりお風呂タイムも楽しめるでしょう。また、雨の日でも浴室乾燥機を使えば、お洗濯も問題ありません。
通信設備面では、インターネットが無料で使えるので、月々の出費を抑えられるのも魅力です。また、BSアンテナ・CSアンテナがありCATVにも対応しているので、おうち時間も充実するでしょう(別途工事、BS・CS・CATVの契約料等が必要な場合あり)。
建物にはエレベーターがついているので、重い荷物があっても安心。共用部には宅配ボックスが設定されているので、不在の時にも荷物を受け取ることができます。また、ペット飼育の相談ができますので、あなたの大切な家族の一員も快適に暮らせるか、ぜひ確認してみてください。
コンビニまで徒歩4分の場所にあり、日用品や食料品のお買い物にも便利です。
このお部屋は2階以上に位置しているので、通行人や周囲の住人からの視線が気になりにくく、防犯面でも安心。建物のエントランスはオートロックがついており、インターホンにはTVモニタもついているため、相手の顔を確認してから来客対応することができます。
おしゃれなデザイナーズ物件!人気の南向き・フローリングのお部屋。室内にはウォークインクローゼットがありますので、たくさんの荷物も効率的に収納ができます。キッチンはシステムキッチン仕様になっていますので、お料理好きの方にもぴったり。バス・トイレは別なので、のんびりお風呂タイムも楽しめるでしょう。また、雨の日でも浴室乾燥機を使えば、お洗濯も問題ありません。
通信設備面では、インターネットが無料で使えるので、月々の出費を抑えられるのも魅力です。また、BSアンテナ・CSアンテナがありCATVにも対応しているので、おうち時間も充実するでしょう(別途工事、BS・CS・CATVの契約料等が必要な場合あり)。
建物にはエレベーターがついているので、重い荷物があっても安心。共用部には宅配ボックスが設定されているので、不在の時にも荷物を受け取ることができます。また、ペット飼育の相談ができますので、あなたの大切な家族の一員も快適に暮らせるか、ぜひ確認してみてください。
コンビニまで徒歩4分の場所にあり、日用品や食料品のお買い物にも便利です。
お金・契約の情報
※「-」と表示されているものは、実際は料金が発生するものもございます。詳細はお問い合わせください。
| 家賃 | 12.2万円 | 管理費・共益費 | 1.2万円 |
|---|---|---|---|
| 敷金 | なし | 礼金 | 12.2万円 |
| 入居決定でお祝い金最大100,000円 | |||
| 保証金 | - | 償却・敷引 | - |
| 住宅保険料 | 1.655万円(2年) | 更新料 | - |
| その他費用 | 駐輪場ステッカー(税込/契約時):440円、エアコン清掃費(税込):8,250円、鍵交換費用(税込/契約時):2.2万円 | ||
| 契約形態 | - | 契約期間 | 2年 |
| 入居・引渡期間 | 即時 | 現況 | - |
| 入居可能条件 | 2人入居可 | ||
| 契約備考 | 防犯性の高いディンプルキー、女性にもオススメです。耐震に強いお住まいに住むならRC構造がお勧めです。 | ||
部屋の情報
| 間取り | 1LDK | 専有面積 | 34.96m2 |
|---|---|---|---|
| 間取り詳細 | LDK(10.3帖)、洋室(3.5帖) | ||
| 所在階 / 向き | 2階 / 南 | バルコニー面積 | - |
| 水道 / ガス | 水道【その他】、ガス【都市】 | ||
| 設備 | バス・トイレ別、オートロック、宅配ボックス、浴室乾燥機、ウォークインクローゼット、インターネット対応、システムキッチン、カウンターキッチン、エアコン、エレベーター、温水洗浄便座、バルコニー、フローリング、洗髪洗面化粧台、2口コンロ、コンロ:ガス、CATV、CSアンテナ、BSアンテナ、シャワー、給湯、洗濯機:室内 | ||
| 当社物件ID | 158814694 | ||
建物の情報
| 建物名 | コンフォリア新大阪宮原Q | ||
|---|---|---|---|
| 所在地 | 大阪府大阪市淀川区宮原5丁目 | ||
| 交通 | 大阪市営御堂筋線 東三国駅 徒歩7分 大阪市営御堂筋線 新大阪駅 徒歩13分 | ||
| 階数 | 14階建 | 総戸数 | 258戸 |
| 築年月 | 2025年02月 / 新築(築1年) | エレベーター | あり |
| 駐車場 | 空有 3.08万円/月 | バイク置き場 | あり |
| 駐輪場 | あり | 管理人/管理会社 | - |
| 周辺環境 | コンビニ 徒歩4分(300m) 販売店 徒歩5分(400m) 病院 徒歩6分(410m) | ||
| 建物種別 | マンション | 建物構造 | RC(鉄筋コンクリート) |
この部屋の取扱い不動産会社
| 会社名 | 賃貸大阪株式会社 賃貸大阪北千里店 | ||
|---|---|---|---|
| 所在地 | 大阪府吹田市古江台4-2-9 ウイング北千里ビル1F | 交通 | 阪急千里線「北千里駅」徒歩1分 |
| 営業時間 | 10:00-19:00 | 定休日 | 毎週水曜日(月末月初祝日除く) |
| 免許番号 | 国土交通大臣免許(3)第8688号 | 取引態様 | 仲介 |
| 不動産会社管理番号 | 10598520590211 | 当社管理番号 | 10 |
| 所属団体 | その他 | ||
| 取扱い物件情報 | 物件詳細へ | ||
※各種情報と現状に差異がある場合は、現状優先となります。問い合わせをすることで、より詳しい条件、情報を確認する事ができます。
提供:賃貸大阪株式会社 賃貸大阪北千里店
この物件が気になったら掲載期限まであと5日
コンフォリア新大阪宮原Qの空き部屋一覧
全部で26の空き部屋があります。
コンフォリア新大阪宮原Qに条件(家賃・エリア)が近い物件一覧
| 写真 | 家賃 管理費等 | 敷金 礼金 | 間取り 専有面積 | 築年数 | 最寄り駅 所在地 | キープ | 詳細 |
|---|---|---|---|---|---|---|---|
マンション ディームス江坂(1K/10階) | |||||||
| 8.1万円 1万円 | なし なし | 1K 24.8m2 | 築9年 | 北大阪急行南北線 江坂駅 徒歩9分 阪急電鉄宝塚線 庄内駅(大阪) 徒歩27分 阪急電鉄千里線 豊津駅(大阪) 徒歩28分 大阪府吹田市江の木町10-3 | 詳細を見る | ||
マンション スプランディッドライズ新大阪ノース(1LDK/9階) | |||||||
| 10.7万円 1万円 | なし 10.7万円 | 1LDK 31.4m2 | 新築 | 東海道本線 東淀川駅 徒歩3分 大阪市御堂筋線 新大阪駅 徒歩12分 大阪市御堂筋線 東三国駅 徒歩14分 大阪府大阪市東淀川区西淡路1丁目11-3-1部 | 詳細を見る | ||
アパート グランシャリオ3(1LDK/3階) | |||||||
| 10.9万円 6,000円 | なし 22万円 | 1LDK 43.88m2 | 築13年 | 東海道本線 東淀川駅 徒歩5分 大阪市御堂筋線 東三国駅 徒歩12分 大阪市御堂筋線 新大阪駅 徒歩16分 大阪府大阪市東淀川区西淡路4丁目4-3 | 詳細を見る | ||
マンション 南海電鉄南海本線 石津川駅 徒歩2分 築39年(2LDK/2階) | |||||||
![]() | 7.5万円 なし | 5万円 10万円 | 2LDK 63m2 | 築39年 | 南海電鉄南海本線 石津川駅 徒歩2分 南海電鉄南海本線 諏訪ノ森駅 徒歩12分 南海電鉄南海本線 湊駅 徒歩21分 大阪府堺市西区浜寺石津町中4丁 | 詳細を見る | |
マンション セレニテ江坂グランデ(1LDK/7階) | |||||||
| 9.6万円 1万円 | なし 19.2万円 | 1LDK 30.22m2 | 築2年 | 北大阪急行南北線 江坂駅 徒歩7分 阪急電鉄千里線 豊津駅(大阪) 徒歩19分 阪急電鉄千里線 関大前駅 徒歩22分 大阪府吹田市江坂町2丁目1-64 | 詳細を見る | ||
アパート ALEGRIA豊津(1LDK/3階) | |||||||
| 7.8万円 5,000円 | なし 15.6万円 | 1LDK 30.6m2 | 築3年 | 阪急電鉄千里線 豊津駅(大阪) 徒歩4分 東海道本線 吹田駅(JR) 徒歩21分 大阪市御堂筋線 江坂駅 徒歩21分 大阪府吹田市泉町5丁目22 | 詳細を見る | ||
マンション サンウエスト(3LDK/3階) | |||||||
![]() | 9万円 5,000円 | なし 9万円 | 3LDK 66.96m2 | 築30年 | 近鉄南大阪線 河内松原駅 徒歩5分 近鉄南大阪線 高見ノ里駅 徒歩9分 近鉄南大阪線 布忍駅 徒歩15分 大阪府松原市上田4丁目 | 詳細を見る | |
マンション エスリードレジデンス江坂垂水町(1DK/3階) | |||||||
| 9.7万円 1万円 | なし 9.7万円 | 1DK 30.19m2 | 築3年 | 大阪市御堂筋線 江坂駅 徒歩9分 阪急電鉄千里線 豊津駅(大阪) 徒歩10分 阪急電鉄千里線 関大前駅 徒歩19分 大阪府吹田市垂水町3丁目10-35 | 詳細を見る | ||


