賃貸マンション
コンフォリア・リヴ大森西の賃貸物件情報(2LDK/5階)
| 家賃 | 管理費等 | 敷金 | 礼金 | 間取り | 専有面積 |
|---|---|---|---|---|---|
| 19.7万円 | 1.8万円 | 19.7万円 | なし | 2LDK | 45.2m2 |
入居決定でお祝い金最大100,000円
- 保証金
- -
- 償却・敷引
- -
- 築年数
- 築1年
- 所在階
- 5階
- 向き
- 南
Point
室内見学承ります・お客様のご都合に合わせてオンラインまたはお近くの店舗でご提案可・初期費用分割払い可・クレジットカード利用可・引越業者割引・初期費用のお見積や入居日のご相談もお気軽にお問合せください
提供:(株)リライフ蒲田店(SUUMO経由)

詳細情報 コンフォリア・リヴ大森西
物件紹介
コンフォリア・リヴ大森西は京急本線大森町駅から徒歩12分にあるマンションです。
このお部屋は2階以上に位置しているので、通行人や周囲の住人からの視線が気になりにくく、防犯面でも安心。建物のエントランスはオートロックがついており、インターホンにはTVモニタもついているため、相手の顔を確認してから来客対応することができます。
人気の南向きのお部屋。また、フローリングなのでお掃除もラクラク。キッチンはシステムキッチン仕様になっていますので、お料理好きの方にもぴったり。バス・トイレは別なので、のんびりお風呂タイムも楽しめるでしょう。また、雨の日でも浴室乾燥機を使えば、お洗濯も問題ありません。
通信設備面では、インターネットが無料で使えるので、月々の出費を抑えられるのも魅力です。また、BSアンテナ・CSアンテナもありますので、おうち時間も充実するでしょう(別途工事、BS・CSの契約料等が必要な場合あり)。
建物にはエレベーターがついているので、重い荷物があっても安心。共用部には宅配ボックスが設定されているので、不在の時にも荷物を受け取ることができます。また、ペット飼育の相談ができますので、あなたの大切な家族の一員も快適に暮らせるか、ぜひ確認してみてください。
このお部屋は2階以上に位置しているので、通行人や周囲の住人からの視線が気になりにくく、防犯面でも安心。建物のエントランスはオートロックがついており、インターホンにはTVモニタもついているため、相手の顔を確認してから来客対応することができます。
人気の南向きのお部屋。また、フローリングなのでお掃除もラクラク。キッチンはシステムキッチン仕様になっていますので、お料理好きの方にもぴったり。バス・トイレは別なので、のんびりお風呂タイムも楽しめるでしょう。また、雨の日でも浴室乾燥機を使えば、お洗濯も問題ありません。
通信設備面では、インターネットが無料で使えるので、月々の出費を抑えられるのも魅力です。また、BSアンテナ・CSアンテナもありますので、おうち時間も充実するでしょう(別途工事、BS・CSの契約料等が必要な場合あり)。
建物にはエレベーターがついているので、重い荷物があっても安心。共用部には宅配ボックスが設定されているので、不在の時にも荷物を受け取ることができます。また、ペット飼育の相談ができますので、あなたの大切な家族の一員も快適に暮らせるか、ぜひ確認してみてください。
お金・契約の情報
※「-」と表示されているものは、実際は料金が発生するものもございます。詳細はお問い合わせください。
| 家賃 | 19.7万円 | 管理費・共益費 | 1.8万円 |
|---|---|---|---|
| 敷金 | 19.7万円 | 礼金 | なし |
| 入居決定でお祝い金最大100,000円 | |||
| 保証金 | - | 償却・敷引 | - |
| 住宅保険料 | - | 更新料 | - |
| 保証会社利用 | 必須 | 保証会社名 | - |
| 保証会社費用 | - | 保証会社備考 | 保証会社利用必 エポスカード(RP)保証料:賃料等の50%(最低2万)、月額保証料:賃料等の1%(更新料無) |
| 契約形態 | - | 契約期間 | - |
| 入居・引渡期間 | 即時 | 現況 | - |
| 入居可能条件 | ペット相談 | ||
| 契約備考 | 当物件は「住まいのリライフ」で取り扱っております。リライフは首都圏25店舗のネットワークで豊富な物件情報をお客様へご提供します。当物件に類似した未公開物件なども合わせてご提案可能です。お気軽にお問合せください。清掃費:4.895万円/エアコン清掃費:4.4万円 2LDK ペット相談 損保【要】 バストイレ別、バルコニー、エアコン、クロゼット、フローリング、TVインターホン、浴室乾燥機、オートロック、室内洗濯置、シューズボックス、システムキッチン、南向き、追焚機能浴室、温水洗浄便座、エレベーター、洗面所独立、駐輪場、宅配ボックス、BS・CS、防犯カメラ、ペット相談、バイク置場、全居室フローリング、2沿線利用可、ネット使用料不要、トランクルーム、24時間換気システム、クロゼット2ヶ所、始発駅、3駅以上利用可、24時間ゴミ出し可、敷地内ごみ置き場、玄関収納 | ||
部屋の情報
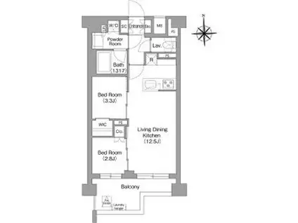
| 間取り | 2LDK | 専有面積 | 45.2m2 |
|---|---|---|---|
| 所在階 / 向き | 5階 / 南 | バルコニー面積 | - |
| 水道 / ガス | - | ||
| 設備 | バス・トイレ別、2階以上、オートロック、テレビドアホン、宅配ボックス、浴室乾燥機、追い焚き、インターネット対応、システムキッチン、エアコン、エレベーター、温水洗浄便座、南向き、バルコニー、フローリング、トランクルーム、洗髪洗面化粧台、CSアンテナ、BSアンテナ、インターネット使用料無料、洗濯機:室内 | ||
| 当社物件ID | 159750982 | ||
建物の情報
| 建物名 | コンフォリア・リヴ大森西 | ||
|---|---|---|---|
| 所在地 | 東京都大田区大森西 | ||
| 交通 | 京急本線 大森町駅 徒歩12分 京急本線 梅屋敷駅(東京) 徒歩14分 京急空港線 京急蒲田駅 徒歩21分 | ||
| 階数 | 8階建 | 総戸数 | 98戸 |
| 築年月 | 2025年08月 / 築1年 | エレベーター | あり |
| 駐車場 | 空有 27500円 | バイク置き場 | あり |
| 駐輪場 | あり | 管理人/管理会社 | - |
| 周辺環境 | その他 ライフ マチノマ大森店(スーパー)まで148m その他 東武ストア 大森店(スーパー)まで551m その他 ローソンストア100 大森西店(コンビニ)まで198m その他 ファミリーマート 大森西四丁目店(コンビニ)まで238m その他 ドラッグストア マツモトキヨシ マチノマ大森店(ドラッグストア)まで152m その他 ポニークリーニング 大森西店(その他)まで51m | ||
| 建物種別 | マンション | 建物構造 | RC(鉄筋コンクリート) |
この部屋の取扱い不動産会社
| 会社名 | (株)リライフ蒲田店(SUUMO経由) | ||
|---|---|---|---|
| 所在地 | 東京都大田区蒲田5-18-1 ザ・シティ蒲田6階 | 交通 | - |
| 営業時間 | 10:00~18:30 | 定休日 | 火曜日水曜日(祝日を除く) |
| 免許番号 | 国土交通大臣10792 | 取引態様 | 仲介 |
| 不動産会社管理番号 | 100470131690 | 当社管理番号 | 89 |
| 所属団体 | (公社)東京都宅地建物取引業協会会員 | ||
| 公正取引協議会 | (公社)首都圏不動産公正取引協議会加盟 | ||
| 取扱い物件情報 | 物件詳細へ | ||
※各種情報と現状に差異がある場合は、現状優先となります。問い合わせをすることで、より詳しい条件、情報を確認する事ができます。
提供:(株)リライフ蒲田店(SUUMO経由)
この物件が気になったら掲載期限まであと11日
コンフォリア・リヴ大森西の空き部屋一覧
全部で32の空き部屋があります。
コンフォリア・リヴ大森西に条件(家賃・エリア)が近い物件一覧
| 写真 | 家賃 管理費等 | 敷金 礼金 | 間取り 専有面積 | 築年数 | 最寄り駅 所在地 | キープ | 詳細 |
|---|---|---|---|---|---|---|---|
マンション PLUMERIA BLANE プルメリアブラン(1LDK/1階) | |||||||
![]() | 15.3万円 3,000円 | 15.3万円 なし | 1LDK 48.99m2 | 築9年 | 京急本線 大森町駅 徒歩5分 京急本線 平和島駅 徒歩12分 京急本線 梅屋敷駅(東京) 徒歩13分 東京都大田区大森西 | 詳細を見る | |
マンション フルールメゾン(2LDK/4階) | |||||||
![]() | 16.1万円 7,200円 | 16.1万円 32.2万円 | 2LDK 57.68m2 | 築24年 | 京浜急行電鉄本線 六郷土手駅 徒歩1分 京浜急行電鉄本線 雑色駅 徒歩17分 東京都大田区仲六郷4丁目 | 詳細を見る | |
マンション パークハビオ門前仲町(ワンルーム/2階) | |||||||
![]() | 13.8万円 1.5万円 | 13.8万円 13.8万円 | ワンルーム 28.73m2 | 築12年 | 東京メトロ東西線 門前仲町駅 徒歩2分 JR京葉線 越中島駅 徒歩14分 東京メトロ半蔵門線 清澄白河駅 徒歩14分 東京都江東区深川 | 詳細を見る | |
マンション 東雲キャナルコートCODAN16号棟(1LDK/9階) | |||||||
![]() | 22.9万円 1.5万円 | 22.9万円 34.35万円 | 1LDK 75.83m2 | 築22年 | りんかい線 東雲駅(東京) 徒歩11分 東京メトロ有楽町線 辰巳駅 徒歩13分 東京メトロ有楽町線 豊洲駅 徒歩15分 東京都江東区東雲 | 詳細を見る | |
アパート 御殿山テラスⅡ(2LDK/1階) | |||||||
![]() | 22.5万円 3,000円 | 22.5万円 45万円 | 2LDK 57.6m2 | 築2年 | 山手線 大崎駅 徒歩8分 京浜急行電鉄本線 北品川駅 徒歩14分 東京都品川区北品川5丁目 | 詳細を見る | |
一戸建て 東京都新宿線 大島駅(東京) 徒歩7分 築76年(1DK) | |||||||
![]() | 15.8万円 1万円 | 15.8万円 15.8万円 | 1DK 27.91m2 | 築76年 | 東京都新宿線 大島駅(東京) 徒歩7分 東京都新宿線 西大島駅 徒歩7分 総武・中央緩行線 亀戸駅 徒歩11分 東京都江東区大島3丁目 | 詳細を見る | |
アパート M SONIA KUGAHARA(2LDK/1階) | |||||||
![]() | 16.5万円 3,000円 | 16.5万円 33万円 | 2LDK 49.27m2 | 築1年 | 東急池上線 久が原駅 徒歩8分 東急池上線 御嶽山駅 徒歩9分 東京都大田区西嶺町 | 詳細を見る | |








