賃貸マンション
ナナアーク荒町の賃貸物件情報(1LDK/7階)
| 家賃 | 管理費等 | 敷金 | 礼金 | 間取り | 専有面積 |
|---|---|---|---|---|---|
| 12.5万円 | 1.5万円 | なし | 25万円 | 1LDK | 44.77m2 |
入居決定でお祝い金最大100,000円
- 保証金
- -
- 償却・敷引
- -
- 築年数
- 築1年
- 所在階
- 7階
- 向き
- 西
Point
”シャーメゾンショップ”ファインエステート仙台駅前店では宮城県内のシャーメゾンのお部屋全てご紹介しております♪各階層すべてのお部屋のご内覧~ご契約までお任せください!
提供:ファインエステート仙台駅前店(株)F-NEXT(SUUMO経由)

詳細情報 ナナアーク荒町
物件紹介
ナナアーク荒町は仙台市地下鉄南北線五橋駅から徒歩2分にあり、駅近で通勤通学に便利なマンションです。
このお部屋は2階以上に位置しているので、通行人や周囲の住人からの視線が気になりにくく、防犯面でも安心。建物のエントランスはオートロックがついており、インターホンにはTVモニタもついているため、相手の顔を確認してから来客対応することができます。
フローリングのお部屋なのでお掃除もラクラク。室内には人気のウォークインクローゼットがありますので、たくさんの荷物も効率的に収納ができます。キッチンはシステムキッチン仕様になっていますので、お料理好きの方にもぴったり。バス・トイレは別なので、のんびりお風呂タイムも楽しめるでしょう。また、雨の日でも浴室乾燥機を使えば、お洗濯も問題ありません。
通信設備面では、インターネットが無料で使えるので、月々の出費を抑えられるのも魅力です(別途工事等が必要な場合あり)。
建物にはエレベーターがついているので、重い荷物があっても安心。共用部には宅配ボックスが設定されているので、不在の時にも荷物を受け取ることができます。
このお部屋は2階以上に位置しているので、通行人や周囲の住人からの視線が気になりにくく、防犯面でも安心。建物のエントランスはオートロックがついており、インターホンにはTVモニタもついているため、相手の顔を確認してから来客対応することができます。
フローリングのお部屋なのでお掃除もラクラク。室内には人気のウォークインクローゼットがありますので、たくさんの荷物も効率的に収納ができます。キッチンはシステムキッチン仕様になっていますので、お料理好きの方にもぴったり。バス・トイレは別なので、のんびりお風呂タイムも楽しめるでしょう。また、雨の日でも浴室乾燥機を使えば、お洗濯も問題ありません。
通信設備面では、インターネットが無料で使えるので、月々の出費を抑えられるのも魅力です(別途工事等が必要な場合あり)。
建物にはエレベーターがついているので、重い荷物があっても安心。共用部には宅配ボックスが設定されているので、不在の時にも荷物を受け取ることができます。
お金・契約の情報
※「-」と表示されているものは、実際は料金が発生するものもございます。詳細はお問い合わせください。
| 家賃 | 12.5万円 | 管理費・共益費 | 1.5万円 |
|---|---|---|---|
| 敷金 | なし | 礼金 | 25万円 |
| 入居決定でお祝い金最大100,000円 | |||
| 保証金 | - | 償却・敷引 | - |
| 住宅保険料 | - | 更新料 | - |
| 契約形態 | - | 契約期間 | - |
| 入居・引渡期間 | 即時 | 現況 | - |
| 契約備考 | イオンエクスプレス仙台五橋駅前まで289m/ツルハドラッグ仙台荒町店まで374m/バイク置場完備。居住スペース4階~10階まで【全てのお部屋】を当店ではご紹介可能です。詳細はお問い合わせください。※パノラマのみ同物件の別号室の反転タイプのものとなります。ご参考下さい。 合計8.14万円(内訳:退去時クリーニング費用:81400円(税込)) シャーメゾンライフサポート24:1320円/月額 1LDK 二人入居可 損保【要】 バストイレ別、バルコニー、エアコン、クロゼット、フローリング、シャワー付洗面台、TVインターホン、浴室乾燥機、オートロック、室内洗濯置、陽当り良好、シューズボックス、システムキッチン、追焚機能浴室、温水洗浄便座、エレベーター、洗面所独立、洗面化粧台、駐輪場、宅配ボックス、即入居可、敷金不要、3口以上コンロ、対面式キッチン、防犯カメラ、照明付、全居室洋室、ウォークインクロゼット、保証人不要、バイク置場、全居室フローリング、2沿線利用可、駅まで平坦、ネット使用料不要、眺望良好、エアコン全室、築2年以内、24時間換気システム、平坦地、築3年以内、浴室未使用、トイレ未使用、未入居、2駅利用可、3駅以上利用可、3沿線以上利用可、駅徒歩5分以内、駅徒歩10分以内、敷地内ごみ置き場、セキュリティ会社加入済、全居室6畳以上、キッチン未使用、都市ガス、洗面所にドア、室内物干機、IT重説対応物件、初期費用カード決済可、全室照明付、通風良好 | ||
部屋の情報
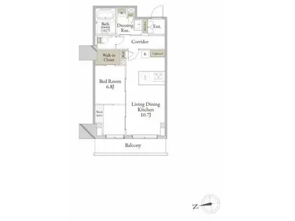
| 間取り | 1LDK | 専有面積 | 44.77m2 |
|---|---|---|---|
| 所在階 / 向き | 7階 / 西 | バルコニー面積 | - |
| 水道 / ガス | - | ||
| 設備 | バス・トイレ別、2階以上、オートロック、テレビドアホン、宅配ボックス、浴室乾燥機、ウォークインクローゼット、追い焚き、インターネット対応、システムキッチン、エアコン、エレベーター、温水洗浄便座、バルコニー、フローリング、洗髪洗面化粧台、2口コンロ、インターネット使用料無料、洗濯機:室内 | ||
| 当社物件ID | 159420364 | ||
建物の情報
| 建物名 | ナナアーク荒町 | ||
|---|---|---|---|
| 所在地 | 宮城県仙台市若林区荒町 | ||
| 交通 | 仙台市地下鉄南北線 五橋駅 徒歩2分 JR東北本線 仙台駅 徒歩15分 仙台市地下鉄東西線 宮城野通駅 徒歩16分 | ||
| 階数 | 10階建 | 総戸数 | 56戸 |
| 築年月 | 2025年08月 / 築1年 | エレベーター | あり |
| 駐車場 | 近隣 200m22000円 | バイク置き場 | あり |
| 駐輪場 | あり | 管理人/管理会社 | - |
| 周辺環境 | その他 イオンエクスプレス仙台五橋駅前店(スーパー)まで289m その他 ファミリーマート東北学院大学五橋キャンパス店(コンビニ)まで500m その他 ツルハドラッグ仙台荒町店(ドラッグストア)まで374m その他 私立東北学院大学五橋キャンパス(大学・短大)まで280m その他 仙台荒町郵便局(郵便局)まで426m その他 仙台銀行荒町支店(銀行)まで472m | ||
| 建物種別 | マンション | 建物構造 | RC(鉄筋コンクリート) |
この部屋の取扱い不動産会社
| 会社名 | ファインエステート仙台駅前店(株)F-NEXT(SUUMO経由) | ||
|---|---|---|---|
| 所在地 | 宮城県仙台市青葉区中央2-6-37 4階 | 交通 | - |
| 営業時間 | 9:00~18:00 | 定休日 | 水曜日 |
| 免許番号 | 宮城県知事7203 | 取引態様 | 仲介 |
| 不動産会社管理番号 | 100473147638 | 当社管理番号 | 89 |
| 所属団体 | (公社)全日本不動産協会宮城県本部会員 | ||
| 公正取引協議会 | 東北地区不動産公正取引協議会加盟 | ||
| 取扱い物件情報 | 物件詳細へ | ||
※各種情報と現状に差異がある場合は、現状優先となります。問い合わせをすることで、より詳しい条件、情報を確認する事ができます。
提供:ファインエステート仙台駅前店(株)F-NEXT(SUUMO経由)
この物件が気になったら掲載期限まであと0日
ナナアーク荒町の空き部屋一覧
全部で42の空き部屋があります。
ナナアーク荒町に条件(家賃・エリア)が近い物件一覧
| 写真 | 家賃 管理費等 | 敷金 礼金 | 間取り 専有面積 | 築年数 | 最寄り駅 所在地 | キープ | 詳細 |
|---|---|---|---|---|---|---|---|
アパート アイリ―コート南小泉(3LDK/1階) | |||||||
![]() | 11.8万円 なし | 11.8万円 11.8万円 | 3LDK 66.66m2 | 築1年 | 仙台市地下鉄東西線 薬師堂駅(宮城) 徒歩21分 仙台市地下鉄南北線 河原町駅(宮城) 徒歩23分 仙台市地下鉄南北線 長町一丁目駅 徒歩25分 宮城県仙台市若林区南小泉 | 詳細を見る | |
アパート FORENA荒井(2LDK/1階) | |||||||
![]() | 12.6万円 5,500円 | なし 12.6万円 | 2LDK 61.16m2 | 新築 | 仙台市地下鉄東西線 荒井駅(宮城) 徒歩9分 宮城県仙台市若林区荒井7丁目 | 詳細を見る | |
マンション クレアール土樋(1LDK/4階) | |||||||
![]() | 11.6万円 8,000円 | なし 11.6万円 | 1LDK 44.48m2 | 築1年 | 仙台市地下鉄南北線 愛宕橋駅 徒歩3分 仙台市地下鉄南北線 五橋駅 徒歩5分 仙台市地下鉄南北線 河原町駅(宮城) 徒歩13分 宮城県仙台市若林区土樋 | 詳細を見る | |
マンション アーバンスクエア五橋(2LDK/8階) | |||||||
![]() | 11.2万円 1万円 | 22.4万円 11.2万円 | 2LDK 79.48m2 | 築23年 | 仙台市地下鉄南北線 五橋駅 徒歩5分 仙台市地下鉄南北線 愛宕橋駅 徒歩6分 仙台市地下鉄南北線 仙台駅 徒歩15分 宮城県仙台市青葉区五橋 | 詳細を見る | |
アパート BAU宮町1号棟(1LDK/1階) | |||||||
![]() | 7.6万円 3,000円 | なし なし | 1LDK 26.73m2 | 築1年 | JR仙山線 東照宮駅 徒歩11分 仙台市地下鉄南北線 勾当台公園駅 徒歩15分 仙台市地下鉄南北線 仙台駅 徒歩20分 宮城県仙台市青葉区宮町 | 詳細を見る | |
アパート グランディールヒルズ(2LDK/2階) | |||||||
![]() | 7.9万円 4,000円 | 7.9万円 なし | 2LDK 53.8m2 | 築1年 | 東北本線 岩切駅 徒歩30分 宮城県宮城郡利府町神谷沢字後沢 | 詳細を見る | |
マンション 第2五橋ライフ(1LDK/1階) | |||||||
![]() | 7.9万円 5,000円 | 7.9万円 7.9万円 | 1LDK 29.8m2 | 築7年 | 仙台市地下鉄南北線 五橋駅 徒歩3分 JR東北本線 仙台駅 徒歩10分 宮城県仙台市若林区五橋 | 詳細を見る | |
マンション レィディエンス本町(2LDK/3階) | |||||||
![]() | 18.8万円 7,000円 | なし なし | 2LDK 70.03m2 | 築1年 | 仙台市地下鉄南北線 広瀬通駅 徒歩4分 東北新幹線 仙台駅 徒歩7分 JR仙石線 あおば通駅 徒歩8分 宮城県仙台市青葉区本町 | 詳細を見る | |









