賃貸マンション
クレールセゾンの賃貸物件情報(1SLDK/2階)
| 家賃 | 管理費等 | 敷金 | 礼金 | 間取り | 専有面積 |
|---|---|---|---|---|---|
| 8.9万円 | 3,000円 | 8.9万円 | 8.9万円 | 1SLDK | 57.27m2 |
入居決定でお祝い金最大100,000円
Point
収納はクロゼット・シューズボックスなどが備え付けられているので、衣類や日用品の収納に重宝します。
提供:(株)ネクストライフ町田本店(SUUMO経由)

詳細情報 クレールセゾン
物件紹介
クレールセゾンはJR横浜線相模原駅から徒歩15分にあるマンションです。
このお部屋は2階以上に位置しているので、通行人や周囲の住人からの視線が気になりにくく、防犯面でも安心。建物のエントランスはオートロックがついており、インターホンにはTVモニタもついているため、相手の顔を確認してから来客対応することができます。
人気の南向き・フローリングのお部屋。角部屋でもあるため、周囲の居住者の生活音も気になりにくい場所です。室内にはウォークインクローゼットがありますので、たくさんの荷物も効率的に収納ができます。キッチンはシステムキッチン仕様になっていますので、お料理好きの方にもぴったり。バス・トイレは別なので、のんびりお風呂タイムも楽しめるでしょう。また、雨の日でも浴室乾燥機を使えば、お洗濯も問題ありません。
通信設備面では、インターネット接続が可能です。また、BSアンテナがありCATVにも対応しているので、おうち時間も充実するでしょう(別途工事、契約料が必要な場合あり)。
コンビニまで徒歩3分の場所にあり、日用品や食料品のお買い物にも便利です。
このお部屋は2階以上に位置しているので、通行人や周囲の住人からの視線が気になりにくく、防犯面でも安心。建物のエントランスはオートロックがついており、インターホンにはTVモニタもついているため、相手の顔を確認してから来客対応することができます。
人気の南向き・フローリングのお部屋。角部屋でもあるため、周囲の居住者の生活音も気になりにくい場所です。室内にはウォークインクローゼットがありますので、たくさんの荷物も効率的に収納ができます。キッチンはシステムキッチン仕様になっていますので、お料理好きの方にもぴったり。バス・トイレは別なので、のんびりお風呂タイムも楽しめるでしょう。また、雨の日でも浴室乾燥機を使えば、お洗濯も問題ありません。
通信設備面では、インターネット接続が可能です。また、BSアンテナがありCATVにも対応しているので、おうち時間も充実するでしょう(別途工事、契約料が必要な場合あり)。
コンビニまで徒歩3分の場所にあり、日用品や食料品のお買い物にも便利です。
お金・契約の情報
※「-」と表示されているものは、実際は料金が発生するものもございます。詳細はお問い合わせください。
| 家賃 | 8.9万円 | 管理費・共益費 | 3,000円 |
|---|---|---|---|
| 敷金 | 8.9万円 | 礼金 | 8.9万円 |
| 入居決定でお祝い金最大100,000円 | |||
| 保証金 | - | 償却・敷引 | - |
| 住宅保険料 | 1円 | 更新料 | - |
| 保証会社利用 | 必須 | 保証会社名 | - |
| 保証会社費用 | - | 保証会社備考 | 保証会社利用料:月額総賃料30%、以降1年毎13000円 |
| 契約形態 | - | 契約期間 | 2年 |
| 入居・引渡期間 | 2026年05月下旬 | 現況 | - |
| 入居可能条件 | 事務所不可、2人入居可、楽器不可、ペット不可 | ||
| 契約備考 | 鍵交換代 16500円 保証会社利用必須 保証会社利用料:月額総賃料30%、以降1年毎13000円 鍵交換費用:16500 その他設備/条件:室内洗濯機置き場、独立洗面台、クローゼット、シューズボックス、照明器具付き | ||
部屋の情報
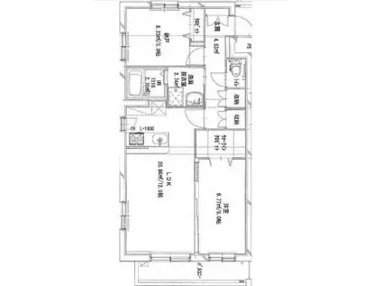
| 間取り | 1SLDK | 専有面積 | 57.27m2 |
|---|---|---|---|
| 間取り詳細 | 洋室(6帖)、LDK(12.8帖)、その他(5帖) | ||
| 所在階 / 向き | 2階 / 南 | バルコニー面積 | - |
| 水道 / ガス | 水道【公営】、ガス【都市】 | ||
| 設備 | バス・トイレ別、オートロック、テレビドアホン、浴室乾燥機、ウォークインクローゼット、追い焚き、光ファイバー対応、システムキッチン、カウンターキッチン、エアコン、温水洗浄便座、角部屋、バルコニー、フローリング、洗髪洗面化粧台、2口コンロ、コンロ:IH、BSアンテナ、シャワー、給湯、出窓、タイル張り | ||
| 当社物件ID | 20711748 | ||
建物の情報
| 建物名 | クレールセゾン | ||
|---|---|---|---|
| 所在地 | 神奈川県相模原市中央区中央2丁目 | ||
| 交通 | 横浜線 相模原駅 徒歩15分 | ||
| 階数 | 4階建 | 総戸数 | 12戸 |
| 築年月 | 2013年02月 / 築14年 | エレベーター | - |
| 駐車場 | - | バイク置き場 | あり |
| 駐輪場 | あり | 管理人/管理会社 | - |
| 周辺環境 | コンビニ 徒歩3分(237m) 販売店 徒歩3分(231m) その他 ドラッグストア その他 公園 その他 銀行 その他 * | ||
| 建物種別 | マンション | 建物構造 | RC(鉄筋コンクリート) |
この部屋の取扱い不動産会社
| 会社名 | ハウスコム西神奈川株式会社 相模大野店 | ||
|---|---|---|---|
| 所在地 | 神奈川県相模原市南区12-6アポロ相模大野ビル1階 | 交通 | - |
| 営業時間 | 10:00~18:00 | 定休日 | - |
| 免許番号 | 神奈川県知事(1)第31770号 | 取引態様 | 仲介 |
| 不動産会社管理番号 | HC2-357257-203-0076 | 当社管理番号 | 468 |
| 所属団体 | 、 | ||
| 取扱い物件情報 | 物件詳細へ | ||
※各種情報と現状に差異がある場合は、現状優先となります。問い合わせをすることで、より詳しい条件、情報を確認する事ができます。
提供:ハウスコム西神奈川株式会社 相模大野店
この物件が気になったら掲載期限まであと15日
クレールセゾンに条件(家賃・エリア)が近い物件一覧
| 写真 | 家賃 管理費等 | 敷金 礼金 | 間取り 専有面積 | 築年数 | 最寄り駅 所在地 | キープ | 詳細 |
|---|---|---|---|---|---|---|---|
マンション PLENDY相模原清新(2LDK/4階) | |||||||
![]() | 9.5万円 1万円 | なし なし | 2LDK 60.77m2 | 築26年 | JR相模線 南橋本駅 徒歩8分 JR横浜線 相模原駅 徒歩18分 JR横浜線 橋本駅(神奈川) 徒歩35分 神奈川県相模原市中央区清新 | 詳細を見る | |
マンション 矢部ビル(3K/2階) | |||||||
![]() | 8.3万円 2,000円 | 8.3万円 なし | 3K 57.43m2 | 築36年 | JR横浜線 矢部駅 徒歩2分 神奈川県相模原市中央区矢部 | 詳細を見る | |
アパート サニ-プレイス(1K/1階) | |||||||
![]() | 7.7万円 5,000円 | なし 7.7万円 | 1K 25.11m2 | 築18年 | 小田急線 相模大野駅 徒歩10分 JR横浜線 町田駅 徒歩15分 小田急江ノ島線 東林間駅 徒歩22分 神奈川県相模原市南区上鶴間本町 | 詳細を見る | |
アパート ドムスクレスト淵野辺(2LDK/1階) | |||||||
![]() | 12.4万円 6,000円 | なし 18.6万円 | 2LDK 50.34m2 | 築1年 | JR横浜線 淵野辺駅 徒歩8分 JR横浜線 矢部駅 徒歩18分 神奈川県相模原市中央区淵野辺 | 詳細を見る | |
マンション アルスフィルド相模原(1LDK/3階) | |||||||
![]() | 10.1万円 7,000円 | なし 20.2万円 | 1LDK 43.51m2 | 新築 | 横浜線 相模原駅 徒歩10分 神奈川県相模原市中央区相模原8丁目 | 詳細を見る | |
アパート レオパレスグランドKIⅡ(1K/2階) | |||||||
![]() | 6.4万円 5,000円 | なし 6.4万円 | 1K 19.87m2 | 築16年 | 神奈川県相模原市緑区相原6丁目 | 詳細を見る | |
アパート ヴィラ本厚木(1K/1階) | |||||||
![]() | 6万円 2,000円 | 6万円 6万円 | 1K 24m2 | 築26年 | 小田急小田原線 本厚木駅 徒歩3分 JR相模線 厚木駅 徒歩17分 JR相模線 社家駅 徒歩51分 神奈川県厚木市泉町 | 詳細を見る | |







