賃貸マンション
ORSUS戸越銀座の賃貸物件情報(1LDK/5階)
| 家賃 | 管理費等 | 敷金 | 礼金 | 間取り | 専有面積 |
|---|---|---|---|---|---|
| 25万円 | 1.5万円 | 25万円 | なし | 1LDK | 38.64m2 |
入居決定でお祝い金最大100,000円
Point
室内設備は洗面所独立・浴室乾燥機などが揃っており、とても充実しています。
提供:センチュリー21(株)トーコー開発(SUUMO経由)

詳細情報 ORSUS戸越銀座
物件紹介
ORSUS戸越銀座は東急池上線戸越銀座駅から徒歩4分にあり、駅近で通勤通学に便利なマンションです。
このお部屋は2階以上に位置しているので、通行人や周囲の住人からの視線が気になりにくく、防犯面でも安心。建物のエントランスはオートロックがついており、インターホンにはTVモニタもついているため、相手の顔を確認してから来客対応することができます。
人気の南向き・フローリングのお部屋。角部屋でもあるため、周囲の居住者の生活音も気になりにくい場所です。室内にはウォークインクローゼットがありますので、たくさんの荷物も効率的に収納ができます。キッチンはシステムキッチン仕様になっていますので、お料理好きの方にもぴったり。バス・トイレは別なので、のんびりお風呂タイムも楽しめるでしょう。また、雨の日でも浴室乾燥機を使えば、お洗濯も問題ありません。
通信設備面では、インターネットが無料で使えるので、月々の出費を抑えられるのも魅力です。また、BSアンテナ・CSアンテナがありCATVにも対応しているので、おうち時間も充実するでしょう(別途工事、BS・CS・CATVの契約料等が必要な場合あり)。
建物にはエレベーターがついているので、重い荷物があっても安心。共用部には宅配ボックスが設定されているので、不在の時にも荷物を受け取ることができます。また、ペット飼育の相談ができますので、あなたの大切な家族の一員も快適に暮らせるか、ぜひ確認してみてください。
コンビニまで徒歩12分の場所にあり、日用品や食料品のお買い物にも便利です。
このお部屋は2階以上に位置しているので、通行人や周囲の住人からの視線が気になりにくく、防犯面でも安心。建物のエントランスはオートロックがついており、インターホンにはTVモニタもついているため、相手の顔を確認してから来客対応することができます。
人気の南向き・フローリングのお部屋。角部屋でもあるため、周囲の居住者の生活音も気になりにくい場所です。室内にはウォークインクローゼットがありますので、たくさんの荷物も効率的に収納ができます。キッチンはシステムキッチン仕様になっていますので、お料理好きの方にもぴったり。バス・トイレは別なので、のんびりお風呂タイムも楽しめるでしょう。また、雨の日でも浴室乾燥機を使えば、お洗濯も問題ありません。
通信設備面では、インターネットが無料で使えるので、月々の出費を抑えられるのも魅力です。また、BSアンテナ・CSアンテナがありCATVにも対応しているので、おうち時間も充実するでしょう(別途工事、BS・CS・CATVの契約料等が必要な場合あり)。
建物にはエレベーターがついているので、重い荷物があっても安心。共用部には宅配ボックスが設定されているので、不在の時にも荷物を受け取ることができます。また、ペット飼育の相談ができますので、あなたの大切な家族の一員も快適に暮らせるか、ぜひ確認してみてください。
コンビニまで徒歩12分の場所にあり、日用品や食料品のお買い物にも便利です。
お金・契約の情報
※「-」と表示されているものは、実際は料金が発生するものもございます。詳細はお問い合わせください。
| 家賃 | 25万円 | 管理費・共益費 | 1.5万円 |
|---|---|---|---|
| 敷金 | 25万円 | 礼金 | なし |
| 入居決定でお祝い金最大100,000円 | |||
| 保証金 | - | 償却・敷引 | - |
| 住宅保険料 | 1円 | 更新料 | - |
| その他費用 | 鍵交換代:3.3万円 | ||
| 保証会社利用 | 必須 | 保証会社名 | - |
| 保証会社費用 | - | 保証会社備考 | 初回50% 月額1% |
| 契約形態 | - | 契約期間 | 2年 |
| 入居・引渡期間 | 即時 | 現況 | - |
| 入居可能条件 | ペット相談 | ||
| 契約備考 | 清掃費:44000円(退去時請求).エアコン清掃費:22000円(退去時請求)ペット飼育可 (小型犬または猫1匹まで/敷金1ヶ月積増 その他設備/条件:室内洗濯機置き場、ごみ出し24時間OK、独立洗面台、防犯カメラ、クローゼット、シューズボックス、照明器具付き | ||
部屋の情報
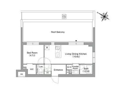
| 間取り | 1LDK | 専有面積 | 38.64m2 |
|---|---|---|---|
| 間取り詳細 | LDK(10.6帖)、洋室(4.7帖) | ||
| 所在階 / 向き | 5階 / 北東 | バルコニー面積 | - |
| 水道 / ガス | - | ||
| 設備 | バス・トイレ別、オートロック、テレビドアホン、宅配ボックス、浴室乾燥機、ウォークインクローゼット、追い焚き、インターネット対応、システムキッチン、カウンターキッチン、エアコン、エレベーター、温水洗浄便座、角部屋、バルコニー、フローリング、洗髪洗面化粧台、バリアフリー、2口コンロ、コンロ:ガス、CATV、CSアンテナ、BSアンテナ、インターネット使用料無料、シャワー、給湯 | ||
| 当社物件ID | 142785628 | ||
建物の情報
| 建物名 | ORSUS戸越銀座 | ||
|---|---|---|---|
| 所在地 | 東京都品川区荏原2丁目 | ||
| 交通 | 東急池上線 戸越銀座駅 徒歩5分 東京都浅草線 戸越駅 徒歩8分 | ||
| 階数 | 6階建 | 総戸数 | 92戸 |
| 築年月 | 2023年10月 / 築3年 | エレベーター | あり |
| 駐車場 | なし | バイク置き場 | あり |
| 駐輪場 | あり | 管理人/管理会社 | - |
| 周辺環境 | コンビニ 徒歩12分(883m) 販売店 徒歩8分(620m) その他 ドラッグストア その他 公園 その他 銀行 その他 * | ||
| 建物種別 | マンション | 建物構造 | RC(鉄筋コンクリート) |
この部屋の取扱い不動産会社
| 会社名 | ハウスコム西東京株式会社 大岡山店 | ||
|---|---|---|---|
| 所在地 | 東京都大田区51-6サンルミナス1階 | 交通 | - |
| 営業時間 | 10:00~18:00 | 定休日 | 水曜定休 |
| 免許番号 | 東京都知事(1)第108225号 | 取引態様 | 仲介 |
| 不動産会社管理番号 | HC5-4021309-509-0139 | 当社管理番号 | 468 |
| 所属団体 | 、 | ||
| 取扱い物件情報 | 物件詳細へ | ||
※各種情報と現状に差異がある場合は、現状優先となります。問い合わせをすることで、より詳しい条件、情報を確認する事ができます。
提供:ハウスコム西東京株式会社 大岡山店
この物件が気になったら掲載期限まであと4日
ORSUS戸越銀座に条件(家賃・エリア)が近い物件一覧
| 写真 | 家賃 管理費等 | 敷金 礼金 | 間取り 専有面積 | 築年数 | 最寄り駅 所在地 | キープ | 詳細 |
|---|---|---|---|---|---|---|---|
マンション ラティエラ大森(2K/5階) | |||||||
![]() | 18.5万円 1万円 | 18.5万円 18.5万円 | 2K 42.97m2 | 築9年 | 京急本線 平和島駅 徒歩8分 JR京浜東北線 大森駅(東京) 徒歩21分 東京モノレール 流通センター駅 徒歩29分 東京都大田区大森西 | 詳細を見る | |
タウンハウス 大田菜園長屋(2LDK) | |||||||
![]() | 15.9万円 5,000円 | 15.9万円 7.95万円 | 2LDK 52.17m2 | 築10年 | 京浜急行電鉄本線 雑色駅 徒歩8分 京浜急行電鉄本線 六郷土手駅 徒歩13分 東京都大田区東六郷3丁目 | 詳細を見る | |
マンション ラフィーネ大森(3LDK/3階) | |||||||
![]() | 32.9万円 2,000円 | 32.9万円 なし | 3LDK 116.22m2 | 築22年 | 京急本線 平和島駅 徒歩14分 京急本線 大森町駅 徒歩16分 JR京浜東北線 大森駅(東京) 徒歩16分 東京都大田区大森西 | 詳細を見る | |
マンション ルーブル南馬込伍番館(2DK/2階) | |||||||
![]() | 15.85万円 1.65万円 | なし 15.85万円 | 2DK 40.97m2 | 築12年 | JR京浜東北線 大森駅(東京) 徒歩12分 都営浅草線 馬込駅 徒歩15分 都営浅草線 西馬込駅 徒歩18分 東京都大田区南馬込 | 詳細を見る | |
マンション GRACIA PLACE OMORIMACHI(1LDK/11階) | |||||||
![]() | 18.6万円 2万円 | なし なし | 1LDK 42.43m2 | 築5年 | 京浜急行電鉄本線 大森町駅 徒歩1分 京浜急行電鉄空港線 京急蒲田駅 徒歩19分 京浜東北・根岸線 大森駅(東京) 徒歩24分 東京都大田区大森西3丁目 | 詳細を見る | |
マンション GRAN PASEO大森Ⅲ(2LDK/1階) | |||||||
![]() | 22万円 1.2万円 | なし なし | 2LDK 42.55m2 | 築2年 | 京浜急行電鉄本線 大森海岸駅 徒歩6分 東京都品川区南大井3丁目 | 詳細を見る | |
アパート 御殿山テラスⅡ(2LDK/1階) | |||||||
![]() | 23.2万円 3,000円 | 23.2万円 23.2万円 | 2LDK 57.6m2 | 築2年 | 山手線 大崎駅 徒歩8分 京浜急行電鉄本線 北品川駅 徒歩14分 東京都品川区北品川5丁目 | 詳細を見る | |
マンション AUGUSTA RESIDENCE大森(1SLDK/8階) | |||||||
![]() | 21.6万円 1万円 | なし なし | 1SLDK 40.88m2 | 築1年 | 京急本線 大森海岸駅 徒歩5分 JR京浜東北線 大森駅(東京) 徒歩11分 東京モノレール 大井競馬場前駅 徒歩21分 東京都品川区南大井 | 詳細を見る | |








