賃貸マンション
江ノ島シーサイドマンションの賃貸物件情報(ワンルーム/4階)
| 家賃 | 管理費等 | 敷金 | 礼金 | 間取り | 専有面積 |
|---|---|---|---|---|---|
| 7.9万円 | 1万円 | なし | なし | ワンルーム | 25.29m2 |
入居決定でお祝い金最大100,000円
- 保証金
- -
- 償却・敷引
- -
- 築年数
- 築56年
- 所在階
- 4階
- 向き
- 南西
Point
収納はシューズボックス・クロゼットなどが備え付けられているので、衣類や日用品の収納に重宝します。
提供:ハウスコム西神奈川株式会社 湘南台店

詳細情報 江ノ島シーサイドマンション
物件紹介
江ノ島シーサイドマンションは小田急電鉄江ノ島線片瀬江ノ島駅から徒歩6分にあり、駅近で通勤通学に便利なマンションです。
このお部屋は2階以上に位置しているので、通行人や周囲の住人からの視線が気になりにくく、防犯面でも安心。インターホンにはTVモニタもついているため、相手の顔を確認してから来客対応することができます。
フローリングのお部屋なのでお掃除もラクラク。バス・トイレ別の仕様で、のんびりお風呂タイムも楽しめます。また、浴室乾燥機を使えば、雨の日でもお洗濯は問題ありません。
通信設備面では、インターネット接続が可能です。また、CATVにも対応しているので、おうち時間も充実するでしょう(別途工事、契約料が必要な場合あり)。
建物にはエレベーターがついているので、重い荷物があっても安心。
コンビニまで徒歩26分の場所にあり、日用品や食料品のお買い物にも便利です。
このお部屋は2階以上に位置しているので、通行人や周囲の住人からの視線が気になりにくく、防犯面でも安心。インターホンにはTVモニタもついているため、相手の顔を確認してから来客対応することができます。
フローリングのお部屋なのでお掃除もラクラク。バス・トイレ別の仕様で、のんびりお風呂タイムも楽しめます。また、浴室乾燥機を使えば、雨の日でもお洗濯は問題ありません。
通信設備面では、インターネット接続が可能です。また、CATVにも対応しているので、おうち時間も充実するでしょう(別途工事、契約料が必要な場合あり)。
建物にはエレベーターがついているので、重い荷物があっても安心。
コンビニまで徒歩26分の場所にあり、日用品や食料品のお買い物にも便利です。
お金・契約の情報
※「-」と表示されているものは、実際は料金が発生するものもございます。詳細はお問い合わせください。
| 家賃 | 7.9万円 | 管理費・共益費 | 1万円 |
|---|---|---|---|
| 敷金 | なし | 礼金 | なし |
| 入居決定でお祝い金最大100,000円 | |||
| 保証金 | - | 償却・敷引 | - |
| 住宅保険料 | 1円 | 更新料 | - |
| 保証会社利用 | 必須 | 保証会社名 | - |
| 保証会社費用 | - | 保証会社備考 | 総賃料50%〜、月額1000円 |
| 契約形態 | - | 契約期間 | 2年 |
| 入居・引渡期間 | 即時 | 現況 | - |
| 入居可能条件 | 2人入居可 | ||
| 契約備考 | 24時間安心サポート1100円(月額) 鍵交換費用契約時 22000円 契約事務手数料11000円(内税) 水道:貸主より2ヶ月に1度請求 その他設備/条件:室内洗濯機置き場、独立洗面台、ルームシェア可、クローゼット、シューズボックス、照明器具付き、分譲賃貸 | ||
部屋の情報
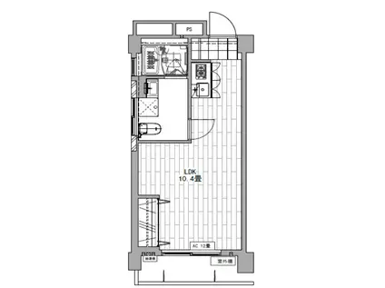
| 間取り | ワンルーム | 専有面積 | 25.29m2 |
|---|---|---|---|
| 間取り詳細 | 洋室(10.4帖) | ||
| 所在階 / 向き | 4階 / 南西 | バルコニー面積 | - |
| 水道 / ガス | 水道【公営】、ガス【都市】 | ||
| 設備 | バス・トイレ別、テレビドアホン、浴室乾燥機、インターネット対応、エアコン、エレベーター、温水洗浄便座、バルコニー、フローリング、2口コンロ、コンロ:ガス、CATV、給湯、タイル張り | ||
| 当社物件ID | 160537455 | ||
建物の情報
| 建物名 | 江ノ島シーサイドマンション | ||
|---|---|---|---|
| 所在地 | 神奈川県藤沢市片瀬海岸3丁目 | ||
| 交通 | 小田急電鉄江ノ島線 片瀬江ノ島駅 徒歩6分 江ノ島電鉄 湘南海岸公園駅 徒歩7分 | ||
| 階数 | 7階建 | 総戸数 | - |
| 築年月 | 1970年06月 / 築56年 | エレベーター | あり |
| 駐車場 | なし | バイク置き場 | あり |
| 駐輪場 | あり | 管理人/管理会社 | - |
| 周辺環境 | コンビニ 徒歩26分(2021m) 販売店 徒歩27分(2116m) その他 ドラッグストア その他 公園 その他 銀行 その他 * | ||
| 建物種別 | マンション | 建物構造 | RC(鉄筋コンクリート) |
この部屋の取扱い不動産会社
| 会社名 | ハウスコム西神奈川株式会社 藤沢店 | ||
|---|---|---|---|
| 所在地 | 神奈川県藤沢市1-3-2第一興産20号館1階 | 交通 | - |
| 営業時間 | 10:00~18:00 | 定休日 | 水曜定休 |
| 免許番号 | 神奈川県知事(1)第31770号 | 取引態様 | 仲介 |
| 不動産会社管理番号 | HC2-3320472-401-0007 | 当社管理番号 | 468 |
| 所属団体 | 、 | ||
| 取扱い物件情報 | 物件詳細へ | ||
※各種情報と現状に差異がある場合は、現状優先となります。問い合わせをすることで、より詳しい条件、情報を確認する事ができます。
提供:ハウスコム西神奈川株式会社 藤沢店
この物件が気になったら掲載期限まであと5日
江ノ島シーサイドマンションに条件(家賃・エリア)が近い物件一覧
| 写真 | 家賃 管理費等 | 敷金 礼金 | 間取り 専有面積 | 築年数 | 最寄り駅 所在地 | キープ | 詳細 |
|---|---|---|---|---|---|---|---|
マンション リブリ・サンヴィレッジ27(1K/2階) | |||||||
![]() | 8.7万円 4,000円 | なし 17.4万円 | 1K 26.08m2 | 築8年 | グリーンライン 高田駅(神奈川) 徒歩7分 グリーンライン 日吉本町駅 徒歩23分 グリーンライン 東山田駅 徒歩25分 神奈川県横浜市港北区高田西 | 詳細を見る | |
アパート ファミール綾瀬(3DK/2階) | |||||||
![]() | 6.4万円 6,000円 | なし 6.4万円 | 3DK 50m2 | 築35年 | 神奈川県綾瀬市深谷南4丁目 | 詳細を見る | |
マンション MAXIV横浜吉野町TRE(1K/6階) | |||||||
![]() | 7.95万円 1.5万円 | なし 7.95万円 | 1K 21.09m2 | 築1年 | ブルーライン 吉野町駅 徒歩4分 京急本線 黄金町駅 徒歩8分 JR京浜東北線 関内駅 徒歩21分 神奈川県横浜市南区吉野町 | 詳細を見る | |
アパート MODERN GLAD 保土ヶ谷(1K/2階) | |||||||
![]() | 6.5万円 4,000円 | 6.5万円 6.5万円 | 1K 20.28m2 | 築1年 | JR横須賀線 保土ケ谷駅 徒歩12分 京急本線 井土ケ谷駅 徒歩14分 相鉄本線 天王町駅 徒歩24分 神奈川県横浜市保土ケ谷区瀬戸ケ谷町 | 詳細を見る | |
アパート サニーヒル(2LDK/1階) | |||||||
![]() | 7万円 1,000円 | 7万円 7万円 | 2LDK 53.6m2 | 築38年 | 神奈川県横浜市保土ケ谷区法泉 | 詳細を見る | |
マンション クレイノ港北II(1K/2階) | |||||||
![]() | 10.4万円 5,500円 | なし 10.4万円 | 1K 25.07m2 | 築7年 | ブルーライン 新羽駅 徒歩6分 東急東横線 大倉山駅(神奈川) 徒歩28分 神奈川県横浜市港北区新羽町 | 詳細を見る | |
マンション SYNEX YOKOHAMA-SHINMMACHI(1K/4階) | |||||||
![]() | 8.5万円 1万円 | なし なし | 1K 21m2 | 築1年 | 京急本線 神奈川新町駅 徒歩2分 京急本線 京急東神奈川駅 徒歩8分 JR京浜東北線 東神奈川駅 徒歩9分 神奈川県横浜市神奈川区新町 | 詳細を見る | |
マンション ハーモニーレジデンス新横浜(1K/3階) | |||||||
![]() | 8.6万円 1.2万円 | 8.6万円 8.6万円 | 1K 19.02m2 | 築6年 | JR横浜線 新横浜駅 徒歩8分 JR横浜線 小机駅 徒歩20分 ブルーライン 岸根公園駅 徒歩21分 神奈川県横浜市港北区新横浜 | 詳細を見る | |









