賃貸マンション
MAXIV八王子TREの賃貸物件情報(1K/4階)
| 家賃 | 管理費等 | 敷金 | 礼金 | 間取り | 専有面積 |
|---|---|---|---|---|---|
| 8.25万円 | 1万円 | なし | なし | 1K | 25.6m2 |
入居決定でお祝い金最大100,000円
- 保証金
- -
- 償却・敷引
- -
- 築年数
- 築1年
- 所在階
- 4階
- 向き
- 西
Point
★地域の不動産会社との情報共有により、インターネット掲載物件のほぼ全てがご紹介可能です♪学区・スーパーなどの周辺情報もお気軽にお問い合わせ下さい★お問い合わせは地域密着タウンハウジングまで★
提供:(株)LUXラックス八王子店(SUUMO経由)

詳細情報 MAXIV八王子TRE
物件紹介
MAXIV八王子TREは京王線京王八王子駅から徒歩2分にあり、駅近で通勤通学に便利なマンションです。
このお部屋は2階以上に位置しているので、通行人や周囲の住人からの視線が気になりにくく、防犯面でも安心。建物のエントランスはオートロックがついており、インターホンにはTVモニタもついているため、相手の顔を確認してから来客対応することができます。
フローリングのお部屋なのでお掃除もラクラク。キッチンはシステムキッチン仕様になっていますので、お料理好きの方にもぴったり。バス・トイレは別なので、のんびりお風呂タイムも楽しめるでしょう。また、雨の日でも浴室乾燥機を使えば、お洗濯も問題ありません。
通信設備面では、インターネットが無料で使えるので、月々の出費を抑えられるのも魅力です。また、BSアンテナ・CSアンテナもありますので、おうち時間も充実するでしょう(別途工事、BS・CSの契約料等が必要な場合あり)。
建物にはエレベーターがついているので、重い荷物があっても安心。共用部には宅配ボックスが設定されているので、不在の時にも荷物を受け取ることができます。また、ペット飼育の相談ができますので、あなたの大切な家族の一員も快適に暮らせるか、ぜひ確認してみてください。
このお部屋は2階以上に位置しているので、通行人や周囲の住人からの視線が気になりにくく、防犯面でも安心。建物のエントランスはオートロックがついており、インターホンにはTVモニタもついているため、相手の顔を確認してから来客対応することができます。
フローリングのお部屋なのでお掃除もラクラク。キッチンはシステムキッチン仕様になっていますので、お料理好きの方にもぴったり。バス・トイレは別なので、のんびりお風呂タイムも楽しめるでしょう。また、雨の日でも浴室乾燥機を使えば、お洗濯も問題ありません。
通信設備面では、インターネットが無料で使えるので、月々の出費を抑えられるのも魅力です。また、BSアンテナ・CSアンテナもありますので、おうち時間も充実するでしょう(別途工事、BS・CSの契約料等が必要な場合あり)。
建物にはエレベーターがついているので、重い荷物があっても安心。共用部には宅配ボックスが設定されているので、不在の時にも荷物を受け取ることができます。また、ペット飼育の相談ができますので、あなたの大切な家族の一員も快適に暮らせるか、ぜひ確認してみてください。
お金・契約の情報
※「-」と表示されているものは、実際は料金が発生するものもございます。詳細はお問い合わせください。
| 家賃 | 8.25万円 | 管理費・共益費 | 1万円 |
|---|---|---|---|
| 敷金 | なし | 礼金 | なし |
| 入居決定でお祝い金最大100,000円 | |||
| 保証金 | - | 償却・敷引 | - |
| 住宅保険料 | - | 更新料 | - |
| 保証会社利用 | 必須 | 保証会社名 | - |
| 保証会社費用 | - | 保証会社備考 | 保証会社利用必 初回保証料40% 他保証会社有 |
| 契約形態 | - | 契約期間 | - |
| 入居・引渡期間 | 即時 | 現況 | - |
| 契約備考 | JR横浜線八王子駅徒歩11分/巡回管理/★WEBでのリモート対応も始めました!遠方の方やゆっくりお時間のとれない方は是非ご利用ください★お部屋探しはタウンハウジングまでお任せ下さい♪★契約金の一部がクレジットカード決済可能です。インターネット掲載物件のほぼ全てがご紹介可能です♪お家賃交渉や礼金交渉、初期費用のご相談などお気軽にお申し付け下さい!他社さんの物件もご紹介・ご案内可能です!★ 合計0.06万円(内訳:書類作成費契約時:550円) 更新料新賃料(ヶ月):1.00ヶ月 1K 単身者限定 普通借家2年 損保【1.5万円2年】 バストイレ別、バルコニー、エアコン、ガスコンロ対応、フローリング、TVインターホン、浴室乾燥機、オートロック、室内洗濯置、陽当り良好、シューズボックス、システムキッチン、温水洗浄便座、2口コンロ、宅配ボックス、即入居可、礼金不要、BS・CS、敷金不要、防犯カメラ、照明付、分譲賃貸、保証人不要、ネット専用回線、ネット使用料不要、保証金不要、築2年以内、24時間換気システム、駅徒歩5分以内、都市ガス、敷金・礼金不要、初期費用カード決済可 | ||
部屋の情報
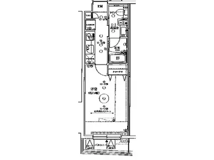
| 間取り | 1K | 専有面積 | 25.6m2 |
|---|---|---|---|
| 所在階 / 向き | 4階 / 西 | バルコニー面積 | - |
| 水道 / ガス | - | ||
| 設備 | バス・トイレ別、2階以上、オートロック、テレビドアホン、宅配ボックス、浴室乾燥機、インターネット対応、システムキッチン、エアコン、温水洗浄便座、バルコニー、フローリング、2口コンロ、コンロ:ガス、CSアンテナ、BSアンテナ、インターネット使用料無料、洗濯機:室内 | ||
| 当社物件ID | 159522123 | ||
建物の情報
| 建物名 | MAXIV八王子TRE | ||
|---|---|---|---|
| 所在地 | 東京都八王子市明神町 | ||
| 交通 | 京王線 京王八王子駅 徒歩2分 JR中央線 八王子駅 徒歩9分 京王高尾線 京王片倉駅 徒歩26分 | ||
| 階数 | 13階建 | 総戸数 | 82戸 |
| 築年月 | 2025年09月 / 築1年 | エレベーター | - |
| 駐車場 | なし | バイク置き場 | - |
| 駐輪場 | - | 管理人/管理会社 | - |
| 周辺環境 | その他 ドン・キホーテ八王子駅前店(ショッピングセンター)まで660m その他 CELEO八王子南館(ショッピングセンター)まで860m その他 イオンフードスタイル八王子店(スーパー)まで330m その他 グルメシティ京王八王子店(スーパー)まで410m その他 ローソン八王子元横山町一丁目店(コンビニ)まで440m その他 ドラッグセイムス八王子大和田店(ドラッグストア)まで1050m | ||
| 建物種別 | マンション | 建物構造 | RC(鉄筋コンクリート) |
この部屋の取扱い不動産会社
| 会社名 | (株)タウンハウジング東京 高幡不動店(SUUMO経由) | ||
|---|---|---|---|
| 所在地 | 東京都日野市高幡 3-17 | 交通 | - |
| 営業時間 | AM10:00~PM7:00 | 定休日 | 水曜日 |
| 免許番号 | 国土交通大臣9926 | 取引態様 | 仲介 |
| 不動産会社管理番号 | 100470783151 | 当社管理番号 | 89 |
| 所属団体 | (公社)東京都宅地建物取引業協会会員 | ||
| 公正取引協議会 | (公社)首都圏不動産公正取引協議会加盟 | ||
| 取扱い物件情報 | 物件詳細へ | ||
※各種情報と現状に差異がある場合は、現状優先となります。問い合わせをすることで、より詳しい条件、情報を確認する事ができます。
提供:(株)タウンハウジング東京 高幡不動店(SUUMO経由)
この物件が気になったら掲載期限まであと10日
MAXIV八王子TREの空き部屋一覧
全部で62の空き部屋があります。
MAXIV八王子TREに条件(家賃・エリア)が近い物件一覧
| 写真 | 家賃 管理費等 | 敷金 礼金 | 間取り 専有面積 | 築年数 | 最寄り駅 所在地 | キープ | 詳細 |
|---|---|---|---|---|---|---|---|
マンション N-STAGE八王子(1K/14階) | |||||||
![]() | 8.5万円 1.3万円 | なし なし | 1K 27.4m2 | 築9年 | JR八高線 八王子駅 徒歩9分 京王線 京王八王子駅 徒歩14分 京王高尾線 京王片倉駅 徒歩22分 東京都八王子市寺町 | 詳細を見る | |
アパート MQUARTO福生(1K/3階) | |||||||
![]() | 6.4万円 5,000円 | なし なし | 1K 22.07m2 | 築1年 | 八高線 東福生駅 徒歩14分 青梅線 福生駅 徒歩15分 青梅線 羽村駅 徒歩25分 東京都福生市武蔵野台2丁目 | 詳細を見る | |
アパート メゾン・シェノン(1LDK/2階) | |||||||
![]() | 10.5万円 5,000円 | なし 10.5万円 | 1LDK 38.26m2 | 新築 | 多摩モノレール 高幡不動駅 徒歩11分 京王電鉄京王線 百草園駅 徒歩13分 多摩モノレール 程久保駅 徒歩15分 東京都日野市三沢1丁目 | 詳細を見る | |
アパート プリートアロッジオ ドゥエ(1LDK/2階) | |||||||
![]() | 6.9万円 3,500円 | なし 6.9万円 | 1LDK 41.36m2 | 築9年 | 八高線 小宮駅 徒歩6分 八高線 北八王子駅 徒歩22分 中央本線 日野駅(東京) 徒歩38分 東京都八王子市石川町 | 詳細を見る | |
アパート メゾンドール(1K/2階) | |||||||
![]() | 5.3万円 2,000円 | なし なし | 1K 21m2 | 築32年 | 中央本線 日野駅(東京) 徒歩8分 多摩モノレール 甲州街道駅 徒歩26分 八高線 小宮駅 徒歩34分 東京都日野市新町3丁目 | 詳細を見る | |
アパート FOREST PARK HILLS(1K/1階) | |||||||
![]() | 7.2万円 5,000円 | なし 7.2万円 | 1K 21.94m2 | 新築 | 青梅線 拝島駅 徒歩16分 西武鉄道拝島線 拝島駅 徒歩16分 青梅線 昭島駅 徒歩26分 東京都昭島市緑町4丁目 | 詳細を見る | |
アパート ヴィラ栗本A(3K/2階) | |||||||
![]() | 7.2万円 5,000円 | なし 15万円 | 3K 53.79m2 | 築33年 | 京王電鉄相模原線 南大沢駅 徒歩18分 京王電鉄相模原線 京王堀之内駅 徒歩33分 東京都八王子市下柚木2丁目 | 詳細を見る | |







