賃貸マンション
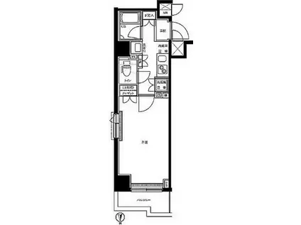
ルーブル両国弐番館の賃貸物件情報(1K/8階)
| 家賃 | 管理費等 | 敷金 | 礼金 | 間取り | 専有面積 |
|---|---|---|---|---|---|
| 13万円 | なし | なし | 13万円 | 1K | 26.04m2 |
入居決定でお祝い金最大100,000円
- 保証金
- -
- 償却・敷引
- -
- 築年数
- 築11年
- 所在階
- 8階
- 向き
- -
Point
まずはお問い合わせ!
不動産会社は街のプロ、あなたに合った物件がきっと見つかります。
提供:いい部屋ネット神田西口店(株)GENEROUS(SUUMO経由)

詳細情報 ルーブル両国弐番館
物件紹介
ルーブル両国弐番館は都営大江戸線両国駅から徒歩7分にあり、駅近で通勤通学に便利なマンションです。
このお部屋は2階以上に位置しているので、通行人や周囲の住人からの視線が気になりにくく、防犯面でも安心。建物のエントランスはオートロックがついており、インターホンにはTVモニタもついているため、相手の顔を確認してから来客対応することができます。
人気の角部屋で周囲の居住者の生活音も気になりにくく、また、フローリングのお部屋なのでお掃除もラクラク。キッチンはシステムキッチン仕様になっていますので、お料理好きの方にもぴったり。また、バス・トイレは別で、のんびりお風呂タイムも楽しめるでしょう。
建物にはエレベーターがついているので、重い荷物があっても安心。共用部には宅配ボックスが設定されているので、不在の時にも荷物を受け取ることができます。
このお部屋は2階以上に位置しているので、通行人や周囲の住人からの視線が気になりにくく、防犯面でも安心。建物のエントランスはオートロックがついており、インターホンにはTVモニタもついているため、相手の顔を確認してから来客対応することができます。
人気の角部屋で周囲の居住者の生活音も気になりにくく、また、フローリングのお部屋なのでお掃除もラクラク。キッチンはシステムキッチン仕様になっていますので、お料理好きの方にもぴったり。また、バス・トイレは別で、のんびりお風呂タイムも楽しめるでしょう。
建物にはエレベーターがついているので、重い荷物があっても安心。共用部には宅配ボックスが設定されているので、不在の時にも荷物を受け取ることができます。
お金・契約の情報
※「-」と表示されているものは、実際は料金が発生するものもございます。詳細はお問い合わせください。
| 家賃 | 13万円 | 管理費・共益費 | なし |
|---|---|---|---|
| 敷金 | なし | 礼金 | 13万円 |
| 入居決定でお祝い金最大100,000円 | |||
| 保証金 | - | 償却・敷引 | - |
| 住宅保険料 | - | 更新料 | - |
| 保証会社利用 | 必須 | 保証会社名 | - |
| 保証会社費用 | - | 保証会社備考 | 保証会社利用必 加入要 日本セーフティ 初回50%、月額800円 |
| 契約形態 | - | 契約期間 | - |
| 入居・引渡期間 | - | 現況 | - |
| 契約備考 | 合計5.38万円(内訳:安心入居サポート:19700円、防災セット:12100円、室内消臭消毒代:22000円) 保証料:800円(月額)、更新料:1ヶ月 1K 損保【2万円2年】 バストイレ別、ガスコンロ対応、オートロック、室内洗濯置、角住戸、温水洗浄便座、エレベーター、洗面所独立、2口コンロ、宅配ボックス、敷金不要、分譲賃貸、2沿線利用可、24時間換気システム、3駅以上利用可、24時間ゴミ出し可、都市ガス、礼金1ヶ月、IT重説対応物件 入居日:'26年3月中旬 | ||
部屋の情報
| 間取り | 1K | 専有面積 | 26.04m2 |
|---|---|---|---|
| 所在階 / 向き | 8階 / - | バルコニー面積 | - |
| 水道 / ガス | - | ||
| 設備 | バス・トイレ別、2階以上、オートロック、宅配ボックス、エレベーター、温水洗浄便座、角部屋、洗髪洗面化粧台、2口コンロ、コンロ:ガス、洗濯機:室内 | ||
| 当社物件ID | 19579358 | ||
建物の情報
| 建物名 | ルーブル両国弐番館 | ||
|---|---|---|---|
| 所在地 | 東京都墨田区緑 | ||
| 交通 | 都営大江戸線 両国駅 徒歩7分 都営大江戸線 森下駅(東京) 徒歩10分 都営新宿線 菊川駅(東京) 徒歩13分 | ||
| 階数 | 10階建 | 総戸数 | - |
| 築年月 | 2016年01月 / 築11年 | エレベーター | あり |
| 駐車場 | なし | バイク置き場 | - |
| 駐輪場 | - | 管理人/管理会社 | - |
| 建物種別 | マンション | 建物構造 | RC(鉄筋コンクリート) |
この部屋の取扱い不動産会社
| 会社名 | いい部屋ネット神田西口店(株)GENEROUS(SUUMO経由) | ||
|---|---|---|---|
| 所在地 | 東京都千代田区内神田2-9ー13 神田オールビル4階 | 交通 | - |
| 営業時間 | 9:00~21:00 | 定休日 | - |
| 免許番号 | 東京都知事108751 | 取引態様 | 仲介 |
| 不動産会社管理番号 | 100491363913 | 当社管理番号 | 89 |
| 所属団体 | (公社)東京都宅地建物取引業協会会員 | ||
| 公正取引協議会 | (公社)首都圏不動産公正取引協議会加盟 | ||
| 取扱い物件情報 | 物件詳細へ | ||
※各種情報と現状に差異がある場合は、現状優先となります。問い合わせをすることで、より詳しい条件、情報を確認する事ができます。
提供:いい部屋ネット神田西口店(株)GENEROUS(SUUMO経由)
この物件が気になったら掲載期限まであと11日
ルーブル両国弐番館に条件(家賃・エリア)が近い物件一覧
| 写真 | 家賃 管理費等 | 敷金 礼金 | 間取り 専有面積 | 築年数 | 最寄り駅 所在地 | キープ | 詳細 |
|---|---|---|---|---|---|---|---|
マンション ドエルイン月島(1K/7階) | |||||||
![]() | 12.1万円 7,000円 | 12.1万円 24.2万円 | 1K 21.6m2 | 築24年 | 都営大江戸線 月島駅 徒歩3分 東京メトロ有楽町線 月島駅 徒歩5分 都営大江戸線 勝どき駅 徒歩5分 東京都中央区月島 | 詳細を見る | |
マンション メゾン大沢(1DK/5階) | |||||||
![]() | 8.5万円 なし | 8.5万円 8.5万円 | 1DK 28m2 | 築47年 | 東京地下鉄東西線 門前仲町駅 徒歩11分 東京地下鉄東西線 木場駅 徒歩11分 東京地下鉄半蔵門線 清澄白河駅 徒歩14分 東京都江東区冬木 | 詳細を見る | |
マンション RIDGE豊洲(1LDK/3階) | |||||||
![]() | 18.6万円 1.5万円 | なし なし | 1LDK 39.99m2 | 築6年 | 東京メトロ有楽町線 豊洲駅 徒歩11分 りんかい線 東雲駅(東京) 徒歩14分 新交通ゆりかもめ 新豊洲駅 徒歩23分 東京都江東区東雲 | 詳細を見る | |
マンション クレヴィスタ亀戸IV(1K/10階) | |||||||
![]() | 13.5万円 1.1万円 | なし 13.5万円 | 1K 25.56m2 | 築6年 | 総武・中央緩行線 亀戸駅 徒歩4分 東武鉄道亀戸線 亀戸駅 徒歩4分 総武本線 錦糸町駅 徒歩12分 東京都江東区亀戸2丁目 | 詳細を見る | |
マンション ルフォンプログレ門前仲町マークス(1DK/2階) | |||||||
![]() | 14.9万円 1.5万円 | 14.9万円 なし | 1DK 27.25m2 | 築5年 | 東京メトロ東西線 門前仲町駅 徒歩6分 東京メトロ半蔵門線 清澄白河駅 徒歩12分 JR京葉線 越中島駅 徒歩16分 東京都江東区深川 | 詳細を見る | |
マンション ARCOBALENO OSHIAGE BLOSSOM(1LDK/2階) | |||||||
![]() | 17.3万円 2万円 | なし なし | 1LDK 40.76m2 | 築1年 | 東京メトロ半蔵門線 押上駅 徒歩11分 東武亀戸線 小村井駅 徒歩12分 東武伊勢崎線 曳舟駅 徒歩14分 東京都墨田区文花 | 詳細を見る | |
マンション ドルチェ月島・弐番館(1K/10階) | |||||||
![]() | 12.8万円 1.1万円 | なし 12.8万円 | 1K 22.7m2 | 築23年 | 都営大江戸線 勝どき駅 徒歩4分 東京メトロ有楽町線 月島駅 徒歩6分 東京メトロ日比谷線 築地駅 徒歩20分 東京都中央区月島 | 詳細を見る | |
マンション コンフォリア・リヴ豊洲キャナル(2LDK/3階) | |||||||
![]() | 20.8万円 1.2万円 | 20.8万円 なし | 2LDK 46.4m2 | 築1年 | 東京メトロ有楽町線 豊洲駅 徒歩14分 JR京葉線 潮見駅 徒歩22分 東京メトロ有楽町線 辰巳駅 徒歩32分 東京都江東区枝川 | 詳細を見る | |









