賃貸マンション
ビレッジハウス曽大根2号棟の賃貸物件情報(2K/1階)
| 家賃 | 管理費等 | 敷金 | 礼金 | 間取り | 専有面積 |
|---|---|---|---|---|---|
| 4.01万円 | なし | なし | なし | 2K | 33.09m2 |
入居決定でお祝い金最大100,000円
- 保証金
- -
- 償却・敷引
- -
- 築年数
- 築55年
- 所在階
- 1階
- 向き
- 南
Point
まずはお問い合わせ!
不動産会社は街のプロ、あなたに合った物件がきっと見つかります。
提供:ビレッジハウス・マネジメント株式会社 住まい相談センター

詳細情報 ビレッジハウス曽大根2号棟
物件紹介
ビレッジハウス曽大根2号棟は近鉄南大阪線高田市駅から徒歩14分にあるマンションです。
建物のエントランスはオートロックがついており、インターホンにはTVモニタもついているため、相手の顔を確認してから来客対応することができます。
人気の南向きのお部屋。バス・トイレ別の仕様で、のんびりお風呂タイムも楽しめます。
ペット飼育の相談ができますので、あなたの大切な家族の一員も快適に暮らせるか、ぜひ確認してみてください。
建物のエントランスはオートロックがついており、インターホンにはTVモニタもついているため、相手の顔を確認してから来客対応することができます。
人気の南向きのお部屋。バス・トイレ別の仕様で、のんびりお風呂タイムも楽しめます。
ペット飼育の相談ができますので、あなたの大切な家族の一員も快適に暮らせるか、ぜひ確認してみてください。
お金・契約の情報
※「-」と表示されているものは、実際は料金が発生するものもございます。詳細はお問い合わせください。
| 家賃 | 4.01万円 | 管理費・共益費 | なし |
|---|---|---|---|
| 敷金 | なし | 礼金 | なし |
| フリーレント | 0ヶ月 | ||
| 入居決定でお祝い金最大100,000円 | |||
| 保証金 | - | 償却・敷引 | - |
| 住宅保険料 | 1万円(2年) | 更新料 | - |
| 保証会社利用 | - | 保証会社名 | - |
| 保証会社費用 | - | 保証会社備考 | - |
| 契約形態 | - | 契約期間 | - |
| 入居・引渡期間 | - | 現況 | 空室 |
| 入居可能条件 | 2人入居可、高齢者相談、学生可、ペット相談 | ||
| 契約備考 | 契約種類:普通契約、24時間緊急対応、ウォシュレット、ウォームレット、洗面台 | ||
部屋の情報
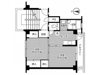
| 間取り | 2K | 専有面積 | 33.09m2 |
|---|---|---|---|
| 所在階 / 向き | 1階 / 南 | バルコニー面積 | - |
| 水道 / ガス | - | ||
| 設備 | バス・トイレ別、オートロック、テレビドアホン、エアコン、バルコニー、給湯、洗濯機:室外 | ||
| 当社物件ID | 32289135 | ||
建物の情報
| 建物名 | ビレッジハウス曽大根2号棟 | ||
|---|---|---|---|
| 所在地 | 奈良県大和高田市甘田町6-2 | ||
| 交通 | 近鉄南大阪線 浮孔駅 徒歩16分 近鉄南大阪線 高田市駅 徒歩20分 和歌山線 大和新庄駅 徒歩24分 | ||
| 階数 | 4階建 | 総戸数 | - |
| 築年月 | 1971年06月 / 築55年 | エレベーター | - |
| 駐車場 | 空有 4,400円/月 円 | バイク置き場 | - |
| 駐輪場 | - | 管理人/管理会社 | 日勤 |
| 建物種別 | マンション | 建物構造 | RC(鉄筋コンクリート) |
この部屋の取扱い不動産会社
| 会社名 | ビレッジハウス・マネジメント株式会社 住まい相談センター | ||
|---|---|---|---|
| 所在地 | 東京都港区六本木6-10-1 六本木ヒルズ森タワー44階 | 交通 | 東京メトロ日比谷線「六本木駅」 直結 |
| 営業時間 | 平日:9:00-18:30/土日祝:9:00-18:00 | 定休日 | 年中無休(年末年始を除く) |
| 免許番号 | 東京都知事(2)第100758号 | 取引態様 | 貸主 |
| 不動産会社管理番号 | 00008516912 | 当社管理番号 | 459 |
| 所属団体 | 公益社団法人東京都宅地建物取引業協会会員 日本賃貸住宅管理協会会員 | ||
| 取扱い物件情報 | 物件詳細へ | ||
※各種情報と現状に差異がある場合は、現状優先となります。問い合わせをすることで、より詳しい条件、情報を確認する事ができます。
提供:ビレッジハウス・マネジメント株式会社 住まい相談センター
この物件が気になったら掲載期限まであと13日
ビレッジハウス曽大根2号棟に条件(家賃・エリア)が近い物件一覧
| 写真 | 家賃 管理費等 | 敷金 礼金 | 間取り 専有面積 | 築年数 | 最寄り駅 所在地 | キープ | 詳細 |
|---|---|---|---|---|---|---|---|
アパート レオネクストノーム(ワンルーム/1階) | |||||||
![]() | 4.8万円 4,500円 | なし なし | ワンルーム 26.5m2 | 築12年 | 近鉄大阪線 五位堂駅 徒歩4分 和歌山線 JR五位堂駅 徒歩14分 近鉄大阪線 近鉄下田駅 徒歩22分 奈良県香芝市瓦口 | 詳細を見る | |
一戸建て 和歌山線 香芝駅 徒歩7分 築67年(7DK) | |||||||
![]() | 4.3万円 なし | なし 4.3万円 | 7DK 71m2 | 築67年 | 和歌山線 香芝駅 徒歩7分 近鉄大阪線 近鉄下田駅 徒歩10分 近鉄大阪線 五位堂駅 徒歩21分 奈良県香芝市下田東 | 詳細を見る | |
アパート パインヒルズ(2LDK/2階) | |||||||
![]() | 5.8万円 3,300円 | 5.8万円 なし | 2LDK 57.85m2 | 築19年 | 近鉄南大阪線 当麻寺駅 徒歩15分 近鉄南大阪線 磐城駅 徒歩16分 近鉄南大阪線 尺土駅 徒歩23分 奈良県葛城市竹内 | 詳細を見る | |
アパート 橿原神宮第2マンション(1K/1階) | |||||||
![]() | 2.6万円 なし | なし なし | 1K 16.67m2 | 築36年 | 近鉄南大阪線 坊城駅 徒歩14分 近鉄南大阪線 橿原神宮西口駅 徒歩20分 近鉄南大阪線 橿原神宮前駅 徒歩35分 奈良県橿原市光陽町 | 詳細を見る | |
アパート レオネクストエムティ逢坂(1K/2階) | |||||||
![]() | 5.3万円 6,500円 | なし なし | 1K 29.81m2 | 築16年 | 近鉄大阪線 二上駅 徒歩9分 和歌山線 香芝駅 徒歩18分 近鉄大阪線 近鉄下田駅 徒歩18分 奈良県香芝市逢坂3- | 詳細を見る | |
アパート エトワールエイワ(2DK/2階) | |||||||
![]() | 4.6万円 4,000円 | 2万円 8万円 | 2DK 42m2 | 築33年 | 近鉄橿原線 畝傍御陵前駅 徒歩8分 近鉄南大阪線 橿原神宮前駅 徒歩11分 JR桜井線 畝傍駅 徒歩31分 奈良県橿原市栄和町 | 詳細を見る | |
マンション ロイヤルハイツ橿原(1LDK/2階) | |||||||
![]() | 5万円 5,000円 | なし 5万円 | 1LDK 35.1m2 | 築35年 | 近鉄橿原線 畝傍御陵前駅 徒歩16分 桜井線 畝傍駅 徒歩17分 近鉄橿原線 大和八木駅 徒歩24分 奈良県橿原市縄手町 | 詳細を見る | |
アパート レオパレスボムール栄延(1K/1階) | |||||||
![]() | 5.2万円 6,500円 | なし 5.2万円 | 1K 23.18m2 | 築18年 | 近鉄橿原線 新ノ口駅 徒歩16分 近鉄大阪線 大和八木駅 徒歩16分 JR桜井線 畝傍駅 徒歩21分 奈良県橿原市葛本町 | 詳細を見る | |









