賃貸マンション
グレイス綾瀬の賃貸物件情報(1LDK/7階)
| 家賃 | 管理費等 | 敷金 | 礼金 | 間取り | 専有面積 |
|---|---|---|---|---|---|
| 14.8万円 | 1.5万円 | なし | なし | 1LDK | 43.6m2 |
入居決定でお祝い金最大100,000円
Point
まずはお問い合わせ!
不動産会社は街のプロ、あなたに合った物件がきっと見つかります。
提供:アパマンショップ亀戸店

詳細情報 グレイス綾瀬
物件紹介
グレイス綾瀬は千代田・常磐緩行線綾瀬駅から徒歩3分にあり、駅近で通勤通学に便利なマンションです。
このお部屋は2階以上に位置しているので、通行人や周囲の住人からの視線が気になりにくく、防犯面でも安心。建物のエントランスはオートロックがついており、インターホンにはTVモニタもついているため、相手の顔を確認してから来客対応することができます。
人気の角部屋で周囲の居住者の生活音も気になりにくく、また、フローリングのお部屋なのでお掃除もラクラク。キッチンはシステムキッチン仕様になっていますので、お料理好きの方にもぴったり。バス・トイレは別なので、のんびりお風呂タイムも楽しめるでしょう。また、雨の日でも浴室乾燥機を使えば、お洗濯も問題ありません。
通信設備面では、インターネットが無料で使えるので、月々の出費を抑えられるのも魅力です。また、BSアンテナ・CSアンテナもありますので、おうち時間も充実するでしょう(別途工事、BS・CSの契約料等が必要な場合あり)。
建物にはエレベーターがついているので、重い荷物があっても安心。共用部には宅配ボックスが設定されているので、不在の時にも荷物を受け取ることができます。
このお部屋は2階以上に位置しているので、通行人や周囲の住人からの視線が気になりにくく、防犯面でも安心。建物のエントランスはオートロックがついており、インターホンにはTVモニタもついているため、相手の顔を確認してから来客対応することができます。
人気の角部屋で周囲の居住者の生活音も気になりにくく、また、フローリングのお部屋なのでお掃除もラクラク。キッチンはシステムキッチン仕様になっていますので、お料理好きの方にもぴったり。バス・トイレは別なので、のんびりお風呂タイムも楽しめるでしょう。また、雨の日でも浴室乾燥機を使えば、お洗濯も問題ありません。
通信設備面では、インターネットが無料で使えるので、月々の出費を抑えられるのも魅力です。また、BSアンテナ・CSアンテナもありますので、おうち時間も充実するでしょう(別途工事、BS・CSの契約料等が必要な場合あり)。
建物にはエレベーターがついているので、重い荷物があっても安心。共用部には宅配ボックスが設定されているので、不在の時にも荷物を受け取ることができます。
お金・契約の情報
※「-」と表示されているものは、実際は料金が発生するものもございます。詳細はお問い合わせください。
| 家賃 | 14.8万円 | 管理費・共益費 | 1.5万円 |
|---|---|---|---|
| 敷金 | なし | 礼金 | なし |
| 入居決定でお祝い金最大100,000円 | |||
| 保証金 | 29.6万円 | 償却・敷引 | 29.6万円 |
| 住宅保険料 | 1.5万円(2年) | 更新料 | - |
| 保証会社利用 | 必須 | 保証会社名 | エムぞう君 |
| 保証会社費用 | - | 保証会社備考 | 初回:月額総賃料の50%(最低金額55000円)、更新料:11000円/年 |
| 契約形態 | - | 契約期間 | 1年 |
| 入居・引渡期間 | 2026年03月上旬 | 現況 | - |
| 入居可能条件 | 2人入居可 | ||
| 契約備考 | 鍵交換代 19800円/リテインシステム料 11000円/室内抗菌処理代 16500円/事務手数料 16500円 | ||
部屋の情報
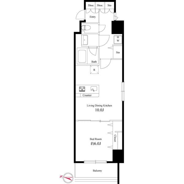
| 間取り | 1LDK | 専有面積 | 43.6m2 |
|---|---|---|---|
| 間取り詳細 | 洋室(6帖)、LDK(10帖) | ||
| 所在階 / 向き | 7階 / 西 | バルコニー面積 | - |
| 水道 / ガス | - | ||
| 設備 | バス・トイレ別、オートロック、テレビドアホン、浴室乾燥機、追い焚き、光ファイバー対応、システムキッチン、エレベーター、温水洗浄便座、角部屋、バルコニー、フローリング、コンロ:ガス、CSアンテナ、BSアンテナ、インターネット使用料無料、シャワー、給湯、洗濯機:室内、タイル張り | ||
| 当社物件ID | 18335566 | ||
建物の情報
| 建物名 | グレイス綾瀬 | ||
|---|---|---|---|
| 所在地 | 東京都足立区綾瀬3丁目 | ||
| 交通 | 千代田・常磐緩行線 綾瀬駅 徒歩3分 | ||
| 階数 | 8階建 | 総戸数 | 28戸 |
| 築年月 | 2015年08月 / 築11年 | エレベーター | あり |
| 駐車場 | - | バイク置き場 | - |
| 駐輪場 | あり | 管理人/管理会社 | - |
| 周辺環境 | その他 スーパーベルクス足立綾瀬店 徒歩3分(237m) その他 ヨーカドー 徒歩6分(418m) その他 綾瀬駅 徒歩6分(443m) その他 (株)東急ストア/綾瀬店 徒歩6分(448m) その他 東急ストア 徒歩6分(451m) その他 (株)みずほ銀行/綾瀬支店 徒歩7分(484m) その他 ビッグ・エー綾瀬店 徒歩9分(718m) その他 アコレ綾瀬駅東店 徒歩11分(831m) | ||
| 建物種別 | マンション | 建物構造 | RC(鉄筋コンクリート) |
この部屋の取扱い不動産会社
| 会社名 | アパマンショップ十条店 | ||
|---|---|---|---|
| 所在地 | 東京都北区上十条2丁目 30-1ミヤワキビル2F | 交通 | 埼京線十条から徒歩1分 |
| 営業時間 | 10:00〜19:00 | 定休日 | 水曜日 |
| 免許番号 | 国土交通大臣(5)6971 | 取引態様 | 仲介 |
| 不動産会社管理番号 | 94570326 | 当社管理番号 | 4 |
| 所属団体 | (公社)東京都宅地建物取引業協会 | ||
| 公正取引協議会 | (公社) 首都圏不動産公正取引協議会加盟 | ||
| 取扱い物件情報 | 物件詳細へ | ||
※各種情報と現状に差異がある場合は、現状優先となります。問い合わせをすることで、より詳しい条件、情報を確認する事ができます。
提供:アパマンショップ十条店
この物件が気になったら掲載期限まであと12日
グレイス綾瀬に条件(家賃・エリア)が近い物件一覧
| 写真 | 家賃 管理費等 | 敷金 礼金 | 間取り 専有面積 | 築年数 | 最寄り駅 所在地 | キープ | 詳細 |
|---|---|---|---|---|---|---|---|
マンション メゾンSKM(1K/3階) | |||||||
![]() | 9.5万円 8,000円 | 9.5万円 9.5万円 | 1K 24.48m2 | 築21年 | JR常磐線 三河島駅 徒歩5分 JR山手線 西日暮里駅 徒歩9分 JR京浜東北線 日暮里駅 徒歩9分 東京都荒川区西日暮里 | 詳細を見る | |
マンション メイクス東向島Ⅱ(1LDK/2階) | |||||||
![]() | 14.3万円 1.2万円 | 14.3万円 14.3万円 | 1LDK 41.08m2 | 築4年 | 東武伊勢崎・大師線 東向島駅 徒歩5分 東京都墨田区東向島5丁目 | 詳細を見る | |
マンション LOCS赤羽志茂(1LDK/2階) | |||||||
![]() | 14.5万円 1万円 | 14.5万円 14.5万円 | 1LDK 33.16m2 | 築5年 | 東京メトロ南北線 志茂駅 徒歩3分 東京メトロ南北線 赤羽岩淵駅 徒歩15分 JR京浜東北線 赤羽駅 徒歩16分 東京都北区志茂 | 詳細を見る | |
マンション パークアクシス住吉(1K/3階) | |||||||
![]() | 11.4万円 8,000円 | 11.4万円 11.4万円 | 1K 24.5m2 | 築17年 | 東京メトロ半蔵門線 住吉駅(東京) 徒歩6分 JR総武線 錦糸町駅 徒歩12分 東京メトロ半蔵門線 錦糸町駅 徒歩12分 東京都墨田区江東橋 | 詳細を見る | |
マンション プレシャス赤羽岩淵(2LDK/8階) | |||||||
![]() | 23.6万円 1万円 | 23.6万円 23.6万円 | 2LDK 52.42m2 | 築1年 | 東京メトロ南北線 赤羽岩淵駅 徒歩2分 JR京浜東北線 赤羽駅 徒歩10分 JR埼京線 北赤羽駅 徒歩18分 東京都北区岩淵町 | 詳細を見る | |
アパート パルデンス山内(2DK/1階) | |||||||
![]() | 9.5万円 4,000円 | なし 9.5万円 | 2DK 46.3m2 | 築32年 | 京成電鉄本線 お花茶屋駅 徒歩7分 京成電鉄押上線 京成立石駅 徒歩16分 東京都葛飾区四つ木5丁目 | 詳細を見る | |
マンション ROOTS RYOGOKU(1LDK/2階) | |||||||
![]() | 16万円 1.5万円 | なし なし | 1LDK 37.26m2 | 築2年 | JR総武線 両国駅 徒歩6分 都営大江戸線 両国駅 徒歩8分 都営新宿線 浜町駅 徒歩18分 東京都墨田区両国 | 詳細を見る | |
マンション ロイヤルパークス赤羽ノース(1LDK/4階) | |||||||
![]() | 19.6万円 1.5万円 | なし なし | 1LDK 40.95m2 | 築1年 | 東京メトロ南北線 志茂駅 徒歩8分 JR京浜東北線 赤羽駅 徒歩17分 JR埼京線 十条駅(東京) 徒歩26分 東京都北区神谷 | 詳細を見る | |








