賃貸アパート
レオパレスヴァンの賃貸物件情報(1K/2階)
| 家賃 | 管理費等 | 敷金 | 礼金 | 間取り | 専有面積 |
|---|---|---|---|---|---|
| 4.8万円 | 5,000円 | なし | 4.8万円 | 1K | 19.87m2 |
入居決定でお祝い金最大100,000円
- 保証金
- -
- 償却・敷引
- -
- 築年数
- 築20年
- 所在階
- 2階
- 向き
- -
Point
現地でのお待ち合わせ、ご内見も可能ですので、お気軽にお問い合わせくださいませ☆クレジットカード取り扱い、保証人不要システム有、24時間入居サポート、インターネット加入、提携引越し業者紹介しておりま
提供:(株)タウンハウジング東京 羽村店(SUUMO経由)

詳細情報 レオパレスヴァン
物件紹介
レオパレスヴァンはJR八高線北八王子駅から徒歩18分にあるアパートです。
このお部屋は2階以上に位置しているので、通行人や周囲の住人からの視線が気になりにくく、防犯面でも安心。インターホンにはTVモニタもついているため、相手の顔を確認してから来客対応することができます。
フローリングのお部屋なのでお掃除もラクラク。室内には多目的に利用できる人気のロフトもあり、お部屋のアレンジも自在です。キッチンはシステムキッチン仕様になっていますので、お料理好きの方にもぴったり。バス・トイレは別なので、のんびりお風呂タイムも楽しめるでしょう。また、雨の日でも浴室乾燥機を使えば、お洗濯も問題ありません。
通信設備面ではCATVに対応しているので、おうち時間も充実するでしょう(別途工事、契約料が必要な場合あり)。
共用部には宅配ボックスが設定されているので、不在の時にも荷物を受け取ることができます。
このお部屋は2階以上に位置しているので、通行人や周囲の住人からの視線が気になりにくく、防犯面でも安心。インターホンにはTVモニタもついているため、相手の顔を確認してから来客対応することができます。
フローリングのお部屋なのでお掃除もラクラク。室内には多目的に利用できる人気のロフトもあり、お部屋のアレンジも自在です。キッチンはシステムキッチン仕様になっていますので、お料理好きの方にもぴったり。バス・トイレは別なので、のんびりお風呂タイムも楽しめるでしょう。また、雨の日でも浴室乾燥機を使えば、お洗濯も問題ありません。
通信設備面ではCATVに対応しているので、おうち時間も充実するでしょう(別途工事、契約料が必要な場合あり)。
共用部には宅配ボックスが設定されているので、不在の時にも荷物を受け取ることができます。
お金・契約の情報
※「-」と表示されているものは、実際は料金が発生するものもございます。詳細はお問い合わせください。
| 家賃 | 4.8万円 | 管理費・共益費 | 5,000円 |
|---|---|---|---|
| 敷金 | なし | 礼金 | 4.8万円 |
| 入居決定でお祝い金最大100,000円 | |||
| 保証金 | - | 償却・敷引 | - |
| 住宅保険料 | - | 更新料 | - |
| 契約形態 | - | 契約期間 | - |
| 入居・引渡期間 | 即時 | 現況 | - |
| 契約備考 | 合計1.65万円(内訳:鍵交換代1.65万円) 更新料 新賃料1.00ヶ月分 室内清掃費用 41800円 環境維持費 月額550円 1K 二人入居可/子供可 損保【2万円2年】 バストイレ別、エアコン、クロゼット、フローリング、TVインターホン、浴室乾燥機、駐輪場、宅配ボックス、CATV、照明付、ロフト、冷蔵庫、仲介手数料不要、2沿線利用可、家電付、家具付、2駅利用可、プロパンガス、初期費用カード決済可 | ||
部屋の情報
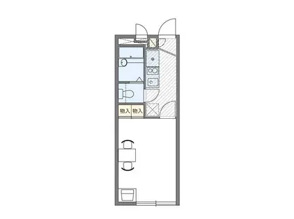
| 間取り | 1K | 専有面積 | 19.87m2 |
|---|---|---|---|
| 所在階 / 向き | 2階 / - | バルコニー面積 | - |
| 水道 / ガス | - | ||
| 設備 | バス・トイレ別、2階以上、テレビドアホン、宅配ボックス、浴室乾燥機、エアコン、フローリング、ロフトあり、CATV | ||
| 当社物件ID | 2302243 | ||
建物の情報
| 建物名 | レオパレスヴァン | ||
|---|---|---|---|
| 所在地 | 東京都八王子市大和田町 | ||
| 交通 | JR八高線 北八王子駅 徒歩18分 京王線 京王八王子駅 バス乗車時間:6分 最寄りバス停で下車 徒歩7分 JR中央線 八王子駅 バス乗車時間:13分 最寄りバス停で下車 徒歩7分 | ||
| 階数 | 2階建 | 総戸数 | 20戸 |
| 築年月 | 2006年02月 / 築20年 | エレベーター | - |
| 駐車場 | 空有 13200円 | バイク置き場 | - |
| 駐輪場 | あり | 管理人/管理会社 | - |
| 周辺環境 | その他 ケンタッキーフライドチキン 八王子大和田店(飲食店)まで760m その他 ローソン 八王子大和田店(コンビニ)まで446m その他 吉野家 八王子大和田店(飲食店)まで760m その他 吹上保育園旭が丘分園(幼稚園・保育園)まで526m その他 日野市立旭が丘小学校(小学校)まで370m その他 北原脳神経外科病院(病院)まで735m | ||
| 建物種別 | アパート | 建物構造 | 鉄骨造 |
この部屋の取扱い不動産会社
| 会社名 | (株)LUXラックス八王子店(SUUMO経由) | ||
|---|---|---|---|
| 所在地 | 東京都八王子市旭町 8-10 比留間ビル3階 | 交通 | - |
| 営業時間 | 10:00~19:00 | 定休日 | 水曜日 |
| 免許番号 | 東京都知事95014 | 取引態様 | 仲介 |
| 不動産会社管理番号 | 100445356388 | 当社管理番号 | 89 |
| 所属団体 | (公社)全日本不動産協会東京都本部会員 | ||
| 公正取引協議会 | (公社)首都圏不動産公正取引協議会加盟 | ||
| 取扱い物件情報 | 物件詳細へ | ||
※各種情報と現状に差異がある場合は、現状優先となります。問い合わせをすることで、より詳しい条件、情報を確認する事ができます。
提供:(株)LUXラックス八王子店(SUUMO経由)
この物件が気になったら掲載期限まであと10日
レオパレスヴァンに条件(家賃・エリア)が近い物件一覧
| 写真 | 家賃 管理費等 | 敷金 礼金 | 間取り 専有面積 | 築年数 | 最寄り駅 所在地 | キープ | 詳細 |
|---|---|---|---|---|---|---|---|
アパート サンアベニュー二葉(ワンルーム/2階) | |||||||
![]() | 3.2万円 3,000円 | 3.2万円 なし | ワンルーム 17.3m2 | 築43年 | 京王電鉄京王線 京王八王子駅 徒歩18分 中央本線 八王子駅 徒歩20分 東京都八王子市大和田町7丁目 | 詳細を見る | |
アパート FOREST PARK HILLS(1K/3階) | |||||||
![]() | 7.4万円 5,000円 | なし 7.4万円 | 1K 21.94m2 | 新築 | 青梅線 拝島駅 徒歩16分 西武鉄道拝島線 拝島駅 徒歩16分 青梅線 昭島駅 徒歩26分 東京都昭島市緑町4丁目 | 詳細を見る | |
マンション グレースコート響(2LDK/3階) | |||||||
![]() | 6.8万円 2,000円 | 6.8万円 6.8万円 | 2LDK 51.42m2 | 築31年 | 五日市線 秋川駅 徒歩7分 五日市線 武蔵引田駅 徒歩17分 五日市線 武蔵増戸駅 徒歩35分 東京都あきる野市下代継 | 詳細を見る | |
マンション CS19 HIJIKATA(1K/1階) | |||||||
![]() | 5.05万円 4,000円 | なし 5.05万円 | 1K 23.76m2 | 築27年 | 多摩都市モノレール 万願寺駅 徒歩5分 多摩都市モノレール 甲州街道駅 徒歩19分 京王線 高幡不動駅 徒歩20分 東京都日野市 | 詳細を見る | |
アパート エスポワール(3DK/2階) | |||||||
![]() | 7.2万円 4,000円 | なし 8万円 | 3DK 53.46m2 | 築34年 | 京王高尾線 狭間駅 徒歩6分 京王高尾線 めじろ台駅 徒歩19分 JR中央線 高尾駅(東京) 徒歩27分 東京都八王子市東浅川町 | 詳細を見る | |
アパート ホワイトミーティア A棟(1LDK/1階) | |||||||
![]() | 6.8万円 4,000円 | なし 4万円 | 1LDK 33.6m2 | 築20年 | 八高線 小宮駅 徒歩8分 八高線 北八王子駅 徒歩35分 青梅線 中神駅 徒歩37分 東京都八王子市小宮町 | 詳細を見る | |
アパート パインフィールド大塚(1K/1階) | |||||||
![]() | 5.8万円 4,000円 | なし なし | 1K 20.01m2 | 築5年 | 多摩モノレール 大塚・帝京大学駅 徒歩7分 多摩モノレール 中央大学・明星大学駅 徒歩21分 京王電鉄相模原線 京王多摩センター駅 徒歩25分 東京都八王子市大塚 | 詳細を見る | |
マンション メインステージ十条Ⅱ(1K/12階) | |||||||
![]() | 11万円 1.5万円 | なし 5.5万円 | 1K 25.72m2 | 築6年 | 京浜東北・根岸線 東十条駅 徒歩8分 埼京線 十条駅(東京) 徒歩10分 東京都北区中十条1丁目 | 詳細を見る | |









