賃貸マンション
ラファセエスティエラ赤坂の賃貸物件情報(1LDK/10階)
| 家賃 | 管理費等 | 敷金 | 礼金 | 間取り | 専有面積 |
|---|---|---|---|---|---|
| 8.4万円 | 4,000円 | なし | 16.8万円 | 1LDK | 31.08m2 |
入居決定でお祝い金最大100,000円
- 保証金
- -
- 償却・敷引
- -
- 築年数
- 築12年
- 所在階
- 10階
- 向き
- 東
Point
3月末の退去、ご入居GW前となります!!・・貴重な「赤坂駅」徒歩圏です(^^)/・2月に徒歩圏内「ロピア」が、オープンしました♪
提供:(株)BAROK(SUUMO経由)

詳細情報 ラファセエスティエラ赤坂
物件紹介
ラファセエスティエラ赤坂は地下鉄空港線赤坂駅から徒歩7分にあり、駅近で通勤通学に便利なマンションです。
このお部屋は2階以上に位置しているので、通行人や周囲の住人からの視線が気になりにくく、防犯面でも安心。建物のエントランスはオートロックがついており、インターホンにはTVモニタもついているため、相手の顔を確認してから来客対応することができます。
おしゃれなデザイナーズ物件!人気の角部屋で周囲の居住者の生活音も気になりにくく、また、フローリングのお部屋なのでお掃除もラクラク。室内にはウォークインクローゼットがありますので、たくさんの荷物も効率的に収納ができます。キッチンはシステムキッチン仕様になっていますので、お料理好きの方にもぴったり。また、バス・トイレは別で、のんびりお風呂タイムも楽しめるでしょう。
通信設備面では、インターネット接続が可能です。また、BSアンテナ・CSアンテナがありCATVにも対応しているので、おうち時間も充実するでしょう(別途工事、契約料が必要な場合あり)。
建物にはエレベーターがついているので、重い荷物があっても安心。共用部には宅配ボックスが設定されているので、不在の時にも荷物を受け取ることができます。
このお部屋は2階以上に位置しているので、通行人や周囲の住人からの視線が気になりにくく、防犯面でも安心。建物のエントランスはオートロックがついており、インターホンにはTVモニタもついているため、相手の顔を確認してから来客対応することができます。
おしゃれなデザイナーズ物件!人気の角部屋で周囲の居住者の生活音も気になりにくく、また、フローリングのお部屋なのでお掃除もラクラク。室内にはウォークインクローゼットがありますので、たくさんの荷物も効率的に収納ができます。キッチンはシステムキッチン仕様になっていますので、お料理好きの方にもぴったり。また、バス・トイレは別で、のんびりお風呂タイムも楽しめるでしょう。
通信設備面では、インターネット接続が可能です。また、BSアンテナ・CSアンテナがありCATVにも対応しているので、おうち時間も充実するでしょう(別途工事、契約料が必要な場合あり)。
建物にはエレベーターがついているので、重い荷物があっても安心。共用部には宅配ボックスが設定されているので、不在の時にも荷物を受け取ることができます。
お金・契約の情報
※「-」と表示されているものは、実際は料金が発生するものもございます。詳細はお問い合わせください。
| 家賃 | 8.4万円 | 管理費・共益費 | 4,000円 |
|---|---|---|---|
| 敷金 | なし | 礼金 | 16.8万円 |
| 入居決定でお祝い金最大100,000円 | |||
| 保証金 | - | 償却・敷引 | - |
| 住宅保険料 | - | 更新料 | - |
| 契約形態 | - | 契約期間 | - |
| 入居・引渡期間 | - | 現況 | - |
| 契約備考 | 大濠公園駅徒歩10分/セブンイレブンまで10m 1LDK 損保【要】 バストイレ別、バルコニー、エアコン、ガスコンロ対応、フローリング、シャワー付洗面台、TVインターホン、オートロック、室内洗濯置、シューズボックス、角住戸、温水洗浄便座、脱衣所、エレベーター、洗面所独立、洗面化粧台、2口コンロ、駐輪場、宅配ボックス、CATV、BS・CS、敷金不要、対面式キッチン、防犯カメラ、分譲賃貸、ウォークインクロゼット、保証人不要、バイク置場、全居室フローリング、2沿線利用可、ディンプルキー、駅まで平坦、保証金不要、浴室に窓、24時間換気システム、高温差湯式、人感照明センサー、2駅利用可、駅徒歩10分以内、高層階、敷地内ごみ置き場、洗面所にドア、高速ネット対応、通風良好 入居日:'26年4月下旬 | ||
部屋の情報
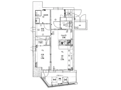
| 間取り | 1LDK | 専有面積 | 31.08m2 |
|---|---|---|---|
| 所在階 / 向き | 10階 / 東 | バルコニー面積 | - |
| 水道 / ガス | - | ||
| 設備 | バス・トイレ別、2階以上、オートロック、テレビドアホン、宅配ボックス、ウォークインクローゼット、インターネット対応、エアコン、エレベーター、温水洗浄便座、角部屋、バルコニー、フローリング、洗髪洗面化粧台、2口コンロ、コンロ:ガス、CATV、CSアンテナ、BSアンテナ、洗濯機:室内 | ||
| 当社物件ID | 16087680 | ||
建物の情報
| 建物名 | ラファセエスティエラ赤坂 | ||
|---|---|---|---|
| 所在地 | 福岡県福岡市中央区大手門 | ||
| 交通 | 地下鉄空港線 赤坂駅(福岡) 徒歩8分 地下鉄空港線 大濠公園駅 徒歩10分 地下鉄空港線 天神駅 徒歩17分 | ||
| 階数 | 13階建 | 総戸数 | - |
| 築年月 | 2015年03月 / 築12年 | エレベーター | あり |
| 駐車場 | なし | バイク置き場 | あり |
| 駐輪場 | あり | 管理人/管理会社 | - |
| 周辺環境 | その他 レガネットキュート赤坂門店(スーパー)まで583m その他 サニー赤坂店(スーパー)まで676m その他 ニューハザマ(スーパー)まで590m その他 セブンイレブン(コンビニ)まで10m その他 ローソン福岡赤坂一丁目店(コンビニ)まで131m その他 大濠公園(公園)まで820m | ||
| 建物種別 | マンション | 建物構造 | RC(鉄筋コンクリート) |
この部屋の取扱い不動産会社
| 会社名 | (株)アクタス(SUUMO経由) | ||
|---|---|---|---|
| 所在地 | 福岡県福岡市中央区天神3-9-26 アクタス天神セントラルタワー2階 | 交通 | - |
| 営業時間 | 10:00~19:00 | 定休日 | 毎日営業 |
| 免許番号 | 福岡県知事15125 | 取引態様 | 仲介 |
| 不動産会社管理番号 | 100492152371 | 当社管理番号 | 89 |
| 所属団体 | (公社)福岡県宅地建物取引業協会会員 | ||
| 公正取引協議会 | (一社)九州不動産公正取引協議会加盟 | ||
| 取扱い物件情報 | 物件詳細へ | ||
※各種情報と現状に差異がある場合は、現状優先となります。問い合わせをすることで、より詳しい条件、情報を確認する事ができます。
提供:(株)アクタス(SUUMO経由)
この物件が気になったら掲載期限まであと11日
ラファセエスティエラ赤坂に条件(家賃・エリア)が近い物件一覧
| 写真 | 家賃 管理費等 | 敷金 礼金 | 間取り 専有面積 | 築年数 | 最寄り駅 所在地 | キープ | 詳細 |
|---|---|---|---|---|---|---|---|
マンション 藤ハイツ(2LDK/3階) | |||||||
![]() | 6万円 3,000円 | なし 12万円 | 2LDK 50m2 | 築43年 | JR博多南線 博多南駅 徒歩20分 JR鹿児島本線 南福岡駅 徒歩38分 JR鹿児島本線 春日駅(福岡) 徒歩41分 福岡県春日市下白水北 | 詳細を見る | |
マンション サニークレスト須崎町(1LDK/4階) | |||||||
| 9.4万円 5,300円 | なし なし | 1LDK 29.7m2 | 築7年 | 福岡市箱崎線 中洲川端駅 徒歩5分 福岡市箱崎線 呉服町駅(福岡) 徒歩9分 福岡市空港線 天神駅 徒歩11分 福岡県福岡市博多区須崎町 | 詳細を見る | ||
アパート ベラルーチェ南ヶ丘(2LDK/1階) | |||||||
![]() | 8万円 5,500円 | なし 20万円 | 2LDK 50.68m2 | 築10年 | 西鉄天神大牟田線 下大利駅 徒歩41分 西鉄天神大牟田線 白木原駅 徒歩49分 福岡県大野城市南ケ丘7丁目 | 詳細を見る | |
マンション オープンレジデンシャル春日公園(1LDK/6階) | |||||||
![]() | 8.5万円 5,000円 | なし 12.75万円 | 1LDK 34.71m2 | 築1年 | 西鉄天神大牟田線 白木原駅 徒歩14分 JR鹿児島本線 大野城駅 徒歩16分 西鉄天神大牟田線 下大利駅 徒歩20分 福岡県春日市春日公園 | 詳細を見る | |
アパート コスモピア春日(3LDK/2階) | |||||||
![]() | 5.5万円 3,000円 | なし 11万円 | 3LDK 62.92m2 | 築36年 | 西鉄天神大牟田線 白木原駅 徒歩31分 JR鹿児島本線 春日駅(福岡) 徒歩32分 JR鹿児島本線 大野城駅 徒歩33分 福岡県春日市ちくし台 | 詳細を見る | |
アパート アドバンストラスト26(3DK/1階) | |||||||
![]() | 5.2万円 3,000円 | なし なし | 3DK 57.33m2 | 築34年 | 西鉄天神大牟田線 白木原駅 徒歩29分 鹿児島本線 大野城駅 徒歩31分 西鉄天神大牟田線 下大利駅 徒歩34分 福岡県春日市惣利5丁目 | 詳細を見る | |
マンション シャーメゾン スプリング デイズ(1DK/2階) | |||||||
![]() | 7.2万円 8,000円 | なし 14.4万円 | 1DK 34.68m2 | 築2年 | 鹿児島本線 南福岡駅 徒歩11分 鹿児島本線 春日駅(福岡) 徒歩16分 西鉄天神大牟田線 桜並木駅 徒歩19分 福岡県春日市大和町3丁目 | 詳細を見る | |
アパート D-ROOM平田台4丁目(2LDK/3階) | |||||||
![]() | 10.6万円 5,000円 | なし 21.2万円 | 2LDK 56.4m2 | 新築 | 西鉄天神大牟田線 白木原駅 徒歩33分 鹿児島本線 春日駅(福岡) 徒歩44分 西鉄天神大牟田線 春日原駅 徒歩47分 福岡県春日市平田台4丁目 | 詳細を見る | |






