賃貸アパート
ソルナクレイシア三鷹IIの賃貸物件情報(1LDK/2階)
| 家賃 | 管理費等 | 敷金 | 礼金 | 間取り | 専有面積 |
|---|---|---|---|---|---|
| 14.4万円 | 1.5万円 | なし | なし | 1LDK | 39.95m2 |
入居決定でお祝い金最大100,000円
Point
オンラインにて申込みから契約までのお手続きも可能です。入居日が合わずにお悩みの方、契約金のお見積もりや室内写真のご要望などお気軽にお問い合わせください。初期費用の分割払いも承ります。
提供:(株)ミニミニ城西 三鷹店(SUUMO経由)

詳細情報 ソルナクレイシア三鷹II
物件紹介
ソルナクレイシア三鷹IIはJR総武線三鷹駅から徒歩9分にあり、駅近で通勤通学に便利なアパートです。
このお部屋は2階以上に位置しているので、通行人や周囲の住人からの視線が気になりにくく、防犯面でも安心。インターホンにはTVモニタもついているため、相手の顔を確認してから来客対応することができます。
人気の角部屋で周囲の居住者の生活音も気になりにくく、また、フローリングのお部屋なのでお掃除もラクラク。キッチンはシステムキッチン仕様になっていますので、お料理好きの方にもぴったり。バス・トイレは別なので、のんびりお風呂タイムも楽しめるでしょう。また、雨の日でも浴室乾燥機を使えば、お洗濯も問題ありません。
通信設備面では、インターネットが無料で使えるので、月々の出費を抑えられるのも魅力です。また、BSアンテナ・CSアンテナもありますので、おうち時間も充実するでしょう(別途工事、BS・CSの契約料等が必要な場合あり)。
このお部屋は2階以上に位置しているので、通行人や周囲の住人からの視線が気になりにくく、防犯面でも安心。インターホンにはTVモニタもついているため、相手の顔を確認してから来客対応することができます。
人気の角部屋で周囲の居住者の生活音も気になりにくく、また、フローリングのお部屋なのでお掃除もラクラク。キッチンはシステムキッチン仕様になっていますので、お料理好きの方にもぴったり。バス・トイレは別なので、のんびりお風呂タイムも楽しめるでしょう。また、雨の日でも浴室乾燥機を使えば、お洗濯も問題ありません。
通信設備面では、インターネットが無料で使えるので、月々の出費を抑えられるのも魅力です。また、BSアンテナ・CSアンテナもありますので、おうち時間も充実するでしょう(別途工事、BS・CSの契約料等が必要な場合あり)。
お金・契約の情報
※「-」と表示されているものは、実際は料金が発生するものもございます。詳細はお問い合わせください。
| 家賃 | 14.4万円 | 管理費・共益費 | 1.5万円 |
|---|---|---|---|
| 敷金 | なし | 礼金 | なし |
| 入居決定でお祝い金最大100,000円 | |||
| 保証金 | - | 償却・敷引 | - |
| 住宅保険料 | - | 更新料 | - |
| 保証会社利用 | 必須 | 保証会社名 | - |
| 保証会社費用 | - | 保証会社備考 | 保証会社利用必 初回保証料:総賃料60パーセント 更新料:13000円/年 |
| 契約形態 | - | 契約期間 | - |
| 入居・引渡期間 | 即時 | 現況 | - |
| 契約備考 | 初期費用の分割・クレジットカード決済可能です!お気軽にご相談下さい。退去時室内クリーニング代(66000円)借主負担。短期違約金として、365日以内の解約は賃料・管理費の1ヶ月となります。 更新料 新賃料1.00ヶ月分 口座振替手数料 月額330円 1LDK 普通借家2年 損保【2万円2年】 バストイレ別、エアコン、クロゼット、シャワー付洗面台、TVインターホン、室内洗濯置、シューズボックス、システムキッチン、角住戸、温水洗浄便座、脱衣所、洗面所独立、洗面化粧台、2口コンロ、礼金不要、2面採光、最上階、敷金不要、CS、メゾネット、ネット専用回線、ネット使用料不要、保証金不要、クロゼット2ヶ所、浴室未使用、トイレ未使用、2駅利用可、駅徒歩10分以内、キッチン未使用、都市ガス、洗面所にドア、玄関収納、BS、敷金・礼金不要、初期費用カード決済可 | ||
部屋の情報
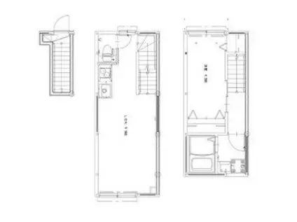
| 間取り | 1LDK | 専有面積 | 39.95m2 |
|---|---|---|---|
| 所在階 / 向き | 2階 / 東 | バルコニー面積 | - |
| 水道 / ガス | - | ||
| 設備 | バス・トイレ別、2階以上、テレビドアホン、インターネット対応、システムキッチン、エアコン、温水洗浄便座、角部屋、洗髪洗面化粧台、2口コンロ、CSアンテナ、BSアンテナ、インターネット使用料無料、洗濯機:室内 | ||
| 当社物件ID | 159535011 | ||
建物の情報
| 建物名 | ソルナクレイシア三鷹II | ||
|---|---|---|---|
| 所在地 | 東京都三鷹市上連雀 | ||
| 交通 | JR中央線 三鷹駅 徒歩10分 JR中央線 武蔵境駅 徒歩21分 | ||
| 階数 | 3階建 | 総戸数 | - |
| 築年月 | 2025年09月 / 築1年 | エレベーター | - |
| 駐車場 | なし | バイク置き場 | - |
| 駐輪場 | - | 管理人/管理会社 | - |
| 周辺環境 | その他 三鷹駅(その他)まで742m その他 武蔵境駅(その他)まで1761m その他 井の頭公園駅(その他)まで2769m その他 イトーヨーカドー 武蔵境店(スーパー)まで1461m その他 業務スーパー 武蔵境店(スーパー)まで1647m その他 セブンイレブン 三鷹駅南口店(コンビニ)まで337m | ||
| 建物種別 | アパート | 建物構造 | 軽量鉄骨造 |
この部屋の取扱い不動産会社
| 会社名 | (株)エールーム立川店(SUUMO経由) | ||
|---|---|---|---|
| 所在地 | 東京都立川市柴崎町3-4-17 岡部ビル3階 | 交通 | - |
| 営業時間 | 10:00~19:00 | 定休日 | 水曜日 |
| 免許番号 | 国土交通大臣9710 | 取引態様 | 仲介 |
| 不動産会社管理番号 | 100461809425 | 当社管理番号 | 89 |
| 所属団体 | (公社)東京都宅地建物取引業協会会員 | ||
| 公正取引協議会 | (公社)首都圏不動産公正取引協議会加盟 | ||
| 取扱い物件情報 | 物件詳細へ | ||
※各種情報と現状に差異がある場合は、現状優先となります。問い合わせをすることで、より詳しい条件、情報を確認する事ができます。
提供:(株)エールーム立川店(SUUMO経由)
この物件が気になったら掲載期限まであと10日
ソルナクレイシア三鷹IIに条件(家賃・エリア)が近い物件一覧
| 写真 | 家賃 管理費等 | 敷金 礼金 | 間取り 専有面積 | 築年数 | 最寄り駅 所在地 | キープ | 詳細 |
|---|---|---|---|---|---|---|---|
マンション ヴィラドゥスール(1LDK/10階) | |||||||
![]() | 16.9万円 9,500円 | なし 16.9万円 | 1LDK 40.03m2 | 築1年 | JR中央線 武蔵境駅 徒歩2分 東京都武蔵野市境 | 詳細を見る | |
マンション LUMINOUSつつじヶ丘(1LDK/2階) | |||||||
![]() | 14.5万円 1万円 | なし なし | 1LDK 34.27m2 | 新築 | 京王線 柴崎駅 徒歩8分 京王線 つつじケ丘駅 徒歩13分 京王線 国領駅 徒歩18分 東京都調布市菊野台 | 詳細を見る | |
アパート XEVO西荻窪(1LDK/2階) | |||||||
![]() | 16.1万円 なし | 16.1万円 16.1万円 | 1LDK 39.95m2 | 新築 | 中央本線 西荻窪駅 徒歩11分 東京都杉並区西荻南4丁目 | 詳細を見る | |
マンション BRANCHE桜新町II(1LDK/3階) | |||||||
![]() | 17.5万円 8,000円 | 17.5万円 なし | 1LDK 25.88m2 | 築9年 | 東急田園都市線 桜新町駅 徒歩9分 東京都世田谷区新町 | 詳細を見る | |
マンション IRIS荻窪(1K/3階) | |||||||
![]() | 9.7万円 1万円 | なし 9.7万円 | 1K 18.38m2 | 新築 | JR中央線 荻窪駅 徒歩8分 東京メトロ丸ノ内線 荻窪駅 徒歩8分 JR中央線 西荻窪駅 徒歩15分 東京都杉並区上荻 | 詳細を見る | |
マンション CASAIO(2DK/2階) | |||||||
![]() | 9.8万円 なし | 9.8万円 9.8万円 | 2DK 46.17m2 | 築36年 | 西武新宿線 下井草駅 徒歩6分 西武新宿線 井荻駅 徒歩17分 西武新宿線 鷺ノ宮駅 徒歩19分 東京都杉並区下井草 | 詳細を見る | |
マンション ルーブル学芸大学七番館(1K/2階) | |||||||
![]() | 9.5万円 1万円 | 9.5万円 9.5万円 | 1K 25.38m2 | 築22年 | 東急東横線 学芸大学駅 徒歩9分 東急東横線 都立大学駅 徒歩17分 東急田園都市線 駒沢大学駅 徒歩23分 東京都世田谷区下馬 | 詳細を見る | |







