賃貸マンション
CORTESE音楽KOIWAの賃貸物件情報(3LDK/6階)
| 家賃 | 管理費等 | 敷金 | 礼金 | 間取り | 専有面積 |
|---|---|---|---|---|---|
| 19.5万円 | 1万円 | なし | 19.5万円 | 3LDK | 55m2 |
入居決定でお祝い金最大100,000円
Point
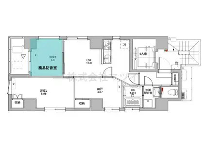
契約月フリーレント!★築浅物件★1フロア1戸の贅沢(3LDK、プライバシー確保、全室採光)★簡易防音音楽ルームの贅沢(演奏楽器不可あり)★プライベート屋上バルコニーから江戸川花火やプールが楽しめる
提供:(株)マツイ(SUUMO経由)

詳細情報 CORTESE音楽KOIWA
物件紹介
CORTESE音楽KOIWAは京成本線京成小岩駅から徒歩7分にあり、駅近で通勤通学に便利なマンションです。
このお部屋は2階以上に位置しているので、通行人や周囲の住人からの視線が気になりにくく、防犯面でも安心。建物のエントランスはオートロックがついており、インターホンにはTVモニタもついているため、相手の顔を確認してから来客対応することができます。
こちらは楽器相談が可能な物件。楽器演奏をお考えの方はぜひ相談してみてください。人気の南向きのお部屋。また、フローリングなのでお掃除もラクラク。キッチンはシステムキッチン仕様になっていますので、お料理好きの方にもぴったり。バス・トイレは別なので、のんびりお風呂タイムも楽しめるでしょう。また、雨の日でも浴室乾燥機を使えば、お洗濯も問題ありません。
通信設備面では、インターネットが無料で使えるので、月々の出費を抑えられるのも魅力です。また、BSアンテナ・CSアンテナもありますので、おうち時間も充実するでしょう(別途工事、BS・CSの契約料等が必要な場合あり)。
建物にはエレベーターがついているので、重い荷物があっても安心。共用部には宅配ボックスが設定されているので、不在の時にも荷物を受け取ることができます。
このお部屋は2階以上に位置しているので、通行人や周囲の住人からの視線が気になりにくく、防犯面でも安心。建物のエントランスはオートロックがついており、インターホンにはTVモニタもついているため、相手の顔を確認してから来客対応することができます。
こちらは楽器相談が可能な物件。楽器演奏をお考えの方はぜひ相談してみてください。人気の南向きのお部屋。また、フローリングなのでお掃除もラクラク。キッチンはシステムキッチン仕様になっていますので、お料理好きの方にもぴったり。バス・トイレは別なので、のんびりお風呂タイムも楽しめるでしょう。また、雨の日でも浴室乾燥機を使えば、お洗濯も問題ありません。
通信設備面では、インターネットが無料で使えるので、月々の出費を抑えられるのも魅力です。また、BSアンテナ・CSアンテナもありますので、おうち時間も充実するでしょう(別途工事、BS・CSの契約料等が必要な場合あり)。
建物にはエレベーターがついているので、重い荷物があっても安心。共用部には宅配ボックスが設定されているので、不在の時にも荷物を受け取ることができます。
お金・契約の情報
※「-」と表示されているものは、実際は料金が発生するものもございます。詳細はお問い合わせください。
| 家賃 | 19.5万円 | 管理費・共益費 | 1万円 |
|---|---|---|---|
| 敷金 | なし | 礼金 | 19.5万円 |
| フリーレント | あり | ||
| 入居決定でお祝い金最大100,000円 | |||
| 保証金 | - | 償却・敷引 | - |
| 住宅保険料 | - | 更新料 | - |
| 保証会社利用 | 必須 | 保証会社名 | 全保連 |
| 保証会社費用 | - | 保証会社備考 | 全保連利用必 振込手数料550円/月 更新料10000円/年 |
| 契約形態 | - | 契約期間 | - |
| 入居・引渡期間 | - | 現況 | - |
| 入居可能条件 | 楽器相談 | ||
| 契約備考 | セブンイレブン中小岩店まで359m/巡回管理/24時間サポート:660円/月(税込み)中型以上バイク置場3台限定申込順:1世帯1台8800円/月(税込)原付バイク置場下限定2台先着順:1世帯1台5500円/月(税込)自転車置場:各1世帯2台まで無料★簡易防音ルーム(洋室4.5帖):オーディオ、鍵盤楽器、弦楽器など(打楽器不可)※使用楽器の搬入の可否につきましては、借主にて採寸の上、ご確認ください。※一部楽器種により演奏制限、演奏不可楽器あり 合計3.3万円(内訳:鍵交換費用33000円(税込)家賃保証会社初回保証料102830円) 24時間ハウスサポート660円(税込)/月退去時費用ハウスクリーニング66,000円(税込)エアコンクリーニング12,100円(税込)/1台あたり 3LDK 二人入居可/楽器相談/事務所利用不可/ルームシェア相談/フリーレント1ヶ月契約月フリーレント 契約月翌月より賃料発生 普通借家2年 損保【1.66万円2年】 バストイレ別、バルコニー、TVインターホン、浴室乾燥機、オートロック、室内洗濯置、シューズボックス、システムキッチン、追焚機能浴室、温水洗浄便座、エレベーター、洗面所独立、駐輪場、宅配ボックス、外壁タイル張り、BS・CS、3口以上コンロ、防犯カメラ、IHクッキングヒーター、グリル付、保証人不要、バイク置場、全居室フローリング、2沿線利用可、ネット使用料不要、フリーレント、眺望良好、楽器相談、1フロア1住戸、クロゼット2ヶ所、ルームシェア相談、エアコン4台、防音室、花火大会鑑賞、駅徒歩10分以内、敷地内ごみ置き場、全室南西向き、都市ガス、LAN、礼金1ヶ月 入居日:'26年4月初旬 | ||
部屋の情報
| 間取り | 3LDK | 専有面積 | 55m2 |
|---|---|---|---|
| 所在階 / 向き | 6階 / 南西 | バルコニー面積 | 4m2 |
| 水道 / ガス | - | ||
| 設備 | バス・トイレ別、2階以上、オートロック、テレビドアホン、宅配ボックス、浴室乾燥機、追い焚き、インターネット対応、システムキッチン、エアコン、エレベーター、温水洗浄便座、南向き、バルコニー、フローリング、洗髪洗面化粧台、2口コンロ、コンロ:IH、CSアンテナ、BSアンテナ、インターネット使用料無料、洗濯機:室内 | ||
| 当社物件ID | 132504682 | ||
建物の情報
| 建物名 | CORTESE音楽KOIWA | ||
|---|---|---|---|
| 所在地 | 東京都江戸川区北小岩 | ||
| 交通 | 京成本線 京成小岩駅 徒歩7分 JR総武線 小岩駅 徒歩9分 | ||
| 階数 | 9階建 | 総戸数 | - |
| 築年月 | 2023年04月 / 築3年 | エレベーター | あり |
| 駐車場 | なし | バイク置き場 | あり |
| 駐輪場 | あり | 管理人/管理会社 | - |
| 周辺環境 | その他 セブンイレブン中小岩店(コンビニ)まで359m その他 ライフ西小岩店(ショッピングセンター)まで450m その他 北小岩小学校(小学校)まで300m その他 富士見保育園(幼稚園・保育園)まで442m その他 岩倉病院(病院)まで807m その他 江戸川区立小岩第3中学校(中学校)まで1300m | ||
| 建物種別 | マンション | 建物構造 | RC(鉄筋コンクリート) |
この部屋の取扱い不動産会社
| 会社名 | (株)マツイ(SUUMO経由) | ||
|---|---|---|---|
| 所在地 | 千葉県印西市木下 680-25 | 交通 | - |
| 営業時間 | 9時~18時 | 定休日 | 夏季・年末年始 |
| 免許番号 | 千葉県知事15692 | 取引態様 | 貸主 |
| 不動産会社管理番号 | 100323130802 | 当社管理番号 | 89 |
| 所属団体 | (一社)千葉県宅地建物取引業協会会員 | ||
| 公正取引協議会 | (公社)首都圏不動産公正取引協議会加盟 | ||
| 取扱い物件情報 | 物件詳細へ | ||
※各種情報と現状に差異がある場合は、現状優先となります。問い合わせをすることで、より詳しい条件、情報を確認する事ができます。
提供:(株)マツイ(SUUMO経由)
この物件が気になったら掲載期限まであと10日
CORTESE音楽KOIWAに条件(家賃・エリア)が近い物件一覧
| 写真 | 家賃 管理費等 | 敷金 礼金 | 間取り 専有面積 | 築年数 | 最寄り駅 所在地 | キープ | 詳細 |
|---|---|---|---|---|---|---|---|
マンション パークアクシス木場キャナルイースト(1K/5階) | |||||||
![]() | 12.5万円 1万円 | 12.5万円 12.5万円 | 1K 26.55m2 | 築7年 | 東京地下鉄東西線 木場駅 徒歩12分 東京都江東区塩浜2丁目 | 詳細を見る | |
マンション プラウドフラット両国イースト(1LDK/13階) | |||||||
![]() | 20万円 1.2万円 | 20万円 なし | 1LDK 44.32m2 | 築5年 | 東京都大江戸線 両国駅 徒歩8分 東京都新宿線 菊川駅(東京) 徒歩11分 総武・中央緩行線 両国駅 徒歩13分 東京都墨田区緑3丁目 | 詳細を見る | |
マンション パークアクシス錦糸町ヴェール(ワンルーム/3階) | |||||||
![]() | 11.8万円 1.2万円 | 11.8万円 11.8万円 | ワンルーム 25.95m2 | 築10年 | 総武・中央緩行線 錦糸町駅 徒歩12分 総武本線 錦糸町駅 徒歩12分 東京地下鉄半蔵門線 錦糸町駅 徒歩12分 東京都墨田区緑4丁目 | 詳細を見る | |
マンション アルファコート東あずま(1LDK/5階) | |||||||
![]() | 16.5万円 1万円 | 16.5万円 なし | 1LDK 41.31m2 | 築4年 | 東武鉄道亀戸線 東あずま駅 徒歩7分 総武・中央緩行線 平井駅(東京) 徒歩13分 東京都墨田区立花6丁目 | 詳細を見る | |
マンション プラウドフラット両国サウス(1K/6階) | |||||||
![]() | 14.2万円 1万円 | 14.2万円 なし | 1K 25.16m2 | 築5年 | 東京都大江戸線 森下駅(東京) 徒歩8分 東京都新宿線 森下駅(東京) 徒歩8分 総武・中央緩行線 両国駅 徒歩10分 東京都墨田区千歳1丁目 | 詳細を見る | |
マンション ブランシエスタ森下(1K/9階) | |||||||
![]() | 12.6万円 1万円 | 12.6万円 12.6万円 | 1K 25.08m2 | 築6年 | 東京都新宿線 森下駅(東京) 徒歩7分 東京都大江戸線 森下駅(東京) 徒歩7分 総武・中央緩行線 両国駅 徒歩10分 東京都墨田区千歳1丁目 | 詳細を見る | |
マンション ALTERNA菊川Ⅱ(1LDK/2階) | |||||||
![]() | 19万円 1.5万円 | なし なし | 1LDK 41.59m2 | 築4年 | 東京都新宿線 菊川駅(東京) 徒歩5分 東京都大江戸線 森下駅(東京) 徒歩13分 総武本線 錦糸町駅 徒歩15分 東京都墨田区立川4丁目 | 詳細を見る | |
マンション レジディア錦糸町II(ワンルーム/4階) | |||||||
![]() | 13.2万円 1.5万円 | なし なし | ワンルーム 26.95m2 | 築19年 | 総武・中央緩行線 錦糸町駅 徒歩8分 東京地下鉄半蔵門線 錦糸町駅 徒歩8分 東京都新宿線 菊川駅(東京) 徒歩13分 東京都墨田区緑4丁目 | 詳細を見る | |


/105x80-f1-q70-wp1)






