賃貸マンション
ノガタレジデンスの賃貸物件情報(2LDK/5階)
| 家賃 | 管理費等 | 敷金 | 礼金 | 間取り | 専有面積 |
|---|---|---|---|---|---|
| 19.6万円 | 1.5万円 | 19.6万円 | なし | 2LDK | 40.88m2 |
入居決定でお祝い金最大100,000円
Point
当物件は初期費用分割払い可(クレジットカード決済も可)/お客様のご希望に合わせた方法(店頭、オンライン等)で物件をご提案いたします。初期費用のお見積りや入居希望日のご相談もお気軽にお問い合わせください
提供:アエラス荻窪店 (株)アエラス.FR(SUUMO経由)

詳細情報 ノガタレジデンス
物件紹介
ノガタレジデンスは西武新宿線野方駅から徒歩6分にあり、駅近で通勤通学に便利なマンションです。
このお部屋は2階以上に位置しているので通行人や周囲の住人からの視線が気になりにくく、建物のエントランスはオートロックがついているので防犯性が高くなっています。
こちらは楽器相談が可能な物件。楽器演奏をお考えの方はぜひ相談してみてください。バス・トイレ別の仕様で、のんびりお風呂タイムも楽しめます。また、浴室乾燥機を使えば、雨の日でもお洗濯は問題ありません。
通信設備面では、インターネット接続が可能です(別途工事、契約料が必要な場合あり)。
建物にはエレベーターがついているので、重い荷物があっても安心。共用部には宅配ボックスが設定されているので、不在の時にも荷物を受け取ることができます。また、ペット飼育の相談ができますので、あなたの大切な家族の一員も快適に暮らせるか、ぜひ確認してみてください。
このお部屋は2階以上に位置しているので通行人や周囲の住人からの視線が気になりにくく、建物のエントランスはオートロックがついているので防犯性が高くなっています。
こちらは楽器相談が可能な物件。楽器演奏をお考えの方はぜひ相談してみてください。バス・トイレ別の仕様で、のんびりお風呂タイムも楽しめます。また、浴室乾燥機を使えば、雨の日でもお洗濯は問題ありません。
通信設備面では、インターネット接続が可能です(別途工事、契約料が必要な場合あり)。
建物にはエレベーターがついているので、重い荷物があっても安心。共用部には宅配ボックスが設定されているので、不在の時にも荷物を受け取ることができます。また、ペット飼育の相談ができますので、あなたの大切な家族の一員も快適に暮らせるか、ぜひ確認してみてください。
お金・契約の情報
※「-」と表示されているものは、実際は料金が発生するものもございます。詳細はお問い合わせください。
| 家賃 | 19.6万円 | 管理費・共益費 | 1.5万円 |
|---|---|---|---|
| 敷金 | 19.6万円 | 礼金 | なし |
| 入居決定でお祝い金最大100,000円 | |||
| 保証金 | - | 償却・敷引 | - |
| 住宅保険料 | - | 更新料 | - |
| 保証会社利用 | 必須 | 保証会社名 | - |
| 保証会社費用 | - | 保証会社備考 | 保証会社利用必 初回:賃料等の50%、月次保証料:賃料等の1% |
| 契約形態 | - | 契約期間 | - |
| 入居・引渡期間 | - | 現況 | - |
| 入居可能条件 | 楽器相談、ペット相談 | ||
| 契約備考 | 大和幼稚園まで641m/白浜医院まで194m/敷金積み増し1ヵ月/1年未満解約時賃料等1ヵ月分の違約金あり/駐輪場代借主負担(使用時)/鍵交換代借主負担/室内清掃費用借主負担 合計1.98万円(内訳:M-REALpremiumclub加入費19800円) 2LDK 二人入居可/子供可/ペット相談/楽器相談 普通借家2年 損保【要】 バストイレ別、バルコニー、エアコン、浴室乾燥機、オートロック、室内洗濯置、エレベーター、駐輪場、宅配ボックス、光ファイバー、外壁タイル張り、礼金不要、防犯カメラ、敷金1ヶ月、二人入居相談、2面バルコニー、保証金不要、ルーフバルコニー、外壁コンクリート、3駅以上利用可、駅徒歩10分以内、玄関収納、高速ネット対応、初期費用カード決済可 入居日:'26年2月中旬 | ||
部屋の情報
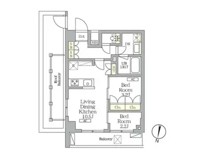
| 間取り | 2LDK | 専有面積 | 40.88m2 |
|---|---|---|---|
| 所在階 / 向き | 5階 / 北 | バルコニー面積 | - |
| 水道 / ガス | - | ||
| 設備 | バス・トイレ別、2階以上、オートロック、宅配ボックス、浴室乾燥機、インターネット対応、エアコン、エレベーター、バルコニー、洗濯機:室内 | ||
| 当社物件ID | 160347532 | ||
建物の情報
| 建物名 | ノガタレジデンス | ||
|---|---|---|---|
| 所在地 | 東京都中野区野方 | ||
| 交通 | 西武新宿線 野方駅 徒歩6分 西武新宿線 沼袋駅 徒歩15分 西武新宿線 都立家政駅 徒歩18分 | ||
| 階数 | 8階建 | 総戸数 | - |
| 築年月 | 2026年01月 / 築1年 | エレベーター | あり |
| 駐車場 | 空有 25300円 | バイク置き場 | - |
| 駐輪場 | あり | 管理人/管理会社 | - |
| 周辺環境 | その他 まいばすけっと 野方駅南口店(スーパー)まで584m その他 セブン-イレブン 中野野方駅東店(コンビニ)まで295m その他 野方薬局 本店(ドラッグストア)まで487m その他 マイカリー食堂 野方店(飲食店)まで384m その他 中野区立明和中学校(中学校)まで678m その他 中野区立啓明小学校(小学校)まで538m | ||
| 建物種別 | マンション | 建物構造 | RC(鉄筋コンクリート) |
この部屋の取扱い不動産会社
| 会社名 | アエラス荻窪店 (株)アエラス.FR(SUUMO経由) | ||
|---|---|---|---|
| 所在地 | 東京都杉並区天沼3-3-7 荻窪駅前第24大京ビル 6階 | 交通 | - |
| 営業時間 | 10:00~19:00(時間外対応出来る場合有り) | 定休日 | 第1・3・4水曜日 |
| 免許番号 | 国土交通大臣10206 | 取引態様 | 仲介 |
| 不動産会社管理番号 | 100486848479 | 当社管理番号 | 89 |
| 所属団体 | (公社)東京都宅地建物取引業協会会員 | ||
| 公正取引協議会 | (公社)首都圏不動産公正取引協議会加盟 | ||
| 取扱い物件情報 | 物件詳細へ | ||
※各種情報と現状に差異がある場合は、現状優先となります。問い合わせをすることで、より詳しい条件、情報を確認する事ができます。
提供:アエラス荻窪店 (株)アエラス.FR(SUUMO経由)
この物件が気になったら掲載期限まであと10日
ノガタレジデンスの空き部屋一覧
全部で25の空き部屋があります。
ノガタレジデンスに条件(家賃・エリア)が近い物件一覧
| 写真 | 家賃 管理費等 | 敷金 礼金 | 間取り 専有面積 | 築年数 | 最寄り駅 所在地 | キープ | 詳細 |
|---|---|---|---|---|---|---|---|
マンション 早稲田武蔵野ビル(2LDK/5階) | |||||||
![]() | 21万円 5,000円 | 21万円 21万円 | 2LDK 59.13m2 | 築37年 | 東京メトロ東西線 早稲田駅(メトロ) 徒歩1分 都電荒川線 早稲田駅(都電) 徒歩9分 都営大江戸線 若松河田駅 徒歩15分 東京都新宿区馬場下町 | 詳細を見る | |
マンション ステージグランデ東武練馬(1LDK/5階) | |||||||
![]() | 14.4万円 1万円 | 14.4万円 14.4万円 | 1LDK 40.71m2 | 築4年 | 東武鉄道東上線 東武練馬駅 徒歩10分 東京都練馬区北町3丁目 | 詳細を見る | |
マンション レジディア幡ヶ谷(1LDK/7階) | |||||||
![]() | 20万円 2万円 | 20万円 なし | 1LDK 41.78m2 | 築21年 | 京王新線 幡ケ谷駅 徒歩5分 京王新線 初台駅 徒歩12分 小田急線 代々木上原駅 徒歩18分 東京都渋谷区本町 | 詳細を見る | |
マンション グランドメゾン永福町(1LDK/2階) | |||||||
![]() | 14万円 1万円 | 14万円 14万円 | 1LDK 43.22m2 | 築26年 | 京王井の頭線 永福町駅 徒歩8分 京王線 下高井戸駅 徒歩11分 京王井の頭線 明大前駅 徒歩18分 東京都杉並区永福 | 詳細を見る | |
マンション パークルール恵比寿(1LDK/2階) | |||||||
![]() | 19.85万円 3万円 | なし なし | 1LDK 27.02m2 | 築7年 | JR山手線 恵比寿駅 徒歩8分 東京メトロ日比谷線 広尾駅 徒歩8分 東京都渋谷区恵比寿 | 詳細を見る | |
マンション アレーズ南池袋(1K/7階) | |||||||
![]() | 11.9万円 8,000円 | なし 11.9万円 | 1K 27.09m2 | 築14年 | 東京地下鉄有楽町線 東池袋駅 徒歩4分 東京都豊島区南池袋4丁目 | 詳細を見る | |
マンション クリオ ラモード新江古田サウンドテラス(1SLDK/3階) | |||||||
![]() | 21.1万円 1.5万円 | なし なし | 1SLDK 45.43m2 | 築1年 | 都営大江戸線 新江古田駅 徒歩7分 西武池袋線 江古田駅 徒歩14分 東京都練馬区豊玉北 | 詳細を見る | |
マンション LEONETERRACENAKANO(1LDK/2階) | |||||||
![]() | 13万円 1.5万円 | なし なし | 1LDK 25m2 | 築2年 | JR中央線 中野駅(東京) 徒歩11分 西武新宿線 沼袋駅 徒歩12分 東京都中野区新井 | 詳細を見る | |



/105x80-f1-q70-wp1)



/105x80-f1-q70-wp1)

