賃貸マンション
コンフォリア・リヴ淡路の賃貸物件情報(1LDK/4階)
| 家賃 | 管理費等 | 敷金 | 礼金 | 間取り | 専有面積 |
|---|---|---|---|---|---|
| 9.8万円 | 1.2万円 | なし | 9.8万円 | 1LDK | 29.01m2 |
入居決定でお祝い金最大100,000円
Point
新築◆2026年5月1日入居開始◆ネットWI−FI無料
提供:アパマンショップ吹田店

詳細情報 コンフォリア・リヴ淡路
物件紹介
コンフォリア・リヴ淡路はおおさか東線JR淡路駅から徒歩1分にあり、駅近で通勤通学に便利なマンションです。
このお部屋は2階以上に位置しているので、通行人や周囲の住人からの視線が気になりにくく、防犯面でも安心。建物のエントランスはオートロックがついており、インターホンにはTVモニタもついているため、相手の顔を確認してから来客対応することができます。
おしゃれなデザイナーズ物件!人気の南向き・フローリングのお部屋。角部屋でもあるため、周囲の居住者の生活音も気になりにくい場所です。室内にはウォークインクローゼットがありますので、たくさんの荷物も効率的に収納ができます。キッチンはシステムキッチン仕様になっていますので、お料理好きの方にもぴったり。バス・トイレは別なので、のんびりお風呂タイムも楽しめるでしょう。また、雨の日でも浴室乾燥機を使えば、お洗濯も問題ありません。
通信設備面では、インターネットが無料で使えるので、月々の出費を抑えられるのも魅力です。また、BSアンテナ・CSアンテナがありCATVにも対応しているので、おうち時間も充実するでしょう(別途工事、BS・CS・CATVの契約料等が必要な場合あり)。
建物にはエレベーターがついているので、重い荷物があっても安心。共用部には宅配ボックスが設定されているので、不在の時にも荷物を受け取ることができます。また、ペット飼育の相談ができますので、あなたの大切な家族の一員も快適に暮らせるか、ぜひ確認してみてください。
コンビニまで徒歩3分の場所にあり、日用品や食料品のお買い物にも便利です。
このお部屋は2階以上に位置しているので、通行人や周囲の住人からの視線が気になりにくく、防犯面でも安心。建物のエントランスはオートロックがついており、インターホンにはTVモニタもついているため、相手の顔を確認してから来客対応することができます。
おしゃれなデザイナーズ物件!人気の南向き・フローリングのお部屋。角部屋でもあるため、周囲の居住者の生活音も気になりにくい場所です。室内にはウォークインクローゼットがありますので、たくさんの荷物も効率的に収納ができます。キッチンはシステムキッチン仕様になっていますので、お料理好きの方にもぴったり。バス・トイレは別なので、のんびりお風呂タイムも楽しめるでしょう。また、雨の日でも浴室乾燥機を使えば、お洗濯も問題ありません。
通信設備面では、インターネットが無料で使えるので、月々の出費を抑えられるのも魅力です。また、BSアンテナ・CSアンテナがありCATVにも対応しているので、おうち時間も充実するでしょう(別途工事、BS・CS・CATVの契約料等が必要な場合あり)。
建物にはエレベーターがついているので、重い荷物があっても安心。共用部には宅配ボックスが設定されているので、不在の時にも荷物を受け取ることができます。また、ペット飼育の相談ができますので、あなたの大切な家族の一員も快適に暮らせるか、ぜひ確認してみてください。
コンビニまで徒歩3分の場所にあり、日用品や食料品のお買い物にも便利です。
お金・契約の情報
※「-」と表示されているものは、実際は料金が発生するものもございます。詳細はお問い合わせください。
| 家賃 | 9.8万円 | 管理費・共益費 | 1.2万円 |
|---|---|---|---|
| 敷金 | なし | 礼金 | 9.8万円 |
| 入居決定でお祝い金最大100,000円 | |||
| 保証金 | - | 償却・敷引 | - |
| 住宅保険料 | 1.655万円(2年) | 更新料 | - |
| 保証会社利用 | 必須 | 保証会社名 | エポスカード(RP) |
| 保証会社費用 | - | 保証会社備考 | 保証料:賃料等の50%(最低2万)、月額保証料:賃料等の1%(更新料無) |
| 契約形態 | - | 契約期間 | 2年 |
| 入居・引渡期間 | 2026年05月上旬 | 現況 | - |
| 契約備考 | 小型犬:不可、大型犬:不可、猫:不可 清掃費 27500円/エアコン清掃費 8250円/駐輪場ステッカー 440円/鍵交換代 22000円 | ||
部屋の情報
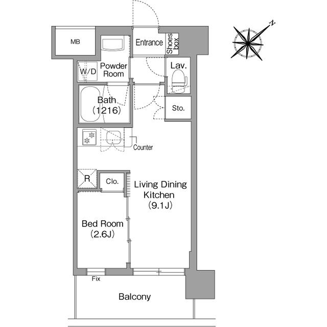
| 間取り | 1LDK | 専有面積 | 29.01m2 |
|---|---|---|---|
| 間取り詳細 | LDK(9.1帖)、洋室(2.6帖) | ||
| 所在階 / 向き | 4階 / 南東 | バルコニー面積 | - |
| 水道 / ガス | - | ||
| 設備 | バス・トイレ別、オートロック、テレビドアホン、宅配ボックス、浴室乾燥機、エレベーター、CATV、洗濯機:室内 | ||
| 当社物件ID | 159830830 | ||
建物の情報
| 建物名 | コンフォリア・リヴ淡路 | ||
|---|---|---|---|
| 所在地 | 大阪府大阪市東淀川区菅原5丁目 | ||
| 交通 | 阪急電鉄京都線 淡路駅 徒歩4分 | ||
| 階数 | 10階建 | 総戸数 | 55戸 |
| 築年月 | 2026年04月 / 新築 | エレベーター | あり |
| 駐車場 | - | バイク置き場 | - |
| 駐輪場 | あり | 管理人/管理会社 | - |
| 建物種別 | マンション | 建物構造 | RC(鉄筋コンクリート) |
この部屋の取扱い不動産会社
| 会社名 | アパマンショップ野田阪神店 | ||
|---|---|---|---|
| 所在地 | 大阪府大阪市福島区海老江2丁目 1-41ネクサスステーション野田1F | 交通 | 大阪市千日前線野田阪神から徒歩1分 |
| 営業時間 | 10:00〜19:30(時間外も対応可能です※要予約) | 定休日 | - |
| 免許番号 | 大阪府知事(4)53800 | 取引態様 | 仲介 |
| 不動産会社管理番号 | 111257521 | 当社管理番号 | 4 |
| 所属団体 | (公社)全国宅地建物取引業協会連合会 | ||
| 公正取引協議会 | (公社) 近畿地区不動産公正取引協議会加盟 | ||
| 取扱い物件情報 | 物件詳細へ | ||
※各種情報と現状に差異がある場合は、現状優先となります。問い合わせをすることで、より詳しい条件、情報を確認する事ができます。
提供:アパマンショップ野田阪神店
この物件が気になったら掲載期限まであと10日
コンフォリア・リヴ淡路の空き部屋一覧
全部で24の空き部屋があります。
コンフォリア・リヴ淡路に条件(家賃・エリア)が近い物件一覧
| 写真 | 家賃 管理費等 | 敷金 礼金 | 間取り 専有面積 | 築年数 | 最寄り駅 所在地 | キープ | 詳細 |
|---|---|---|---|---|---|---|---|
マンション スプランディッドライズ新大阪ノース(1LDK/8階) | |||||||
| 11.75万円 1万円 | なし 11.75万円 | 1LDK 35.02m2 | 新築 | 東海道本線 東淀川駅 徒歩3分 大阪市御堂筋線 新大阪駅 徒歩12分 大阪市御堂筋線 東三国駅 徒歩14分 大阪府大阪市東淀川区西淡路1丁目11-3-1部 | 詳細を見る | ||
マンション 協同レジデンス千里丘(1LDK/5階) | |||||||
| 9.3万円 8,000円 | なし 18.6万円 | 1LDK 43m2 | 築20年 | 東海道本線 千里丘駅 徒歩1分 阪急電鉄京都線 摂津市駅 徒歩10分 大阪モノレール本線 摂津駅 徒歩19分 大阪府摂津市千里丘東3丁目3-8-20 | 詳細を見る | ||
マンション ファーストフィオーレ吹田レガーメ(1K/4階) | |||||||
| 6.639万円 5,510円 | なし 13.278万円 | 1K 22.05m2 | 築1年 | 東海道本線 岸辺駅 徒歩3分 阪急電鉄京都線 正雀駅 徒歩6分 阪急電鉄京都線 摂津市駅 徒歩26分 大阪府吹田市岸部南1丁目18-3 | 詳細を見る | ||
マンション レオパレス吉川(1K/3階) | |||||||
| 7.1万円 5,000円 | なし 7.1万円 | 1K 19.87m2 | 築19年 | 阪急電鉄京都線 正雀駅 徒歩18分 大阪市今里筋線 井高野駅 徒歩20分 大阪モノレール本線 南摂津駅 徒歩22分 大阪府摂津市東別府5丁目4-21 | 詳細を見る | ||
マンション スプランディッド新大阪イースト(1DK/2階) | |||||||
| 8.9万円 1万円 | なし なし | 1DK 28.24m2 | 築5年 | 東海道本線 東淀川駅 徒歩9分 阪急電鉄千里線 淡路駅 徒歩9分 阪急電鉄京都線 崇禅寺駅 徒歩11分 大阪府大阪市東淀川区淡路1丁目26-13 | 詳細を見る | ||
マンション 新大阪第一ダイヤモンドマンション(1LDK/10階) | |||||||
![]() | 8.7万円 6,000円 | 5万円 17.4万円 | 1LDK 42.12m2 | 築52年 | 東海道本線 新大阪駅 徒歩9分 阪急電鉄京都線 崇禅寺駅 徒歩10分 大阪市御堂筋線 西中島南方駅 徒歩13分 大阪府大阪市東淀川区東中島1丁目 | 詳細を見る | |
マンション AILE柴島(1K/1階) | |||||||
| 7.15万円 1.1万円 | なし 7.15万円 | 1K 23.47m2 | 築1年 | 阪急電鉄千里線 柴島駅 徒歩13分 阪急電鉄京都線 崇禅寺駅 徒歩20分 阪急電鉄京都線 南方駅(大阪) 徒歩21分 大阪府大阪市東淀川区柴島2丁目未 | 詳細を見る | ||
アパート HMAISON衣摺(1LDK/3階) | |||||||
![]() | 6.4万円 5,000円 | なし なし | 1LDK 27.58m2 | 築1年 | おおさか東線 衣摺加美北駅 徒歩5分 おおさか東線 JR長瀬駅 徒歩18分 近鉄大阪線 弥刀駅 徒歩21分 大阪府東大阪市衣摺5丁目 | 詳細を見る | |


