賃貸マンション
AZEST阪東橋IIの賃貸物件情報(ワンルーム/4階)
| 家賃 | 管理費等 | 敷金 | 礼金 | 間取り | 専有面積 |
|---|---|---|---|---|---|
| 9万円 | 1万円 | なし | なし | ワンルーム | 25.19m2 |
入居決定でお祝い金最大100,000円
- 保証金
- -
- 償却・敷引
- -
- 築年数
- 築1年
- 所在階
- 4階
- 向き
- 南西
Point
【チャットで気軽にご相談可能】都心にアクセス良好でON/OFF充実♪女性も安心できるオートロック・こだわり設備のお部屋★日常生活に便利なロケーション★オンライン相談や現地待ち合わせなどもご相談下さい!
提供:(株)クレアスレント横浜店(SUUMO経由)

詳細情報 AZEST阪東橋II
物件紹介
AZEST阪東橋IIはブルーライン阪東橋駅から徒歩5分にあり、駅近で通勤通学に便利なマンションです。
このお部屋は2階以上に位置しているので、通行人や周囲の住人からの視線が気になりにくく、防犯面でも安心。建物のエントランスはオートロックがついており、インターホンにはTVモニタもついているため、相手の顔を確認してから来客対応することができます。
おしゃれなデザイナーズ物件!人気の南向きのお部屋。また、フローリングなのでお掃除もラクラク。キッチンはシステムキッチン仕様になっていますので、お料理好きの方にもぴったり。バス・トイレは別なので、のんびりお風呂タイムも楽しめるでしょう。また、雨の日でも浴室乾燥機を使えば、お洗濯も問題ありません。
通信設備面では、インターネットが無料で使えるので、月々の出費を抑えられるのも魅力です(別途工事等が必要な場合あり)。
建物にはエレベーターがついているので、重い荷物があっても安心。共用部には宅配ボックスが設定されているので、不在の時にも荷物を受け取ることができます。
このお部屋は2階以上に位置しているので、通行人や周囲の住人からの視線が気になりにくく、防犯面でも安心。建物のエントランスはオートロックがついており、インターホンにはTVモニタもついているため、相手の顔を確認してから来客対応することができます。
おしゃれなデザイナーズ物件!人気の南向きのお部屋。また、フローリングなのでお掃除もラクラク。キッチンはシステムキッチン仕様になっていますので、お料理好きの方にもぴったり。バス・トイレは別なので、のんびりお風呂タイムも楽しめるでしょう。また、雨の日でも浴室乾燥機を使えば、お洗濯も問題ありません。
通信設備面では、インターネットが無料で使えるので、月々の出費を抑えられるのも魅力です(別途工事等が必要な場合あり)。
建物にはエレベーターがついているので、重い荷物があっても安心。共用部には宅配ボックスが設定されているので、不在の時にも荷物を受け取ることができます。
お金・契約の情報
※「-」と表示されているものは、実際は料金が発生するものもございます。詳細はお問い合わせください。
| 家賃 | 9万円 | 管理費・共益費 | 1万円 |
|---|---|---|---|
| 敷金 | なし | 礼金 | なし |
| 入居決定でお祝い金最大100,000円 | |||
| 保証金 | - | 償却・敷引 | - |
| 住宅保険料 | - | 更新料 | - |
| 保証会社利用 | 必須 | 保証会社名 | - |
| 保証会社費用 | - | 保証会社備考 | 保証会社利用必 初回保証料50%(最低保証料20 000円)、継続保証料毎月1 000円、引落時口座振替手数料440円 |
| 契約形態 | - | 契約期間 | - |
| 入居・引渡期間 | 即時 | 現況 | - |
| 契約備考 | 保証会社利用必須、更新事務手数料有※仕様・図面・写真等に相違があった場合は現況を優先します 更新料 新賃料1.00ヶ月分 ワンルーム 普通借家2年 損保【1.8万円2年】 バストイレ別、バルコニー、エアコン、ガスコンロ対応、クロゼット、フローリング、TVインターホン、浴室乾燥機、オートロック、室内洗濯置、シューズボックス、システムキッチン、温水洗浄便座、脱衣所、エレベーター、洗面所独立、洗面化粧台、2口コンロ、駐輪場、宅配ボックス、即入居可、礼金不要、敷金不要、防犯カメラ、分譲賃貸、デザイナーズ、ディンプルキー、ネット使用料不要、ダブルロックキー、24時間換気システム、3駅以上利用可、3沿線以上利用可、24時間ゴミ出し可、敷地内ごみ置き場、都市ガス、敷金・礼金不要 | ||
部屋の情報
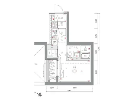
| 間取り | ワンルーム | 専有面積 | 25.19m2 |
|---|---|---|---|
| 所在階 / 向き | 4階 / 南西 | バルコニー面積 | - |
| 水道 / ガス | - | ||
| 設備 | バス・トイレ別、2階以上、オートロック、テレビドアホン、宅配ボックス、浴室乾燥機、インターネット対応、システムキッチン、エアコン、エレベーター、温水洗浄便座、南向き、バルコニー、フローリング、洗髪洗面化粧台、2口コンロ、コンロ:ガス、デザイナーズ、インターネット使用料無料、洗濯機:室内 | ||
| 当社物件ID | 159721742 | ||
建物の情報
| 建物名 | AZEST阪東橋II | ||
|---|---|---|---|
| 所在地 | 神奈川県横浜市南区浦舟町 | ||
| 交通 | ブルーライン 阪東橋駅 徒歩5分 京急本線 黄金町駅 徒歩10分 JR京浜東北線 関内駅 徒歩19分 | ||
| 階数 | 10階建 | 総戸数 | - |
| 築年月 | 2025年09月 / 築1年 | エレベーター | あり |
| 駐車場 | なし | バイク置き場 | - |
| 駐輪場 | あり | 管理人/管理会社 | - |
| 周辺環境 | その他 ココス 横浜阪東橋店(飲食店)まで364m その他 まいばすけっと 横浜高根町3丁目店(スーパー)まで358m その他 セブンイレブン 横浜白妙町2丁目店(コンビニ)まで194m その他 コインランドリー/ピエロ 221号万世町店(その他)まで496m その他 エニタイムフィットネス 阪東橋店(その他)まで506m その他 すき家 横浜橋店(飲食店)まで514m | ||
| 建物種別 | マンション | 建物構造 | RC(鉄筋コンクリート) |
この部屋の取扱い不動産会社
| 会社名 | (株)クレアスレント横浜店(SUUMO経由) | ||
|---|---|---|---|
| 所在地 | 神奈川県横浜市神奈川区台町 17-1 マストビル7階 | 交通 | - |
| 営業時間 | 10時~19時 | 定休日 | 毎週水曜日・GW・夏季・年末年 |
| 免許番号 | 国土交通大臣10473 | 取引態様 | 仲介 |
| 不動産会社管理番号 | 100471900626 | 当社管理番号 | 89 |
| 所属団体 | (公社)東京都宅地建物取引業協会会員 | ||
| 公正取引協議会 | (公社)首都圏不動産公正取引協議会加盟 | ||
| 取扱い物件情報 | 物件詳細へ | ||
※各種情報と現状に差異がある場合は、現状優先となります。問い合わせをすることで、より詳しい条件、情報を確認する事ができます。
提供:(株)クレアスレント横浜店(SUUMO経由)
この物件が気になったら掲載期限まであと10日
AZEST阪東橋IIの空き部屋一覧
全部で31の空き部屋があります。
AZEST阪東橋IIに条件(家賃・エリア)が近い物件一覧
| 写真 | 家賃 管理費等 | 敷金 礼金 | 間取り 専有面積 | 築年数 | 最寄り駅 所在地 | キープ | 詳細 |
|---|---|---|---|---|---|---|---|
アパート レオパレスレアル(1K/2階) | |||||||
![]() | 8.4万円 5,500円 | なし 8.4万円 | 1K 19.87m2 | 築23年 | 南武線 武蔵中原駅 徒歩14分 神奈川県川崎市中原区宮内2丁目 | 詳細を見る | |
マンション リブリグランドフェリス(1K/1階) | |||||||
![]() | 8.3万円 4,000円 | なし 12.45万円 | 1K 24.84m2 | 築8年 | 東急田園都市線 宮前平駅 徒歩7分 東急田園都市線 鷺沼駅 徒歩11分 東急田園都市線 宮崎台駅 徒歩19分 神奈川県川崎市宮前区有馬 | 詳細を見る | |
マンション エーゲリア(1LDK/1階) | |||||||
![]() | 11.2万円 1万円 | なし 22.4万円 | 1LDK 51.71m2 | 新築 | 相鉄本線 相模大塚駅 徒歩2分 相鉄本線 さがみ野駅 徒歩17分 相鉄本線 大和駅(神奈川) 徒歩26分 神奈川県大和市桜森 | 詳細を見る | |
マンション リビオン(1K/2階) | |||||||
![]() | 7.3万円 4,000円 | 7.3万円 7.3万円 | 1K 27.35m2 | 築17年 | 神奈川県川崎市川崎区渡田4丁目 | 詳細を見る | |
マンション コーポベルウッド(2K/2階) | |||||||
![]() | 6.5万円 なし | なし なし | 2K 32.23m2 | 築35年 | JR南武線 鹿島田駅 徒歩21分 JR南武線 矢向駅 徒歩21分 JR横須賀線 新川崎駅 徒歩25分 神奈川県川崎市幸区小向西町 | 詳細を見る | |
マンション アイルイムーブル弘明寺(1K/7階) | |||||||
![]() | 7.4万円 1.2万円 | 7.4万円 7.4万円 | 1K 24m2 | 築10年 | ブルーライン 弘明寺駅(横浜市営) 徒歩7分 ブルーライン 蒔田駅 徒歩9分 京急本線 弘明寺駅(京急) 徒歩14分 神奈川県横浜市南区通町 | 詳細を見る | |
マンション KNOTS新丸子(1K/1階) | |||||||
![]() | 9.5万円 1万円 | なし なし | 1K 20.73m2 | 築2年 | 東急東横線 新丸子駅 徒歩8分 東急目黒線 多摩川駅 徒歩13分 JR南武線 武蔵小杉駅 徒歩15分 神奈川県川崎市中原区丸子通 | 詳細を見る | |








