賃貸マンション
メインステージ荻窪の賃貸物件情報(1K/2階)
| 家賃 | 管理費等 | 敷金 | 礼金 | 間取り | 専有面積 |
|---|---|---|---|---|---|
| 7.3万円 | 6,000円 | なし | 7.3万円 | 1K | 20.88m2 |
入居決定でお祝い金最大100,000円
- 保証金
- -
- 償却・敷引
- -
- 築年数
- 築26年
- 所在階
- 2階
- 向き
- -
Point
まずはお問い合わせ!
不動産会社は街のプロ、あなたに合った物件がきっと見つかります。
提供:アエラス荻窪店 (株)アエラス.FR(SUUMO経由)

詳細情報 メインステージ荻窪
物件紹介
メインステージ荻窪はJR総武線荻窪駅から徒歩13分にあるマンションです。
このお部屋は2階以上に位置しているので、通行人や周囲の住人からの視線が気になりにくく、防犯面でも安心。建物のエントランスはオートロックがついており、インターホンにはTVモニタもついているため、相手の顔を確認してから来客対応することができます。
おしゃれなデザイナーズ物件!フローリングのお部屋なのでお掃除もラクラク。キッチンはシステムキッチン仕様になっていますので、お料理好きの方にもぴったり。また、バス・トイレは別で、のんびりお風呂タイムも楽しめるでしょう。
通信設備面では、インターネット接続が可能です。また、BSアンテナ・CSアンテナがありCATVにも対応しているので、おうち時間も充実するでしょう(別途工事、契約料が必要な場合あり)。
建物にはエレベーターがついているので、重い荷物があっても安心。共用部には宅配ボックスが設定されているので、不在の時にも荷物を受け取ることができます。
このお部屋は2階以上に位置しているので、通行人や周囲の住人からの視線が気になりにくく、防犯面でも安心。建物のエントランスはオートロックがついており、インターホンにはTVモニタもついているため、相手の顔を確認してから来客対応することができます。
おしゃれなデザイナーズ物件!フローリングのお部屋なのでお掃除もラクラク。キッチンはシステムキッチン仕様になっていますので、お料理好きの方にもぴったり。また、バス・トイレは別で、のんびりお風呂タイムも楽しめるでしょう。
通信設備面では、インターネット接続が可能です。また、BSアンテナ・CSアンテナがありCATVにも対応しているので、おうち時間も充実するでしょう(別途工事、契約料が必要な場合あり)。
建物にはエレベーターがついているので、重い荷物があっても安心。共用部には宅配ボックスが設定されているので、不在の時にも荷物を受け取ることができます。
お金・契約の情報
※「-」と表示されているものは、実際は料金が発生するものもございます。詳細はお問い合わせください。
| 家賃 | 7.3万円 | 管理費・共益費 | 6,000円 |
|---|---|---|---|
| 敷金 | なし | 礼金 | 7.3万円 |
| 入居決定でお祝い金最大100,000円 | |||
| 保証金 | - | 償却・敷引 | - |
| 住宅保険料 | - | 更新料 | - |
| 保証会社利用 | 必須 | 保証会社名 | - |
| 保証会社費用 | - | 保証会社備考 | 保証会社利用必 初回保証料:月額総賃料の40% 更新保証料:10 000円 |
| 契約形態 | - | 契約期間 | - |
| 入居・引渡期間 | 相談 | 現況 | - |
| 契約備考 | 巡回管理/■違約金/1年未満の解約:家賃1ヶ月【他のお部屋も見てみたいお客様へ】弊社は総合仲介で掲載中の物件以外のお部屋もご紹介が可能です♪また、ご条件をお伝えいただけましたらより理想に近い物件をお探し致します!気になる物件やこだわりの条件などございましたら、お気軽にお問い合わせ下さい♪ 合計4.32万円(内訳:室内消毒代1.9万円鍵交換代2.42万円) 更新料 新賃料1.50ヶ月分 24時間サポート 月額1100円 1K 普通借家2年 損保【1.8万円2年】 バストイレ別、バルコニー、エアコン、ガスコンロ対応、クロゼット、フローリング、TVインターホン、オートロック、室内洗濯置、陽当り良好、シューズボックス、システムキッチン、エレベーター、駐輪場、宅配ボックス、CATV、外壁タイル張り、閑静な住宅地、BS・CS、敷金不要、防犯カメラ、照明付、全居室収納、分譲賃貸、全居室洋室、保証人不要、24時間緊急通報システム、全居室フローリング、ガスレンジ付、デザイナーズ、2沿線利用可、CS、ネット専用回線、エアコン全室、保証金不要、24時間換気システム、耐震構造、2駅利用可、3駅以上利用可、3沿線以上利用可、24時間ゴミ出し可、風除室、敷地内ごみ置き場、全居室6畳以上、都市ガス、玄関収納、BS、LAN、保証会社利用可、IT重説対応物件、初期費用カード決済可、全室照明付、通風良好 | ||
部屋の情報
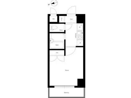
| 間取り | 1K | 専有面積 | 20.88m2 |
|---|---|---|---|
| 所在階 / 向き | 2階 / - | バルコニー面積 | - |
| 水道 / ガス | - | ||
| 設備 | バス・トイレ別、2階以上、オートロック、テレビドアホン、宅配ボックス、インターネット対応、システムキッチン、エアコン、エレベーター、バルコニー、フローリング、コンロ:ガス、デザイナーズ、CATV、CSアンテナ、BSアンテナ、洗濯機:室内 | ||
| 当社物件ID | 101714271 | ||
建物の情報
| 建物名 | メインステージ荻窪 | ||
|---|---|---|---|
| 所在地 | 東京都杉並区荻窪 | ||
| 交通 | JR中央線 荻窪駅 徒歩13分 京王井の頭線 高井戸駅 徒歩16分 東京メトロ丸ノ内線 南阿佐ケ谷駅 徒歩26分 | ||
| 階数 | 8階建 | 総戸数 | 43戸 |
| 築年月 | 2000年12月 / 築26年 | エレベーター | あり |
| 駐車場 | なし | バイク置き場 | - |
| 駐輪場 | あり | 管理人/管理会社 | - |
| 周辺環境 | その他 西友 高井戸東店(スーパー)まで358m その他 セブンイレブン 荻窪桃二小南店(コンビニ)まで567m | ||
| 建物種別 | マンション | 建物構造 | RC(鉄筋コンクリート) |
この部屋の取扱い不動産会社
| 会社名 | RIUMM(株)(SUUMO経由) | ||
|---|---|---|---|
| 所在地 | 東京都新宿区西新宿7-10-7 加賀谷ビル9階 | 交通 | - |
| 営業時間 | 10:00~19:00 | 定休日 | 水曜日 |
| 免許番号 | 東京都知事99508 | 取引態様 | 仲介 |
| 不動産会社管理番号 | 100483012002 | 当社管理番号 | 89 |
| 所属団体 | (公社)全日本不動産協会東京都本部会員 | ||
| 公正取引協議会 | (公社)首都圏不動産公正取引協議会加盟 | ||
| 取扱い物件情報 | 物件詳細へ | ||
※各種情報と現状に差異がある場合は、現状優先となります。問い合わせをすることで、より詳しい条件、情報を確認する事ができます。
提供:RIUMM(株)(SUUMO経由)
この物件が気になったら掲載期限まであと10日
メインステージ荻窪に条件(家賃・エリア)が近い物件一覧
| 写真 | 家賃 管理費等 | 敷金 礼金 | 間取り 専有面積 | 築年数 | 最寄り駅 所在地 | キープ | 詳細 |
|---|---|---|---|---|---|---|---|
アパート ホークハイツ(1K/1階) | |||||||
![]() | 4.8万円 2,000円 | 4.8万円 4.8万円 | 1K 19.87m2 | 築36年 | 東京都三鷹市新川 | 詳細を見る | |
マンション アイ・エステート阿佐ヶ谷(ワンルーム/4階) | |||||||
![]() | 6.4万円 3,000円 | 6.4万円 6.4万円 | ワンルーム 18.5m2 | 築30年 | 東京地下鉄丸ノ内線 南阿佐ケ谷駅 徒歩5分 総武・中央緩行線 阿佐ケ谷駅 徒歩9分 東京都杉並区阿佐谷南3丁目 | 詳細を見る | |
マンション メゾン・ド・武蔵野(1K/3階) | |||||||
![]() | 5万円 3,000円 | 5万円 5万円 | 1K 19.09m2 | 築44年 | 中央本線 武蔵境駅 徒歩13分 東京都三鷹市井口1丁目 | 詳細を見る | |
マンション サンモール鈴木(2K/5階) | |||||||
![]() | 11.2万円 9,000円 | 11.2万円 11.2万円 | 2K 39.6m2 | 築38年 | 東京メトロ丸ノ内線 方南町駅 徒歩2分 京王井の頭線 永福町駅 徒歩21分 京王線 代田橋駅 徒歩22分 東京都杉並区和泉 | 詳細を見る | |
マンション BREEZE MAISON HIKAWADAI(1K/1階) | |||||||
![]() | 8.7万円 5,000円 | 8.7万円 8.7万円 | 1K 25.77m2 | 築6年 | 東京メトロ副都心線 氷川台駅 徒歩11分 東京メトロ有楽町線 氷川台駅 徒歩11分 東武東上線 上板橋駅 徒歩23分 東京都練馬区氷川台 | 詳細を見る | |
マンション ロイヤルコート武蔵境(1K/2階) | |||||||
![]() | 7.7万円 1.2万円 | 7.7万円 15.4万円 | 1K 20m2 | 築31年 | JR中央線 武蔵境駅 徒歩8分 JR中央線 東小金井駅 徒歩23分 JR中央線 三鷹駅 徒歩29分 東京都三鷹市井口 | 詳細を見る | |
マンション パークウェル高円寺駅前(1K/4階) | |||||||
![]() | 9.1万円 なし | 9.1万円 9.1万円 | 1K 21.2m2 | 築24年 | JR総武線 高円寺駅 徒歩1分 東京メトロ丸ノ内線 新高円寺駅 徒歩12分 東京メトロ丸ノ内線 東高円寺駅 徒歩16分 東京都杉並区高円寺北 | 詳細を見る | |




/105x80-f1-q70-wp1)



