賃貸マンション
コンフォリア品川イーストの賃貸物件情報(1K/12階)
| 家賃 | 管理費等 | 敷金 | 礼金 | 間取り | 専有面積 |
|---|---|---|---|---|---|
| 12.9万円 | 8,000円 | 12.9万円 | なし | 1K | 22.63m2 |
入居決定でお祝い金最大100,000円
- 保証金
- -
- 償却・敷引
- -
- 築年数
- 築12年
- 所在階
- 12階
- 向き
- 北西
Point
オンライン内見・契約実施!気になる物件はまとめてご案内可能です!初期費用クレカ決済もご相談ください!
提供:恵比寿不動産 恵比寿店(株)ライフアドバンス(SUUMO経由)

詳細情報 コンフォリア品川イースト
物件紹介
コンフォリア品川イーストは京急本線北品川駅から徒歩5分にあり、駅近で通勤通学に便利なマンションです。
このお部屋は2階以上に位置しているので、通行人や周囲の住人からの視線が気になりにくく、防犯面でも安心。建物のエントランスはオートロックがついており、インターホンにはTVモニタもついているため、相手の顔を確認してから来客対応することができます。
フローリングのお部屋なのでお掃除もラクラク。キッチンはシステムキッチン仕様になっていますので、お料理好きの方にもぴったり。バス・トイレは別なので、のんびりお風呂タイムも楽しめるでしょう。また、雨の日でも浴室乾燥機を使えば、お洗濯も問題ありません。
通信設備面では、インターネットが無料で使えるので、月々の出費を抑えられるのも魅力です(別途工事等が必要な場合あり)。
建物にはエレベーターがついているので、重い荷物があっても安心。共用部には宅配ボックスが設定されているので、不在の時にも荷物を受け取ることができます。また、ペット飼育の相談ができますので、あなたの大切な家族の一員も快適に暮らせるか、ぜひ確認してみてください。
このお部屋は2階以上に位置しているので、通行人や周囲の住人からの視線が気になりにくく、防犯面でも安心。建物のエントランスはオートロックがついており、インターホンにはTVモニタもついているため、相手の顔を確認してから来客対応することができます。
フローリングのお部屋なのでお掃除もラクラク。キッチンはシステムキッチン仕様になっていますので、お料理好きの方にもぴったり。バス・トイレは別なので、のんびりお風呂タイムも楽しめるでしょう。また、雨の日でも浴室乾燥機を使えば、お洗濯も問題ありません。
通信設備面では、インターネットが無料で使えるので、月々の出費を抑えられるのも魅力です(別途工事等が必要な場合あり)。
建物にはエレベーターがついているので、重い荷物があっても安心。共用部には宅配ボックスが設定されているので、不在の時にも荷物を受け取ることができます。また、ペット飼育の相談ができますので、あなたの大切な家族の一員も快適に暮らせるか、ぜひ確認してみてください。
お金・契約の情報
※「-」と表示されているものは、実際は料金が発生するものもございます。詳細はお問い合わせください。
| 家賃 | 12.9万円 | 管理費・共益費 | 8,000円 |
|---|---|---|---|
| 敷金 | 12.9万円 | 礼金 | なし |
| 入居決定でお祝い金最大100,000円 | |||
| 保証金 | - | 償却・敷引 | - |
| 住宅保険料 | - | 更新料 | - |
| 保証会社利用 | 必須 | 保証会社名 | - |
| 保証会社費用 | - | 保証会社備考 | 保証会社利用必 保証料:賃料等の50%(最低2万)、月額保証料:賃料等の1%(更新料無) |
| 契約形態 | - | 契約期間 | - |
| 入居・引渡期間 | 相談 | 現況 | - |
| 入居可能条件 | ペット相談 | ||
| 契約備考 | ・礼金ゼロ※1年以内解約時賃料1か月分違約金有・ペット相談:小型犬1匹又は猫2匹迄、敷金1ヶ月積増・鍵交換費用:33000円・退去時清掃費33000円、エアコン清掃費11000円・指定保証会社利用必須※一部法人契約除く、敷金積み増し・更新料:新賃料1か月・保証料:賃料等の50%(最低2万)、月額保証料は賃料等の1%(更新料無) 合計3.3万円(内訳:鍵交換代3.3万円) 更新料 新賃料1.00ヶ月分 室内清掃費用 33000円 1K ペット相談 普通借家2年 損保【1.66万円2年】 バストイレ別、バルコニー、エアコン、ガスコンロ対応、フローリング、TVインターホン、浴室乾燥機、オートロック、室内洗濯置、シューズボックス、システムキッチン、追焚機能浴室、温水洗浄便座、エレベーター、洗面所独立、2口コンロ、駐輪場、宅配ボックス、礼金不要、最上階、防犯カメラ、ペット相談、全居室フローリング、ガスレンジ付、2沿線利用可、ディンプルキー、ネット専用回線、ネット使用料不要、エアコン全室、保証金不要、耐火構造、2駅利用可、3駅以上利用可、3沿線以上利用可、駅徒歩5分以内、駅徒歩10分以内、高層階、24時間ゴミ出し可、敷地内ごみ置き場、都市ガス、高速ネット対応、保証会社利用可 敷金積み増し【ペット飼育の場合敷金25.8万円(総額)】 | ||
部屋の情報
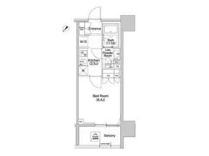
| 間取り | 1K | 専有面積 | 22.63m2 |
|---|---|---|---|
| 所在階 / 向き | 12階 / 北西 | バルコニー面積 | - |
| 水道 / ガス | - | ||
| 設備 | バス・トイレ別、2階以上、オートロック、テレビドアホン、宅配ボックス、浴室乾燥機、追い焚き、インターネット対応、システムキッチン、エアコン、エレベーター、温水洗浄便座、バルコニー、フローリング、洗髪洗面化粧台、2口コンロ、コンロ:ガス、インターネット使用料無料、洗濯機:室内 | ||
| 当社物件ID | 30059148 | ||
建物の情報
| 建物名 | コンフォリア品川イースト | ||
|---|---|---|---|
| 所在地 | 東京都品川区北品川 | ||
| 交通 | 京急本線 北品川駅 徒歩5分 JR山手線 品川駅 徒歩11分 りんかい線 天王洲アイル駅 徒歩17分 | ||
| 階数 | 12階建 | 総戸数 | 97戸 |
| 築年月 | 2015年02月 / 築12年 | エレベーター | あり |
| 駐車場 | なし | バイク置き場 | - |
| 駐輪場 | あり | 管理人/管理会社 | - |
| 周辺環境 | その他 ローソン 北品川一丁目店(コンビニ)まで168m その他 マルエツ プチ 北品川一丁目店(スーパー)まで198m その他 ファミリーマート 北品川店(コンビニ)まで202m | ||
| 建物種別 | マンション | 建物構造 | RC(鉄筋コンクリート) |
この部屋の取扱い不動産会社
| 会社名 | TR(株)ナビホーム赤坂店(SUUMO経由) | ||
|---|---|---|---|
| 所在地 | 東京都港区赤坂2-19-4 関ビル4階 | 交通 | - |
| 営業時間 | 10時~19時 | 定休日 | - |
| 免許番号 | 東京都知事109457 | 取引態様 | 仲介 |
| 不動産会社管理番号 | 100485888614 | 当社管理番号 | 89 |
| 所属団体 | (公社)東京都宅地建物取引業協会会員 | ||
| 公正取引協議会 | (公社)首都圏不動産公正取引協議会加盟 | ||
| 取扱い物件情報 | 物件詳細へ | ||
※各種情報と現状に差異がある場合は、現状優先となります。問い合わせをすることで、より詳しい条件、情報を確認する事ができます。
提供:TR(株)ナビホーム赤坂店(SUUMO経由)
この物件が気になったら掲載期限まであと10日
コンフォリア品川イーストに条件(家賃・エリア)が近い物件一覧
| 写真 | 家賃 管理費等 | 敷金 礼金 | 間取り 専有面積 | 築年数 | 最寄り駅 所在地 | キープ | 詳細 |
|---|---|---|---|---|---|---|---|
マンション メゾンドボナール(1DK/2階) | |||||||
![]() | 11.8万円 3,000円 | 11.8万円 なし | 1DK 32.48m2 | 築29年 | JR京浜東北線 蒲田駅 徒歩10分 京急本線 京急蒲田駅 徒歩10分 京急本線 梅屋敷駅(東京) 徒歩11分 東京都大田区蒲田 | 詳細を見る | |
アパート タカマルハイム(1LDK/1階) | |||||||
![]() | 11.1万円 3,000円 | 11.1万円 22.2万円 | 1LDK 34m2 | 築11年 | 東急多摩川線 武蔵新田駅 徒歩8分 東急多摩川線 下丸子駅 徒歩9分 東京都大田区下丸子2丁目 | 詳細を見る | |
マンション SEED JUST B-BASE Ⅱ(1LDK/4階) | |||||||
![]() | 9.4万円 1.5万円 | 9.4万円 9.4万円 | 1LDK 24.55m2 | 築1年 | 東京モノレール羽田 昭和島駅 徒歩11分 京浜急行電鉄本線 梅屋敷駅(東京) 徒歩19分 東京都大田区大森南4丁目 | 詳細を見る | |
マンション アズ亀戸レジデンス(ワンルーム/1階) | |||||||
![]() | 18万円 5,000円 | 36万円 なし | ワンルーム 31.27m2 | 築22年 | JR総武線 亀戸駅 徒歩6分 東武亀戸線 亀戸水神駅 徒歩8分 都営新宿線 大島駅(東京) 徒歩9分 東京都江東区亀戸 | 詳細を見る | |
マンション クレヴィスタ亀戸V(1K/6階) | |||||||
![]() | 12.8万円 1.1万円 | なし 12.8万円 | 1K 25.41m2 | 築6年 | 東武鉄道亀戸線 亀戸水神駅 徒歩2分 総武・中央緩行線 亀戸駅 徒歩9分 東武鉄道亀戸線 東あずま駅 徒歩12分 東京都江東区亀戸8丁目 | 詳細を見る | |
マンション I‐CASA SHINAGAWA(1LDK/3階) | |||||||
![]() | 16万円 1万円 | 16万円 32万円 | 1LDK 39.85m2 | 築12年 | 京浜急行電鉄本線 立会川駅 徒歩8分 京浜東北・根岸線 大森駅(東京) 徒歩12分 東京都品川区南大井5丁目 | 詳細を見る | |
タウンハウス 大田菜園長屋(2LDK) | |||||||
![]() | 15.9万円 5,000円 | 15.9万円 7.95万円 | 2LDK 52.17m2 | 築10年 | 京浜急行電鉄本線 雑色駅 徒歩8分 京浜急行電鉄本線 六郷土手駅 徒歩13分 東京都大田区東六郷3丁目 | 詳細を見る | |







