賃貸マンション
ベルシード池袋本町の賃貸物件情報(1K/3階)
| 家賃 | 管理費等 | 敷金 | 礼金 | 間取り | 専有面積 |
|---|---|---|---|---|---|
| 9.8万円 | 1.5万円 | なし | 19.6万円 | 1K | 25.52m2 |
入居決定でお祝い金最大100,000円
Point
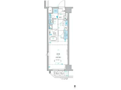
室内設備は洗面所独立・浴室乾燥機など豊富に揃っており、過ごしやすいお部屋になっております。
提供:(株)ベルテックス(SUUMO経由)

詳細情報 ベルシード池袋本町
物件紹介
ベルシード池袋本町は東武東上線北池袋駅から徒歩8分にあり、駅近で通勤通学に便利なマンションです。
このお部屋は2階以上に位置しているので、通行人や周囲の住人からの視線が気になりにくく、防犯面でも安心。建物のエントランスはオートロックがついており、インターホンにはTVモニタもついているため、相手の顔を確認してから来客対応することができます。
人気の南向き・フローリングのお部屋。角部屋でもあるため、周囲の居住者の生活音も気になりにくい場所です。キッチンはシステムキッチン仕様になっていますので、お料理好きの方にもぴったり。バス・トイレは別なので、のんびりお風呂タイムも楽しめるでしょう。また、雨の日でも浴室乾燥機を使えば、お洗濯も問題ありません。
通信設備面では、インターネットが無料で使えるので、月々の出費を抑えられるのも魅力です。また、BSアンテナ・CSアンテナがありCATVにも対応しているので、おうち時間も充実するでしょう(別途工事、BS・CS・CATVの契約料等が必要な場合あり)。
建物にはエレベーターがついているので、重い荷物があっても安心。共用部には宅配ボックスが設定されているので、不在の時にも荷物を受け取ることができます。また、ペット飼育の相談ができますので、あなたの大切な家族の一員も快適に暮らせるか、ぜひ確認してみてください。
コンビニまで徒歩3分の場所にあり、日用品や食料品のお買い物にも便利です。
このお部屋は2階以上に位置しているので、通行人や周囲の住人からの視線が気になりにくく、防犯面でも安心。建物のエントランスはオートロックがついており、インターホンにはTVモニタもついているため、相手の顔を確認してから来客対応することができます。
人気の南向き・フローリングのお部屋。角部屋でもあるため、周囲の居住者の生活音も気になりにくい場所です。キッチンはシステムキッチン仕様になっていますので、お料理好きの方にもぴったり。バス・トイレは別なので、のんびりお風呂タイムも楽しめるでしょう。また、雨の日でも浴室乾燥機を使えば、お洗濯も問題ありません。
通信設備面では、インターネットが無料で使えるので、月々の出費を抑えられるのも魅力です。また、BSアンテナ・CSアンテナがありCATVにも対応しているので、おうち時間も充実するでしょう(別途工事、BS・CS・CATVの契約料等が必要な場合あり)。
建物にはエレベーターがついているので、重い荷物があっても安心。共用部には宅配ボックスが設定されているので、不在の時にも荷物を受け取ることができます。また、ペット飼育の相談ができますので、あなたの大切な家族の一員も快適に暮らせるか、ぜひ確認してみてください。
コンビニまで徒歩3分の場所にあり、日用品や食料品のお買い物にも便利です。
お金・契約の情報
※「-」と表示されているものは、実際は料金が発生するものもございます。詳細はお問い合わせください。
| 家賃 | 9.8万円 | 管理費・共益費 | 1.5万円 |
|---|---|---|---|
| 敷金 | なし | 礼金 | 19.6万円 |
| 入居決定でお祝い金最大100,000円 | |||
| 保証金 | - | 償却・敷引 | - |
| 住宅保険料 | 1円 | 更新料 | - |
| その他費用 | 室内抗菌代:1.65万円 | ||
| 保証会社利用 | 必須 | 保証会社名 | - |
| 保証会社費用 | - | 保証会社備考 | 初回契約時:50%、[リロ:月1,000円] |
| 契約形態 | - | 契約期間 | 2年 |
| 入居・引渡期間 | 2026年04月中旬 | 現況 | - |
| 入居可能条件 | 2人入居可、ペット可 | ||
| 契約備考 | ペット飼育可能の場合は敷金1か月積増(償却)となります。 短期解約違約金:1年未満は総賃料2ヶ月分、1年以上1.5年未満は総賃料1.5ヶ月分 月額(ベルプラス 2200円) 鍵交換費用:33000 その他設備/条件:室内洗濯機置き場、独立洗面台、防犯カメラ、クローゼット、シューズボックス、分譲賃貸 | ||
部屋の情報
| 間取り | 1K | 専有面積 | 25.52m2 |
|---|---|---|---|
| 間取り詳細 | 洋室(8.1帖) | ||
| 所在階 / 向き | 3階 / 南 | バルコニー面積 | - |
| 水道 / ガス | 水道【公営】、ガス【都市】 | ||
| 設備 | バス・トイレ別、オートロック、テレビドアホン、宅配ボックス、浴室乾燥機、システムキッチン、エアコン、エレベーター、温水洗浄便座、バルコニー、フローリング、2口コンロ、コンロ:ガス、CATV、CSアンテナ、BSアンテナ、給湯 | ||
| 当社物件ID | 32991947 | ||
建物の情報
| 建物名 | ベルシード池袋本町 | ||
|---|---|---|---|
| 所在地 | 東京都豊島区池袋本町2丁目 | ||
| 交通 | 東武鉄道東上線 下板橋駅 徒歩8分 東武鉄道東上線 北池袋駅 徒歩8分 | ||
| 階数 | 9階建 | 総戸数 | - |
| 築年月 | 2019年09月 / 築7年 | エレベーター | あり |
| 駐車場 | - | バイク置き場 | - |
| 駐輪場 | あり | 管理人/管理会社 | - |
| 周辺環境 | コンビニ 徒歩3分(169m) 販売店 徒歩16分(1206m) その他 ドラッグストア その他 公園 その他 銀行 その他 * | ||
| 建物種別 | マンション | 建物構造 | RC(鉄筋コンクリート) |
この部屋の取扱い不動産会社
| 会社名 | ハウスコム東東京株式会社 新宿店 | ||
|---|---|---|---|
| 所在地 | 東京都新宿区36-2新宿キリンビル3階 | 交通 | - |
| 営業時間 | 10:00~18:00 | 定休日 | 水曜定休 |
| 免許番号 | 東京都知事(1)第108283号 | 取引態様 | 仲介 |
| 不動産会社管理番号 | HC2-652930-309-0231 | 当社管理番号 | 468 |
| 所属団体 | 、 | ||
| 取扱い物件情報 | 物件詳細へ | ||
※各種情報と現状に差異がある場合は、現状優先となります。問い合わせをすることで、より詳しい条件、情報を確認する事ができます。
提供:ハウスコム東東京株式会社 新宿店
この物件が気になったら掲載期限まであと4日
ベルシード池袋本町に条件(家賃・エリア)が近い物件一覧
| 写真 | 家賃 管理費等 | 敷金 礼金 | 間取り 専有面積 | 築年数 | 最寄り駅 所在地 | キープ | 詳細 |
|---|---|---|---|---|---|---|---|
マンション ヴェラやまと(1DK/3階) | |||||||
![]() | 9.5万円 3,000円 | 9.5万円 9.5万円 | 1DK 33.3m2 | 築43年 | 東京メトロ有楽町線 千川駅 徒歩2分 東京都豊島区要町 | 詳細を見る | |
マンション プレール・ドゥーク神楽坂(1K/4階) | |||||||
![]() | 12.4万円 1万円 | なし 12.4万円 | 1K 26.2m2 | 築7年 | 東京メトロ東西線 神楽坂駅 徒歩4分 東京メトロ有楽町線 江戸川橋駅 徒歩9分 都営大江戸線 牛込神楽坂駅 徒歩11分 東京都新宿区東榎町 | 詳細を見る | |
マンション AIFORT.新桜台(1K/2階) | |||||||
![]() | 6.9万円 8,000円 | なし 6.9万円 | 1K 18.11m2 | 築22年 | 西武有楽町線 新桜台駅 徒歩4分 西武池袋線 江古田駅 徒歩9分 西武有楽町線 小竹向原駅 徒歩11分 東京都練馬区羽沢 | 詳細を見る | |
アパート スカイハイツ(2K/1階) | |||||||
![]() | 6.3万円 2,000円 | 6.3万円 6.3万円 | 2K 33m2 | 築40年 | 東武東上線 上板橋駅 徒歩8分 東京都板橋区桜川 | 詳細を見る | |
マンション TERRASA OYAMA(ワンルーム/3階) | |||||||
![]() | 8.6万円 9,000円 | 8.6万円 8.6万円 | ワンルーム 20.59m2 | 築2年 | 東武東上線 大山駅(東京) 徒歩10分 東武東上線 下板橋駅 徒歩10分 東京都板橋区大山金井町 | 詳細を見る | |
マンション グランドハウスシャンティ(ワンルーム/3階) | |||||||
![]() | 6万円 6,000円 | なし なし | ワンルーム 14.2m2 | 築34年 | JR山手線 駒込駅 徒歩6分 東京メトロ南北線 西ケ原駅 徒歩12分 JR京浜東北線 上中里駅 徒歩13分 東京都北区西ケ原 | 詳細を見る | |
アパート MELLAS大泉学園(1K/2階) | |||||||
![]() | 7.2万円 3,000円 | なし なし | 1K 18.53m2 | 新築 | 西武池袋線 大泉学園駅 徒歩7分 西武池袋線 保谷駅 徒歩28分 西武池袋線 石神井公園駅 徒歩30分 東京都練馬区東大泉 | 詳細を見る | |
マンション ルベール東中野(ワンルーム/2階) | |||||||
![]() | 7.5万円 2,000円 | 7.5万円 なし | ワンルーム 20m2 | 築29年 | JR中央線 東中野駅 徒歩3分 都営大江戸線 東中野駅 徒歩6分 JR中央線 大久保駅(東京) 徒歩15分 東京都中野区東中野 | 詳細を見る | |








