賃貸マンション
平河町森タワーレジデンスの賃貸物件情報(2LDK/16階)
| 家賃 | 管理費等 | 敷金 | 礼金 | 間取り | 専有面積 |
|---|---|---|---|---|---|
| 150万円 | なし | 900万円 | 150万円 | 2LDK | 128.96m2 |
入居決定でお祝い金最大100,000円
- 保証金
- -
- 償却・敷引
- -
- 築年数
- 築17年
- 所在階
- 16階
- 向き
- 北西
Point
まずはお問い合わせ!
不動産会社は街のプロ、あなたに合った物件がきっと見つかります。
提供:TR(株)ナビホーム赤坂店(SUUMO経由)

詳細情報 平河町森タワーレジデンス
物件紹介
平河町森タワーレジデンスは東京メトロ有楽町線永田町駅から徒歩2分にあり、駅近で通勤通学に便利なマンションです。
このお部屋は2階以上に位置しているので、通行人や周囲の住人からの視線が気になりにくく、防犯面でも安心。建物のエントランスはオートロックがついており、インターホンにはTVモニタもついているため、相手の顔を確認してから来客対応することができます。
フローリングのお部屋なのでお掃除もラクラク。キッチンはシステムキッチン仕様になっていますので、お料理好きの方にもぴったり。バス・トイレは別なので、のんびりお風呂タイムも楽しめるでしょう。また、雨の日でも浴室乾燥機を使えば、お洗濯も問題ありません。
通信設備面では、インターネット接続が可能です。また、BSアンテナ・CSアンテナもありますので、おうち時間も充実するでしょう(別途工事、契約料が必要な場合あり)。
床暖房があり、冬も足元から暖かく快適に過ごすことができます。建物にはエレベーターがついているので、重い荷物があっても安心。共用部には宅配ボックスが設定されているので、不在の時にも荷物を受け取ることができます。
このお部屋は2階以上に位置しているので、通行人や周囲の住人からの視線が気になりにくく、防犯面でも安心。建物のエントランスはオートロックがついており、インターホンにはTVモニタもついているため、相手の顔を確認してから来客対応することができます。
フローリングのお部屋なのでお掃除もラクラク。キッチンはシステムキッチン仕様になっていますので、お料理好きの方にもぴったり。バス・トイレは別なので、のんびりお風呂タイムも楽しめるでしょう。また、雨の日でも浴室乾燥機を使えば、お洗濯も問題ありません。
通信設備面では、インターネット接続が可能です。また、BSアンテナ・CSアンテナもありますので、おうち時間も充実するでしょう(別途工事、契約料が必要な場合あり)。
床暖房があり、冬も足元から暖かく快適に過ごすことができます。建物にはエレベーターがついているので、重い荷物があっても安心。共用部には宅配ボックスが設定されているので、不在の時にも荷物を受け取ることができます。
お金・契約の情報
※「-」と表示されているものは、実際は料金が発生するものもございます。詳細はお問い合わせください。
| 家賃 | 150万円 | 管理費・共益費 | なし |
|---|---|---|---|
| 敷金 | 900万円 | 礼金 | 150万円 |
| 入居決定でお祝い金最大100,000円 | |||
| 保証金 | - | 償却・敷引 | - |
| 住宅保険料 | - | 更新料 | - |
| 保証会社利用 | 必須 | 保証会社名 | - |
| 保証会社費用 | - | 保証会社備考 | 保証会社利用必 初回保証料賃料等の50%、2年目以降年間保証料10,000円 |
| 契約形態 | 定期借家 | 契約期間 | 3年 |
| 入居・引渡期間 | 相談 | 現況 | - |
| 契約備考 | ピンときたら、お早めにお問い合わせください◎来店不要・内見現地待ち合わせ・契約までオンライン対応可◎お気軽に担当までご相談ください() 2LDK 定期借家3年 損保【2.84万円2年】 バストイレ別、バルコニー、エアコン、フローリング、TVインターホン、浴室乾燥機、オートロック、室内洗濯置、シューズボックス、システムキッチン、追焚機能浴室、温水洗浄便座、エレベーター、洗面所独立、宅配ボックス、2面採光、BS・CS、3口以上コンロ、照明付、冷蔵庫、ネット専用回線、洗濯機、床暖房、食器洗乾燥機、エアコン全室、保証金不要、庭、LDK20畳以上、トイレ2ヶ所、フロントサービス、3駅以上利用可、3沿線以上利用可、駅徒歩5分以内、タワー型マンション、高層階、24時間ゴミ出し可、都市ガス、礼金1ヶ月、初期費用カード決済可 | ||
部屋の情報
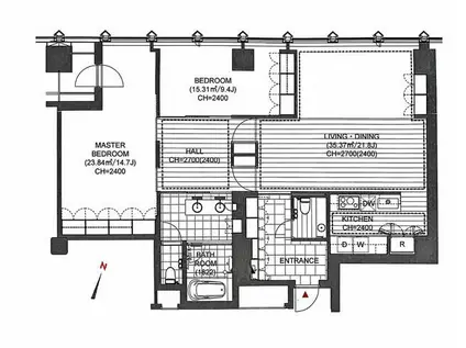
| 間取り | 2LDK | 専有面積 | 128.96m2 |
|---|---|---|---|
| 所在階 / 向き | 16階 / 北西 | バルコニー面積 | 1m2 |
| 水道 / ガス | - | ||
| 設備 | バス・トイレ別、2階以上、オートロック、テレビドアホン、宅配ボックス、浴室乾燥機、追い焚き、インターネット対応、システムキッチン、エアコン、エレベーター、温水洗浄便座、バルコニー、フローリング、洗髪洗面化粧台、タワーマンション、床暖房、2口コンロ、CSアンテナ、BSアンテナ、洗濯機:室内 | ||
| 当社物件ID | 10413998 | ||
建物の情報
| 建物名 | 平河町森タワーレジデンス | ||
|---|---|---|---|
| 所在地 | 東京都千代田区平河町 | ||
| 交通 | 東京メトロ有楽町線 永田町駅 徒歩2分 東京メトロ半蔵門線 半蔵門駅 徒歩6分 東京メトロ銀座線 赤坂見附駅 徒歩6分 | ||
| 階数 | 地下3地上24階建 | 総戸数 | 122戸 |
| 築年月 | 2009年12月 / 築17年 | エレベーター | あり |
| 駐車場 | なし | バイク置き場 | - |
| 駐輪場 | - | 管理人/管理会社 | - |
| 周辺環境 | その他 永田町駅(東京メトロ 有楽町線)(その他)まで190m その他 赤坂見附駅(東京メトロ 銀座線)(その他)まで650m その他 麹町駅(東京メトロ 有楽町線)(その他)まで790m | ||
| 建物種別 | マンション | 建物構造 | SRC(鉄骨鉄筋コンクリート) |
この部屋の取扱い不動産会社
| 会社名 | Sumitack(株)広域営業所(SUUMO経由) | ||
|---|---|---|---|
| 所在地 | 東京都渋谷区広尾5-4-12 大成鋼機ビル5階 | 交通 | - |
| 営業時間 | 10:00~19:00 | 定休日 | 水曜日、祝日 |
| 免許番号 | 東京都知事107848 | 取引態様 | 仲介 |
| 不動産会社管理番号 | 100472641864 | 当社管理番号 | 89 |
| 所属団体 | (公社)東京都宅地建物取引業協会会員 | ||
| 公正取引協議会 | (公社)首都圏不動産公正取引協議会加盟 | ||
| 取扱い物件情報 | 物件詳細へ | ||
※各種情報と現状に差異がある場合は、現状優先となります。問い合わせをすることで、より詳しい条件、情報を確認する事ができます。
提供:Sumitack(株)広域営業所(SUUMO経由)
この物件が気になったら掲載期限まであと10日
平河町森タワーレジデンスに条件(家賃・エリア)が近い物件一覧
| 写真 | 家賃 管理費等 | 敷金 礼金 | 間取り 専有面積 | 築年数 | 最寄り駅 所在地 | キープ | 詳細 |
|---|---|---|---|---|---|---|---|
マンション パークマンション鳥居坂(2LDK/1階) | |||||||
![]() | 130万円 なし | 130万円 130万円 | 2LDK 101.93m2 | 築4年 | 東京メトロ南北線 麻布十番駅 徒歩9分 東京メトロ日比谷線 六本木駅 徒歩10分 都営大江戸線 赤羽橋駅 徒歩14分 東京都港区六本木 | 詳細を見る | |
マンション 三田ガーデンヒルズ ウエストヒル(3LDK/7階) | |||||||
![]() | 150万円 なし | 150万円 150万円 | 3LDK 100.91m2 | 築1年 | 東京メトロ南北線 麻布十番駅 徒歩5分 都営大江戸線 麻布十番駅 徒歩5分 都営三田線 芝公園駅 徒歩12分 東京都港区三田 | 詳細を見る | |
マンション ザ・ウエストミンスター六本木(2SLDK/4階) | |||||||
![]() | 120万円 なし | 240万円 120万円 | 2SLDK 117.35m2 | 築23年 | 都営大江戸線 麻布十番駅 徒歩7分 東京メトロ日比谷線 六本木駅 徒歩8分 東京メトロ千代田線 乃木坂駅 徒歩16分 東京都港区六本木 | 詳細を見る | |
マンション 二番町テラス(3LDK/10階) | |||||||
![]() | 199万円 なし | 199万円 199万円 | 3LDK 208.82m2 | 築17年 | 東京メトロ有楽町線 麹町駅 徒歩2分 JR中央線 四ツ谷駅 徒歩8分 東京メトロ半蔵門線 半蔵門駅 徒歩9分 東京都千代田区二番町 | 詳細を見る | |
マンション 三田ガーデンヒルズ イーストヒル(2SLDK/13階) | |||||||
![]() | 123万円 なし | 123万円 123万円 | 2SLDK 95.25m2 | 築1年 | 東京地下鉄南北線 麻布十番駅 徒歩5分 東京都港区三田1丁目 | 詳細を見る | |
マンション 麻布台ヒルズレジデンス(2LDK/11階) | |||||||
![]() | 115万円 なし | 230万円 なし | 2LDK 84.45m2 | 築3年 | 東京メトロ南北線 六本木一丁目駅 徒歩1分 東京メトロ日比谷線 神谷町駅 徒歩11分 都営大江戸線 六本木駅 徒歩11分 東京都港区麻布台 | 詳細を見る | |
マンション 六本木プラシッド(2LDK/2階) | |||||||
![]() | 94万円 なし | 282万円 188万円 | 2LDK 103.61m2 | 築13年 | 都営大江戸線 麻布十番駅 徒歩10分 東京メトロ日比谷線 六本木駅 徒歩10分 東京メトロ南北線 六本木一丁目駅 徒歩12分 東京都港区六本木 | 詳細を見る | |
マンション 三田ガーデンヒルズ イースト(3SLDK/1階) | |||||||
![]() | 240万円 なし | 480万円 240万円 | 3SLDK 144.58m2 | 築1年 | 都営大江戸線 赤羽橋駅 徒歩6分 東京メトロ南北線 麻布十番駅 徒歩7分 都営三田線 芝公園駅 徒歩10分 東京都港区三田 | 詳細を見る | |








