賃貸マンション
エスティメゾン錦糸町IIの賃貸物件情報(1LDK/12階)
| 家賃 | 管理費等 | 敷金 | 礼金 | 間取り | 専有面積 |
|---|---|---|---|---|---|
| 17.7万円 | 1.2万円 | 17.7万円 | なし | 1LDK | 40m2 |
入居決定でお祝い金最大100,000円
Point
まずはお問い合わせ!
不動産会社は街のプロ、あなたに合った物件がきっと見つかります。
提供:(株)LIVEFLIX(SUUMO経由)

詳細情報 エスティメゾン錦糸町II
物件紹介
エスティメゾン錦糸町IIはJR総武線錦糸町駅から徒歩5分にあり、駅近で通勤通学に便利なマンションです。
このお部屋は2階以上に位置しているので、通行人や周囲の住人からの視線が気になりにくく、防犯面でも安心。建物のエントランスはオートロックがついており、インターホンにはTVモニタもついているため、相手の顔を確認してから来客対応することができます。
人気の南向きのお部屋。また、フローリングなのでお掃除もラクラク。キッチンはシステムキッチン仕様になっていますので、お料理好きの方にもぴったり。バス・トイレは別なので、のんびりお風呂タイムも楽しめるでしょう。また、雨の日でも浴室乾燥機を使えば、お洗濯も問題ありません。
通信設備面では、インターネット接続が可能です。また、BSアンテナ・CSアンテナがありCATVにも対応しているので、おうち時間も充実するでしょう(別途工事、契約料が必要な場合あり)。
建物にはエレベーターがついているので、重い荷物があっても安心。共用部には宅配ボックスが設定されているので、不在の時にも荷物を受け取ることができます。また、ペット飼育の相談ができますので、あなたの大切な家族の一員も快適に暮らせるか、ぜひ確認してみてください。
このお部屋は2階以上に位置しているので、通行人や周囲の住人からの視線が気になりにくく、防犯面でも安心。建物のエントランスはオートロックがついており、インターホンにはTVモニタもついているため、相手の顔を確認してから来客対応することができます。
人気の南向きのお部屋。また、フローリングなのでお掃除もラクラク。キッチンはシステムキッチン仕様になっていますので、お料理好きの方にもぴったり。バス・トイレは別なので、のんびりお風呂タイムも楽しめるでしょう。また、雨の日でも浴室乾燥機を使えば、お洗濯も問題ありません。
通信設備面では、インターネット接続が可能です。また、BSアンテナ・CSアンテナがありCATVにも対応しているので、おうち時間も充実するでしょう(別途工事、契約料が必要な場合あり)。
建物にはエレベーターがついているので、重い荷物があっても安心。共用部には宅配ボックスが設定されているので、不在の時にも荷物を受け取ることができます。また、ペット飼育の相談ができますので、あなたの大切な家族の一員も快適に暮らせるか、ぜひ確認してみてください。
お金・契約の情報
※「-」と表示されているものは、実際は料金が発生するものもございます。詳細はお問い合わせください。
| 家賃 | 17.7万円 | 管理費・共益費 | 1.2万円 |
|---|---|---|---|
| 敷金 | 17.7万円 | 礼金 | なし |
| 入居決定でお祝い金最大100,000円 | |||
| 保証金 | - | 償却・敷引 | - |
| 住宅保険料 | - | 更新料 | - |
| 契約形態 | 定期借家 | 契約期間 | 2年 |
| 入居・引渡期間 | 即時 | 現況 | - |
| 入居可能条件 | ペット相談 | ||
| 契約備考 | 更新料180000円 合計1.65万円(内訳:鍵交換16500円) バイク置き場月額6600円 1LDK ペット相談 定期借家2年 損保【2.4万円2年】 バルコニー、エアコン、フローリング、TVインターホン、浴室乾燥機、オートロック、シューズボックス、システムキッチン、温水洗浄便座、エレベーター、洗面化粧台、駐輪場、宅配ボックス、CATV、光ファイバー、即入居可、3口以上コンロ、防犯カメラ、ペット相談、バイク置場、2沿線利用可、駅徒歩5分以内、都市ガス | ||
部屋の情報
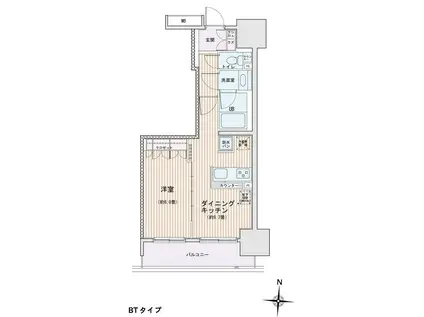
| 間取り | 1LDK | 専有面積 | 40m2 |
|---|---|---|---|
| 所在階 / 向き | 12階 / - | バルコニー面積 | - |
| 水道 / ガス | - | ||
| 設備 | 2階以上、オートロック、テレビドアホン、宅配ボックス、浴室乾燥機、インターネット対応、システムキッチン、エアコン、エレベーター、温水洗浄便座、バルコニー、フローリング、2口コンロ、CATV | ||
| 当社物件ID | 23044885 | ||
建物の情報
| 建物名 | エスティメゾン錦糸町II | ||
|---|---|---|---|
| 所在地 | 東京都墨田区江東橋 | ||
| 交通 | JR総武線 錦糸町駅 徒歩5分 東京メトロ半蔵門線 錦糸町駅 徒歩5分 | ||
| 階数 | 15階建 | 総戸数 | - |
| 築年月 | 2008年01月 / 築19年 | エレベーター | あり |
| 駐車場 | 空有 36300円 | バイク置き場 | あり |
| 駐輪場 | あり | 管理人/管理会社 | - |
| 周辺環境 | その他 GAPストア錦糸町マルイ店(ショッピングセンター)まで284m その他 ジャパンミート生鮮館錦糸町店(スーパー)まで275m その他 まいばすけっと錦糸町駅前店(スーパー)まで165m その他 ファミリーマート江東橋三丁目店(コンビニ)まで207m その他 アインズ&トルペ錦糸町マルイ店(ドラッグストア)まで267m その他 セブンイレブン墨田江東橋3丁目店(コンビニ)まで40m | ||
| 建物種別 | マンション | 建物構造 | RC(鉄筋コンクリート) |
この部屋の取扱い不動産会社
| 会社名 | (株)LIVEFLIX(SUUMO経由) | ||
|---|---|---|---|
| 所在地 | 東京都台東区浅草1-13-5 井門浅草すしや通りビル7階-42 | 交通 | - |
| 営業時間 | 10:00~19:00 | 定休日 | 水曜 |
| 免許番号 | 東京都知事108600 | 取引態様 | 仲介 |
| 不動産会社管理番号 | 100493497112 | 当社管理番号 | 89 |
| 所属団体 | (公社)全日本不動産協会東京都本部会員 | ||
| 公正取引協議会 | (公社)首都圏不動産公正取引協議会加盟 | ||
| 取扱い物件情報 | 物件詳細へ | ||
※各種情報と現状に差異がある場合は、現状優先となります。問い合わせをすることで、より詳しい条件、情報を確認する事ができます。
提供:(株)LIVEFLIX(SUUMO経由)
この物件が気になったら掲載期限まであと10日
エスティメゾン錦糸町IIの空き部屋一覧
全部で28の空き部屋があります。
エスティメゾン錦糸町IIに条件(家賃・エリア)が近い物件一覧
| 写真 | 家賃 管理費等 | 敷金 礼金 | 間取り 専有面積 | 築年数 | 最寄り駅 所在地 | キープ | 詳細 |
|---|---|---|---|---|---|---|---|
マンション エスティメゾン豊洲レジデンス E棟(2LDK/2階) | |||||||
![]() | 24.8万円 1.2万円 | 24.8万円 24.8万円 | 2LDK 56.5m2 | 築19年 | 東京地下鉄有楽町線 豊洲駅 徒歩6分 東京都江東区豊洲3丁目 | 詳細を見る | |
マンション レジディア新川(1K/1階) | |||||||
![]() | 15.6万円 2万円 | なし なし | 1K 30.96m2 | 築24年 | 東京メトロ日比谷線 八丁堀駅(東京) 徒歩5分 東京メトロ日比谷線 茅場町駅 徒歩10分 東京メトロ有楽町線 新富町駅(東京) 徒歩16分 東京都中央区新川 | 詳細を見る | |
マンション プレサンスブルーム浅草ノース(1LDK/2階) | |||||||
![]() | 17.9万円 2万円 | なし なし | 1LDK 40.48m2 | 築4年 | つくばエクスプレス 浅草駅(つくばEXP) 徒歩7分 札幌市南北線 さっぽろ駅(札幌市営) 徒歩10分 東京地下鉄日比谷線 入谷駅(東京) 徒歩13分 東京地下鉄銀座線 浅草駅(東武・都営・メトロ) 徒歩16分 東京都台東区浅草4丁目 | 詳細を見る | |
マンション NINE-HARVEST(1K/5階) | |||||||
![]() | 11.5万円 9,000円 | 11.5万円 11.5万円 | 1K 26.56m2 | 築4年 | 都営大江戸線 蔵前駅 徒歩7分 JR総武線 両国駅 徒歩10分 東京都墨田区横網 | 詳細を見る | |
マンション ウエリスアーバン水天宮前(1DK/11階) | |||||||
![]() | 14.4万円 2万円 | 14.4万円 なし | 1DK 26.1m2 | 築4年 | 東京メトロ半蔵門線 水天宮前駅 徒歩9分 都営大江戸線 門前仲町駅 徒歩9分 都営新宿線 森下駅(東京) 徒歩19分 東京都江東区佐賀 | 詳細を見る | |
マンション ディームス東陽町(2LDK/4階) | |||||||
![]() | 26.9万円 1.5万円 | 26.9万円 26.9万円 | 2LDK 54.64m2 | 築8年 | 東京メトロ東西線 東陽町駅 徒歩7分 東京メトロ東西線 木場駅 徒歩10分 JR京葉線 潮見駅 徒歩34分 東京都江東区東陽 | 詳細を見る | |






