賃貸マンション
パークアクシス西巣鴨の賃貸物件情報(ワンルーム/3階)
| 家賃 | 管理費等 | 敷金 | 礼金 | 間取り | 専有面積 |
|---|---|---|---|---|---|
| 12.2万円 | 8,000円 | 12.2万円 | 12.2万円 | ワンルーム | 28.23m2 |
入居決定でお祝い金最大100,000円
- 保証金
- -
- 償却・敷引
- -
- 築年数
- 築15年
- 所在階
- 3階
- 向き
- -
Point
初期費用の一部クレジットカード決済可!IT重説もできます、ご相談ください。オンライン内見相談可能!
提供:合同会社GIMPER(SUUMO経由)

詳細情報 パークアクシス西巣鴨
物件紹介
パークアクシス西巣鴨は都営三田線西巣鴨駅から徒歩5分にあり、駅近で通勤通学に便利なマンションです。
このお部屋は2階以上に位置しているので通行人や周囲の住人からの視線が気になりにくく、建物のエントランスはオートロックがついているので防犯性が高くなっています。
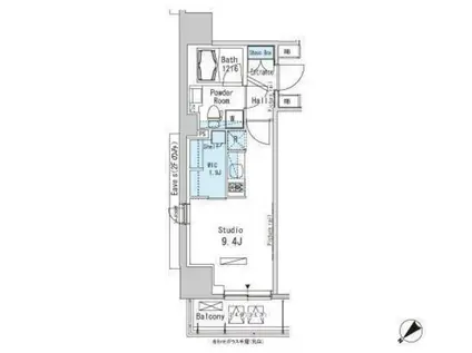
こちらは楽器相談が可能な物件。楽器演奏をお考えの方はぜひ相談してみてください。人気の角部屋で周囲の居住者の生活音も気になりにくく、また、フローリングのお部屋なのでお掃除もラクラク。室内にはウォークインクローゼットがありますので、たくさんの荷物も効率的に収納ができます。キッチンはシステムキッチン仕様になっていますので、お料理好きの方にもぴったり。バス・トイレは別なので、のんびりお風呂タイムも楽しめるでしょう。また、雨の日でも浴室乾燥機を使えば、お洗濯も問題ありません。
通信設備面では、インターネット接続が可能です。また、BSアンテナ・CSアンテナがありCATVにも対応しているので、おうち時間も充実するでしょう(別途工事、契約料が必要な場合あり)。
建物にはエレベーターがついているので、重い荷物があっても安心。共用部には宅配ボックスが設定されているので、不在の時にも荷物を受け取ることができます。また、ペット飼育の相談ができますので、あなたの大切な家族の一員も快適に暮らせるか、ぜひ確認してみてください。
このお部屋は2階以上に位置しているので通行人や周囲の住人からの視線が気になりにくく、建物のエントランスはオートロックがついているので防犯性が高くなっています。
こちらは楽器相談が可能な物件。楽器演奏をお考えの方はぜひ相談してみてください。人気の角部屋で周囲の居住者の生活音も気になりにくく、また、フローリングのお部屋なのでお掃除もラクラク。室内にはウォークインクローゼットがありますので、たくさんの荷物も効率的に収納ができます。キッチンはシステムキッチン仕様になっていますので、お料理好きの方にもぴったり。バス・トイレは別なので、のんびりお風呂タイムも楽しめるでしょう。また、雨の日でも浴室乾燥機を使えば、お洗濯も問題ありません。
通信設備面では、インターネット接続が可能です。また、BSアンテナ・CSアンテナがありCATVにも対応しているので、おうち時間も充実するでしょう(別途工事、契約料が必要な場合あり)。
建物にはエレベーターがついているので、重い荷物があっても安心。共用部には宅配ボックスが設定されているので、不在の時にも荷物を受け取ることができます。また、ペット飼育の相談ができますので、あなたの大切な家族の一員も快適に暮らせるか、ぜひ確認してみてください。
お金・契約の情報
※「-」と表示されているものは、実際は料金が発生するものもございます。詳細はお問い合わせください。
| 家賃 | 12.2万円 | 管理費・共益費 | 8,000円 |
|---|---|---|---|
| 敷金 | 12.2万円 | 礼金 | 12.2万円 |
| 入居決定でお祝い金最大100,000円 | |||
| 保証金 | - | 償却・敷引 | - |
| 住宅保険料 | - | 更新料 | - |
| 保証会社利用 | 必須 | 保証会社名 | - |
| 保証会社費用 | - | 保証会社備考 | 保証会社利用必 初回保証委託料(最低20000円):月額賃料等の50%、 2年目以降:9600円/年 |
| 契約形態 | - | 契約期間 | - |
| 入居・引渡期間 | 即時 | 現況 | - |
| 入居可能条件 | 楽器相談、ペット相談 | ||
| 契約備考 | 都電荒川線新庚申塚駅徒歩9分/巡回管理/豊島区・板橋区・北区でのお部屋探しはタウンハウジングにお任せください。 合計7.15万円(内訳:室内清掃費用:55000円/鍵交換費:16500円) 更新料新賃料(ヶ月):1.00ヶ月、口座振替事務手数料:110円/月 ワンルーム ペット相談/楽器相談 普通借家2年 損保【2万円2年】 バストイレ別、バルコニー、エアコン、フローリング、浴室乾燥機、オートロック、室内洗濯置、システムキッチン、エレベーター、洗面所独立、宅配ボックス、CATV、即入居可、BS・CS、ペット相談、ウォークインクロゼット、敷金1ヶ月、CATVインターネット、保証金不要、楽器相談、耐震構造、24時間ゴミ出し可、敷地内ごみ置き場、高速ネット対応、礼金1ヶ月 | ||
部屋の情報
| 間取り | ワンルーム | 専有面積 | 28.23m2 |
|---|---|---|---|
| 所在階 / 向き | 3階 / - | バルコニー面積 | - |
| 水道 / ガス | - | ||
| 設備 | バス・トイレ別、2階以上、オートロック、宅配ボックス、浴室乾燥機、ウォークインクローゼット、インターネット対応、システムキッチン、エアコン、エレベーター、バルコニー、フローリング、洗髪洗面化粧台、CATV、CSアンテナ、BSアンテナ、洗濯機:室内 | ||
| 当社物件ID | 3714809 | ||
建物の情報
| 建物名 | パークアクシス西巣鴨 | ||
|---|---|---|---|
| 所在地 | 東京都北区滝野川 | ||
| 交通 | 都営三田線 西巣鴨駅 徒歩5分 都電荒川線 庚申塚駅 徒歩7分 JR埼京線 板橋駅 徒歩10分 | ||
| 階数 | 13階建 | 総戸数 | - |
| 築年月 | 2012年01月 / 築15年 | エレベーター | あり |
| 駐車場 | なし | バイク置き場 | - |
| 駐輪場 | - | 管理人/管理会社 | - |
| 周辺環境 | その他 スーパーみらべる西巣鴨店(スーパー)まで260m その他 コモディイイダ滝野川店(スーパー)まで470m その他 ローソン滝野川6丁目店(コンビニ)まで80m その他 ファミリーマート西巣鴨店(コンビニ)まで310m その他 マツモトキヨシ滝野川市場通り店(ドラッグストア)まで430m その他 クリエイトエス・ディー北区滝野川店(ドラッグストア)まで560m | ||
| 建物種別 | マンション | 建物構造 | RC(鉄筋コンクリート) |
この部屋の取扱い不動産会社
| 会社名 | (株)タウンハウジング東京 駒込店(SUUMO経由) | ||
|---|---|---|---|
| 所在地 | 東京都文京区本駒込6-15-2 山口ビル1階 | 交通 | - |
| 営業時間 | AM10:00~PM7:00 | 定休日 | 水曜日 |
| 免許番号 | 国土交通大臣9926 | 取引態様 | 仲介 |
| 不動産会社管理番号 | 100484150644 | 当社管理番号 | 89 |
| 所属団体 | (公社)東京都宅地建物取引業協会会員 | ||
| 公正取引協議会 | (公社)首都圏不動産公正取引協議会加盟 | ||
| 取扱い物件情報 | 物件詳細へ | ||
※各種情報と現状に差異がある場合は、現状優先となります。問い合わせをすることで、より詳しい条件、情報を確認する事ができます。
提供:(株)タウンハウジング東京 駒込店(SUUMO経由)
この物件が気になったら掲載期限まであと10日
パークアクシス西巣鴨に条件(家賃・エリア)が近い物件一覧
| 写真 | 家賃 管理費等 | 敷金 礼金 | 間取り 専有面積 | 築年数 | 最寄り駅 所在地 | キープ | 詳細 |
|---|---|---|---|---|---|---|---|
マンション モンレーヴ本駒込(1K/3階) | |||||||
![]() | 12.6万円 5,000円 | 12.6万円 12.6万円 | 1K 27.02m2 | 築1年 | JR山手線 駒込駅 徒歩8分 JR山手線 巣鴨駅 徒歩16分 JR京浜東北線 田端駅 徒歩18分 東京都文京区本駒込 | 詳細を見る | |
マンション TRIAS372(1DK/1階) | |||||||
![]() | 8.1万円 1.8万円 | なし なし | 1DK 17.01m2 | 築1年 | 西武池袋線 椎名町駅 徒歩8分 東京メトロ副都心線 要町駅 徒歩14分 都営大江戸線 落合南長崎駅 徒歩14分 東京都豊島区長崎 | 詳細を見る | |
マンション ジーベックときわ台(1K/3階) | |||||||
![]() | 7.55万円 1万円 | なし なし | 1K 26.1m2 | 築11年 | 東武東上線 ときわ台駅(東京) 徒歩5分 東武東上線 中板橋駅 徒歩9分 東武東上線 上板橋駅 徒歩19分 東京都板橋区南常盤台 | 詳細を見る | |
アパート 前野町1丁目PJ(1LDK/1階) | |||||||
![]() | 13.8万円 5,000円 | なし 27.6万円 | 1LDK 39.06m2 | 新築 | 東武東上線 ときわ台駅(東京) 徒歩12分 東京都板橋区前野町 | 詳細を見る | |
マンション アイル池袋ノース参番館(1K/9階) | |||||||
![]() | 8.4万円 1万円 | なし なし | 1K 20.63m2 | 築14年 | 東武東上線 北池袋駅 徒歩7分 JR埼京線 板橋駅 徒歩11分 都営三田線 西巣鴨駅 徒歩11分 東京都豊島区上池袋 | 詳細を見る | |
アパート グランツコート目白(1DK/3階) | |||||||
![]() | 9.6万円 3,200円 | 9.6万円 9.6万円 | 1DK 32.44m2 | 築8年 | 西武池袋線 椎名町駅 徒歩3分 東京メトロ有楽町線 要町駅 徒歩12分 JR山手線 目白駅 徒歩16分 東京都豊島区目白 | 詳細を見る | |
マンション エクセラン舎人Ⅱ(1DK/3階) | |||||||
![]() | 10.6万円 3,000円 | なし なし | 1DK 34.98m2 | 築1年 | 日暮里舎人ライナー 舎人駅 徒歩2分 東京都足立区舎人1丁目 | 詳細を見る | |
アパート アメニティ-8(2DK/2階) | |||||||
![]() | 8.4万円 4,000円 | なし 8.4万円 | 2DK 47.19m2 | 築34年 | 日暮里・舎人ライナー 江北駅(東京) 徒歩12分 日暮里・舎人ライナー 西新井大師西駅 徒歩12分 東武大師線 大師前駅 徒歩26分 東京都足立区江北 | 詳細を見る | |








