賃貸マンション
リシュドール梅小路の賃貸物件情報(1DK/2階)
| 家賃 | 管理費等 | 敷金 | 礼金 | 間取り | 専有面積 |
|---|---|---|---|---|---|
| 7.8万円 | 8,000円 | なし | 7.8万円 | 1DK | 27.22m2 |
入居決定でお祝い金最大100,000円
Point
◆新築◆2026年2月末入居開始予定
提供:アパマンショップ二条駅前店

詳細情報 リシュドール梅小路
物件紹介
リシュドール梅小路はJR山陰本線丹波口駅から徒歩7分にあり、駅近で通勤通学に便利なマンションです。
このお部屋は2階以上に位置しているので、通行人や周囲の住人からの視線が気になりにくく、防犯面でも安心。建物のエントランスはオートロックがついており、インターホンにはTVモニタもついているため、相手の顔を確認してから来客対応することができます。
フローリングのお部屋なのでお掃除もラクラク。キッチンはシステムキッチン仕様になっていますので、お料理好きの方にもぴったり。バス・トイレは別なので、のんびりお風呂タイムも楽しめるでしょう。また、雨の日でも浴室乾燥機を使えば、お洗濯も問題ありません。
通信設備面では、インターネットが無料で使えるので、月々の出費を抑えられるのも魅力です。また、BSアンテナがありCATVにも対応しているので、おうち時間も充実するでしょう(別途工事、BS・CATVの契約料等が必要な場合あり)。
建物にはエレベーターがついているので、重い荷物があっても安心。共用部には宅配ボックスが設定されているので、不在の時にも荷物を受け取ることができます。
このお部屋は2階以上に位置しているので、通行人や周囲の住人からの視線が気になりにくく、防犯面でも安心。建物のエントランスはオートロックがついており、インターホンにはTVモニタもついているため、相手の顔を確認してから来客対応することができます。
フローリングのお部屋なのでお掃除もラクラク。キッチンはシステムキッチン仕様になっていますので、お料理好きの方にもぴったり。バス・トイレは別なので、のんびりお風呂タイムも楽しめるでしょう。また、雨の日でも浴室乾燥機を使えば、お洗濯も問題ありません。
通信設備面では、インターネットが無料で使えるので、月々の出費を抑えられるのも魅力です。また、BSアンテナがありCATVにも対応しているので、おうち時間も充実するでしょう(別途工事、BS・CATVの契約料等が必要な場合あり)。
建物にはエレベーターがついているので、重い荷物があっても安心。共用部には宅配ボックスが設定されているので、不在の時にも荷物を受け取ることができます。
お金・契約の情報
※「-」と表示されているものは、実際は料金が発生するものもございます。詳細はお問い合わせください。
| 家賃 | 7.8万円 | 管理費・共益費 | 8,000円 |
|---|---|---|---|
| 敷金 | なし | 礼金 | 7.8万円 |
| 入居決定でお祝い金最大100,000円 | |||
| 保証金 | - | 償却・敷引 | - |
| 住宅保険料 | 1.655万円(2年) | 更新料 | - |
| 保証会社利用 | 必須 | 保証会社名 | エポスカード(RP) |
| 保証会社費用 | - | 保証会社備考 | 保証料:賃料等の50%(最低2万)、月額保証料:賃料等の1%(更新料無) |
| 契約形態 | - | 契約期間 | 2年 |
| 入居・引渡期間 | 2026年02月下旬 | 現況 | - |
| 契約備考 | 小型犬:不可、大型犬:不可、猫:不可 清掃費 27500円/エアコン清掃費 8250円/駐輪場ステッカー 440円 | ||
部屋の情報
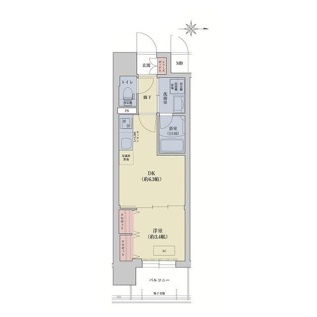
| 間取り | 1DK | 専有面積 | 27.22m2 |
|---|---|---|---|
| 間取り詳細 | DK(6.3帖)、洋室(3.4帖) | ||
| 所在階 / 向き | 2階 / 東 | バルコニー面積 | - |
| 水道 / ガス | - | ||
| 設備 | バス・トイレ別、オートロック、テレビドアホン、宅配ボックス、浴室乾燥機、エレベーター、洗濯機:室内 | ||
| 当社物件ID | 160146821 | ||
建物の情報
| 建物名 | リシュドール梅小路 | ||
|---|---|---|---|
| 所在地 | 京都府京都市下京区朱雀分木町 | ||
| 交通 | 山陰本線 丹波口駅 徒歩8分 | ||
| 階数 | 11階建 | 総戸数 | 130戸 |
| 築年月 | 2026年02月 / 新築 | エレベーター | あり |
| 駐車場 | - | バイク置き場 | - |
| 駐輪場 | あり | 管理人/管理会社 | - |
| 建物種別 | マンション | 建物構造 | RC(鉄筋コンクリート) |
この部屋の取扱い不動産会社
| 会社名 | アパマンショップ四条烏丸店 | ||
|---|---|---|---|
| 所在地 | 47-3四条新町ビル1F | 交通 | 京都市烏丸線四条から徒歩3分 |
| 営業時間 | 09:30〜19:00 | 定休日 | - |
| 免許番号 | 京都府知事(5)11578 | 取引態様 | 仲介 |
| 不動産会社管理番号 | 111536042 | 当社管理番号 | 4 |
| 所属団体 | (公社)京都府宅地建物取引業協会 | ||
| 公正取引協議会 | (公社) 近畿地区不動産公正取引協議会加盟 | ||
| 取扱い物件情報 | 物件詳細へ | ||
※各種情報と現状に差異がある場合は、現状優先となります。問い合わせをすることで、より詳しい条件、情報を確認する事ができます。
提供:アパマンショップ四条烏丸店
この物件が気になったら掲載期限まであと12日
リシュドール梅小路に条件(家賃・エリア)が近い物件一覧
| 写真 | 家賃 管理費等 | 敷金 礼金 | 間取り 専有面積 | 築年数 | 最寄り駅 所在地 | キープ | 詳細 |
|---|---|---|---|---|---|---|---|
マンション 阪急電鉄京都線 長岡天神駅 徒歩7分 築7年(1K/4階) | |||||||
![]() | 7.15万円 4,600円 | なし 10万円 | 1K 28.83m2 | 築7年 | 阪急電鉄京都線 長岡天神駅 徒歩7分 東海道本線 長岡京駅 徒歩17分 京都府長岡京市長岡1丁目 | 詳細を見る | |
マンション 近鉄京都線 大久保駅(京都) 徒歩3分 築33年(1DK/2階) | |||||||
![]() | 5.6万円 3,500円 | 5万円 10万円 | 1DK 28.49m2 | 築33年 | 近鉄京都線 大久保駅(京都) 徒歩3分 近鉄京都線 久津川駅 徒歩9分 京都府宇治市大久保町 | 詳細を見る | |
アパート 京都市烏丸線 五条駅(京都市営) 徒歩9分 築16年(1K/3階) | |||||||
![]() | 8.6万円 7,000円 | なし 17.2万円 | 1K 19.87m2 | 築16年 | 京都市烏丸線 五条駅(京都市営) 徒歩9分 京都市烏丸線 四条駅(京都市営) 徒歩13分 京都府京都市下京区月見町 | 詳細を見る | |
マンション コスモリード西馬込(2LDK/2階) | |||||||
![]() | 21.5万円 2万円 | 21.5万円 なし | 2LDK 50.18m2 | 築21年 | 都営浅草線 西馬込駅 徒歩11分 東急池上線 久が原駅 徒歩19分 東急池上線 御嶽山駅 徒歩22分 東京都大田区仲池上 | 詳細を見る | |
アパート 奈良線 宇治駅(JR) 徒歩5分 築12年(1LDK/2階) | |||||||
![]() | 6.7万円 4,600円 | なし 9万円 | 1LDK 41.29m2 | 築12年 | 奈良線 宇治駅(JR) 徒歩5分 京阪電気鉄道宇治線 宇治駅(京阪) 徒歩15分 京都府宇治市宇治若森 | 詳細を見る | |
マンション 東海道本線 京都駅 徒歩10分 築17年(1K/1階) | |||||||
![]() | 6.1万円 6,000円 | なし なし | 1K 23.18m2 | 築17年 | 東海道本線 京都駅 徒歩10分 京都市烏丸線 京都駅 徒歩10分 京都府京都市下京区南夷町 | 詳細を見る | |
マンション 京阪電気鉄道京阪線 清水五条駅 徒歩4分 築20年(1K/8階) | |||||||
![]() | 7.1万円 8,000円 | なし 7.1万円 | 1K 28.03m2 | 築20年 | 京阪電気鉄道京阪線 清水五条駅 徒歩4分 京都市烏丸線 五条駅(京都市営) 徒歩10分 京都府京都市下京区西橋詰町 | 詳細を見る | |
アパート 近鉄京都線 小倉駅(京都) 徒歩9分 築35年(1K/3階) | |||||||
![]() | 4.7万円 5,000円 | 4.7万円 4.7万円 | 1K 30m2 | 築35年 | 近鉄京都線 小倉駅(京都) 徒歩9分 奈良線 JR小倉駅 徒歩12分 京都府宇治市小倉町 | 詳細を見る | |









