賃貸マンション
アドヴァンス・石雅の賃貸物件情報(1K/2階)
| 家賃 | 管理費等 | 敷金 | 礼金 | 間取り | 専有面積 |
|---|---|---|---|---|---|
| 7.9万円 | 6,000円 | 7.9万円 | なし | 1K | 24.13m2 |
入居決定でお祝い金最大100,000円
Point
まずはお問い合わせ!
不動産会社は街のプロ、あなたに合った物件がきっと見つかります。
提供:(株)ジョイント・プロパティ(SUUMO経由)

詳細情報 アドヴァンス・石雅
物件紹介
アドヴァンス・石雅は東急東横線綱島駅から徒歩1分にあり、駅近で通勤通学に便利なマンションです。
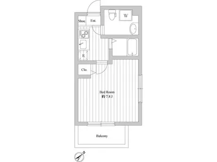
このお部屋は2階以上に位置しているので通行人や周囲の住人からの視線が気になりにくく、建物のエントランスはオートロックがついているので防犯性が高くなっています。
人気の南向きのお部屋。角部屋でもあるため、周囲の居住者の生活音も気になりにくい場所です。キッチンはシステムキッチン仕様になっていますので、お料理好きの方にもぴったり。また、バス・トイレは別で、のんびりお風呂タイムも楽しめるでしょう。
通信設備面では、インターネット接続が可能です。また、CATVにも対応しているので、おうち時間も充実するでしょう(別途工事、契約料が必要な場合あり)。
建物にはエレベーターがついているので、重い荷物があっても安心。
このお部屋は2階以上に位置しているので通行人や周囲の住人からの視線が気になりにくく、建物のエントランスはオートロックがついているので防犯性が高くなっています。
人気の南向きのお部屋。角部屋でもあるため、周囲の居住者の生活音も気になりにくい場所です。キッチンはシステムキッチン仕様になっていますので、お料理好きの方にもぴったり。また、バス・トイレは別で、のんびりお風呂タイムも楽しめるでしょう。
通信設備面では、インターネット接続が可能です。また、CATVにも対応しているので、おうち時間も充実するでしょう(別途工事、契約料が必要な場合あり)。
建物にはエレベーターがついているので、重い荷物があっても安心。
お金・契約の情報
※「-」と表示されているものは、実際は料金が発生するものもございます。詳細はお問い合わせください。
| 家賃 | 7.9万円 | 管理費・共益費 | 6,000円 |
|---|---|---|---|
| 敷金 | 7.9万円 | 礼金 | なし |
| 入居決定でお祝い金最大100,000円 | |||
| 保証金 | - | 償却・敷引 | - |
| 住宅保険料 | - | 更新料 | - |
| 保証会社利用 | 必須 | 保証会社名 | - |
| 保証会社費用 | - | 保証会社備考 | 保証会社利用必 Selecty(日本セーフティー) 要確認 |
| 契約形態 | - | 契約期間 | - |
| 入居・引渡期間 | - | 現況 | - |
| 契約備考 | 1K 損保【1.9万円2年】 バルコニー、エアコン、クロゼット、オートロック、室内洗濯置、シューズボックス、システムキッチン、温水洗浄便座、エレベーター、洗面化粧台、礼金不要、防犯カメラ、IHクッキングヒーター、CATVインターネット、2面バルコニー、2沿線利用可、クッションフロア、2駅利用可、駅徒歩5分以内、敷地内ごみ置き場、東南向き、都市ガス 入居日:'26年2月中旬 | ||
部屋の情報
| 間取り | 1K | 専有面積 | 24.13m2 |
|---|---|---|---|
| 所在階 / 向き | 2階 / 南東 | バルコニー面積 | - |
| 水道 / ガス | - | ||
| 設備 | 2階以上、オートロック、インターネット対応、システムキッチン、エアコン、エレベーター、温水洗浄便座、南向き、バルコニー、コンロ:IH、CATV、洗濯機:室内 | ||
| 当社物件ID | 12789009 | ||
建物の情報
| 建物名 | アドヴァンス・石雅 | ||
|---|---|---|---|
| 所在地 | 神奈川県横浜市港北区綱島西 | ||
| 交通 | 東急東横線 綱島駅 徒歩1分 | ||
| 階数 | 8階建 | 総戸数 | 28戸 |
| 築年月 | 2006年03月 / 築20年 | エレベーター | あり |
| 駐車場 | なし | バイク置き場 | - |
| 駐輪場 | - | 管理人/管理会社 | - |
| 建物種別 | マンション | 建物構造 | RC(鉄筋コンクリート) |
この部屋の取扱い不動産会社
| 会社名 | (株)ジョイント・プロパティ(SUUMO経由) | ||
|---|---|---|---|
| 所在地 | 東京都港区芝2-31-19 バンザイビル1階 | 交通 | - |
| 営業時間 | 10:00-17:30 | 定休日 | - |
| 免許番号 | 東京都知事95919 | 取引態様 | 代理 |
| 不動産会社管理番号 | 100480253069 | 当社管理番号 | 89 |
| 所属団体 | (公社)全日本不動産協会東京都本部会員 | ||
| 公正取引協議会 | (公社)首都圏不動産公正取引協議会加盟 | ||
| 取扱い物件情報 | 物件詳細へ | ||
※各種情報と現状に差異がある場合は、現状優先となります。問い合わせをすることで、より詳しい条件、情報を確認する事ができます。
提供:(株)ジョイント・プロパティ(SUUMO経由)
この物件が気になったら掲載期限まであと10日
アドヴァンス・石雅に条件(家賃・エリア)が近い物件一覧
| 写真 | 家賃 管理費等 | 敷金 礼金 | 間取り 専有面積 | 築年数 | 最寄り駅 所在地 | キープ | 詳細 |
|---|---|---|---|---|---|---|---|
一戸建て 小田急電鉄江ノ島線 善行駅 徒歩12分 築50年(3LDK) | |||||||
![]() | 11.5万円 5,000円 | なし なし | 3LDK 71.87m2 | 築50年 | 小田急電鉄江ノ島線 善行駅 徒歩12分 神奈川県藤沢市立石1丁目 | 詳細を見る | |
マンション COLLINA VERDE(1K/2階) | |||||||
![]() | 5.7万円 なし | 5.7万円 5.7万円 | 1K 22.68m2 | 築36年 | 小田急線 向ケ丘遊園駅 徒歩14分 小田急線 生田駅(神奈川) 徒歩21分 小田急線 登戸駅 徒歩24分 神奈川県川崎市多摩区枡形 | 詳細を見る | |
マンション エスペリオ(ワンルーム/3階) | |||||||
![]() | 7.9万円 6,000円 | なし 15.8万円 | ワンルーム 19.55m2 | 築19年 | 京急本線 京急川崎駅 徒歩3分 JR京浜東北線 川崎駅 徒歩5分 京急大師線 港町駅 徒歩14分 神奈川県川崎市川崎区宮本町 | 詳細を見る | |
アパート コンフォルト川崎(ワンルーム/2階) | |||||||
![]() | 5.5万円 4,000円 | なし なし | ワンルーム 20.67m2 | 築1年 | 鶴見線 武蔵白石駅 徒歩13分 神奈川県川崎市川崎区浅田2丁目 | 詳細を見る | |
マンション レオパレスパルコートB(1K/2階) | |||||||
![]() | 8.9万円 5,500円 | なし 8.9万円 | 1K 22.47m2 | 築18年 | 東急田園都市線 梶が谷駅 徒歩6分 JR南武線 武蔵溝ノ口駅 徒歩19分 JR南武線 津田山駅 徒歩23分 神奈川県川崎市高津区末長 | 詳細を見る | |
マンション シャトーコバヤシ(ワンルーム/4階) | |||||||
![]() | 6.3万円 4,000円 | なし なし | ワンルーム 16.5m2 | 築40年 | 南武線 武蔵新城駅 徒歩5分 南武線 武蔵中原駅 徒歩15分 神奈川県川崎市中原区上小田中3丁目 | 詳細を見る | |
アパート GATHER HOUSE 宮崎台(1K/2階) | |||||||
![]() | 7.6万円 4,000円 | 7.6万円 7.6万円 | 1K 22.18m2 | 築10年 | 東急田園都市線 宮崎台駅 徒歩8分 東急田園都市線 梶が谷駅 徒歩18分 東急田園都市線 宮前平駅 徒歩19分 神奈川県川崎市宮前区宮崎 | 詳細を見る | |








