賃貸マンション
コンフォリア・リヴ八丁堀の賃貸物件情報(1DK/5階)
| 家賃 | 管理費等 | 敷金 | 礼金 | 間取り | 専有面積 |
|---|---|---|---|---|---|
| 15.9万円 | 1万円 | 15.9万円 | なし | 1DK | 25.13m2 |
入居決定でお祝い金最大100,000円
- 保証金
- -
- 償却・敷引
- -
- 築年数
- 築1年
- 所在階
- 5階
- 向き
- 北
Point
【物件情報数No1!物件のメリットデメリット、学区やエリア特性などもご紹介】お問合せはプリモホームへ→TEL:03-5289-8777
提供:恵比寿不動産 恵比寿店(株)ライフアドバンス(SUUMO経由)

詳細情報 コンフォリア・リヴ八丁堀
物件紹介
コンフォリア・リヴ八丁堀は東京メトロ有楽町線新富町駅から徒歩4分にあり、駅近で通勤通学に便利なマンションです。
このお部屋は2階以上に位置しているので、通行人や周囲の住人からの視線が気になりにくく、防犯面でも安心。建物のエントランスはオートロックがついており、インターホンにはTVモニタもついているため、相手の顔を確認してから来客対応することができます。
おしゃれなデザイナーズ物件!フローリングのお部屋なのでお掃除もラクラク。室内には人気のウォークインクローゼットがありますので、たくさんの荷物も効率的に収納ができます。キッチンはシステムキッチン仕様になっていますので、お料理好きの方にもぴったり。バス・トイレは別なので、のんびりお風呂タイムも楽しめるでしょう。また、雨の日でも浴室乾燥機を使えば、お洗濯も問題ありません。
通信設備面では、インターネットが無料で使えるので、月々の出費を抑えられるのも魅力です。また、BSアンテナ・CSアンテナがありCATVにも対応しているので、おうち時間も充実するでしょう(別途工事、BS・CS・CATVの契約料等が必要な場合あり)。
建物にはエレベーターがついているので、重い荷物があっても安心。共用部には宅配ボックスが設定されているので、不在の時にも荷物を受け取ることができます。また、ペット飼育の相談ができますので、あなたの大切な家族の一員も快適に暮らせるか、ぜひ確認してみてください。
このお部屋は2階以上に位置しているので、通行人や周囲の住人からの視線が気になりにくく、防犯面でも安心。建物のエントランスはオートロックがついており、インターホンにはTVモニタもついているため、相手の顔を確認してから来客対応することができます。
おしゃれなデザイナーズ物件!フローリングのお部屋なのでお掃除もラクラク。室内には人気のウォークインクローゼットがありますので、たくさんの荷物も効率的に収納ができます。キッチンはシステムキッチン仕様になっていますので、お料理好きの方にもぴったり。バス・トイレは別なので、のんびりお風呂タイムも楽しめるでしょう。また、雨の日でも浴室乾燥機を使えば、お洗濯も問題ありません。
通信設備面では、インターネットが無料で使えるので、月々の出費を抑えられるのも魅力です。また、BSアンテナ・CSアンテナがありCATVにも対応しているので、おうち時間も充実するでしょう(別途工事、BS・CS・CATVの契約料等が必要な場合あり)。
建物にはエレベーターがついているので、重い荷物があっても安心。共用部には宅配ボックスが設定されているので、不在の時にも荷物を受け取ることができます。また、ペット飼育の相談ができますので、あなたの大切な家族の一員も快適に暮らせるか、ぜひ確認してみてください。
お金・契約の情報
※「-」と表示されているものは、実際は料金が発生するものもございます。詳細はお問い合わせください。
| 家賃 | 15.9万円 | 管理費・共益費 | 1万円 |
|---|---|---|---|
| 敷金 | 15.9万円 | 礼金 | なし |
| 入居決定でお祝い金最大100,000円 | |||
| 保証金 | - | 償却・敷引 | - |
| 住宅保険料 | - | 更新料 | - |
| 保証会社利用 | 必須 | 保証会社名 | - |
| 保証会社費用 | - | 保証会社備考 | 保証会社利用必 初回保証料:月額総賃料の50%から ※一部クレカ決済可・外国籍専用プランあり詳細はお問い合わせください。 |
| 契約形態 | - | 契約期間 | - |
| 入居・引渡期間 | - | 現況 | - |
| 入居可能条件 | ペット相談 | ||
| 契約備考 | 巡回管理/【新築賃貸マンションの募集が開始!ペット飼育可(小型犬1匹猫2匹まで)!ネット無料で利用可能です☆】 ★★新築物件は掲載しているお部屋以外でもご紹介可能です!詳細はお問い合わせください★★ネット非公開の物件からも類似物件をたくさんご提案!ベストなお部屋をご紹いたします♪zoomなどで内見可能!室内写真・動画・採寸いたします!! 1DK 単身者可/二人入居可/ペット相談 損保【1.66万円2年】 バストイレ別、バルコニー、エアコン、クロゼット、フローリング、TVインターホン、浴室乾燥機、オートロック、室内洗濯置、システムキッチン、温水洗浄便座、脱衣所、エレベーター、洗面所独立、洗面化粧台、2口コンロ、宅配ボックス、CATV、礼金不要、BS・CS、対面式キッチン、防犯カメラ、ペット相談、ウォークインクロゼット、保証人不要、単身者相談、仲介手数料不要、敷金1ヶ月、二人入居相談、バイク置場、全居室フローリング、デザイナーズ、2沿線利用可、CS、駅まで平坦、ネット使用料不要、保証金不要、24時間換気システム、2駅利用可、3駅以上利用可、3沿線以上利用可、24時間ゴミ出し可、敷地内ごみ置き場、都市ガス、シューズWIC、天井高シューズクロゼット、玄関収納、BS、年度内入居可、保証会社利用可、IT重説対応物件、初期費用カード決済可、家賃カード決済可 敷金積み増し【ペット飼育の場合敷金2ヶ月(総額)】 入居日:'26年3月中旬 | ||
部屋の情報
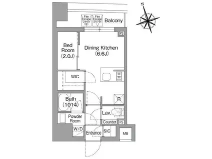
| 間取り | 1DK | 専有面積 | 25.13m2 |
|---|---|---|---|
| 所在階 / 向き | 5階 / 北 | バルコニー面積 | - |
| 水道 / ガス | - | ||
| 設備 | バス・トイレ別、2階以上、オートロック、テレビドアホン、宅配ボックス、浴室乾燥機、ウォークインクローゼット、インターネット対応、システムキッチン、エアコン、エレベーター、温水洗浄便座、バルコニー、フローリング、洗髪洗面化粧台、2口コンロ、デザイナーズ、CATV、CSアンテナ、BSアンテナ、インターネット使用料無料、洗濯機:室内 | ||
| 当社物件ID | 160228047 | ||
建物の情報
| 建物名 | コンフォリア・リヴ八丁堀 | ||
|---|---|---|---|
| 所在地 | 東京都中央区入船 | ||
| 交通 | 東京メトロ有楽町線 新富町駅(東京) 徒歩4分 東京メトロ日比谷線 八丁堀駅(東京) 徒歩4分 JR山手線 東京駅 徒歩20分 | ||
| 階数 | 12階建 | 総戸数 | 53戸 |
| 築年月 | 2026年02月 / 築1年 | エレベーター | あり |
| 駐車場 | 空有 55000円 | バイク置き場 | あり |
| 駐輪場 | - | 管理人/管理会社 | - |
| 周辺環境 | その他 マルエツ八丁堀四丁目店(スーパー)まで320m その他 ファミリーマート入船一丁目店(コンビニ)まで76m その他 スギ薬局八丁堀店(ドラッグストア)まで586m その他 すき家八丁堀四丁目店(飲食店)まで334m その他 新富郵便局(郵便局)まで216m その他 三菱UFJ銀行八重洲通支店(銀行)まで237m | ||
| 建物種別 | マンション | 建物構造 | RC(鉄筋コンクリート) |
この部屋の取扱い不動産会社
| 会社名 | Primo Home (株)ライズ(SUUMO経由) | ||
|---|---|---|---|
| 所在地 | 東京都千代田区神田紺屋町 27 ベスト紺屋町2階 | 交通 | - |
| 営業時間 | 10:00~18:00 18時以降もご相談ください | 定休日 | 水曜日 |
| 免許番号 | 東京都知事100653 | 取引態様 | 仲介 |
| 不動産会社管理番号 | 100483471849 | 当社管理番号 | 89 |
| 所属団体 | (公社)全日本不動産協会東京都本部会員 | ||
| 公正取引協議会 | (公社)首都圏不動産公正取引協議会加盟 | ||
| 取扱い物件情報 | 物件詳細へ | ||
※各種情報と現状に差異がある場合は、現状優先となります。問い合わせをすることで、より詳しい条件、情報を確認する事ができます。
提供:Primo Home (株)ライズ(SUUMO経由)
この物件が気になったら掲載期限まであと9日
コンフォリア・リヴ八丁堀の空き部屋一覧
全部で43の空き部屋があります。
コンフォリア・リヴ八丁堀に条件(家賃・エリア)が近い物件一覧
| 写真 | 家賃 管理費等 | 敷金 礼金 | 間取り 専有面積 | 築年数 | 最寄り駅 所在地 | キープ | 詳細 |
|---|---|---|---|---|---|---|---|
マンション アーバネックス菊川(2LDK/3階) | |||||||
![]() | 20.5万円 1.5万円 | 20.5万円 なし | 2LDK 40.56m2 | 築7年 | 都営新宿線 菊川駅(東京) 徒歩7分 都営新宿線 森下駅(東京) 徒歩14分 都営大江戸線 両国駅 徒歩16分 東京都墨田区立川 | 詳細を見る | |
マンション ミライズ東京イーストアネックス(1LDK/7階) | |||||||
![]() | 15.1万円 1万円 | なし 15.1万円 | 1LDK 40.8m2 | 築2年 | 東武亀戸線 小村井駅 徒歩7分 京成押上線 京成曳舟駅 徒歩14分 東武伊勢崎線 曳舟駅 徒歩18分 東京都墨田区八広 | 詳細を見る | |
マンション SKULD墨田緑(1LDK/2階) | |||||||
![]() | 20万円 1.5万円 | なし なし | 1LDK 38.15m2 | 築1年 | 東京都大江戸線 両国駅 徒歩6分 総武・中央緩行線 両国駅 徒歩10分 総武・中央緩行線 錦糸町駅 徒歩15分 東京都墨田区緑2丁目 | 詳細を見る | |
マンション DIMUS勝どき(1K/6階) | |||||||
![]() | 11.8万円 1.2万円 | 11.8万円 11.8万円 | 1K 25.09m2 | 築9年 | 都営大江戸線 勝どき駅 徒歩8分 東京メトロ有楽町線 月島駅 徒歩16分 東京メトロ日比谷線 築地駅 徒歩23分 東京都中央区勝どき | 詳細を見る | |




