賃貸マンション
コンフォリア・リヴ八丁堀の賃貸物件情報(1DK/5階)
| 家賃 | 管理費等 | 敷金 | 礼金 | 間取り | 専有面積 |
|---|---|---|---|---|---|
| 16万円 | 1万円 | 16万円 | なし | 1DK | 25.13m2 |
入居決定でお祝い金最大100,000円
- 保証金
- -
- 償却・敷引
- -
- 築年数
- 新築
- 所在階
- 5階
- 向き
- 北東
Point
まずはお問い合わせ!
不動産会社は街のプロ、あなたに合った物件がきっと見つかります。
提供:東急リバブル(株)銀座センター(SUUMO経由)

詳細情報 コンフォリア・リヴ八丁堀
物件紹介
コンフォリア・リヴ八丁堀は東京メトロ日比谷線八丁堀駅から徒歩4分にあり、駅近で通勤通学に便利なマンションです。
このお部屋は2階以上に位置しているので、通行人や周囲の住人からの視線が気になりにくく、防犯面でも安心。建物のエントランスはオートロックがついており、インターホンにはTVモニタもついているため、相手の顔を確認してから来客対応することができます。
おしゃれなデザイナーズ物件!人気の角部屋で周囲の居住者の生活音も気になりにくく、また、フローリングのお部屋なのでお掃除もラクラク。室内にはウォークインクローゼットがありますので、たくさんの荷物も効率的に収納ができます。キッチンはシステムキッチン仕様になっていますので、お料理好きの方にもぴったり。バス・トイレは別なので、のんびりお風呂タイムも楽しめるでしょう。また、雨の日でも浴室乾燥機を使えば、お洗濯も問題ありません。
通信設備面では、インターネットが無料で使えるので、月々の出費を抑えられるのも魅力です。また、BSアンテナ・CSアンテナがありCATVにも対応しているので、おうち時間も充実するでしょう(別途工事、BS・CS・CATVの契約料等が必要な場合あり)。
建物にはエレベーターがついているので、重い荷物があっても安心。共用部には宅配ボックスが設定されているので、不在の時にも荷物を受け取ることができます。また、ペット飼育の相談ができますので、あなたの大切な家族の一員も快適に暮らせるか、ぜひ確認してみてください。
このお部屋は2階以上に位置しているので、通行人や周囲の住人からの視線が気になりにくく、防犯面でも安心。建物のエントランスはオートロックがついており、インターホンにはTVモニタもついているため、相手の顔を確認してから来客対応することができます。
おしゃれなデザイナーズ物件!人気の角部屋で周囲の居住者の生活音も気になりにくく、また、フローリングのお部屋なのでお掃除もラクラク。室内にはウォークインクローゼットがありますので、たくさんの荷物も効率的に収納ができます。キッチンはシステムキッチン仕様になっていますので、お料理好きの方にもぴったり。バス・トイレは別なので、のんびりお風呂タイムも楽しめるでしょう。また、雨の日でも浴室乾燥機を使えば、お洗濯も問題ありません。
通信設備面では、インターネットが無料で使えるので、月々の出費を抑えられるのも魅力です。また、BSアンテナ・CSアンテナがありCATVにも対応しているので、おうち時間も充実するでしょう(別途工事、BS・CS・CATVの契約料等が必要な場合あり)。
建物にはエレベーターがついているので、重い荷物があっても安心。共用部には宅配ボックスが設定されているので、不在の時にも荷物を受け取ることができます。また、ペット飼育の相談ができますので、あなたの大切な家族の一員も快適に暮らせるか、ぜひ確認してみてください。
お金・契約の情報
※「-」と表示されているものは、実際は料金が発生するものもございます。詳細はお問い合わせください。
| 家賃 | 16万円 | 管理費・共益費 | 1万円 |
|---|---|---|---|
| 敷金 | 16万円 | 礼金 | なし |
| 入居決定でお祝い金最大100,000円 | |||
| 保証金 | - | 償却・敷引 | - |
| 住宅保険料 | - | 更新料 | - |
| 保証会社利用 | 必須 | 保証会社名 | - |
| 保証会社費用 | - | 保証会社備考 | 保証会社利用必 レジデンシャルパートナーズ 保証料:賃料等の50%(最低2万)、月額保証・事務手数料:賃料等の1%( |
| 契約形態 | - | 契約期間 | - |
| 入居・引渡期間 | - | 現況 | - |
| 入居可能条件 | ペット相談 | ||
| 契約備考 | 合計4.95万円(内訳:クリーニング費用:38500円/エアコン清掃費:11000円) 1DK ペット相談 損保【1.66万円2年】 バストイレ別、エアコン、TVインターホン、浴室乾燥機、オートロック、室内洗濯置、温水洗浄便座、エレベーター、洗面所独立、駐輪場、宅配ボックス、礼金不要、ペット相談、ウォークインクロゼット、敷金1ヶ月、CS、築2年以内、2駅利用可、3沿線以上利用可、駅徒歩5分以内、平面駐車場、BS 入居日:'26年3月中旬 | ||
部屋の情報
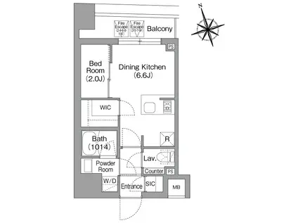
| 間取り | 1DK | 専有面積 | 25.13m2 |
|---|---|---|---|
| 所在階 / 向き | 5階 / 北東 | バルコニー面積 | - |
| 水道 / ガス | - | ||
| 設備 | バス・トイレ別、2階以上、オートロック、テレビドアホン、宅配ボックス、浴室乾燥機、ウォークインクローゼット、エアコン、エレベーター、温水洗浄便座、洗髪洗面化粧台、CSアンテナ、BSアンテナ、洗濯機:室内 | ||
| 当社物件ID | 160233883 | ||
建物の情報
| 建物名 | コンフォリア・リヴ八丁堀 | ||
|---|---|---|---|
| 所在地 | 東京都中央区入船 | ||
| 交通 | 東京メトロ日比谷線 八丁堀駅(東京) 徒歩4分 東京メトロ有楽町線 新富町駅(東京) 徒歩4分 JR京葉線 八丁堀駅(東京) 徒歩5分 | ||
| 階数 | 12階建 | 総戸数 | 53戸 |
| 築年月 | 2026年02月 / 新築 | エレベーター | あり |
| 駐車場 | なし | バイク置き場 | - |
| 駐輪場 | あり | 管理人/管理会社 | - |
| 建物種別 | マンション | 建物構造 | RC(鉄筋コンクリート) |
この部屋の取扱い不動産会社
| 会社名 | 東急リバブル(株)銀座センター(SUUMO経由) | ||
|---|---|---|---|
| 所在地 | 東京都中央区銀座2-11-8 ラウンドクロス銀座2丁目7階 | 交通 | - |
| 営業時間 | AM10:00~PM6:00 | 定休日 | 毎週火曜日・水曜日 |
| 免許番号 | 国土交通大臣2611 | 取引態様 | 仲介 |
| 不動産会社管理番号 | 100483365416 | 当社管理番号 | 89 |
| 所属団体 | (一社)不動産流通経営協会会員 | ||
| 公正取引協議会 | (公社)首都圏不動産公正取引協議会加盟 | ||
| 取扱い物件情報 | 物件詳細へ | ||
※各種情報と現状に差異がある場合は、現状優先となります。問い合わせをすることで、より詳しい条件、情報を確認する事ができます。
提供:東急リバブル(株)銀座センター(SUUMO経由)

