賃貸マンション
ZOOM武蔵新城の賃貸物件情報(1K/1階)
| 家賃 | 管理費等 | 敷金 | 礼金 | 間取り | 専有面積 |
|---|---|---|---|---|---|
| 8.9万円 | 1.3万円 | 8.9万円 | なし | 1K | 25.35m2 |
入居決定でお祝い金最大100,000円
Point
★初期費用クレジット決済可能★現地待ち合わせでご案内可能です。IT重説を導入しているので来社不要で契約~鍵渡しまで可能です!
提供:(株)LENZ DX(SUUMO経由)

詳細情報 ZOOM武蔵新城
物件紹介
ZOOM武蔵新城はJR南武線武蔵新城駅から徒歩11分にあるマンションです。
建物のエントランスはオートロックがついており、インターホンにはTVモニタもついているため、相手の顔を確認してから来客対応することができます。
おしゃれなデザイナーズ物件!フローリングのお部屋なのでお掃除もラクラク。キッチンはシステムキッチン仕様になっていますので、お料理好きの方にもぴったり。バス・トイレは別なので、のんびりお風呂タイムも楽しめるでしょう。また、雨の日でも浴室乾燥機を使えば、お洗濯も問題ありません。
通信設備面では、インターネットが無料で使えるので、月々の出費を抑えられるのも魅力です。また、CATVにも対応しているので、おうち時間も充実するでしょう(別途工事、CATVの契約料等が必要な場合あり)。
建物にはエレベーターがついているので、重い荷物があっても安心。共用部には宅配ボックスが設定されているので、不在の時にも荷物を受け取ることができます。また、ペット飼育の相談ができますので、あなたの大切な家族の一員も快適に暮らせるか、ぜひ確認してみてください。
建物のエントランスはオートロックがついており、インターホンにはTVモニタもついているため、相手の顔を確認してから来客対応することができます。
おしゃれなデザイナーズ物件!フローリングのお部屋なのでお掃除もラクラク。キッチンはシステムキッチン仕様になっていますので、お料理好きの方にもぴったり。バス・トイレは別なので、のんびりお風呂タイムも楽しめるでしょう。また、雨の日でも浴室乾燥機を使えば、お洗濯も問題ありません。
通信設備面では、インターネットが無料で使えるので、月々の出費を抑えられるのも魅力です。また、CATVにも対応しているので、おうち時間も充実するでしょう(別途工事、CATVの契約料等が必要な場合あり)。
建物にはエレベーターがついているので、重い荷物があっても安心。共用部には宅配ボックスが設定されているので、不在の時にも荷物を受け取ることができます。また、ペット飼育の相談ができますので、あなたの大切な家族の一員も快適に暮らせるか、ぜひ確認してみてください。
お金・契約の情報
※「-」と表示されているものは、実際は料金が発生するものもございます。詳細はお問い合わせください。
| 家賃 | 8.9万円 | 管理費・共益費 | 1.3万円 |
|---|---|---|---|
| 敷金 | 8.9万円 | 礼金 | なし |
| 入居決定でお祝い金最大100,000円 | |||
| 保証金 | - | 償却・敷引 | - |
| 住宅保険料 | - | 更新料 | - |
| 保証会社利用 | 必須 | 保証会社名 | - |
| 保証会社費用 | - | 保証会社備考 | 保証会社利用必 トーシンライフ、オリコフォレントインシュア、全保連/保証料:初回=賃料等×50%、月額=賃料等×1% |
| 契約形態 | - | 契約期間 | - |
| 入居・引渡期間 | - | 現況 | - |
| 入居可能条件 | ペット相談 | ||
| 契約備考 | ■契約時:当月分+翌月分の賃料・管理費をお支払い頂きます ■ペット飼育時:敷金1ヶ月追加(別途飼育細則参照・要申請書) ■解約時:ルームクリーニング費用及び借主負担分の原状回復費用をお支払い頂きます、家財保険+付帯サービス(税込)1735円/月 1K ペット相談 普通借家2年 バストイレ別、バルコニー、エアコン、ガスコンロ対応、クロゼット、フローリング、TVインターホン、浴室乾燥機、オートロック、室内洗濯置、シューズボックス、システムキッチン、追焚機能浴室、温水洗浄便座、脱衣所、エレベーター、洗面所独立、洗面化粧台、2口コンロ、駐輪場、宅配ボックス、CATV、外壁タイル張り、礼金不要、防犯カメラ、ペット相談、照明付、分譲賃貸、オートバス、敷金1ヶ月、バイク置場、デザイナーズ、ディンプルキー、ネット専用回線、ネット使用料不要、築2年以内、24時間換気システム、外壁コンクリート、人感照明センサー、耐震構造、未入居、24時間ゴミ出し可、クリーニングボックス、風除室、敷地内ごみ置き場、都市ガス、LAN、マルチメディアコンセント 入居日:'26年3月中旬 | ||
部屋の情報
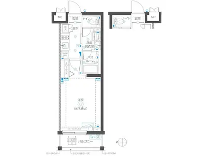
| 間取り | 1K | 専有面積 | 25.35m2 |
|---|---|---|---|
| 所在階 / 向き | 1階 / 西 | バルコニー面積 | 3m2 |
| 水道 / ガス | - | ||
| 設備 | バス・トイレ別、オートロック、テレビドアホン、宅配ボックス、浴室乾燥機、追い焚き、インターネット対応、システムキッチン、エアコン、エレベーター、温水洗浄便座、バルコニー、フローリング、洗髪洗面化粧台、2口コンロ、コンロ:ガス、デザイナーズ、CATV、インターネット使用料無料、洗濯機:室内 | ||
| 当社物件ID | 160323088 | ||
建物の情報
| 建物名 | ZOOM武蔵新城 | ||
|---|---|---|---|
| 所在地 | 神奈川県川崎市高津区千年 | ||
| 交通 | JR南武線 武蔵新城駅 徒歩11分 | ||
| 階数 | 5階建 | 総戸数 | 64戸 |
| 築年月 | 2026年03月 / 新築 | エレベーター | あり |
| 駐車場 | なし | バイク置き場 | あり |
| 駐輪場 | あり | 管理人/管理会社 | - |
| 建物種別 | マンション | 建物構造 | RC(鉄筋コンクリート) |
この部屋の取扱い不動産会社
| 会社名 | (株)LENZ DX(SUUMO経由) | ||
|---|---|---|---|
| 所在地 | 東京都武蔵野市吉祥寺本町1-33-5 | 交通 | - |
| 営業時間 | AM9:30~PM6:30 | 定休日 | 日曜日定休日 |
| 免許番号 | 東京都知事86543 | 取引態様 | 仲介 |
| 不動産会社管理番号 | 100485991802 | 当社管理番号 | 89 |
| 取扱い物件情報 | 物件詳細へ | ||
※各種情報と現状に差異がある場合は、現状優先となります。問い合わせをすることで、より詳しい条件、情報を確認する事ができます。
提供:(株)LENZ DX(SUUMO経由)
この物件が気になったら掲載期限まであと10日
ZOOM武蔵新城の空き部屋一覧
全部で64の空き部屋があります。
ZOOM武蔵新城に条件(家賃・エリア)が近い物件一覧
| 写真 | 家賃 管理費等 | 敷金 礼金 | 間取り 専有面積 | 築年数 | 最寄り駅 所在地 | キープ | 詳細 |
|---|---|---|---|---|---|---|---|
マンション シャーメゾン綱島(2LDK/3階) | |||||||
![]() | 13.2万円 3,000円 | 13.2万円 19.8万円 | 2LDK 44m2 | 築8年 | 東急東横線 綱島駅 徒歩10分 神奈川県横浜市港北区綱島上町 | 詳細を見る | |
マンション TS GARDEN 都筑ふれあいの丘(ワンルーム/4階) | |||||||
![]() | 6.8万円 5,000円 | なし なし | ワンルーム 22.4m2 | 築37年 | 横浜市グリーンL 都筑ふれあいの丘駅 徒歩8分 神奈川県横浜市都筑区富士見が丘 | 詳細を見る | |
アパート アクセス西谷鶴ヶ峰(1K/2階) | |||||||
![]() | 6.5万円 4,000円 | なし なし | 1K 20.38m2 | 新築 | 相模鉄道相鉄新横浜 西谷駅 徒歩12分 神奈川県横浜市旭区白根2丁目 | 詳細を見る | |
マンション プラネットノエル(1K/1階) | |||||||
![]() | 5.7万円 1万円 | なし 5.7万円 | 1K 21.26m2 | 築20年 | 東急東横線 東白楽駅 徒歩10分 神奈川県横浜市神奈川区斎藤分町 | 詳細を見る | |
アパート ラロシェル杉田-LAROCHELLE杉田(1K/2階) | |||||||
![]() | 6.6万円 3,000円 | なし なし | 1K 18.5m2 | 築1年 | 京急本線 杉田駅(神奈川) 徒歩4分 JR京浜東北線 新杉田駅 徒歩12分 京急本線 屏風浦駅 徒歩25分 神奈川県横浜市磯子区杉田 | 詳細を見る | |
アパート ブラッサム矢向(1K/2階) | |||||||
![]() | 5.5万円 1,000円 | なし 5.5万円 | 1K 18.63m2 | 築53年 | JR南武線 矢向駅 徒歩7分 JR南武線 尻手駅 徒歩11分 JR京浜東北線 川崎駅 徒歩21分 神奈川県横浜市鶴見区矢向 | 詳細を見る | |
マンション サテライトビル(1K/3階) | |||||||
![]() | 5.6万円 4,000円 | 5.6万円 なし | 1K 19.14m2 | 築34年 | 東海道本線 戸塚駅 徒歩8分 神奈川県横浜市戸塚区上倉田町 | 詳細を見る | |
マンション ビエント横濱鶴見(1K/6階) | |||||||
![]() | 8.7万円 6,000円 | 8.7万円 17.4万円 | 1K 21.73m2 | 築6年 | 京急本線 京急鶴見駅 徒歩2分 JR京浜東北線 鶴見駅 徒歩5分 京急本線 花月総持寺駅 徒歩13分 神奈川県横浜市鶴見区鶴見中央 | 詳細を見る | |









