賃貸マンション
ココドール鳴子の賃貸物件情報(2K/2階)
| 家賃 | 管理費等 | 敷金 | 礼金 | 間取り | 専有面積 |
|---|---|---|---|---|---|
| 9万円 | なし | 9万円 | なし | 2K | 42.85m2 |
入居決定でお祝い金最大100,000円
- 保証金
- -
- 償却・敷引
- -
- 築年数
- 築1年
- 所在階
- 2階
- 向き
- 南
Point
ZEH水準の高い断熱性により、夏は涼しく冬は暖かい快適な室内環境を保ちつつ、光熱費も節約できます。駅やバス停が近く、徒歩圏内にスーパー、コンビニ等の商業施設や公園、郵便局等が揃っています。
提供:良室コーポレーション(株)良室賃貸 あらたま橋店(SUUMO経由)

詳細情報 ココドール鳴子
物件紹介
ココドール鳴子は地下鉄桜通線鳴子北駅から徒歩11分にあるマンションです。
このお部屋は2階以上に位置しているので、通行人や周囲の住人からの視線が気になりにくく、防犯面でも安心。建物のエントランスはオートロックがついており、インターホンにはTVモニタもついているため、相手の顔を確認してから来客対応することができます。
人気の南向きのお部屋。また、フローリングなのでお掃除もラクラク。キッチンはシステムキッチン仕様になっていますので、お料理好きの方にもぴったり。バス・トイレは別なので、のんびりお風呂タイムも楽しめるでしょう。また、雨の日でも浴室乾燥機を使えば、お洗濯も問題ありません。
通信設備面では、インターネットが無料で使えるので、月々の出費を抑えられるのも魅力です(別途工事等が必要な場合あり)。
建物にはエレベーターがついているので、重い荷物があっても安心。共用部には宅配ボックスが設定されているので、不在の時にも荷物を受け取ることができます。
このお部屋は2階以上に位置しているので、通行人や周囲の住人からの視線が気になりにくく、防犯面でも安心。建物のエントランスはオートロックがついており、インターホンにはTVモニタもついているため、相手の顔を確認してから来客対応することができます。
人気の南向きのお部屋。また、フローリングなのでお掃除もラクラク。キッチンはシステムキッチン仕様になっていますので、お料理好きの方にもぴったり。バス・トイレは別なので、のんびりお風呂タイムも楽しめるでしょう。また、雨の日でも浴室乾燥機を使えば、お洗濯も問題ありません。
通信設備面では、インターネットが無料で使えるので、月々の出費を抑えられるのも魅力です(別途工事等が必要な場合あり)。
建物にはエレベーターがついているので、重い荷物があっても安心。共用部には宅配ボックスが設定されているので、不在の時にも荷物を受け取ることができます。
お金・契約の情報
※「-」と表示されているものは、実際は料金が発生するものもございます。詳細はお問い合わせください。
| 家賃 | 9万円 | 管理費・共益費 | なし |
|---|---|---|---|
| 敷金 | 9万円 | 礼金 | なし |
| 入居決定でお祝い金最大100,000円 | |||
| 保証金 | - | 償却・敷引 | - |
| 住宅保険料 | - | 更新料 | - |
| 保証会社利用 | 利用可 | 保証会社名 | - |
| 保証会社費用 | - | 保証会社備考 | 保証会社利用可 初回:総賃料の20% 月額:総賃料の1% 保証会社利用の場合は、敷金不要さらに家賃1ヶ月分無料です |
| 契約形態 | - | 契約期間 | - |
| 入居・引渡期間 | - | 現況 | - |
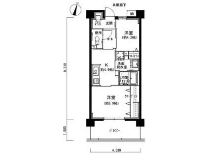
| 契約備考 | 掲載の内装写真は同型タイプの別のお部屋の写真です。 2K 二人入居可/子供可 普通借家1年 損保【要】 バストイレ別、エアコン、クロゼット、フローリング、シャワー付洗面台、TVインターホン、浴室乾燥機、オートロック、室内洗濯置、シューズボックス、システムキッチン、南向き、追焚機能浴室、温水洗浄便座、脱衣所、エレベーター、洗面所独立、2口コンロ、駐輪場、宅配ボックス、礼金不要、防犯カメラ、IHクッキングヒーター、バイク置場、ネット使用料不要、2駅利用可、敷地内ごみ置き場、都市ガス、南面バルコニー、玄関収納、保証会社利用可 入居日:'26年3月上旬 | ||
部屋の情報
| 間取り | 2K | 専有面積 | 42.85m2 |
|---|---|---|---|
| 所在階 / 向き | 2階 / 南 | バルコニー面積 | - |
| 水道 / ガス | - | ||
| 設備 | バス・トイレ別、2階以上、オートロック、テレビドアホン、宅配ボックス、浴室乾燥機、追い焚き、インターネット対応、システムキッチン、エアコン、エレベーター、温水洗浄便座、南向き、バルコニー、フローリング、洗髪洗面化粧台、2口コンロ、コンロ:IH、インターネット使用料無料、洗濯機:室内 | ||
| 当社物件ID | 159872379 | ||
建物の情報
| 建物名 | ココドール鳴子 | ||
|---|---|---|---|
| 所在地 | 愛知県名古屋市緑区鳴子町 | ||
| 交通 | 地下鉄桜通線 鳴子北駅 徒歩11分 地下鉄桜通線 相生山駅 徒歩15分 地下鉄桜通線 野並駅 徒歩20分 | ||
| 階数 | 5階建 | 総戸数 | - |
| 築年月 | 2025年02月 / 築1年 | エレベーター | あり |
| 駐車場 | 空有 9900円 | バイク置き場 | あり |
| 駐輪場 | あり | 管理人/管理会社 | - |
| 周辺環境 | その他 ファミリーマート 鳴子北駅前店(コンビニ)まで942m その他 モスバーガー鳴子店(飲食店)まで1126m その他 野並どうぶつ病院(病院)まで1401m その他 名古屋銀行 野並支店(銀行)まで1435m その他 セカンドストリート野並店(その他)まで1561m その他 ヤマダ電機 テックランドNew野並店(その他)まで1843m | ||
| 建物種別 | マンション | 建物構造 | RC(鉄筋コンクリート) |
この部屋の取扱い不動産会社
| 会社名 | 良室コーポレーション(株)良室賃貸 あらたま橋店(SUUMO経由) | ||
|---|---|---|---|
| 所在地 | 愛知県名古屋市瑞穂区瑞穂通8-16 小林ビル1階 | 交通 | - |
| 営業時間 | AM9:30~PM6:30 | 定休日 | 第2水曜日毎週木曜定休 |
| 免許番号 | 愛知県知事21287 | 取引態様 | 仲介 |
| 不動産会社管理番号 | 100484315618 | 当社管理番号 | 89 |
| 所属団体 | (公社)愛知県宅地建物取引業協会会員 | ||
| 公正取引協議会 | 東海不動産公正取引協議会加盟 | ||
| 取扱い物件情報 | 物件詳細へ | ||
※各種情報と現状に差異がある場合は、現状優先となります。問い合わせをすることで、より詳しい条件、情報を確認する事ができます。
提供:良室コーポレーション(株)良室賃貸 あらたま橋店(SUUMO経由)
この物件が気になったら掲載期限まであと11日
ココドール鳴子の空き部屋一覧
全部で27の空き部屋があります。
ココドール鳴子に条件(家賃・エリア)が近い物件一覧
| 写真 | 家賃 管理費等 | 敷金 礼金 | 間取り 専有面積 | 築年数 | 最寄り駅 所在地 | キープ | 詳細 |
|---|---|---|---|---|---|---|---|
アパート アルタ ビスタA棟(2DK/2階) | |||||||
![]() | 5.9万円 3,000円 | なし なし | 2DK 42.89m2 | 築31年 | 地下鉄桜通線 野並駅 徒歩9分 地下鉄桜通線 鳴子北駅 徒歩11分 地下鉄桜通線 鶴里駅 徒歩21分 愛知県名古屋市天白区野並 | 詳細を見る | |
マンション エトワール末広(3LDK/1階) | |||||||
![]() | 6万円 3,000円 | 12万円 なし | 3LDK 67.05m2 | 築30年 | JR東海道本線 共和駅 徒歩20分 JR東海道本線 南大高駅 徒歩34分 名鉄常滑線 聚楽園駅 徒歩52分 愛知県大府市共和町末広 | 詳細を見る | |
アパート MONOLITH(1LDK/1階) | |||||||
![]() | 8.2万円 4,000円 | なし 8.2万円 | 1LDK 49.68m2 | 新築 | 中央本線 勝川駅(JR) 徒歩15分 名鉄小牧線 味美駅(名鉄) 徒歩15分 愛知県春日井市惣中町3丁目 | 詳細を見る | |
マンション 名鉄旭前ハイツ D棟(2LDK/5階) | |||||||
![]() | 6.5万円 4,000円 | なし なし | 2LDK 51.63m2 | 築48年 | 名鉄瀬戸線 旭前駅 徒歩3分 名鉄瀬戸線 印場駅 徒歩14分 名鉄瀬戸線 尾張旭駅 徒歩22分 愛知県尾張旭市旭前町 | 詳細を見る | |
アパート ヌーベル バーグ(2LDK/2階) | |||||||
![]() | 5.8万円 4,000円 | なし なし | 2LDK 57.33m2 | 築23年 | 名鉄小牧線 味美駅(名鉄) 徒歩38分 愛知県西春日井郡豊山町大字豊場字高前 | 詳細を見る | |
マンション シャーメゾン菅大臣(2LDK/2階) | |||||||
![]() | 12.7万円 8,000円 | なし 25.4万円 | 2LDK 60.45m2 | 新築 | 中央本線 春日井駅(JR) 徒歩13分 愛知県春日井市菅大臣町 | 詳細を見る | |
マンション ブリスコート鳴子北(1LDK/5階) | |||||||
![]() | 8.1万円 7,000円 | 16.2万円 なし | 1LDK 40.56m2 | 新築 | 地下鉄桜通線 鳴子北駅 徒歩1分 地下鉄桜通線 相生山駅 徒歩10分 地下鉄桜通線 野並駅 徒歩14分 愛知県名古屋市天白区相川 | 詳細を見る | |
マンション グランドステージ桜ヶ丘(2LDK/6階) | |||||||
![]() | 8.25万円 7,500円 | なし なし | 2LDK 58.32m2 | 築27年 | 名鉄瀬戸線 印場駅 徒歩9分 名鉄瀬戸線 旭前駅 徒歩12分 愛知県尾張旭市桜ケ丘町2丁目 | 詳細を見る | |









