賃貸マンション
ペアパレス六町環七北通の賃貸物件情報(1DK/1階)
| 家賃 | 管理費等 | 敷金 | 礼金 | 間取り | 専有面積 |
|---|---|---|---|---|---|
| 9.4万円 | 8,000円 | なし | なし | 1DK | 25.37m2 |
入居決定でお祝い金最大100,000円
- 保証金
- -
- 償却・敷引
- -
- 築年数
- 新築
- 所在階
- 1階
- 向き
- 南
Point
仲介専門店だから、どこの会社のお部屋でも同条件でご紹介が可能。まとめてぜーんぶご紹介・ご内見ができます。足立区・葛飾区のお部屋探しは、情報量ナンバーワンのタウンハウジング綾瀬店にお任せ下さい!
提供:(株)タウンハウジング東京 綾瀬店(SUUMO経由)

詳細情報 ペアパレス六町環七北通
物件紹介
ペアパレス六町環七北通はつくばエクスプレス六町駅から徒歩7分にあり、駅近で通勤通学に便利なマンションです。
建物のエントランスはオートロックがついており、インターホンにはTVモニタもついているため、相手の顔を確認してから来客対応することができます。
人気の南向きのお部屋。また、フローリングなのでお掃除もラクラク。キッチンはシステムキッチン仕様になっていますので、お料理好きの方にもぴったり。バス・トイレは別なので、のんびりお風呂タイムも楽しめるでしょう。また、雨の日でも浴室乾燥機を使えば、お洗濯も問題ありません。
通信設備面では、インターネットが無料で使えるので、月々の出費を抑えられるのも魅力です。また、BSアンテナ・CSアンテナもありますので、おうち時間も充実するでしょう(別途工事、BS・CSの契約料等が必要な場合あり)。
建物にはエレベーターがついているので、重い荷物があっても安心。共用部には宅配ボックスが設定されているので、不在の時にも荷物を受け取ることができます。また、ペット飼育の相談ができますので、あなたの大切な家族の一員も快適に暮らせるか、ぜひ確認してみてください。
建物のエントランスはオートロックがついており、インターホンにはTVモニタもついているため、相手の顔を確認してから来客対応することができます。
人気の南向きのお部屋。また、フローリングなのでお掃除もラクラク。キッチンはシステムキッチン仕様になっていますので、お料理好きの方にもぴったり。バス・トイレは別なので、のんびりお風呂タイムも楽しめるでしょう。また、雨の日でも浴室乾燥機を使えば、お洗濯も問題ありません。
通信設備面では、インターネットが無料で使えるので、月々の出費を抑えられるのも魅力です。また、BSアンテナ・CSアンテナもありますので、おうち時間も充実するでしょう(別途工事、BS・CSの契約料等が必要な場合あり)。
建物にはエレベーターがついているので、重い荷物があっても安心。共用部には宅配ボックスが設定されているので、不在の時にも荷物を受け取ることができます。また、ペット飼育の相談ができますので、あなたの大切な家族の一員も快適に暮らせるか、ぜひ確認してみてください。
お金・契約の情報
※「-」と表示されているものは、実際は料金が発生するものもございます。詳細はお問い合わせください。
| 家賃 | 9.4万円 | 管理費・共益費 | 8,000円 |
|---|---|---|---|
| 敷金 | なし | 礼金 | なし |
| 入居決定でお祝い金最大100,000円 | |||
| 保証金 | - | 償却・敷引 | - |
| 住宅保険料 | - | 更新料 | - |
| 保証会社利用 | 必須 | 保証会社名 | - |
| 保証会社費用 | - | 保証会社備考 | 保証会社利用必 加入要■第一保証会社:エポス(初回料:40%、月次:無、更新料:10000円/1年or14000円/1年)■第二保証会社:ニッポンインシュア(初回料:100%、月次:無、更新料:20000円/1年 |
| 契約形態 | - | 契約期間 | - |
| 入居・引渡期間 | - | 現況 | - |
| 入居可能条件 | ペット相談 | ||
| 契約備考 | 東武伊勢崎・大師線五反野駅徒歩30分/エポス 合計3.3万円(内訳:鍵交換代:33000円) 更新料新賃料(ヶ月):1.00ヶ月 1DK 二人入居可/ペット相談 普通借家2年 損保【2.2万円2年】 バストイレ別、バルコニー、エアコン、ガスコンロ対応、クロゼット、フローリング、シャワー付洗面台、TVインターホン、浴室乾燥機、オートロック、室内洗濯置、シューズボックス、システムキッチン、南向き、温水洗浄便座、脱衣所、エレベーター、洗面所独立、洗面化粧台、2口コンロ、駐輪場、宅配ボックス、礼金不要、BS・CS、敷金不要、防犯カメラ、独立型キッチン、ペット相談、照明付、保証人不要、二人入居相談、バイク置場、全居室フローリング、ネット使用料不要、エアコン全室、ダブルロックキー、保証金不要、築2年以内、人感照明センサー、駅徒歩10分以内、24時間ゴミ出し可、敷地内ごみ置き場、都市ガス、洗面所にドア、南面バルコニー、敷金・礼金不要、IT重説対応物件 敷金積み増し【ペット飼育の場合敷金1ヶ月(総額)】 入居日:'26年1月下旬 | ||
部屋の情報
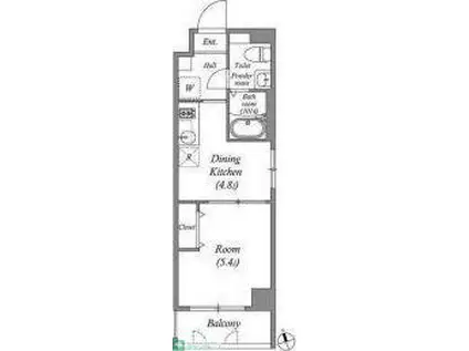
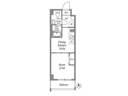
| 間取り | 1DK | 専有面積 | 25.37m2 |
|---|---|---|---|
| 所在階 / 向き | 1階 / 南 | バルコニー面積 | - |
| 水道 / ガス | - | ||
| 設備 | バス・トイレ別、オートロック、テレビドアホン、宅配ボックス、浴室乾燥機、インターネット対応、システムキッチン、エアコン、エレベーター、温水洗浄便座、南向き、バルコニー、フローリング、洗髪洗面化粧台、2口コンロ、コンロ:ガス、CSアンテナ、BSアンテナ、インターネット使用料無料、洗濯機:室内 | ||
| 当社物件ID | 160129329 | ||
建物の情報
| 建物名 | ペアパレス六町環七北通 | ||
|---|---|---|---|
| 所在地 | 東京都足立区六町 | ||
| 交通 | つくばエクスプレス 六町駅 徒歩7分 つくばエクスプレス 青井駅 徒歩15分 東京メトロ千代田線 北綾瀬駅 徒歩17分 | ||
| 階数 | 7階建 | 総戸数 | - |
| 築年月 | 2026年01月 / 新築 | エレベーター | あり |
| 駐車場 | なし | バイク置き場 | あり |
| 駐輪場 | あり | 管理人/管理会社 | - |
| 周辺環境 | その他 五反野駅(東武 伊勢崎線)(その他)まで2330m その他 ワークマン(ショッピングセンター)まで580m その他 ライフ六町駅前店(スーパー)まで480m その他 セブンイレブン(コンビニ)まで400m その他 ドラッグセイムス足立青井店(ドラッグストア)まで730m その他 コジマ×ビックカメラ足立加平店(ホームセンター)まで1030m | ||
| 建物種別 | マンション | 建物構造 | RC(鉄筋コンクリート) |
この部屋の取扱い不動産会社
| 会社名 | (株)タウンハウジング東京 北千住店(SUUMO経由) | ||
|---|---|---|---|
| 所在地 | 東京都足立区千住2-49 | 交通 | - |
| 営業時間 | AM10:00~PM7:00 | 定休日 | 水曜日 |
| 免許番号 | 国土交通大臣9926 | 取引態様 | 仲介 |
| 不動産会社管理番号 | 100480409420 | 当社管理番号 | 89 |
| 所属団体 | (公社)東京都宅地建物取引業協会会員 | ||
| 公正取引協議会 | (公社)首都圏不動産公正取引協議会加盟 | ||
| 取扱い物件情報 | 物件詳細へ | ||
※各種情報と現状に差異がある場合は、現状優先となります。問い合わせをすることで、より詳しい条件、情報を確認する事ができます。
提供:(株)タウンハウジング東京 北千住店(SUUMO経由)
この物件が気になったら掲載期限まであと10日
ペアパレス六町環七北通の空き部屋一覧
全部で59の空き部屋があります。
ペアパレス六町環七北通に条件(家賃・エリア)が近い物件一覧
| 写真 | 家賃 管理費等 | 敷金 礼金 | 間取り 専有面積 | 築年数 | 最寄り駅 所在地 | キープ | 詳細 |
|---|---|---|---|---|---|---|---|
マンション アリビオ両国(1K/4階) | |||||||
![]() | 9.2万円 8,000円 | なし 9.2万円 | 1K 21.81m2 | 築12年 | 東京都大江戸線 両国駅 徒歩6分 東京地下鉄銀座線 浅草駅(東武・都営・メトロ) 徒歩13分 総武・中央緩行線 両国駅 徒歩15分 東京都墨田区石原1丁目 | 詳細を見る | |
マンション パストラーレ三ノ輪(1K/1階) | |||||||
![]() | 9.6万円 7,000円 | 9.6万円 9.6万円 | 1K 31.14m2 | 築26年 | 東京メトロ日比谷線 三ノ輪駅 徒歩6分 東京メトロ日比谷線 入谷駅(東京) 徒歩16分 JR常磐線 南千住駅 徒歩18分 東京都荒川区東日暮里 | 詳細を見る | |
マンション トライム両国(1LDK/4階) | |||||||
![]() | 14.5万円 1万円 | 14.5万円 14.5万円 | 1LDK 30.96m2 | 築5年 | 総武・中央緩行線 両国駅 徒歩5分 東京都大江戸線 両国駅 徒歩7分 東京都大江戸線 森下駅(東京) 徒歩8分 東京都墨田区両国4丁目 | 詳細を見る | |
マンション ディスティーノレジデンシア荒川(1LDK/3階) | |||||||
![]() | 13.4万円 1.5万円 | なし なし | 1LDK 32m2 | 築3年 | 東京都荒川線 荒川二丁目駅 徒歩6分 東京地下鉄千代田線 町屋駅 徒歩8分 京成電鉄本線 町屋駅 徒歩8分 東京都荒川区荒川2丁目 | 詳細を見る | |
マンション GENOVIA本所吾妻橋SKYGARDEN(1K/2階) | |||||||
![]() | 11.2万円 1.5万円 | なし なし | 1K 25.62m2 | 築5年 | 東京都浅草線 本所吾妻橋駅 徒歩10分 東京都大江戸線 両国駅 徒歩12分 東京地下鉄銀座線 浅草駅(東武・都営・メトロ) 徒歩15分 東京都墨田区石原3丁目 | 詳細を見る | |
マンション 西川ビル(1K/6階) | |||||||
![]() | 9万円 7,000円 | なし なし | 1K 24.45m2 | 築21年 | 東京地下鉄千代田線 西日暮里駅 徒歩2分 山手線 西日暮里駅 徒歩3分 京成電鉄本線 新三河島駅 徒歩12分 東京都荒川区西日暮里5丁目 | 詳細を見る | |
マンション エリタージュ(1K/3階) | |||||||
![]() | 9.3万円 4,000円 | 9.3万円 9.3万円 | 1K 20.5m2 | 築1年 | 日暮里舎人ライナー 赤土小学校前駅 徒歩4分 山手線 田端駅 徒歩15分 東京都荒川区東尾久4丁目 | 詳細を見る | |
マンション 小宮ビル(1K/9階) | |||||||
![]() | 10.5万円 7,000円 | なし なし | 1K 26.12m2 | 築22年 | 山手線 西日暮里駅 徒歩3分 山手線 日暮里駅 徒歩11分 常磐線 三河島駅 徒歩15分 東京都荒川区西日暮里5丁目 | 詳細を見る | |








